Grundriss Doppelhaushälfte, 2,5 Geschosse + Nutzkeller

4,60 Stern(e) 7 Votes
Zuletzt aktualisiert 24.11.2025
Sie befinden sich auf der Seite 6 der Diskussion zum Thema: Grundriss Doppelhaushälfte, 2,5 Geschosse + Nutzkeller
>> Zum 1. Beitrag <<

K a t j a

K a t j a

Und wusstest Du, dass man jetzt schon mit 47er Außenwänden plant?! :cool:
Ja, ich versuche mich meist an die Vorlagen-Wandstärken zu halten. Deswegen nervt es etwas, dass hier nix dran steht.
Die Frage ist eher die Geschosshöhe. 2,50m Deckenhöhe - was nimmst Du für Decke und FB? Ich hatte sonst immer 30 veranschlagt aber letztens hatte hier jemand 50. Das hat mich verunsichert.
 
Y

ypg

aber letztens hatte hier jemand 50. Das hat mich verunsichert.
Wahrscheinlich hatte der auch 4-fach-Verglasung ;) (kleiner running gag)
Die Frage ist eher die Geschosshöhe.
Warum fragst Du Dich das? Das ist unwichtig, wenn Du Dich im Bereich des Standards bewegst und nicht ricks Haus oder meine Galerie nachplanen willst. Du wirst ja keine Ausführungsplanung machen wollen. Als Laie kannst Du auch nicht an den Zentimeter gehen… Bodenplatte bzw bei Keller etwas Höhe geht auch drauf.
Die Legende scheint relativ einfach: bei 10 Tiefe und 35 DN kommst Du mittig auf 3,50 Skizzenmaß. 50cm Bodenplatte oder Sockel verbleiben WH 6,00 für 2 Geschosse. Da wirst Du nicht zaubern müssen. Den Rest darf der Architekt machen.
 
C

corby_81

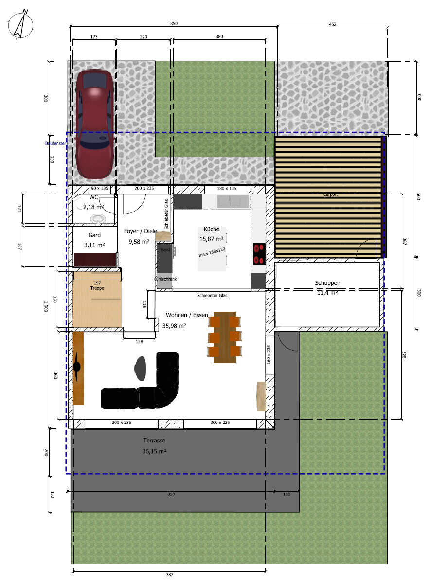
Ich habe den Grundriss überarbeitet.

  • EG
    • Treppe weiter in den Süden verschoben
    • schräge Wand im Wohnbereich entfernt und geöffnet. Bei Bedarf Glasschiebetüren verwenden um den Wohnbereich zu schließen.
    • Eckfenster in den Norden verschoben
Anmerkung: Die Nische in der Diele finde ich nicht schlimm und störend. Kenne das von meinen Eltern, empfinde ich als nicht auffällig wenn hier eine Blume oder ähnlich hingestellt wird.

  • OG
    • durch die Verschiebung der Treppe hat das Bad eine größere Tiefe. Das T habe ich entfernt, der Durchgang zu Dusche und WC sollte nun breit genug sein.
    • Kinderzimmer hätte ich gerne beide im Süden gehabt, passt aber wegen der kleinen Größe nicht. Ich denke Nord-Ost Zimmer sollte durch Verwendung von großen Fenstern auch freundlich sein.
    • Beide Zimmer sollten in etwa 24m² groß sein. Das Kinderzimmer im Süden ist mit 28 m² zu groß. Ich würde das Zimmer gerne kleiner machen und dafür einen kleinen Abstellraum haben um Sachen wie Staubsauger zu deponieren. Ich habe momentan aber noch keine Idee wie man das am geschicktesten lösen kann. Habt ihr eine Idee?
  • DG
    • Sauna kommt nun in den Keller, dadurch bleibt mehr Platz für Schlafzimmer und das Gast- und Arbeitszimmer
Was meint ihr dazu?

Grundriss eines Hauses: Treppe, Gäste-/Arbeitsbereich, Schlafzimmer, WC/DU, Sofa, Tisch, Schreibtisch.


Grundriss eines Hauses: Wohn- und Essbereich, Küche, Terrasse, Garten und Parkplatz mit Auto


Grundriss eines Etagenplans mit Bad, Treppe und zwei Kinderzimmern.
 
C

corby_81

Ja, ich versuche mich meist an die Vorlagen-Wandstärken zu halten. Deswegen nervt es etwas, dass hier nix dran steht.
Die Frage ist eher die Geschosshöhe. 2,50m Deckenhöhe - was nimmst Du für Decke und FB? Ich hatte sonst immer 30 veranschlagt aber letztens hatte hier jemand 50. Das hat mich verunsichert.
  • Außenwände sind 36,5cm, Innenwände 17,5 cm bzw. 10cm.
  • Deckenhöhe 2,50m
  • Kniestock ca. 40cm
 
C

corby_81

Haha. :)
Mir fehlen allerdings einige Höhenangaben. Speziell: gibt's nen Kniestock? Außerdem: wie breit darf die Gaube sein und darf auf jede Seite eine? Wandstärken sind auch unbekannt.
Dachgaube dar max. 1/3 der zugehörigen Dachlänge betragen. Auf der Südseite wollen wir keine Gaube haben, es ist geplant die Südseite komplett mit Panels vollzumachen.
 
Zuletzt aktualisiert 24.11.2025
Im Forum Grundrissplanung / Grundstücksplanung gibt es 2536 Themen mit insgesamt 87999 Beiträgen


Ähnliche Themen zu Grundriss Doppelhaushälfte, 2,5 Geschosse + Nutzkeller
Nr.ErgebnisBeiträge
1Grundriss Einfamilienhaus ohne Keller, 3 Kinderzimmer und Büro 18
2Keller ohne zusätzlichen Bodenbelag / Reinigung Bodenplatte 34
3Grundrissentwurf Einfamilienhaus ca. 230qm plus Keller - Seite 636
4Entwurf Einfamilienhaus mit 3 Kinderzimmer, Keller und Grenzbebauung 32
5Grundriss Einfamilienhaus 155m², ohne Keller, 3 Kinderzimmer, 1 Büro 38
6Bodenplatte dämmen - Deckenhöhe reicht nicht aus 14
7Nässe im Keller an Bodenplatte und Wänden - Seite 325
8Wann ist ein Hang ein Hang? Keller vs. Bodenplatte - Seite 419
9Keller oder Bodenplatte? - Kostenschätzung 24
10Leichte Hanglage, Bauen mit Keller oder Bodenplatte? - Seite 216
11Keller oder Bodenplatte für Grundstückssituation sinnvoller? - Seite 755
12Preisdifferenz Bodenplatte zu Keller. Kann man das abschätzen? - Seite 432
13Kosten Keller - Wird die Bodenplatte gegengerechnet? 17
14Außenliegende Perimeterdämmung Bodenplatte, Schimmelrisiko Keller 11
15Schallschutz Kinderzimmer 12
16Grundrissplanung Keller, EG + DG 12
17Grundrissoptimierung Stadtvilla ca. 180qm mit Keller in Berlin 40
18200m2 Einfamilienhaus für 4-5 Personen ohne Keller auf schmalem Grundstück 67
19Einfamilienhaus bauen mit/ohne Keller bei kleinem Grundstück - Seite 965
20160m2 Einfamilienhaus in Holzständerbauweise am Nordhang mit Keller - Seite 15100

Oben