Grundriss Doppehaus mit ca. 165m2 und 150m2 / mit Satteldach / Gauben

4,60 Stern(e) 5 Votes
Zuletzt aktualisiert 09.10.2025
Sie befinden sich auf der Seite 3 der Diskussion zum Thema: Grundriss Doppehaus mit ca. 165m2 und 150m2 / mit Satteldach / Gauben
>> Zum 1. Beitrag <<

M

Mexx110

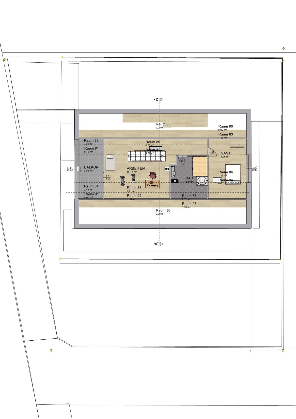
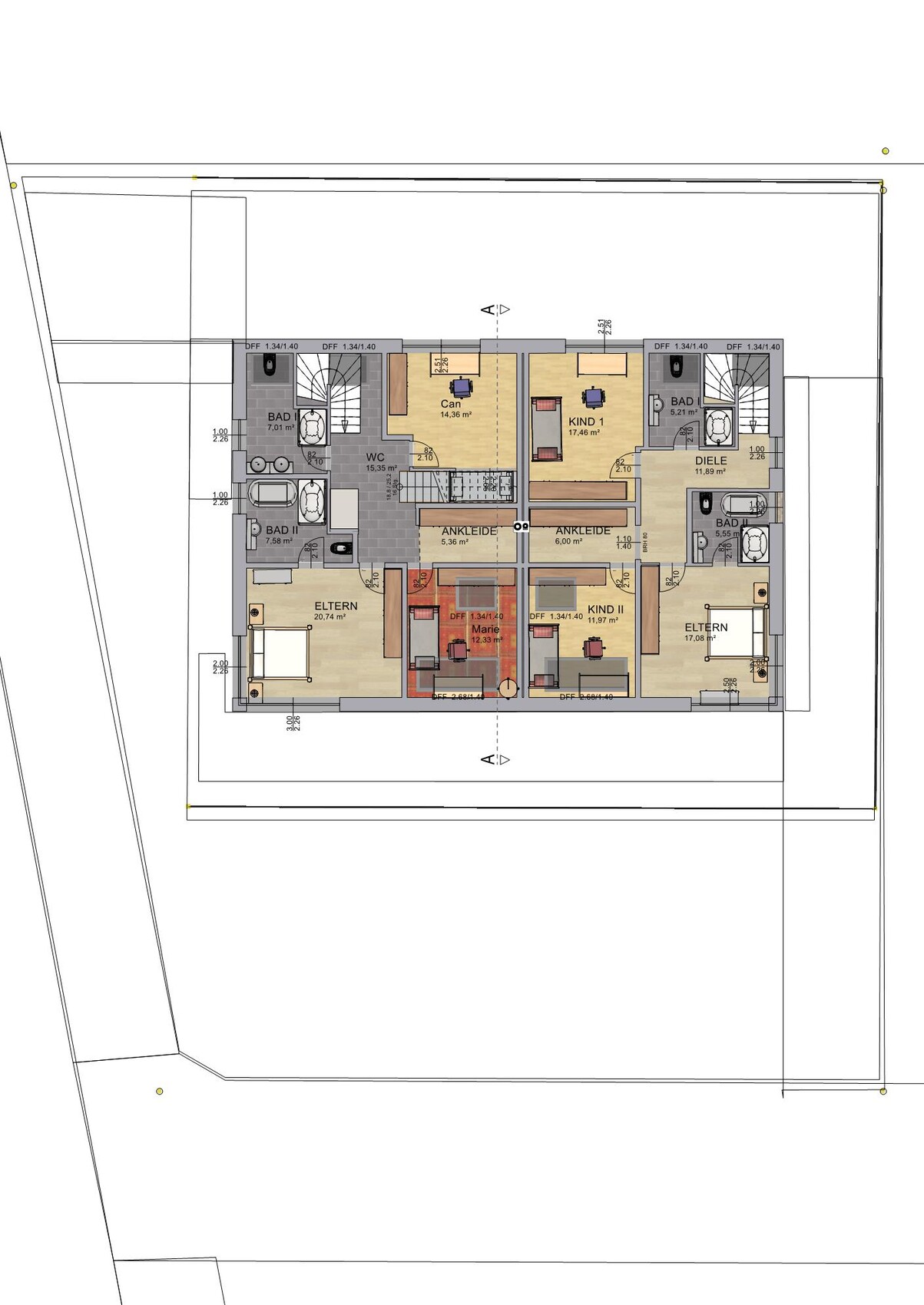
Obergeschoss neue Version, würde lieber die letzte Antwort editieren, geht nicht wahrscheinlich

Gruß

Mex

Top-down 3D-Grundriss eines Duplexhauses mit zwei identischen Wohneinheiten und Innenräumen.


Grundriss eines Wohnhauses mit zwei Wohnungen, Zimmern, Türen und Möblierung.
 
gutentag

gutentag

Die Grundflächenzahl kannst mMn kaum einhalten.
Geschossflächenzahl mMn auch nicht. 715 * 0.3 = 214.5 m2 eine Etage ist 12*17,54 = 210,48m2
Bei den großen Gauben und dem hohen Kniestock ist das Dach vermutlich auch ein Vollgeschoss?

An der Größe wird der Architekt dann noch arbeiten müssen.

Warte mal mit Deiner Planung.

Budget ist eh mMn zu niedrig.
 
gutentag

gutentag

Sag doch mal Dein Budget.
Meine konservative Schätzung: ohne Eckfenster, Raumhohe Fenster, 3 Baeder pro Doppelhaushälfte usw.

Haus: Standard
Umbauter Raum 214,2 x 4,5 + 214,2 x 5,5 x 0,5 + 2 x 4,5 x 2,0 x 2,0 * 0,5= 1.570,95 m3 * 700 = 1.099.665
(ca. 350 m2 Wohnfläche * 3.000 = 1.050.000)
2 Garagen x 20.000 = 40.000

2 Keller 214,2 * 3 * 300 =192.780

Nebenkosten 10% 135.000

Summe: 1.467.000

Hast Du die 1,5 + X Millionen?
 
M

Mexx110

ich weiß, es wird teuer.
Die Finanzierung steht Gott sei Dank.
Rohbau (verwandt) und Architekt ( befreundet) sind unter marktüblichen Preisen.


Der Bodenrichtwert liegt hier bei 1500/m2. (Verkaufswert pro m2 bei ca (8-10 T/m2)
Daher muss ein gewisser Standard auch diesbezüglich Berücksichtigung finden.

Mit diesen Bildern wollte ich nochmal das Bauordnungsamt konfrontieren,
ob ich die Hanglage so ausnutzen kann und ob ich die Garage länger ziehen kann (auf der westlichen Seite).

Viele Grüße und schöne Feiertage

Querschnitt eines mehrstöckigen Gebäudes mit Fenstern, Türen und Maßangaben.


Anhang anzeigen detaillierter-haus-rohbau-schnitt-grundriss-fundament.JPG

Anhang anzeigen grundriss-hausbau-einfamilienhaus-garage-terrasse.JPG
 
Zuletzt aktualisiert 09.10.2025
Im Forum Grundrissplanung / Grundstücksplanung gibt es 2513 Themen mit insgesamt 87219 Beiträgen


Ähnliche Themen zu Grundriss Doppehaus mit ca. 165m2 und 150m2 / mit Satteldach / Gauben
Nr.ErgebnisBeiträge
1Den Plan selber zeichnen?, Braucht man unbedingt einen Architekt? 11
2Architekt total geschlampt - Erfahrungen? 17
3Schmlußssrechnung Architekt - Seite 213
4Architekt --> Absprachen? Was ist das? - Seite 321
5Kosten Bodengutachten - Bezahlt die der Architekt oder wir? 12
6Abbruch Zusammenarbeit Architekt - verlangt überzogenes Honorar - Seite 228
7Zusammenarbeit mit einem Architekt - wie funktioniert es richtig? - Seite 222
8Planung / Architekt, Einbeziehung Fachplaner für Genehmigungsplan 10
9Kostenabschätzung Architekt Einfamilienhaus. Eure Einschätzung 44
10Doppelhaus Architekt oder GU / Fertighaus oder Massiv 13
11Wer hat mit Architekt gebaut? Erfahrungen?? - Seite 385
12Bau Garage auf Grenze geht lt. Architekt nicht. 11
13Ist ein Architekt wirklich so teuer? - Seite 746
14Bauträger oder Architekt - Kosten - Seite 443
15Verschiedene Maße Architekt Ausführungszeichnung - Seite 212
16Architekt und Budgetgrenze...Absicherung? Möglichkeiten - Seite 325
17Bauingenieur vs. Architekt - Seite 217
18Architekt oder Bauträger? Was ist günstiger? 13
19Baunebenkosten Bank will Unterschrift vom Architekt 16
20Hausplan von Architekt 2 Geschosse mit Keller 18

Oben