Grundriss Bungalow mit Einliegerwohnung - Grundriss Feedback

4,30 Stern(e) 3 Votes
Zuletzt aktualisiert 04.10.2025
Sie befinden sich auf der Seite 12 der Diskussion zum Thema: Grundriss Bungalow mit Einliegerwohnung - Grundriss Feedback
>> Zum 1. Beitrag <<

M

matte

Gott, jetzt hör doch bitte mal mit dem Geheule auf.
Du meldest dich in nem Forum an, mit der Bitte um Meinungen. Dann kommen die gewünschten Meinungen, entsprechen nur nicht den eigenen Vorstellungen und schon wird von Mobbing angefangen und dass das Posten von weiteren eigenen Vorschlägen gar nicht gewünscht sei... :|

Sei doch mal froh, dass man versucht, dir hier zu helfen?! Mir fiel das hier bei unserem Bauvorhaben auch nicht leicht, trotzdem wurden mir die Augen geöffnet. Wenn nämlich die einhellige Meinung ist, dass etwas Murks wäre, was man selbst toll findet, sollte man Vorlauf. auch mal drüber nachdenken, ob da nicht tatsächlich ein wahres Wort dahinter stecken könnte.

So, das musste nun mal raus.

Jetzt du deinem Grundriss vom Architektenfreund:

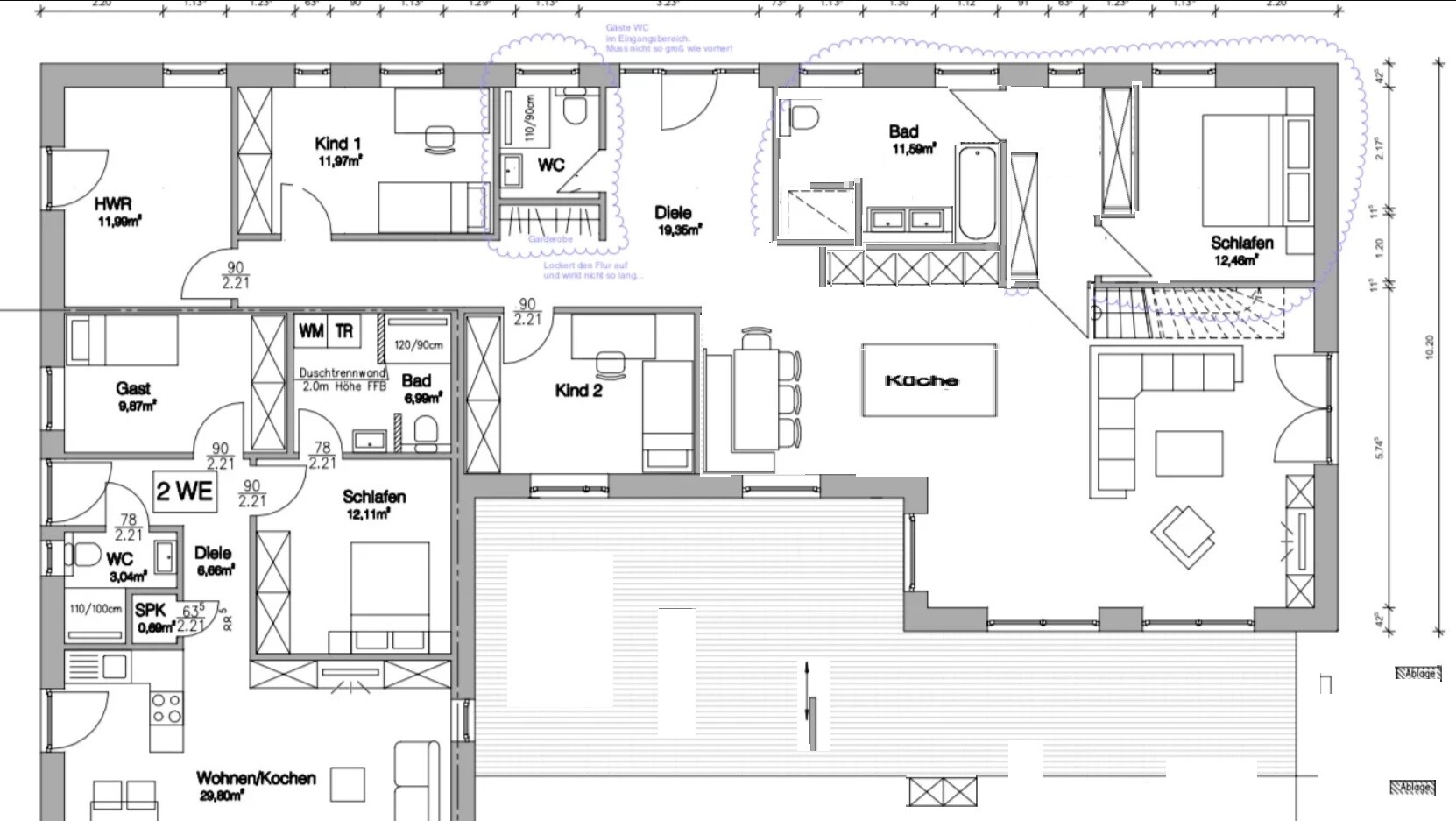
- Die Engstelle in der Hauptwohnung Kochen/Essen gefällt mir überhaupt nicht. Die Küche + Esstisch ist meistens DER zentrale Punkt in nem Haus/Wohnung.
Dort verbringt man Zeit, dort sitzt man gemütlich zusammen, usw. Das lädt hier irgendwie überhaupt nicht dazu ein. Für mich wirkt das eher wie ein Durchgangszimmer.

- Elternbereich würde ich mit einer Türe in die Ankleide lösen. von dort dann ins Bad bzw. Schlafzimmer.
Das lässt sich ohne Probleme bewerkstelligen. Wenn man die Wand zwischen Ankleide und Schlafzimmer weiter nach rechts verschiebt, hat man in der Ankleide genügend Platz für 2 Schrankwände und schafft so mehr Stauraum.

- Das Gäste Bad in der Hauptwohnung wird nicht funktionieren, die Dusche ist direkt vor dem Fenster.

- Wozu braucht die 2. Wohnung 2 Duschbäder?

- Ich würde das 1. Bad öffentlich machen, dafür hat man dann auch Platz für ne größere Küche, die eingezeichnete ist grad mal ferienwohnungtauglich.

- Die Speisekammer ist so wie eingezeichnet völlig für die Katze. Da bring ich in nen einzelnen Küchenschrank mit Innenauszügen mehr Zeug untergebracht.

- Ebenso die Abstellkammer in der Hauptwohnung. Lieber nen Küchenschrank dafür verwenden.
Kühlere Temperaturen kannst du in der Speisekammer durch die gut gedämmte Bauweise heutzutage eh nicht erwarten, noch dazu bei ner innenliegenden Speisekammer.
Für Besen, Staubsauger usw hast du eh den Hauswirtschaftsraum.

- In dem Zuge könnte man auch mal überlegen, ob man den Hauswirtschaftsraum der Hauptwohnung nicht mit dem Bad der Zweitwohnung tauscht. Dann wäre das Dilemma mit dem Fensterlosen Bad auch mal erledigt, noch dazu reduziert man den langen Flur auf ein Minimum und schenkt nicht den Platz für Verkehrsfläche her.

Grundriss einer Wohnung mit Küche, Wohnzimmer, Flur, Bad, Schlaf- und Kinderzimmern.
 
Y

ypg

...
Seine Anmerkung: Flur zu lang und Schlafzimmer kaum Privatsphäre neben der Stube. Der Rest hat ihm gut gefallen.
Es gab auch gleich einen Verbesserungsvorschlag.


IMG]
???
Das habe schon in den ersten Beiträge geschrieben, dass man mit wenigen Änderungen die gröbsten Fehler ausmerzen kann.
Allerdings lohnt sich ja keine Mühe, wenn Du stur auf die Fehler im Plan beharrst.
Da der Architekt sicherlich auch nur „auf die Schnelle“ grob verbessert hat, sieht man an dem fehlenden Schlafzimmer-Fenster und der Treppe, die in einen Bereich oben ankommt, wo man nicht stehen kann..., ...würde man mit mehr Hirnschmalz dann letztendlich auf einen guten Entwurf blicken können.

Da wollte ich übrigens noch mal erwähnen, dass Deine offenen Giebel ohne Fenster nicht so richtig zur Geltung kommen werden, da sie dunkel bleiben. Es wird wohl mehr so aussehen, als wenn man „aus Kostengründen“ die Decke vergessen hat. Dreiecksfenster gehören optisch schon dahin, mind. 1 asymmetrisch pro Giebel, da die Dachneigung ziemlich hoch ist.
Wir haben 26Grad Dachneigung mit einem Fenster, und ich würde mehr Dachneigung auf keinen Fall offen bauen.
 
blaupuma

blaupuma

Hallo Matte,

Also die Hausform und der Ort des Hauswirtschaftsraum sowie die mittige Haustür möchten wir nicht verändern.

Der Rest ist variabel.


Ich will nicht bestreiten, dass dies eingefahren ist.

Ich finde einige Kommentare hier übers Ziel hinausgeschossen, nehme das jetzt aber einfach so an. Ich bekomme hier ja auch kostenlosen Input.

Viele Grüße
 
Zuletzt aktualisiert 04.10.2025
Im Forum Grundrissplanung / Grundstücksplanung gibt es 2509 Themen mit insgesamt 87151 Beiträgen


Ähnliche Themen zu Grundriss Bungalow mit Einliegerwohnung - Grundriss Feedback
Nr.ErgebnisBeiträge
1Welche Dachneigung wählen - Rat gesucht 11
2Unser Grundriss - Verbesserungsvorschläge? 32
3Kleinstmögliches Fenster für Lüftung Hauswirtschaftsraum 22
4Hauswirtschaftsraum Raum ohne Fenster - Lüftungsanlage ausreichend? 26
5Fenster Brüstungshöhe 130 im Schlafzimmer / Arbeitszimmer? - Seite 493
6Pfiffige Schlafzimmer Idee mit Ankleide gesucht 19
7Grundriss Schlafzimmer, Ankleide und Bad en Suite - Seite 336
8Grundriss Schlafzimmer mit Bad und Ankleide 62
9Speisekammer vs. größere Küche vs. Hauswirtschaftsraum 13
10 Küchenplanung mit tiefen Fenster - Seite 643
11Bungalow 135qm: Grundriss + Fenster - Seite 7104
12OG Stadtville optimieren. Fenster Bodentief - Seite 13104
13Dusche direkt am Fenster - kompatibel oder inkompatibel? 22
14Durchbruch Bad und Ankleide ohne Türe? - Seite 212
15Hilfe bei der Anordnung der Fenster benötigt! 32
16Riesiges Problem mit dem Kondenswasser am Fenster 34
17Fenster zwischen 2 Räumen 13
18Schlafzimmer auf der Südseite zu warm? 18
19Heizung Kinderzimmer,schlafzimmer und Bad 14
20Grundriss Einfamilienhaus geplant, Fenster gefallen uns - Seite 343

Oben