Grundriss Bungalow mit Einliegerwohnung - Grundriss Feedback

4,30 Stern(e) 3 Votes
Zuletzt aktualisiert 08.01.2026
Sie befinden sich auf der Seite 11 der Diskussion zum Thema: Grundriss Bungalow mit Einliegerwohnung - Grundriss Feedback
>> Zum 1. Beitrag <<

kaho674

kaho674

Des Kunden Willen ist sein Himmelreich.
Das hat sich vermutlich auch der Architekt hier gedacht oder er war froh, dass er nicht denken musste. Ich frage mich immer, ob dieser Berufszweig keine Moral hat, wenn die sowas einfach unkommentiert durchplanen. Wie viel Schrott wird da eigentlich wirklich gebaut?

Sicher ist es so, dass man als "kleiner" Architekt lernt, auch die merkwürdigsten Vorlieben der Kunden einfach hinzunehmen, nur um zum Abschluss zu kommen.
Doch hier würde mich der Umfang des Beratungsgesprächs schon mal interessieren.

Letztendlich sind da ja schon mindestens 2, die dieses Objekt so bauen wollen. Diese Hausform ist schon lange im Kopf des TE mit der "wunderbaren" Symmetrie.
Das Grundstück wurde sogar extra danach ausgesucht. Jetzt noch an Grundlagen zu rütteln, ist vermutlich Zeitverschwendung.

@TE: Das Forum kann nur Tipps geben. Wenn Du das alles anders siehst, Bau los. Es ist Dein Haus und es wird sicher nicht billig und Du allein bezahlst dafür.

Wenn es Dich doch tangiert, dann nimm Dir einfach mal ein paar Tage Auszeit. Danach schreib die Sachen auf, die wirklich unumstößlich sind und lösche den gesamten Rest. Dann fang neu an.
 
kbt09

kbt09

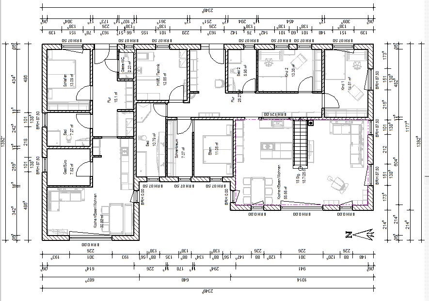
Ich kann es ja nicht lassen und habe mal geschoben ... ca. die Außenmaße von Blaupuma.

Erzielte Flächen: Hauptwohnung 153 qm plus Galerie und Einliegerwohnung 75 qm

Mal ganz ohne große Kommentare. Außenansicht eher nebenher, Dachneigung rundum 25°. Autostellplatz stell ich mir eher zwischen den beiden Haustüren vor.

Hausgrundriss habe ich mal so gedreht, wie im Eingangsbeitrag.

Grundriss eines Hauses mit mehreren Zimmern: Küche, Wohnzimmer, Bad, Schlafzimmer, Treppenhaus.


Weißes Einfamilienhaus mit rotem Dach, großen Glasfronten, grünem Garten und blauem Himmel.


Weißes Einfamilienhaus mit rotem Satteldach, mehreren Fenstern, seitlicher Perspektive auf grünem Rasen.


3D-Grundriss einer Wohnung mit Flur, Küche, Essbereich, Wohnzimmer, Schlafzimmer, Büro.


3D-Grundriss eines Hauses: Küche, Essbereich, Wohnzimmer, Schlafzimmer, Bad und Treppen.


3D-Ansicht eines offenen Wohnbereichs mit Küche, Esstisch, orangefarbenem Sofa, TV und Treppe.
 
blaupuma

blaupuma

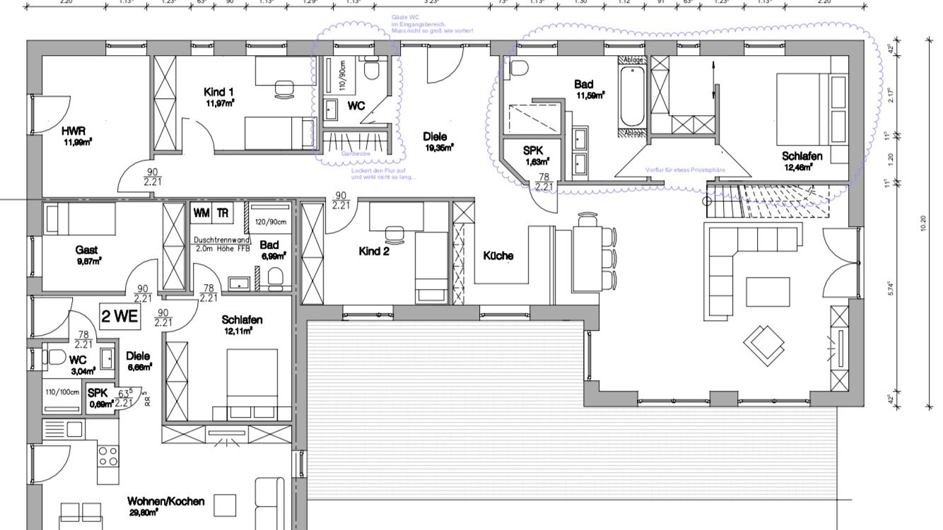
Guten morgen,

ich habe gestern den Entwurf einem
befreundeten Architekten gegeben, mit der bitte mir seine ehrliche Meinung zu sagen.

Seine Anmerkung: Flur zu lang und Schlafzimmer kaum Privatsphäre neben der Stube. Der Rest hat ihm gut gefallen.
Es gab auch gleich einen Verbesserungsvorschlag.


Bin grad unsicher ob ich das überhaupt hier posten soll hab das Gefühl das ist irgendwie nicht mehr gewünscht...

Grundriss eines Wohnhauses mit Wohnzimmer, Küche, Schlaf- und Kinderzimmer, Bad, WC, Diele, HWR.
 
E

Evolith

Guten morgen,

ich habe gestern den Entwurf einem
befreundeten Architekten gegeben, mit der bitte mir seine ehrliche Meinung zu sagen.

Seine Anmerkung: Flur zu lang und Schlafzimmer kaum Privatsphäre neben der Stube. Der Rest hat ihm gut gefallen.
Es gab auch gleich einen Verbesserungsvorschlag.


Bin grad unsicher ob ich das überhaupt hier posten soll hab das Gefühl das ist irgendwie nicht mehr gewünscht...
Anhang anzeigen
Kannst du ruhig posten. Aber du musst halt damit rechnen, dass wir unsere Meinung dazu sagen.
Willst du die nicht hören, hättest du dir und uns den ganzen Thread sparen können.
 

Anhänge

  • 0 Bytes Aufrufe: 0
Zuletzt aktualisiert 08.01.2026
Im Forum Grundrissplanung / Grundstücksplanung gibt es 2565 Themen mit insgesamt 88781 Beiträgen


Ähnliche Themen zu Grundriss Bungalow mit Einliegerwohnung - Grundriss Feedback
Nr.ErgebnisBeiträge
1Den Plan selber zeichnen?, Braucht man unbedingt einen Architekt? 11
2Architekt total geschlampt - Erfahrungen? 17
3Schmlußssrechnung Architekt - Seite 213
4Architekt --> Absprachen? Was ist das? - Seite 321
5Kosten Bodengutachten - Bezahlt die der Architekt oder wir? 12
6Abbruch Zusammenarbeit Architekt - verlangt überzogenes Honorar - Seite 228
7Zusammenarbeit mit einem Architekt - wie funktioniert es richtig? - Seite 222
8Planung / Architekt, Einbeziehung Fachplaner für Genehmigungsplan 10
9Kostenabschätzung Architekt Einfamilienhaus. Eure Einschätzung - Seite 244
10Doppelhaus Architekt oder GU / Fertighaus oder Massiv 13
11Wer hat mit Architekt gebaut? Erfahrungen?? - Seite 385
12Bau Garage auf Grenze geht lt. Architekt nicht. 11
13Bauträger oder Architekt - Kosten - Seite 443
14Verschiedene Maße Architekt Ausführungszeichnung - Seite 212
15Architekt und Budgetgrenze...Absicherung? Möglichkeiten - Seite 325
16Bauingenieur vs. Architekt - Seite 217
17Architekt oder Bauträger? Was ist günstiger? 13
18Baunebenkosten Bank will Unterschrift vom Architekt 16
19Hausplan von Architekt 2 Geschosse mit Keller 18
20Grundriss Mitbestimmung - Architekt vs. Bauherr - Seite 324

Oben