Grundriss / Außenansicht "Stadtvilla"

4,40 Stern(e) 5 Votes
Zuletzt aktualisiert 24.11.2025
Sie befinden sich auf der Seite 8 der Diskussion zum Thema: Grundriss / Außenansicht "Stadtvilla"
>> Zum 1. Beitrag <<

Y

ypg

Sonnentechnisch leider ein Desaster. .... D
Wo sie recht hat ... [emoji57]

Wenn ihr auf Krampf daran festhaltet, dann kann man nichts machen. Es ist auch schwer, einem Lebenserfahrenen zu glauben
Wenn ihr Eure Erfahrungen selbst machen wollt bzw Euch Licht nicht so viel bedeutet wie großes Wohnzimmer, dann ist das eben so

In aller Kürze Grüsse
 
11ant

11ant

Wir haben uns auch noch Gedanken zu dem derzeitigen Plan gemacht.
Weiter so. Je mehr Ihr Euch von dem Vorbildhaus als "Korsett" der Planung löst, desto besser. Versucht am Vorbild die Punkte, die Euch wirklich faszinieren, zu Identifizieren und als Anregung zu übersetzen. Das Kopieren des Gesamtentwurfes mit hier und da ein bißchen enger machen und Kamin schubsen ist kein "Gelingrezept".
Bist Du dem bösen Verdacht bzgl. rechtem Bauwich mal nachgegangen ?
 
kbt09

kbt09

Leider wird das auch alles sehr eng auf der Breite im Wohnbereich und ein ein recht kleiner Küchenbereich.
10,12 Hausbreite ... dürfte etwa 9,3 m Innenbreite sein.

Küche mit Insel ca. 280 cm
Tisch, so dass man auch noch richtig durchgehen kann ca. 350 cm
Bleiben nach rechts ca. 300 cm von Rückenkante Sofa bis rechter Außenwand.

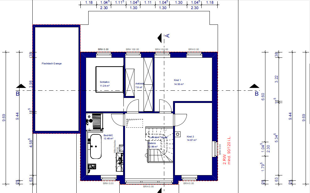
Die Treppe sehe ich auch noch nicht so richtig, wie die verlaufen soll.

Tür Garage/Hauswirtschaftsraum .. ich würde ja verzichten, wenn aber, dann muss man überlegen, wofür sie gebraucht wird. Kofferraum ausräumen .. direkt ins Haus. Da die Garage auch nicht üppig breit ist (Fahrräder etc. sollen ja auch noch irgendwo stehen), sollte die Tür also weiter nach plaunten. Hat auch den Vorteil, dass man die obere Wand vom Hauswirtschaftsraum richtig nutzen kann.
---------------------
Als Ausgangsbasis fände ich das Maxime 300 gespiegelt brauchbar, der Hauswirtschaftsraum/Technik-Raum wäre halt ohne Garagenanschluß.

Grundriss eines Wohnhauses mit Terrasse, Küche, Diele, Wohnzimmer mit Kamin, Technikraum, Du-WC.
 
kbt09

kbt09

Ich hoffe, man darf wenigstens eigene Beiträge verlinken ... Beitrag 45. Ich hatte dort den von Mat91 geposteten Grundriss (Beitrag 41) wg. der besseren Deutlichkeit meiner Worte noch mal als Bild mit der IMG-Funktion eingefügt, also Verlinkung aufs hiesige Forum.

Anscheinend will die hiesige Admin-Schaft, dass man solche Bilder erst herunterlädt und dann selber wieder hochlädt, damit das Bild dann 2mal in der Datenbank ist.

Jetzt hängt leider das Bild im Beitrag 45 irgendwo unten dran und steht nicht mitten im Text, wie ich es platziert hatte.
 
M

Mat91

Hallo zusammen,

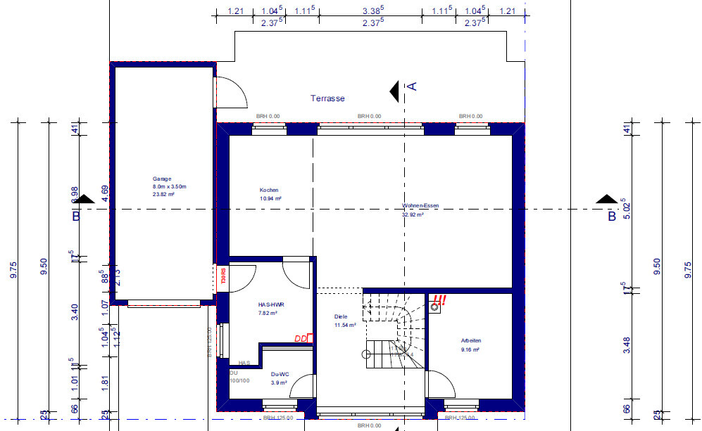
noch mal vielen Dank für Eure Unterstützung. Wir haben nun noch mal am vergangenen Dienstag mit dem Architekten zusammengesessen. Wir hatten ihm wie angefügt noch unsere Verbesserungsvorschläge geschickt. Er hatte daraufhin versucht, diese bestmöglich einzubauen. Leider sind wir mit der Treppe immer noch nicht zufrieden. Habt ihr eventuell noch 1-2 Ideen, wie man die Treppe bestmöglich stellen kann? Bei unserem Vorschlag funktioniert es nicht mehr mit der Tür zum Arbeitszimmer. Wenn wir diese Tür beispielsweise ins Wohnzimmer verlegen, habe ich die Sorge, dass dies die schöne Wand mit dem Kamin stört. Ansonsten stört mich an der Treppe, dass diese einen womöglich direkt erschlägt, wenn man die Haustür öffnet. Ich hoffe auf weitere Idee von euch. Vielen Dank!

Grundriss eines Hauses: Schlafzimmer, Ankleide, Galerie, zwei Kinderzimmer, Bad-WC, Treppe, Garage.


Grundriss eines Hauses mit Terrasse, Küche, Wohnen-Essen, Diele, Garage und Arbeiten.


Grundriss eines Hauses: Garage, Flur, Schlafen, Kind 1, Kind 2, Bad, Ankleide, Treppenhaus.


Grundriss eines Hauses mit Terrasse, Garage, Küche, Wohn-/Essbereich, Diele und Arbeitsbereich.
 
kaho674

kaho674

Schwer zu glauben, dass dies ein Architektenentwurf sein soll. Also ich glaub es nicht. Und die Beratungsresistenz führt dann offenbar dazu, dass kaum jemand an einer Diskussion interessiert ist.
 
Zuletzt aktualisiert 24.11.2025
Im Forum Grundrissplanung / Grundstücksplanung gibt es 2536 Themen mit insgesamt 88002 Beiträgen


Ähnliche Themen zu Grundriss / Außenansicht "Stadtvilla"
Nr.ErgebnisBeiträge
1 2 Vollgeschosse, Durchgang Garage, Hauswirtschaftsraum unter Treppe 25
2Grundriss Bungalow 150qm mit Garage - Seite 1379
3Zugang von der Garage in den Hauswirtschaftsraum - Seite 349
4Haus ohne Garage und Keller? Ausbau Dachboden? Fresswarze? - Seite 585
5Grundrissentwurf eines Passivhauses 170m² mit Garage - Seite 218
6Grundriss für Einfamilienhaus mit 200m² mit Einliegerwohnung 75 +Keller 140m² +Garage 56m² 59
7Grundriss. Meinungen, Ideen und konstruktive Kritiken. 24
8Treppe im Wohnzimmer als Hype - Pro & Contra? - Seite 426
9Tür Haus/Garage: Nebeneingangstür als Brandschutztür? - Seite 327
10Hörmann T30 Tür zwischen Wohnhaus & Garage - U-Wert - Seite 211
11Nebeneingangstür Garage / Haus, Hauswirtschaftsraum Garagenverordnung Niedersachsen - Seite 314
12Grundriss: Offenes Wohnzimmer inkl. Kamin - Feedback 11
13Treppe im Flur, Grundriss steht eigentlich schon :o( - Seite 320
14Grundrissfrage, Treppe, Fenster, Ausrichtung 12
15Grundriss Einfamilienhaus / Garage im EG? 10
16Grundrissfrage, Garage, Treppe 33
17Grundriss, längliches Einfamilienhaus, integrierte Garage kein Keller 16
18Grundriss Einfamilienhaus (ca. 170 qm) mit Garage - Hanglage 35
19Grundriss 140 m2 Einfamilienhaus mit Garage - Hausausrichtung ok? - Seite 218
20Grundriss: 150qm Einfamilienhaus+Einliegerwohnung - Carport / Garage + Schuppen / Werkstatt - Seite 745

Oben