Fehler beim zweiten Haus vermeiden: Hausbaufirma oder Architekt?

4,80 Stern(e) 13 Votes
Zuletzt aktualisiert 13.01.2026
Sie befinden sich auf der Seite 7 der Diskussion zum Thema: Fehler beim zweiten Haus vermeiden: Hausbaufirma oder Architekt?
>> Zum 1. Beitrag <<

11ant

11ant

Jemand schrieb in meinem Beitrag vor 4 Jahren, unser Allraum wäre zu klein - er ist immerhin 60qm. Beziehungsweise in diesem Allraum wäre zu wenig Platz. Zugleich habe ich aber auch schon oft wieder gelesen, unser Grundriss würde zu viel Platz verschwenden und das Ganze wäre auf viel weniger qm unterzubringen. Unser Allraum ist ein Rechteck - also kein L oder so etwas um die Ecke. Wäre das vielleicht die bessere Wahl gewesen? Kann man so mehr aus den qm rausholen
Man kann mehr aus Quadratmetern rausholen. Das hast Du ja bewiesen, indem Du das Gegenteil konsequent gemacht hast. Fettpolsterquadratmeter / Leerquadratmeter kosten voll und nützen nichts (die Tanzfläche dazu zu verwenden, im Schlafzimmer ein Home Office unterzubringen, einmal nicht als "Nutzen" gewertet). Einen Grundriss einfach nur aufzublasen oder aus dem Leim gehen zu lassen, erzeugt weder Platz noch Großzügigkeit. Das gilt für jede Form.
 
kbt09

kbt09

Heißt das jetzt, dass wir den Allraum noch größer machen sollen oder wie kann man ihn besser planen?
Für Antworten müsste man mal wissen, wie der Raum denn nun aktuell tatsächlich aussieht (incl. Möbeln) und welche Stellen euch besonders nerven.

Ich kann mir z. B. immer gut vorstellen den Sofa-/TV-Raum abzutrennen und durchaus "irgendwo" im EG zu haben. Und dafür Essen/Kochen großzügig zusammen an der Terrasse.
 
Y

ypg

Jemand schrieb in meinem Beitrag vor 4 Jahren, unser Allraum wäre zu klein - er ist immerhin 60qm.
Das hast Du falsch gelesen: derjenige, der das geschrieben hat, hat falsche Zahlen gelesen und seinen Lesefehler korrigiert!
Wenn Du hier schon Bezug auf Dein Haus nimmst, dann stelle hier bitte die Pläne ein. Nicht jeder hier ist bereit, über einige Ecken Deinen Grundriss zu suchen, wobei noch nicht einmal sicher ist, dass er auch so gebaut wurde.
Zur Allraumgröße: 60qm ist sehr großzügig! Allerdings: wenn man sich 5,45 in der Breite gönnt, dann muss man mit 11 Meter damit rechnen, dass es mit tiefer Küche und breitem Esstisch der Sofabereich zu kurz kommt.
L-Form ist nicht immer die Lösung: wie der Allraum geplant wird, hängt vom Grundstück ab.
Und dass Ihr die Garage nicht im Westen bauen sollt, sondern im Osten und sich somit einiges am Grundriss ändern sollt, auch das wurde geraten.
 
H

haydee

Die Qm sind nicht alles. Es gibt Maße die du einfach brauchst.
Küchenzeile ist 60 cm tief
Kücheninsel 100 oder gar 120 cm tief
Tisch 120x300 braucht 320x500 cm
Sofa hat Abmessung x
Schrankwand y
dazwischen noch Abstand

Du merkst doch jetzt wo es bei euch kneift.

Übrigens bei 4 Kindern würde ich das Wohnzimmer extra planen. Evtl kleiner und eine große Wohnküche.
 
WilderSueden

WilderSueden

Und abgesehen davon ist der Nutzen zusätzlicher Quadratmeter nicht linear. Man hat eben an einigen Stellen mehr und an anderen Stellen mehr Bedarf. Die Box vergrößert man aber auf der ganzen Breite/Tiefe. Und in großen Räumen erzeugt man sehr schnell tote Flächen. Abhängig vom Grundriss (ich habe mir den jetzt nicht angeschaut) kann man auch sehr viel Platz durch Laufwege verschwenden oder selbige minimieren.

Unsere 49qm könnte ich mir gut auch bei doppelter Familiengröße vorstellen. Würde ich den 1m tiefer machen, wäre der zusätzliche Flächengewinn kaum in nutzbare Fläche umzusetzen.
 
kbt09

kbt09

Und abgesehen davon ist der Nutzen zusätzlicher Quadratmeter nicht linear.
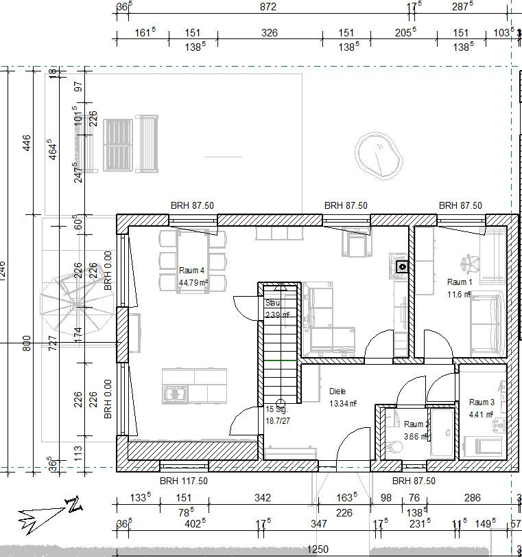
...ja, ich glaube, dass man z. B. mit einem Grundriss vom "Allraum" wie diesem

Grundriss eines Hauses: Offener Wohn-/Essbereich mit Küche, Diele, Treppe und Räume 1–4.


.. der Allraum hat ggü. 60 qm "nur" 45 qm nicht schlechter fahren würde. Weil auch hier z. B. Platz für einen mind. 120x300 cm großen Esstisch besteht .. im Zweifel mit Bank planoben.
 
Zuletzt aktualisiert 13.01.2026
Im Forum Bauplanung gibt es 5081 Themen mit insgesamt 100915 Beiträgen


Ähnliche Themen zu Fehler beim zweiten Haus vermeiden: Hausbaufirma oder Architekt?
Nr.ErgebnisBeiträge
1Einteilung Grundriss Allraum Küche Wohnen Essen 58
2Unser Grundriss-Entwurf für ein günstiges Haus - Seite 10348
3Erste Grundriss-Planung Einfamilienhaus 190m2 - Seite 1164
4Grundriss: Bitte um Meinungen Erdgeschosstwurf - Seite 214
5Grundriss Entwurf Einfamilienhaus mit 10% Südhang. Hauseingang Podesttreppe - Seite 954
6Grundriss für Familie. Hinweise, Kritik Verbesserungsvorschläge - Seite 222
7Meinungen zu Einfamilienhaus Grundriss 132 m² 16
8Grundriss-Planung: Bungalow ~130m² - Seite 458
9Grundriss Halboffene Küche mit großem Essbereich - Detailfragen - Seite 212
10Grundriss Einfamilienhaus Landhaus mit Garage - Seite 229
11Esstisch in einer kleinen Küche - Seite 349
12Grundriss für Einfamilienhaus statisch realistisch? - Seite 425
13Grundriss: Kritisches Feedback sehr erwünscht :) 36
14Unser Grundriss steht zur Diskussion - Seite 539
15Bodentiefe Fenster - wie Sofa stellen? 12
16Kubus Grundriss: letzte Tipps erwünscht 28
17Grundriss Einfamilienhaus - Feedback erwünscht - Seite 248
18Grundriss-Planung Einfamilienhaus mit rund 150 m² - Seite 54581
19Grundriss/Grundrissideen Einfamilienhaus 180m², 3 Kinderzimmer - Seite 346
20Grundriss Bungalow Planen, ca. 120 m² - Seite 15106

Oben