ᐅ Grundriss-Planung Einfamilienhaus mit rund 150 m²
Erstellt am: 12.02.18 18:09
Hallo,
nach langer Suche haben wir Ende Dezember den Notarvertrag über den Grundstückskauf unterschrieben. Nun sind wir fleißig am Grundriss planen. Das Grundstück ist leider etwas unglücklich (nicht rechteckig) geschnitten, so dass es (für uns) einige Einschränkungen bei der Grundrissplanung gibt. Wir haben schon einen ersten Entwurf, bei dem es aber noch diverse Stellen gibt, die uns nicht gefallen, wo wir aber auch nicht wissen, wie man diese verbessern kann. Vielleicht habt ihr Ideen, wir würden uns darüber freuen.
Bebauungsplan/Einschränkungen
Größe des Grundstücks: 601 m²
Baufenster, Baulinie und -grenze: Baulinie mit Haus im Westen
Randbebauung: 7m Abstand von der Straße (im Norden), sonst die üblichen 3m
Anzahl Stellplatz: 2 erwünscht
Geschossigkeit: 1 Vollgeschoss erlaubt
Dachform: Satteldach
Stilrichtung: offene Bauweise
Ausrichtung: Süden
Maximale Höhen/Begrenzungen: Firsthöhe Max. 8,5m
weitere Vorgaben: Max. 100 m² bebaute Fläche
Anforderungen der Bauherren
Stilrichtung, Dachform, Gebäudetyp: Massivhaus, rechteckig, keine Erker, Vorsprünge etc., Satteldach
Keller, Geschosse: kein Keller; 1,5 Geschosse
Anzahl der Personen, Alter: 2 Personen, Alter zwischen 30 und 40, eventuell später Kinder
Raumbedarf im EG, OG: EG Wohn-/Esszimmer, Küche, Gäste-WC, Hauswirtschaftsraum, Büro
Büro: Familiennutzung oder Homeoffice?: Familiennutzung
Schlafgäste pro Jahr: 20 Tage
offene oder geschlossene Architektur: offene Architektur Wohnbereich, geschlossener Flur
konservativ oder moderne Bauweise: konservativ
offene Küche, Kochinsel: offene Küche, Insel aber ohne Kochfeld
Anzahl Essplätze: 2-4
Kamin: ja, Schornstein geplant
Musik/Stereowand: nein
Balkon, Dachterrasse: nein
Garage, Carport: Carport
Nutzgarten, Treibhaus: nein
weitere Wünsche/Besonderheiten/Tagesablauf, gern auch Begründungen, warum dieses oder das nicht sein soll:
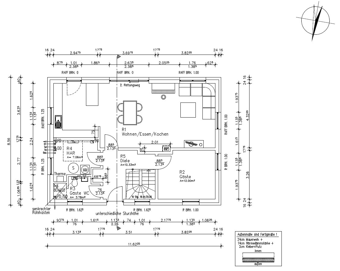
- wichtig ist uns im EG eine Garderobe, wo man die Jacken relativ unsichtbar verstauen kann.
- Im OG wäre es schön, einen offene Galerie zu haben mit Schreibtisch o.ä. (ist aber kein Muss, muss auch nicht neben der Treppe sein).
- Ankleideraum wäre schön, aber auch kein Muss.
- Sehr wichtig ist uns ein Abstellraum im OG, da wir keinen Keller haben.
Hausentwurf
Von wem stammt die Planung:
-Grundentwurf eines Hauses der Baufirma (FIBAV Stadthaus Vision Studio)
-Do-it-Yourself Anpassungen, anhand von Internetgrundrissen (besonders Viebrockhaus Maxime 330)
Was gefällt besonders? Warum?:
- Aufteilung des Wohn-/Essbereichs und der schmaler werdenden Küche, dadurch wird die Schlauchigkeit etwas genommen
- viele Fenster im Wohn-/Essbereich
- breiter Flur im EG
Was gefällt nicht? Warum?:
- wenig Stellmöglichkeiten für Möbel (Kommode, Garderobe) im Flur des EG, da sehr viele Türen abgehen
- sehr großer Flur im OG, viel Platzverschwendung
- Schlafzimmer recht klein, sollte größtes Zimmer im OG sein (möglichst 16 m², Kinderzimmer eher 14 m²)
- Einschränkung der Treppenplatzierung durch Schornstein
- Einschränkung der Türplatzierung im OG durch Schornstein
- um 90 Grad gedrehte Treppe (Aufgang direkt neben Eingangstür) würde uns besser gefallen
- Fenster im EG und OG an der Giebelseite schwierig übereinander zu bekommen
- bodentiefe Fenster im OG, besser würden uns breitere Fenster mit z.B. Brüstungshöhe 100 gefallen
Preisschätzung lt Architekt/Planer: 200.000€
Persönliches Preislimit fürs Haus, inkl Ausstattung: 210.000€
favorisierte Heiztechnik: Gasheizung
Wenn Ihr verzichten müsst, auf welche Details/Ausbauten
-könnt Ihr verzichten: Galerie neben Treppe im OG. Wohnbereich könnte auch schmaler sein (z.B. 4,20 m statt 4,47 m)
-könnt Ihr nicht verzichten: Abstellraum im OG, Dusche im Gäste-WC, zusätzlicher Lichteinfall im Flur EG (durch Seitenteil der Haustür, Fenster o.ä.)
Warum ist der Entwurf so geworden, wie er jetzt ist? ZB
Standardentwurf vom Planer?
- Da das Haus sehr wenig Platz im Süden hat, soll das Haus sehr schmal werden, um nicht noch mehr Platz im Süden zu verschwenden. Dafür soll es breiter sein, damit möglichst Wohn-Essbereich und Küche nach Süden zeigen.
Entsprechende/Welche Wünsche wurden vom Architekten umgesetzt?: Es gab noch kein Architektengespräch
Was ist die wichtigste/grundlegende Frage zum Grundriss in 130 Zeichen zusammengefasst?
Wie kann man den Flur im EG besser gestalten, so dass auch noch eine Garderobe reinpasst? Kann man die Treppe besser positionieren oder würde sich eine andere Treppe besser machen? Wäre es sinnvoll, dazu den Flur im EG zu vergrößern und den Wohnbereich zu verkleinern?
Wie kann man den Flur im OG besser ausnutzen? Kann man das Schlafzimmer vergrößern?
Kann man das Schlafzimmer mit einem anderen Zimmer tauschen, z.B. in den Südosten verlegen (dadurch eventuell mehr Möglichkeiten einer Ankleide)?
Vielen Dank schon im Voraus für Eure Kritik und Anregungen!



nach langer Suche haben wir Ende Dezember den Notarvertrag über den Grundstückskauf unterschrieben. Nun sind wir fleißig am Grundriss planen. Das Grundstück ist leider etwas unglücklich (nicht rechteckig) geschnitten, so dass es (für uns) einige Einschränkungen bei der Grundrissplanung gibt. Wir haben schon einen ersten Entwurf, bei dem es aber noch diverse Stellen gibt, die uns nicht gefallen, wo wir aber auch nicht wissen, wie man diese verbessern kann. Vielleicht habt ihr Ideen, wir würden uns darüber freuen.
Bebauungsplan/Einschränkungen
Größe des Grundstücks: 601 m²
Baufenster, Baulinie und -grenze: Baulinie mit Haus im Westen
Randbebauung: 7m Abstand von der Straße (im Norden), sonst die üblichen 3m
Anzahl Stellplatz: 2 erwünscht
Geschossigkeit: 1 Vollgeschoss erlaubt
Dachform: Satteldach
Stilrichtung: offene Bauweise
Ausrichtung: Süden
Maximale Höhen/Begrenzungen: Firsthöhe Max. 8,5m
weitere Vorgaben: Max. 100 m² bebaute Fläche
Anforderungen der Bauherren
Stilrichtung, Dachform, Gebäudetyp: Massivhaus, rechteckig, keine Erker, Vorsprünge etc., Satteldach
Keller, Geschosse: kein Keller; 1,5 Geschosse
Anzahl der Personen, Alter: 2 Personen, Alter zwischen 30 und 40, eventuell später Kinder
Raumbedarf im EG, OG: EG Wohn-/Esszimmer, Küche, Gäste-WC, Hauswirtschaftsraum, Büro
Büro: Familiennutzung oder Homeoffice?: Familiennutzung
Schlafgäste pro Jahr: 20 Tage
offene oder geschlossene Architektur: offene Architektur Wohnbereich, geschlossener Flur
konservativ oder moderne Bauweise: konservativ
offene Küche, Kochinsel: offene Küche, Insel aber ohne Kochfeld
Anzahl Essplätze: 2-4
Kamin: ja, Schornstein geplant
Musik/Stereowand: nein
Balkon, Dachterrasse: nein
Garage, Carport: Carport
Nutzgarten, Treibhaus: nein
weitere Wünsche/Besonderheiten/Tagesablauf, gern auch Begründungen, warum dieses oder das nicht sein soll:
- wichtig ist uns im EG eine Garderobe, wo man die Jacken relativ unsichtbar verstauen kann.
- Im OG wäre es schön, einen offene Galerie zu haben mit Schreibtisch o.ä. (ist aber kein Muss, muss auch nicht neben der Treppe sein).
- Ankleideraum wäre schön, aber auch kein Muss.
- Sehr wichtig ist uns ein Abstellraum im OG, da wir keinen Keller haben.
Hausentwurf
Von wem stammt die Planung:
-Grundentwurf eines Hauses der Baufirma (FIBAV Stadthaus Vision Studio)
-Do-it-Yourself Anpassungen, anhand von Internetgrundrissen (besonders Viebrockhaus Maxime 330)
Was gefällt besonders? Warum?:
- Aufteilung des Wohn-/Essbereichs und der schmaler werdenden Küche, dadurch wird die Schlauchigkeit etwas genommen
- viele Fenster im Wohn-/Essbereich
- breiter Flur im EG
Was gefällt nicht? Warum?:
- wenig Stellmöglichkeiten für Möbel (Kommode, Garderobe) im Flur des EG, da sehr viele Türen abgehen
- sehr großer Flur im OG, viel Platzverschwendung
- Schlafzimmer recht klein, sollte größtes Zimmer im OG sein (möglichst 16 m², Kinderzimmer eher 14 m²)
- Einschränkung der Treppenplatzierung durch Schornstein
- Einschränkung der Türplatzierung im OG durch Schornstein
- um 90 Grad gedrehte Treppe (Aufgang direkt neben Eingangstür) würde uns besser gefallen
- Fenster im EG und OG an der Giebelseite schwierig übereinander zu bekommen
- bodentiefe Fenster im OG, besser würden uns breitere Fenster mit z.B. Brüstungshöhe 100 gefallen
Preisschätzung lt Architekt/Planer: 200.000€
Persönliches Preislimit fürs Haus, inkl Ausstattung: 210.000€
favorisierte Heiztechnik: Gasheizung
Wenn Ihr verzichten müsst, auf welche Details/Ausbauten
-könnt Ihr verzichten: Galerie neben Treppe im OG. Wohnbereich könnte auch schmaler sein (z.B. 4,20 m statt 4,47 m)
-könnt Ihr nicht verzichten: Abstellraum im OG, Dusche im Gäste-WC, zusätzlicher Lichteinfall im Flur EG (durch Seitenteil der Haustür, Fenster o.ä.)
Warum ist der Entwurf so geworden, wie er jetzt ist? ZB
Standardentwurf vom Planer?
- Da das Haus sehr wenig Platz im Süden hat, soll das Haus sehr schmal werden, um nicht noch mehr Platz im Süden zu verschwenden. Dafür soll es breiter sein, damit möglichst Wohn-Essbereich und Küche nach Süden zeigen.
Entsprechende/Welche Wünsche wurden vom Architekten umgesetzt?: Es gab noch kein Architektengespräch
Was ist die wichtigste/grundlegende Frage zum Grundriss in 130 Zeichen zusammengefasst?
Wie kann man den Flur im EG besser gestalten, so dass auch noch eine Garderobe reinpasst? Kann man die Treppe besser positionieren oder würde sich eine andere Treppe besser machen? Wäre es sinnvoll, dazu den Flur im EG zu vergrößern und den Wohnbereich zu verkleinern?
Wie kann man den Flur im OG besser ausnutzen? Kann man das Schlafzimmer vergrößern?
Kann man das Schlafzimmer mit einem anderen Zimmer tauschen, z.B. in den Südosten verlegen (dadurch eventuell mehr Möglichkeiten einer Ankleide)?
Vielen Dank schon im Voraus für Eure Kritik und Anregungen!
200.000 klingt sehr sportlich, 210.000 inkl Baunebenkosten funktioniert nicht.
Bitte zeichnet eure vorhandene bzw. gewünschte Möblierung ein.
WC zu schmal.
Garderobe fehlt. Gerade mit Kindern kommt man mit 2 Hacken nicht weit.
Ist der Abstellraum als Hauswirtschaftsraum gedacht?
Der Haustechnikraum ist klein für Haustechnik, Vorräte und Wäsche
Bitte zeichnet eure vorhandene bzw. gewünschte Möblierung ein.
WC zu schmal.
Garderobe fehlt. Gerade mit Kindern kommt man mit 2 Hacken nicht weit.
Ist der Abstellraum als Hauswirtschaftsraum gedacht?
Der Haustechnikraum ist klein für Haustechnik, Vorräte und Wäsche
Mit Detailfragen halte ich mich mal gar nicht erst auf - mir gefällt da nämlich etwas sehr wesentliches nicht: ich sehe weite Übereinstimmungen zwischen dem Fibav Stadthaus Vision Studio und dem Viebrockhaus Maxime 330, aber annähernd garkeine Übereinstimmungen zwischen diesen Entwürfen und Euren Wünschen.
Viele Räume hättet Ihr gerne an anderen Positionen und/oder anders geschnitten, die Treppe anders orientiert und so weiter. Streng genommen erscheint mir die geringe Haustiefe schon die ganze Schnittmenge zwischen diesen Grundentwürfen und Euren Wünschen zu sein.
Es drängt sich die Vermutung auf, ihr trautet Euch gar nicht an eigene Grundrissversuche heran und hättet einfach nach Mustergrundrissen unter 9 m Haustiefe gesucht.
Kann der "Schuppen I" stehen bleiben und Kellerersatzraum spielen ?
Soll der eingezeichnete Umriss auf dem Grundstück das geplante Haus darstellen, oder ein abgebrochenes Vorgängergebäude ?
https://www.instagram.com/11antgmxde/
https://www.linkedin.com/company/bauen-jetzt/
Viele Räume hättet Ihr gerne an anderen Positionen und/oder anders geschnitten, die Treppe anders orientiert und so weiter. Streng genommen erscheint mir die geringe Haustiefe schon die ganze Schnittmenge zwischen diesen Grundentwürfen und Euren Wünschen zu sein.
Es drängt sich die Vermutung auf, ihr trautet Euch gar nicht an eigene Grundrissversuche heran und hättet einfach nach Mustergrundrissen unter 9 m Haustiefe gesucht.
Kann der "Schuppen I" stehen bleiben und Kellerersatzraum spielen ?
Soll der eingezeichnete Umriss auf dem Grundstück das geplante Haus darstellen, oder ein abgebrochenes Vorgängergebäude ?
https://www.instagram.com/11antgmxde/
https://www.linkedin.com/company/bauen-jetzt/
kaho674 schrieb:
Mmh, das ganze sieht mir so lieblos aus. Wie mal eben schnell hin gewurstelt.
Welche Kniestockhöhe habt Ihr vorgesehen? 200 Riesen scheint mir sehr sportlich.Kniestockhöhe soll entweder 1,25m oder 1,375 sein, da sind wir uns noch nicht so sicher. Durch das Pfettendach wird das dann auch ca. die tatsächliche Höhe ab Oberkante Fertigfußboden.
Wir haben schon den Hausvertrag unterschrieben für knapp unter 200.000€, da sind auch schon sehr viele Extras drin wie Schornstein, der hohe Kniestock, großes Elektropaket, elektrische Aluminium-Rollläden an allen Fenstern etc.
Ähnliche Themen