Grundriss Einfamilienhaus Landhaus mit Garage

4,80 Stern(e) 4 Votes
Zuletzt aktualisiert 18.11.2025
Sie befinden sich auf der Seite 2 der Diskussion zum Thema: Grundriss Einfamilienhaus Landhaus mit Garage
>> Zum 1. Beitrag <<

S

sunny84

Hi zusammen,

ich hatte vorhin nicht viel Zeit, weshalb ich euch gerne noch mal kurz in unsere Gedanken und die Rahmenbedingungen zum Grundriss einweihen möchte. Der Einfachheit halber kurz und knackig in Stichpunkten
  • wir bauen mit Heinz von Heiden und nicht mit einem Architekten
  • wir haben den Grundriss vom Haus genommen und selbst verändert, um gemeinsam mit dem Vertriebler die Machbarkeiten zu bestimmen
  • uns ist viel Platz im Wohn / Ess-Bereich wichtig, da es den Lebensmittelpunkt darstellt und wir nicht ständig Stühle rücken wollen
  • wir planen im WZ eine große U-Couch und einen großen esstisch, dann bleibt auch nicht mehr so viel im WZ übrig und Gemütlichkeit hat nichts mit der Größe zu tun
  • der Terrassengiebel zieht sich bis ins OG, so dass oben im Schlafzimmer gerade Wände entstehen. Außerdem finden wir den sehr schick, vor allem was das äußere Erscheinungsbild vom Haus angeht
  • der Kamin ist noch nicht final positioniert, vermutlich wandert der noch mehr in Richtung WZ-Türe
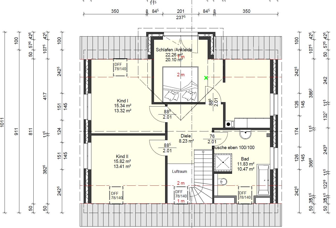
zum OG
  • Das Schlafzimmer ist im Terrassengiebel, welche keine Schrägen Wände hat. Die Fenster sind bodentief und die Decke ist bis in den Giebel vom Terrassengiebel offen
  • uns war wichtig, den Terrassengiebel nicht zu halbieren und in zwei daraus entstehenden Zimmer so eine Nische zu bekommen
  • Neben dem Schlafzimmer wo lediglich das Bett und zwei Nachttische hinein sollen (kein Blick auf einen schrank), grenzt der Ankleidebereich an
  • die beiden Kinderzimmer sollten gleichgroß, nicht zu klein und gleich ausgestattet sein, damit es später keinen Streit gibt
  • die Galerie mit Luftraum ist offen und ein kleines highlight für uns, weil wir das schon immer wollten
Insgesamt sind wir immer offen für Ideen oder Verbesserungsvorschläge, da das Planungsgespräch mit dem Architekten, wo dann alles final entschieden wird, noch bevorsteht. Was sind eure Erfahrungen, habt ihr eventuell ähnliche Grundrisse?

Im Anhang noch eine Skizze vom Haus auf unserem Grundstück, dem Schuppen, Carport und anskizzierter Terrasse.

Ach ja und hier die Fragen zur Fred-Erstellung

Anforderungen der Bauherren
  • Satteldach, 45°
  • 1,5 Geschosser, kein Keller
  • 4 Personen, 2 Erwachsene, Kleinkind, ein Baby
  • Schlafgäste pro Jahr, vielleicht mal 2-3 Wochenenden die Familie
  • eher offene Architektur, zumindest im EG
  • Bauweise: Landhaus meets modern
  • offene Küche, vermutlich in G-Form
  • Essplätze: mindestens 6 am Esstisch
  • Kamin: ja
  • Garage / Carport: Ja, später
  • Kein: Balkon, keine Stereowand, Treibhaus
Hausentwurf
  • siehe oben
  • Heizung: Luftwärmepumpe, Fußbodenheizung in allen Räumen
Wenn Ihr verzichten müsst, auf welche Details/Ausbauten
  • könnt Ihr verzichten: kleine, dunkle Räume
  • könnt Ihr nicht verzichten: Großzügigkeit, viel Licht, offenes Wohngefühl,

Vielen Dank

Grundriss eines Hauses mit Garten, Terrasse, Zufahrt und Garage mit zwei Autos.
 
L

Legurit

Das ja schön - aber im Erker steht weder die U-Couch noch der große Esstisch - seh schon, dass werden die großzügigen obligatorischen 15 m² Freifläche, für den schönen Teppich von Oma..
Wieso braucht ihr im Schlafzimmer grade Wände? Eure Schränke stehen ironischerweise nebenan - da hats wieder Schrägen - eingezeichnet sind 2 Schrankmeter...
Das Bett ist so keine Option - das passt nicht. Bekommt ihr Rollläden? Das Schlafzimmer wird sich sonst im Sommer sehr aufheizen. Weiß auch nicht, ob ihr wirklich immer den Panorama-Blick zu euch ins Schlafzimmer haben wollt.
Position der Dusche bzw. das ganze Bad im OG haut mich nicht vom Hocker.

Generell ein Musterhaus, aber mit eingebauten Mängeln - denke das geht besser.
 
Y

ypg

Hmm... Fakt ist, dass man bei diesem BU nicht gerade alles nach Belieben ändern kann.
Treppe darf man spiegeln, auch Gäste-Toilette mit dem Hauswirtschaftsraum tauschen.
Treppe wird im Standard immer im Eingangsbereich sein... Garderobe darunter.

Der Wohnbereich ist gerade mal 4 Meter breit, aber 10 Meter lang. Da braucht es schon etwas Fingerspitzengefühl, dem Raum Gemütlichkeit einzuhauchen. Mit insg. 57qm auch reichlich Lebensbereichfläche, aber wahrscheinlich nur in der Mitte ein leerer Raum, wo keine Kinder,- bastle oder Hobyecke eingerichtet werden kann, da dann zu präsent im Haus.

Verstehen tue ich nicht, wie man ein Big Sofa vor einem Fenster (Bodenfenster) platziert, welches man zum Fernsehen immer abschatten muss, ggf mit Rollläden. Dieser wird irgendwann nur noch unten sein. Besser wäre es, das Terrassenfenster in den Westen zu verlegen. Vorteil: Westsonne im Raum, Ausgang zum Westgarten und eine individuellere Raumstruktur.

Wo sollen denn die Gäste schlafen? Im einen von den Kinderzimmern?

Wie schon gesagt: meine Nachbarn haben dieses Haus (ohne Erker und Gaube), sie kommen zu dritt klar... es ist halt eine Kostenfrage, wenn man sich für diesen BU entscheidet.
Mir persönlich gefallen die Standards nicht, und auch an der flexiblen freien Raumgestaltung hapert's. Für mich zu einschneidend.
Aber es bedeutet nicht, dass jemand aus einer engen Wohnung mit den Grundrissen nicht klar kommen könnte

Und wenn ich mich hier wiederhole: aus der Fläche kann man sicher etwas besseres zaubern - aber nicht mit diesem BU.

Was ist denn das für ein Weg im Westen? Das Grundstück sieht an sich ganz schön aus
 
M

Manu1976

Wir hatten in unserem alten Haus einen ganz ähnlichen Grundriss wie euren, mit einem Fertighaushersteller gehabt. Und ich muss so ziemlich in allen Punkten den anderen zustimmen. Dieser Erkerbereich hat uns irgendwann nur noch genervt. Zuerst war er Spielecke für die Kinder. Prima für die Kids, frustrierend für die Eltern, da das Wohnzimmer nimmer wie ein Wohnzimmer ausgesehen hat, sondern eben wie ein Spielzimmer. Also alle Spielsachen weggeräumt. Aber was dann in den Erker? Keine Ahnung. Der war immer leer. Mal stand ein Sessel drin, mal ne Pflanze, aber irgendwie haben wir nie das Optimum gefunden. Unser neues Wohnzimmer ist ca. 20m2 kleiner und wir vermissen nichts.

Das Bett im OG geht so gar nicht. Für was braucht ihr die Riesen Glasfront im Schlafzimmer? Nachts ist es dunkel und im Sommer habt ihr wahrscheinlich eh die Rollläden unten. Und tagsüber hält man sich eher selten im Schlafzimmer auf. Wir hatten auch an dieser Stelle das Schlafzimmer, aber mit normalen Fenster. Im Nachhinein, hätten wir eher Ankleide und Schlafzimmer getauscht, da gerade Wände in der Ankleide mehr Sinn machen.
Was mir noch auffällt, wenn du die Tür im Schlafzimmer aufmachst, musst du aufpassen, dass du dir nicht den Kopf anrennst. Schau mal wo die 2m -Linie verläuft und wie du auf die andere Seite vom Bett kommst.

Der Luftraum ist auch Unsinn. Das wird nicht so aussehen, wie ihr euch das vorstellt. Der geht ja noch nicht mal über die komplette Haustürbreite oder gerade mal so. Das wird aussehen, wie wenn man will - aber nicht kann.

Wo soll denn in Kind2 der Kleiderschrank hin? An der geraden Seite, ist auf einer Seite das Fenster und auf der anderen Seite die Eingangstür, die man auch nicht viel weiter verschieben kann, da da dann der unnötige Luftraum ist.
 
kbt09

kbt09

Wie Manu es schon geschrieben hat, und was ich eben auch meinte, ist die Position, wo ich jetzt das X hingesetzt habe. Da wird nämlich schon Schräge sein.

Grundriss Dachgeschoss: Schlafen/Ankleide, 2 Kinderzimmer, Diele, Bad, Dusche, Treppenaufgang
 
S

sunny84

Vielen Dank für die viele Resonanz. Wir hätten uns wahrscheinlich positiveres Feedback erhofft, aber wir können ja noch dran arbeiten

Gerade im OG sind wir für Änderungen offen. Mit dem EG sind wir so schon ganz zufrieden, evt haben wir uns überlegt noch eine kleine halbhohe Wand im Wohnbereich zu setzen, um die TV Ecke etwas räumlich zu trennen.

Wir können mit Heinz von Heiden auch größere Grundrissänderungen vornehmen, wir haben nämlich ein extra Statik- Paket dazugenommen und damit können wir alle Wände versetzen. Die gerade Treppe wollten wir erst mal nach Möglichkeit behalten und an dem Giebel halten wir auch fest

Nun müssten wir einen passenderen Grundriss im OG finden. Überlegt haben wir uns das Bad in den Giebel zu versetzen, also quasi das Bad und das Schlafzimmer zu tauschen. Dann dafür kleine Fenster im Giebel zu planen. Was denkt ihr dazu? Oder habt ihr Ideen für einen komplett anderen Grundriss im OG?
 
Zuletzt aktualisiert 18.11.2025
Im Forum Grundrissplanung / Grundstücksplanung gibt es 2536 Themen mit insgesamt 87970 Beiträgen


Ähnliche Themen zu Grundriss Einfamilienhaus Landhaus mit Garage
Nr.ErgebnisBeiträge
1Heinz von Heiden Erfahrungsbericht 2015-2016 Bungalow BW - Seite 29402
2Grundriss Schlafzimmer, Ankleide und Bad en Suite 36
3Grundriss Planung passt? - Vom Bungalow zum 2-geschossigen Einfamilienhaus - Seite 328
4Erfahrung mit Heinz von Heiden? - Seite 343
5Angebot Heinz von Heiden realistisch? - Seite 6194
6Heinz von Heiden Erfahrungen, Heinz von Heiden Preise - Seite 354
7Heinz von Heiden Option "Zahlen bei Hausübergabe" Erfahrungen? - Seite 798
8Grundstück Einfamilienhaus C630 Heinz von Heiden am Standort Sachsen 64
9Heinz von Heiden Einfamilienhaus, Stadtvilla 155 m2, BW 11
10Bungalow 135qm: Grundriss + Fenster - Seite 7104
11Grundriss 185qm Stadtvilla Tipps 22
12Meinung zum Grundriss eines geplanten Bauhauses 23
13Einfamilienhaus ohne Keller - Diskussion Grundriss 19
14Selbsterstellter Grundriss - Meinungen und Feedback erwünscht - Seite 346
15Ideensammlung Grundriss Einfamilienhaus, Bauweise offen - Seite 443
16Grundriss Stadtvilla mit Walmdach ca. 170 qm - Seite 561
17Stadtvilla Grundriss 185m² - Bitte um Feedback! - Seite 8155
18Grundriss-Entwurf Erfahrungen - Kritik? - Seite 13166
19Meinungen zum Grundriss EG - Seite 210
20Grundriss Einfamilienhaus ~165m² plus Keller - Seite 8165

Oben