ᐅ Erster, eigener Grundriss Einfamilienhaus - Anregungen gesucht
Erstellt am: 22.08.17 18:05
Hallo zusammen,
wir haben vor kurzem ein Grundstück erworben und sind aktuell in den ersten Planungen für unser zukünftiges Eigenheim. Hierfür versuchen wir aktuell selbst, mit ein wenig Erfahrung (Schwager beginnt aktuell zu bauen), einen ersten Entwurf zu gestalten, bevor wir zu einem Architekten bzw. General-/Bauunternehmen gehen wollen.
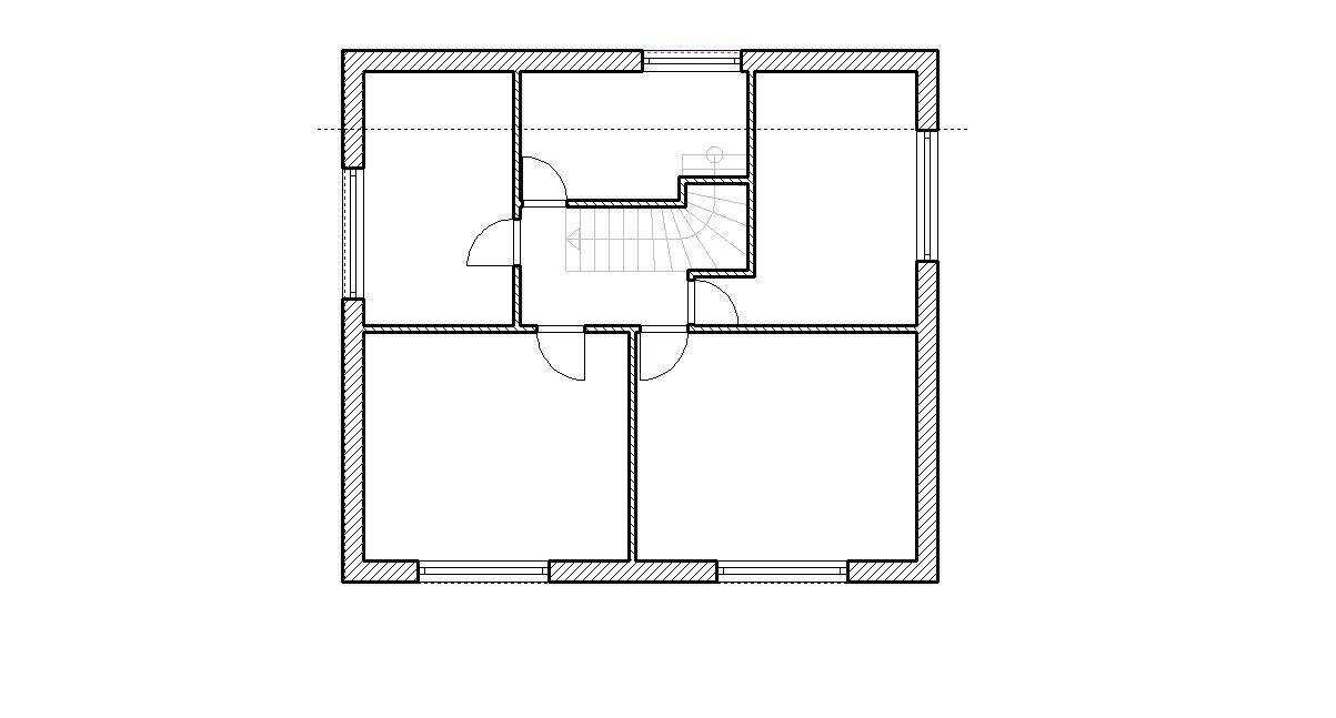
Geplant ist ein KFW 55 Haus inkl. Photovoltaik (ca. 4-5 KW) mit ca. 150-170 m2 Wohnfläche. Geplant sind im EG ein großer Wohn/Essbereich, ein Gästezimmer so wie ein WC mit Dusche. Im OG sollen 3 Kinderzimmer sowie 1 Elternschlafzimmer und ein Bad mit Wanne entstehen. Das Haus soll einen Keller erhalten, hierzu haben wir uns vom Grundriss jedoch noch keine Gedanken gemacht. Die Garage/Carport soll im Norden Richtung Osten ausgeführt werden.
Folgende offene Fragen haben sich bei unserer Planung noch ergeben:
1) Treppe
2) Dachform
Vielen Dank bereits im Voraus!


wir haben vor kurzem ein Grundstück erworben und sind aktuell in den ersten Planungen für unser zukünftiges Eigenheim. Hierfür versuchen wir aktuell selbst, mit ein wenig Erfahrung (Schwager beginnt aktuell zu bauen), einen ersten Entwurf zu gestalten, bevor wir zu einem Architekten bzw. General-/Bauunternehmen gehen wollen.
Geplant ist ein KFW 55 Haus inkl. Photovoltaik (ca. 4-5 KW) mit ca. 150-170 m2 Wohnfläche. Geplant sind im EG ein großer Wohn/Essbereich, ein Gästezimmer so wie ein WC mit Dusche. Im OG sollen 3 Kinderzimmer sowie 1 Elternschlafzimmer und ein Bad mit Wanne entstehen. Das Haus soll einen Keller erhalten, hierzu haben wir uns vom Grundriss jedoch noch keine Gedanken gemacht. Die Garage/Carport soll im Norden Richtung Osten ausgeführt werden.
Folgende offene Fragen haben sich bei unserer Planung noch ergeben:
1) Treppe
- Treppe in L-Form die richtige Wahl?
- Wie ist eine Treppe optimal zu gestalten, so dass nicht zu viel Platz verschwendet wird, aber auch das Begehen noch angenehm ist. Der goldene Mittelweg wird also gesucht.
- Gibt es hier Erfahrungen bzgl. Breite, Höhe, Überstand der Stufen?
- Gibt es Standard-Maße von Fertigbetontreppen auf welche man achten sollte?
2) Dachform
- Welche Dachform ist aus den Gesichtspunkten Energie (Photovoltaik), Kosten, Raumgefühl die beste Wahl? Nachfolgend unsere Schlussfolgerungen.
- Variante Walmdach - Vorteil: keine Schrägen, Kostengünstig, kann als Kaltdach ausgeführt werden; Nachteil: Niedriger Neigungswinkel bzw. Fläche für Photovoltaik
- Variante Satteldach Synchron (ca. 30° Neigung) - Vorteil: Günstig für Photovoltaik; Nachteil: Aus Kostengründen evtl. nur mit Dachschrägen auf beiden Seiten zu realisieren, große Dachfläche welche kaum genutzt wird falls ohne Schrägen geplant werden sollte
- Variante Satteldach Asynchron (ca. 30° / 22° Neigung) - Vorteil: Günstig für Photovoltaik, Dachschrägen nur auf einer Seite (schlechtere Seite bzgl. Ausrichtung/Lage), Mittelweg zwischen Kosten und Dachbodenfläche; Nachteil: Dachschrägen auf einer Seite, Optik
Vielen Dank bereits im Voraus!
Tobi F. schrieb:
Variante Walmdach - Vorteil: keine Schrägen, Kostengünstig,"Keine Schrägen" verstehe ich nicht. Kostengünstig ist das Walmdach höchstens ggü. dem Krüppelwalmdach, aber ggü. dem Satteldach gewiß nicht.Tobi F. schrieb:
Variante Satteldach Synchron (ca. 30° Neigung)Mit "synchron" meinst Du "Dachneigung kongruent mit Idealneigung Photovoltaik-Elemente" ?Tobi F. schrieb:
Gibt es hier Erfahrungen bzgl. Breite, Höhe, Überstand der Stufen?Kuckmada: https://www.hausbau-forum.de/threads/grundrissplanung-unbedingt-vor-beitrag-erstellung-lesen.11714/ - da steht vor der Einführung in das Thema Treppen auch der hier gern ausgefüllt gesehene Fragebogen.https://www.instagram.com/11antgmxde/
https://www.linkedin.com/company/bauen-jetzt/
Curly schrieb:
den Grundriss würde ich vergessen und nochmal von vorne beginnen.Was müßte ich rauchen, um da überhaupt etwas zu interpretieren ?https://www.instagram.com/11antgmxde/
https://www.linkedin.com/company/bauen-jetzt/
11ant schrieb:
Was müßte ich rauchen, um da überhaupt etwas zu interpretieren ?Da brauchst Du nichts zu rauchen - sie meint sicherlich das Nadelöhr in Richtung Allraum [emoji2]
Ähnliche Themen