Einfamilienhaus ohne Keller am Hang

4,90 Stern(e) 16 Votes
Zuletzt aktualisiert 19.11.2025
Sie befinden sich auf der Seite 11 der Diskussion zum Thema: Einfamilienhaus ohne Keller am Hang
>> Zum 1. Beitrag <<

M

Müllerin

Scheint mir hier vergebene Liebesmüh zu sein.
Infos werden in 1-3 Sätzen aus der Nase gezogen, zu guten Vorschlägen kommt gar nix.
Da scheint ein festes Hausbild im Kopf zu sein, an das auf Biegen und Brechen rangekommen werden soll.
Mit unendlichem Konto sicher machbar aber auch nicht sinnvoll.
 
I

icandoit

Scheint mir hier vergebene Liebesmüh zu sein.
Infos werden in 1-3 Sätzen aus der Nase gezogen, zu guten Vorschlägen kommt gar nix.
Da scheint ein festes Hausbild im Kopf zu sein, an das auf Biegen und Brechen rangekommen werden soll.
Mit unendlichem Konto sicher machbar aber auch nicht sinnvoll.
Leider treffen so Fragen oft erst zu spaet hier auf. Hoffentlich lernt man nun daraus.
 
A

Andyru94

Dann hast aber ein 2,5 Haus ist das im Budget? Stell mal die Grundrisse von dem Haus ein.

Hast Du meinen Vorschlag mal angeschaut? Der ist deutlich besser auf Dein Grundstück zugeschnitten. Garage im Sueden des UG macht keinen Sinn. So wenig Fenster Richtung SuedWesten ebenso nicht.

Stell mal die Bedingungen des Bebauungsplan ein. Darf die Garage an die Grenze?
Ja das Haus wird aufjedenfall noch angepasst und da wir dann alles kleiner machen müsste es auch noch im Budget liegen. Die Garage machen wir entweder auf die linke Seite oder auch neben das Haus auf der linken Seite und evtl. An die Grenze zum Nachbarn wenn das funktionieren sollte. Die Wohn und Schlafräume versuchen wir soweit es geht Südlich auszurichten und das Haus soweit es geht nach hinten zu setzen um den Hang vor allem auf der linken Seite abzufangen.
Dein Grundriss gefällt mir auch ziemlich gut, ich muss dann halt mal überlegen wie wir das am besten umsetzen.
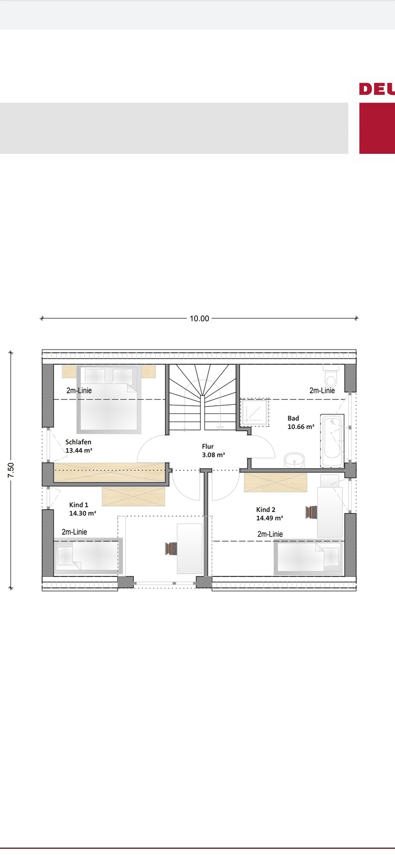
Im Anhang noch die Grundrisse.

Grundriss Untergeschoss eines Einfamilienhauses: Garage, Diele, Keller, HWR, Arbeiten


Grundriss Erdgeschoss eines Einfamilienhauses mit Wohn-/Essbereich, Küche, Arbeitszimmer, WC und Terrasse.


Grundriss eines Obergeschosses mit Treppenaufgang, Schlafen, zwei Kinderzimmer, Bad und Flur.
 
I

icandoit

Ich muss halt den Verlust von dem Geld was wir in die Planung gesteckt haben jetzt hinnehmen. (Lehrgeld) :/
Fuer den Murks gibt es kein Geld. Architekt hat seine Aufgabe nicht erfuellt. Vermutlich hast aber keine Chance, da Du die Planung fuer den Bauantrag freigegeben hast.

Umplanen. Sollte nicht so teuer werden. Richtet sich eh an den Baukosten. Die werden ja erheblich guenstiger.

Hast denn meinen Entwurf mal angeschaut? Der ist viel effektiver als der von Dir gezeigte. Der Neue von Dir ergibt im Uebrigen keinen Sinn auf dem Grundstück.

Meine Idee ist das UG /Keller als Wohngeschoss auszufuehren.
 
Zuletzt bearbeitet:
Zuletzt aktualisiert 19.11.2025
Im Forum Bauplanung gibt es 5070 Themen mit insgesamt 100807 Beiträgen


Ähnliche Themen zu Einfamilienhaus ohne Keller am Hang
Nr.ErgebnisBeiträge
1Meinungen zum Grundstück am Hang. - Seite 222
2Grundstück am Hang; Aufschüttung- Abfangung- Kosten? 10
3Feedback Vorentwurf Hang KG/KG/EG/DG mit Einliegerwohnung - Seite 218
4Grundrissplanung für Zweifamilienhaus im Hang - Seite 9246
5Wann ist ein Hang ein Hang? Keller vs. Bodenplatte 19
6Grundrissplanung Einfamilienhaus 280m² am Hang - Seite 335
7Hang mit Stützmauer auffangen - Höhenangabe 12
8Haus am Hang - ca. 200qm Wohnfläche 40
9Wie Hang sichern und Aufgang Garten kostengünstig gestalten? 27
10Leichte Hanglage - Aufschütten oder mit Hang bauen? 44
11Grundrissplanung Einfamilienhaus (Stadtvilla 140qm²) am Hang mit Doppelgarage - Seite 2495
12Doppelhaushälfte am Hang mit Keller Grundriss suche. 17
13Grundriss für Haus am Hang (EG und Wohn-UG) mit Max. 150m² 58
14Einfamilienhaus mit Garage am leichten Hang 17
15Haus am Hang mit 2 Einliegerwohnungen - Seite 551
16Kurvengrundstück, Einfamilienhaus 50m², Hang, Garagenoptimierung 41
17Steiles Hang Grundstück, Bitte um Einschätzung 17
18Hang abstützen und auffüllen - Mehrkosten? - Seite 231
19Außenanlage, Hang zum Nachbarn, wie rahmen ? 22
20Grundrissplanung einer Stadtvilla mit Staffelgeschoss am Hang 13

Oben