Einfamilienhaus ca. 160 qm Flachdach - Optimierung / Planung

4,50 Stern(e) 6 Votes
Zuletzt aktualisiert 23.11.2025
Sie befinden sich auf der Seite 12 der Diskussion zum Thema: Einfamilienhaus ca. 160 qm Flachdach - Optimierung / Planung
>> Zum 1. Beitrag <<

M

mmmmbau

Nein, habe ich nicht gemacht! Also nicht einfach einen Raum dran geklebt...

Und sorry, aber was soll ich als Fragender mit dem letzten Satz anfangen....?
 
W

Würfel*

Weil Du dich ja in dem anderen Thread "beschwerst", das wenig konkrete Verbesserungsvorschläge kommen, habe ich deinen Grundriss mal leicht überarbeitet. Insgesamt gefällt mir deine zweite Version schon viel besser, mich stört nur immer noch dieser Vorsprung (auch wenn er jetzt im Süden sitzt) und der fehlende Platz oben in der Ankleide.

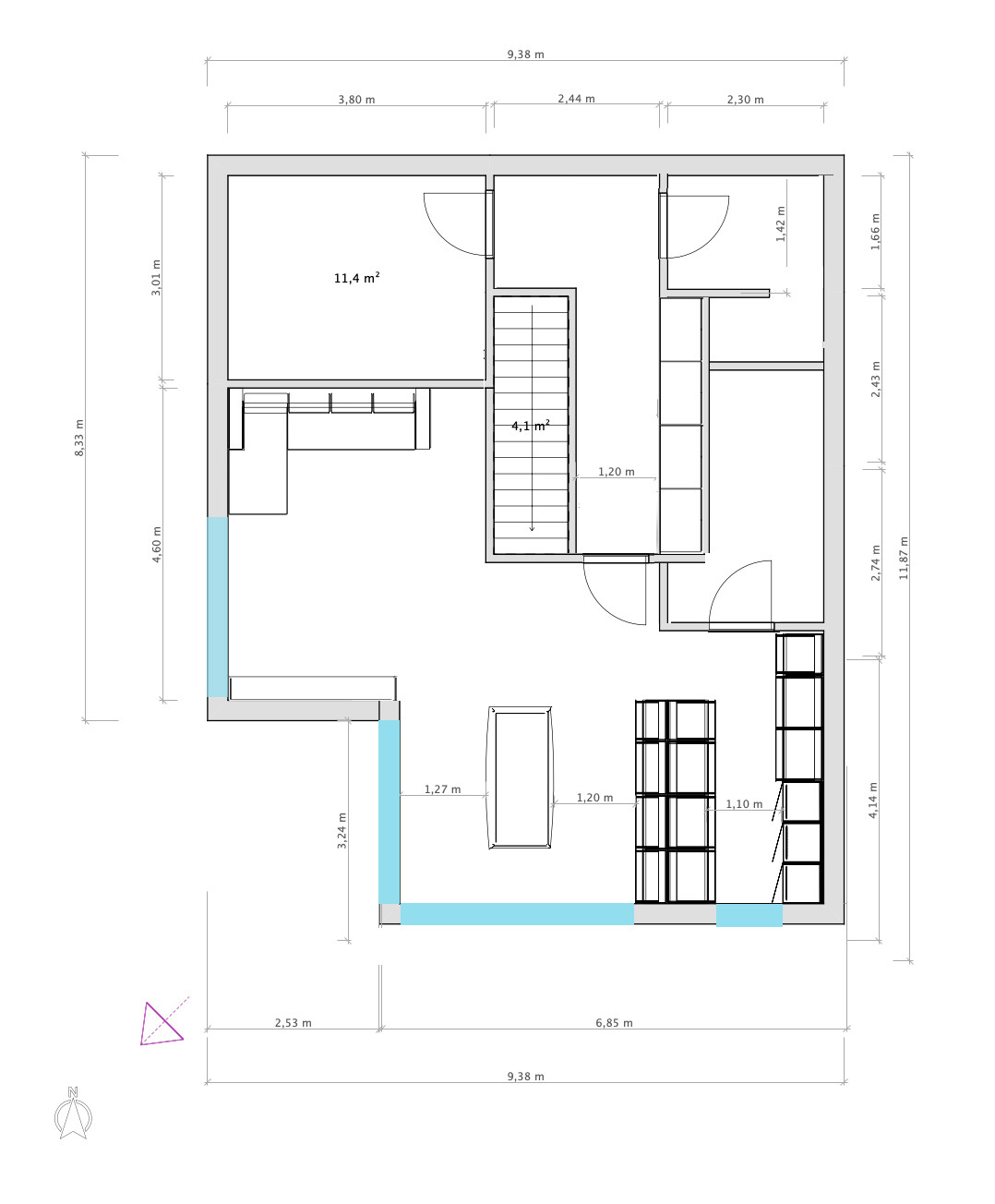
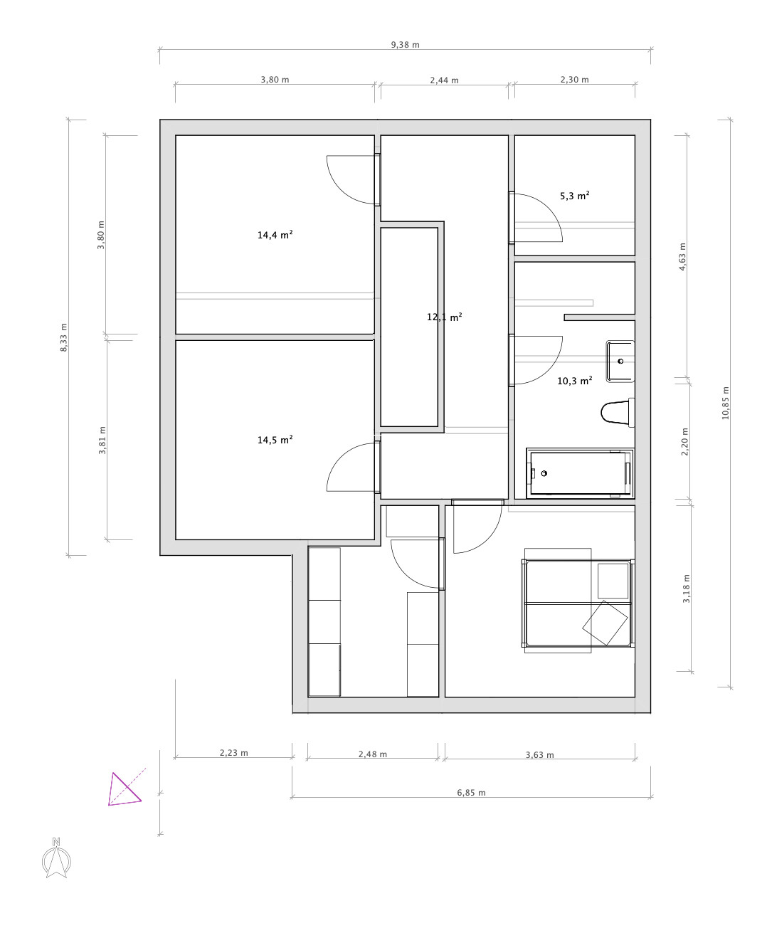
Was habe ich gemacht? EG und OG im Süden auf eine Linie gebracht und zwar genau mittig. Heißt das EG wurde kleiner, das OG entsprechend größer. Die Gesamtfläche bleibt gleich, also bleibt es bei Deinem Anbieter kostenneutral. Um im EG die Fläche weg nehmen zu können, habe ich einfach die platzfressende Garderobe im EG eliminiert und Bad und Technik Richtung Eingang geschoben. Vor den Garderobenschränken konnte man sich ja eh kaum bewegen. Technikraum nun eher größer, aber länglicher. Bad auch nen Tick größer. Großer Garderobenschrank. Mögliche Fenster im EG mal blau angedeutet. Auf dem Plan wirkt der Flur schlauchig, in real wird das wegen der Treppe aber anderes wirken. Unter die Treppe könntest Du ja noch einen Abstellraum Im OG habe ich den Platz ganz einfach für ein größeres Schlafzimmer und eine größere Ankleide genutzt.


Grundriss eines Gebäudes: Räume, Türen, Treppe, Maße in Metern, blaue Bereiche.



Grundriss einer Wohnung mit mehreren Zimmern, Bad, Küche und Flur; Flächenangaben in m².
 
Y

ypg

Sieht gut aus. Mir gefällt es, würde zwar das ein oder andere für mich versetzen (Tür Hauswirtschaftsraum oder Ankleide), aber das sind persönliche Sensibelchen. Auch die Fensterfrage hat es hier nicht so schwer - müsste alles gut passen, inkl Spannung//Harmonie
 
M

mmmmbau

@Würfel* : vielen Dank für deine Gedanken und Anpassungen am Grundriss. Gefällt in der Variante auf jeden Fall besser.

Wir haben gestern abend noch einmal lange über den Grundrissen gesessen und haben für uns einen großen Nachteil dieser Variante gefunden: wenn man in den offenen Küchen/Ess/Wohnbereich reinkommt "läuft" man direkt auf den Eßtisc/Kochinsel zu. Das wirkt unruhig.

Daher haben wir noch einmal den anderen Grundriss genommen und die Außenmaße leicht verändert. Wäre nett wenn Ihr hier ebenfalls eure Meinung noch einmal einbringen könntet.
Für uns größter Nachteil bei dem jetzt: relativ kleine Ankleide.

Grundriss einer Wohnung: Arbeitszimmer, offene Küche / Wohnzimmer, Technik, Gäste-WC.


Grundriss eines Wohnhauses: Schlafzimmer, Kind 1, Kind 2, Zimmer 2, Bad, Ankleide, HWR.
 
face26

face26

Sry, sehe ich überhaupt nicht.

Auf mich ist @Würfel* Vorschlag bei weitem ausgewogener, harmonischer und funktioneller.

Das mit dem auf den Esstisch/Kücheninsel zulaufen verstehe ich überhaupt nicht. Zum einen schau Dir mal die Maße an, da ist deutlich Luft.
Du holst Dir wieder das Gäste-WC ins Zentrum des Hauses.

Aber ist Deine Haus, wenn es Dir so besser gefällt...EG ist ja im Prinzip der Ausgangsentwurf...
 
Zuletzt aktualisiert 23.11.2025
Im Forum Grundrissplanung / Grundstücksplanung gibt es 2536 Themen mit insgesamt 87997 Beiträgen


Ähnliche Themen zu Einfamilienhaus ca. 160 qm Flachdach - Optimierung / Planung
Nr.ErgebnisBeiträge
1Treppe Grundriss Planung, Auftritt und Unterzug - Seite 221
2Treppe im Flur, Grundriss steht eigentlich schon :o( 20
3Frage zu Grundriss, insbesondere Treppe 13
4Wie findet ihr diesen Grundriss? - Seite 211
5Grundriss die IV! :-) - Seite 318
6Ideenfindung für Grundriss 120m2 Einfamilienhaus 12
7Grundriss. Meinungen, Ideen und konstruktive Kritiken. - Seite 424
8Mein Grundriss steht (fast), jetzt bräuchte ich eure Hilfe :-) 26
9Meinung zu Grundriss - 2-geschossiges Einfamilienhaus - Seite 338
10Grundriss 200qm mit integriertem Wintergarten und Galerie - Seite 332
11Unser Grundriss... bitte um Hilfe zur Optimierung.. 33
12Grundriss 142 m² Eure Meinung ist gefragt? :) - Seite 218
13Grundriss Stadtvilla 11.00x11.00m - Seite 219
14Feedback zu unserem Grundriss und Hausentwurf - Seite 218
15Grundriss Einfamilienhaus mit Keller - Seite 213
16Eure Meinung zu unserem Grundriss für ein Einfamilienhaus ohne Keller - Seite 322
17Stadtvilla mit gerader Treppe, offene moderne Bauweise, 140m² 18
18Grundriss Satteldachhaus 172 qm - Bitte um eure Meinungen 23
19Grundriss im Endstadium: Gibts hier noch Potential? - Seite 2110
20Grundriss Herrenhaus mit Satteldach 170 m² Wohnfläche - Seite 245

Oben