Einfamilienhaus ca. 160 qm Flachdach - Optimierung / Planung

4,50 Stern(e) 6 Votes
Zuletzt aktualisiert 23.11.2025
Sie befinden sich auf der Seite 9 der Diskussion zum Thema: Einfamilienhaus ca. 160 qm Flachdach - Optimierung / Planung
>> Zum 1. Beitrag <<

E

Escroda

Kennt jemand ein Programm mit dem man das Grundstück vernünftig zeichnen kann
Findest Du meinen Plan in #26 etwa unvernünftig?
Falls nicht, hier mal die Karte ohne Planung:

Lageplan einer Straßenecke: pinke Bauflächen und blau gestrichelter Grundstücksrand an der Straße.

Maßstab ist 1:100. Ich zeichne sowas mit paint.net, weil's so einfach ist, wenn man sich mit der Ebenentechnik vertraut gemacht hat. Ist natürlich nicht zentimetergenau und das Ausrichten geschieht auch nicht exakt. Für 'ne Feinabsteckung reicht's sicher nicht, für die erste Planung aber völlig ausreichend.
 
M

mmmmbau

@Escroda: nein, absolut nicht Vielen Dank!

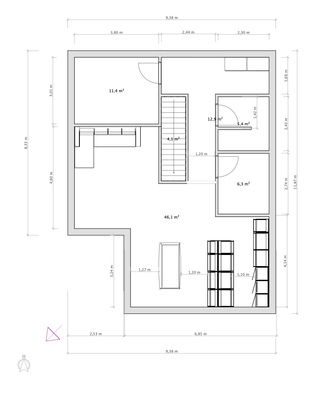
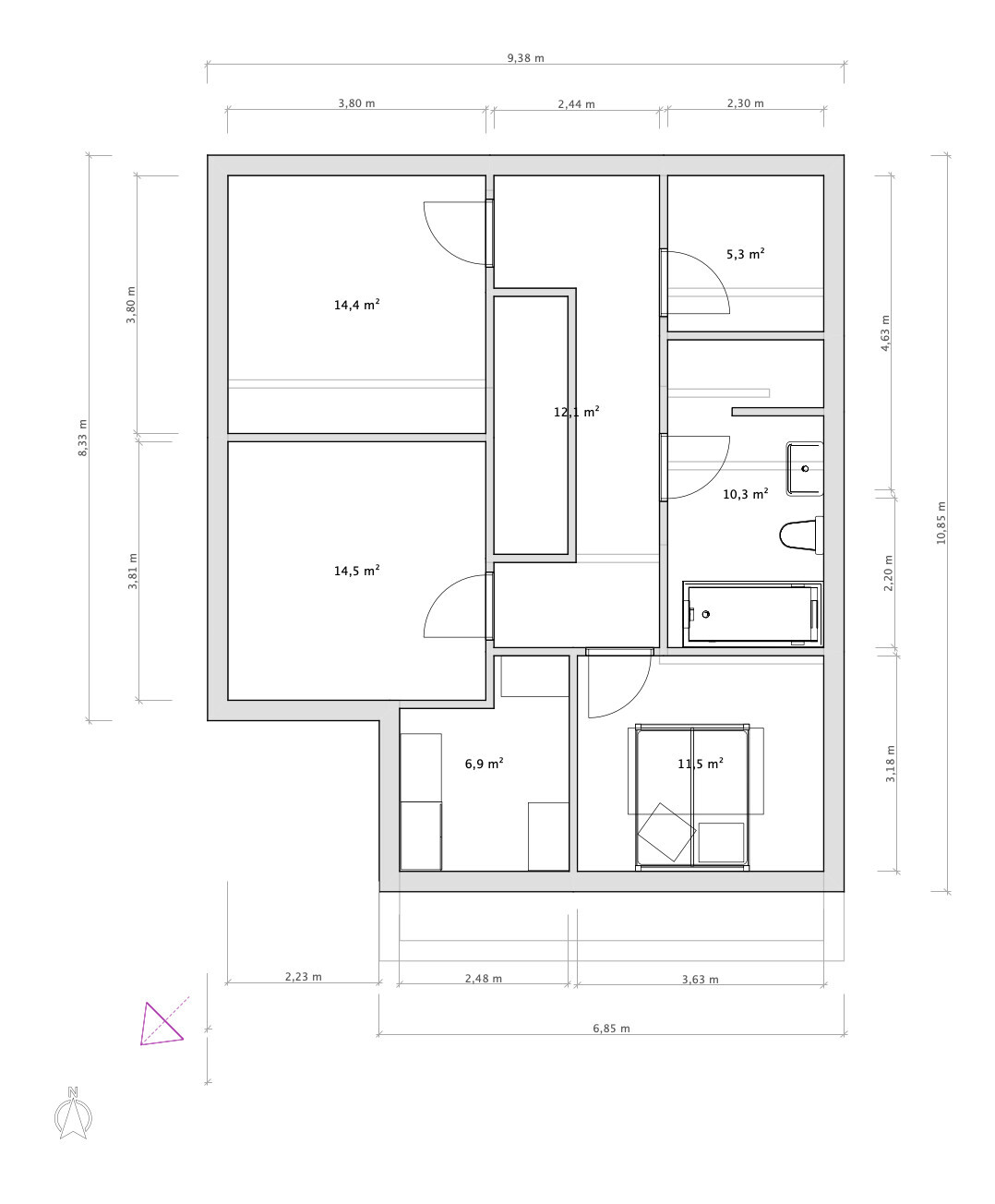
Habe mir vom Erschließungsplan einen ausgedruckt und das Haus dann ebenfalls einmal eingezeichnet. Haben das Haus mittlerweile neu überarbeitet und Küche / Wohnzimmer getauscht. Somit hat man vom Ess-/Wohnzimmer den Zugang zur Terrasse/Garten und nicht mehr im Süden, wo "weniger" Garten ist.

Grundriss eines Gebäudes mit Räumen, Treppenhaus, Türen und Flächenangaben in Quadratmetern.


Grundriss eines Wohnhauses mit mehreren Zimmern und Maßangaben.
 
E

Escroda

Habe mir vom Erschließungsplan einen ausgedruckt und das Haus dann ebenfalls einmal eingezeichnet.
Ja wo isser denn?
Ich kann immer noch nicht glauben, dass der Versatz vom OG 20k sparen soll. Die qm würden dem Schlafzimmer gut tun. Auch fehlt mir die Vorstellungskraft, dass dieser kleine Versatz gut aussehen könnte.

ich habe es mal in einem Forum als erfolgreich praktiziert gelesen
Da ging es um die Vermeidung eines Vollgeschosses. Hier geht es um Kostenersparnis in Verbindung mit Vermeidung der Nicht-Vollgeschossigkeit.
 
Zuletzt aktualisiert 23.11.2025
Im Forum Grundrissplanung / Grundstücksplanung gibt es 2536 Themen mit insgesamt 87997 Beiträgen


Ähnliche Themen zu Einfamilienhaus ca. 160 qm Flachdach - Optimierung / Planung
Nr.ErgebnisBeiträge
1Grundriss für 150qm Einfamilienhaus mit Wohnzimmer nach Norden - Seite 321
2Lärmschutzmöglichkeiten gegen Bahnschienen im Garten - Seite 214
3Wohnküche und Wohnzimmer im DG oder im EG 13
4Bunter Garten-Plauder-Bilder Thread - Seite 2852683
5Standort Küche und Wohnzimmer - Seite 355
6Platzierung der Möbel im Wohnzimmer im Grundriss 10
7Erdkabel zum Garten nochmal absichern? 18
8Grundriss Landhausneubau in großem Garten nach §34 (mit Abriss) 37
9Wohnzimmer Grundrissplanungs-Ideen? 39
10Wohnzimmer Heimkino separat ? 21
11Planung Podest im Wohnzimmer 12
12Doppelflügeltür / Pendeltür zum Wohnzimmer 13
13Wohnzimmer: Wie Sofa, TV und Schränke stellen? 32
14Kombination Fliesen und Parkett im Wohnzimmer mit offener Küche - Seite 330
15Grundrissplanung Wohnzimmer-Küche 18
16Einfamilienhaus - Stadtvilla: Wohnzimmer L oder I Form? 25
173. Zimmer im 40qm Wohnzimmer unterkriegen. Ideen 74
18Wohnzimmer / Esszimmer gestalten. Ideen gesucht 10
19Treppe im Wohnzimmer als Hype - Pro & Contra? 26
20Verschattung der Dachfenster im Wohnzimmer - Erfahrungen / Tipps? 28

Oben