Einfamilienhaus an Hanglage, ca. 220 m², 2,5 Geschossig, Satteldach - Ideen?

4,60 Stern(e) 5 Votes
Zuletzt aktualisiert 21.11.2025
Sie befinden sich auf der Seite 8 der Diskussion zum Thema: Einfamilienhaus an Hanglage, ca. 220 m², 2,5 Geschossig, Satteldach - Ideen?
>> Zum 1. Beitrag <<

M

Markus_21

Ich habe Euch noch paar Hausansichten und die Grundrisse neu hochgeladen. Hoffe da ist mehr zu erkennen.

Zum Thema Grundrisse: Im Grunde möchten wir die Räume zumindest schon auf der Etage lassen, wo Sie aktuell sind. Also Schlafen OG, Wohnen EG. Wenn jemand eine clevere Idee hat aus 2,5 nur 2 Etagen zu machen, sind wir da offen. Der minimale Platzbedarf liegt bei ca. 170 m². Die jetzigen 220 sind schon wirklich an der oberen Grenze und den drei Etagen geschuldet.

Hausansichten: Gerade die Ansicht beim Hauseingang wirkt sehr "lieblos" und langweilig. Wenn hier jemand eine Idee hat, wie man das besser gestalten kann, wären wir sehr dankbar.

Generell sind wir ja noch nicht am Ende mit der Planung und auch für neue Ideen offen (auch wenn das komplett von dem abweicht, was wir da aktuell haben)

Zweistöckiges Haus mit Carport, geparktes Auto und Mann am Eingang; grüne Rasenflächen.


Modernes zweistöckiges Haus mit Carport und Garage, Auto davor, grüne Umgebung


Zweistöckiges Einfamilienhaus mit dunklem Ziegeldach, Balkon, Terrasse mit Liegen und Person.


Zweistöckiges Haus mit Satteldach, Carport, Terrasse, Garten an Hanglage, blauer Himmel.
 

Anhänge

H

haydee

Reduzierung funktioniert nur durch Nutzung des UG.
Entweder unten Schlafenräume oder Küche/Essen
 
11ant

11ant

Generell sind wir ja noch nicht am Ende mit der Planung und auch für neue Ideen offen (auch wenn das komplett von dem abweicht, was wir da aktuell haben)
Ja, das halte ich für höchst angebracht. Dieses Haus würde nur im Bau neu aussehen. Sobald der Putz darauf wäre, hätte man den Eindruck von einem sehr gepflegten 80er Jahre Objekt - dafür muß man nicht neu bauen, die gibt es genügend am Markt.

Schau´ mal hier: https://www.hausbau-forum.de/threads/erstentwurf-vom-bauzeichner-für-unser-Einfamilienhaus.26764/page-4 - da stecken in #21 noch drei weitere Lesetipps von mir drin, die zu ähnlich gelagerten Threads (Hang mit ähnlichen Größen) führen.

Schmöker´ die mal alle vier durch - die sind zum Teil mit ähnlichen Vorgaben gestartet (also auch mit 08/15 Schubladenentwurf aufgebockt für Hanglage).

Ein schönes Abschreckbeispiel habe ich auch noch, das Haus von Familie SupaCriz: https://www.hausbau-forum.de/threads/erster-Entwurf-Grundriss-efh-ca-200qm-bitte-um-Feedback.18830
 
Zuletzt bearbeitet:
kbt09

kbt09

Kniestock ist übrigens 1,50, weil die Frage noch vorher aufkam, ob wir vor dem Bett im Schlafzimmer noch stehen können.
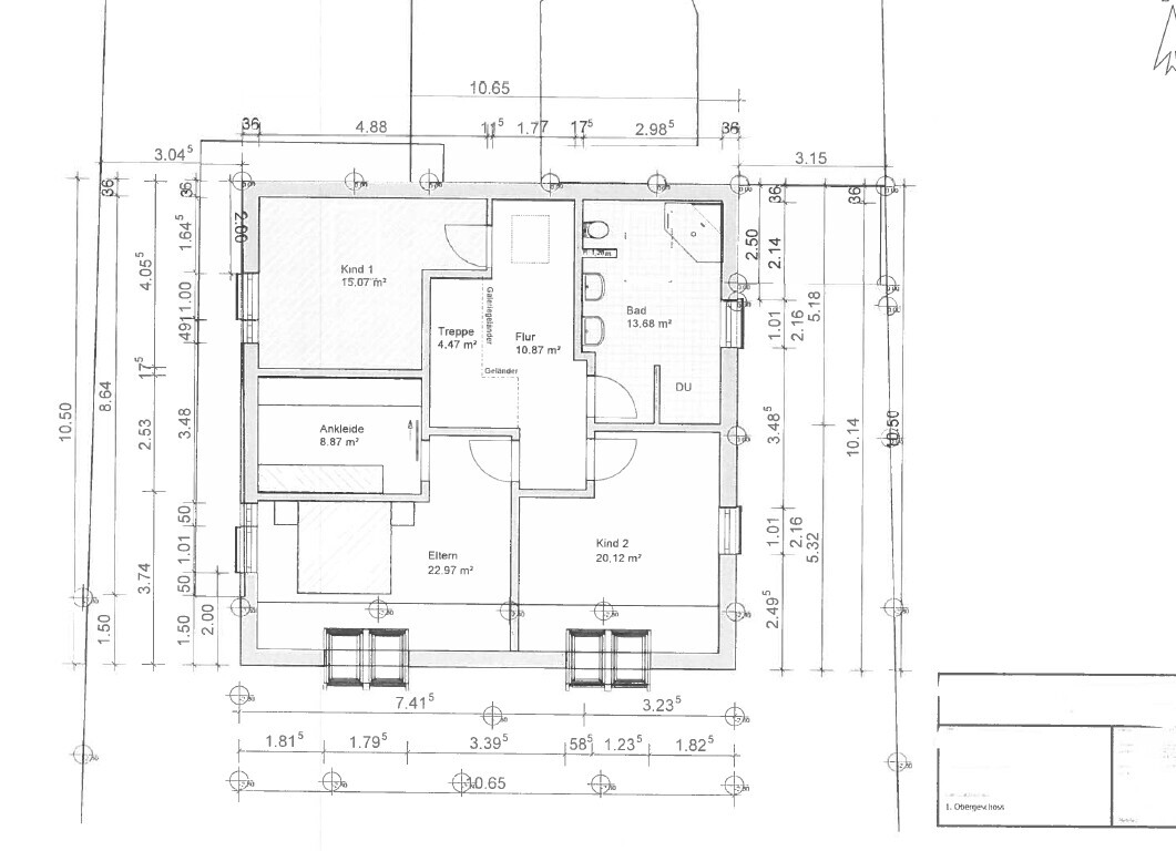
Grundriss eines Familienhauses: Eltern-, Kind 1-, Kind 2-Zimmer, Ankleide, Bad, Treppe, Flur

Wenn die Linie unterhalb des eingezeichneten Bettes die 2 m-Linie ist, was ich bei der gezeigten Dachneigung und Kniestockhöhe von 150 cm vermute, dann ist untenrum ums Bett herumgehen für Zwerge geeignet .
Die 2 m Linie in den Nordräumen ist gar nicht skizziert .. ich sehe da z. B. das WC und die Eingangstür für Kind 1 ... wie soll das funktionieren?
 
M

Markus_21

Wenn die Linie unterhalb des eingezeichneten Bettes die 2 m-Linie ist, was ich bei der gezeigten Dachneigung und Kniestockhöhe von 150 cm vermute, dann ist untenrum ums Bett herumgehen für Zwerge geeignet .
Die 2 m Linie in den Nordräumen ist gar nicht skizziert .. ich sehe da z. B. das WC und die Eingangstür für Kind 1 ... wie soll das funktionieren?
wir hatten die Kniestockhöhe nachträglich noch mal erhöht, so dass das mit der Tür in jedem Fall geht. Um das Bett herum, muss ich ja nicht selbst. Meine Freundin ist < 1,60 m
 
Y

ypg

wir hatten die Kniestockhöhe nachträglich noch mal erhöht, so dass das mit der Tür in jedem Fall geht. Um das Bett herum, muss ich ja nicht selbst. Meine Freundin ist < 1,60 m
wäre aber ein Grund, warum man nicht mehr ins Bett findet.

Ich habe jetzt diesen Thread nicht so verfolgt, sehe aber, dass der Hobbyraum die beste Lage bekommt. Muss ich jetzt nicht verstehen.
Außerdem frage ich mich, wozu die Bemaßung sein soll... die man ja erst in der Ausführungsplanung so genau braucht. Nun denn: die Tiefe des Balkons ist leider nur zu raten?

Im OG: da gibt es kein normales Zimmer. Jedes Zimmer (außer das Bad, wenn man mal im Bad von den 1-2qm im Eingang grosszügig absehen sollte) hat im Eingang eine Fläche, die nicht nutzbar ist. Das kann man mal mit einem Büro machen oder Gästezimmer, aber als Grundsätzlichkeit sollte man mal überlegen, ob man nicht bei der Treppenlage einen Riesen Fehler macht, der so ein Rumgestückel von Räumen zulässt.
Auch das gefangene Wohnzimmer ist mir irgendwie zu weit rum. Wenn da Kinder spielen sollen, sieht Madame oder Monsieur am Herd die Kinder nicht.
Wie breit ist denn das Wohnzimmer?? Ein Fachmann hat da jetzt keine Linie gezogen, oder?
Wenn ich 3 Meter vermute, dann ist der ganze Raum 3 Meter breit über die ganze Länge, die sich dann als U um die Treppe bzw Flur windet. Das ist alles viel zu schmal. Die Küche dürfte ja weniger als 3 Meter haben... dann eine Küchentür, wo man an ein Möbel stösst. Das wird leider ein Schlauch, wo man nicht ans Ende schauen kann... das wird kein schöner Raum.
 
Zuletzt aktualisiert 21.11.2025
Im Forum Grundrissplanung / Grundstücksplanung gibt es 2535 Themen mit insgesamt 87978 Beiträgen


Ähnliche Themen zu Einfamilienhaus an Hanglage, ca. 220 m², 2,5 Geschossig, Satteldach - Ideen?
Nr.ErgebnisBeiträge
1Stufen zwischen Küche/Esszimmer und Wohnzimmer 52
2Kombination Fliesen und Parkett im Wohnzimmer mit offener Küche - Seite 330
3Grundrissplanung Wohnzimmer-Küche 18
4Grobe Schnitzer im Grundriss? Küche zu klein? 39
5auf welchen dieser Grundrisse können wir weiter aufbauen? - Seite 30287
6Grundrissplanung Wohnzimmer und Flur zu schmal? 21
7Grundriss Bungalow 150qm geschlossene Küche, überdachte Terrasse 40
8Eure Meinung zum Bungalow Grundriss - Seite 539
9Wohnen/Essen/Küche: Wie wohnt ihr oder werdet ihr wohnen? 52
10Planung Wohnraum & Küche eines Doppelhaushälfte in Nürnberg 13
11Probleme bei der aufteilung Küche, Essen , Wohnen 16
12Grundriss Halboffene Küche mit großem Essbereich - Detailfragen 12
13Esstisch in einer kleinen Küche 49
14Wohnzimmer: Wie Sofa, TV und Schränke stellen? 32
15Küche: geschlossen oder offen? Welche Raumaufteilung? 86
163. Zimmer im 40qm Wohnzimmer unterkriegen. Ideen - Seite 274
17LED-Einbaulampen in Allraum Küche, Wohn- und Essbereich 17
18Heizung in Küche "notwendig"? - Seite 235
19Zulüftung Kontrollierte-Wohnraumlüftung im Wohnzimmer durch Schiebetür verdeckt 17
20Offene Küche bereut oder doch das Non plus Ultra? - Seite 5104

Oben