Einfamilienhaus an Hanglage, ca. 220 m², 2,5 Geschossig, Satteldach - Ideen?

4,60 Stern(e) 5 Votes
Zuletzt aktualisiert 19.11.2025
Sie befinden sich auf der Seite 10 der Diskussion zum Thema: Einfamilienhaus an Hanglage, ca. 220 m², 2,5 Geschossig, Satteldach - Ideen?
>> Zum 1. Beitrag <<

kaho674

kaho674

Ich sehe hier die Kinderzimmers im UG.
Im EG Allraum. Im DG Elternbereich.
Der Rest ist unnützer Ballast und das Haus würde entsprechend kleiner. (450k!?) Möglicherweise plant man auch auf 2 Ebenen.
Hier mal skizziert die 3 Ebenen:

Kellergrundriss mit K1, K2, Diele, Flur, Technik, Kiba, Wäsche und Treppe

Grundriss eines Wohnhauses mit Allraum, WC, Garderobe, SPK und Treppe

Grundriss eines Stockwerks: Schlafzimmer (SZ), Büro/Gast, Ankleide, Diele und Bad.


Balkone müsste man noch dran basteln. Treppe ist eine kleine Halbgewendelte - kein Podest (Programmfehler).

Ideenskizze! Ausrichtung auf Grundstück noch völlig fraglich, da ich keine Himmelsrichtung bisher erlesen konnte.
 
M

Markus_21

Danke für den Input und die Mühe. Ich würde das gerne an der Stelle abbrechen, bzw. unterbrechen und melde mich ggf. noch mal, nachdem neue Pläne von einem geeigneten Architekten vorliegen, den wir aktuell suchen.
 
T

thewoodmaker

Hallo zusammen,

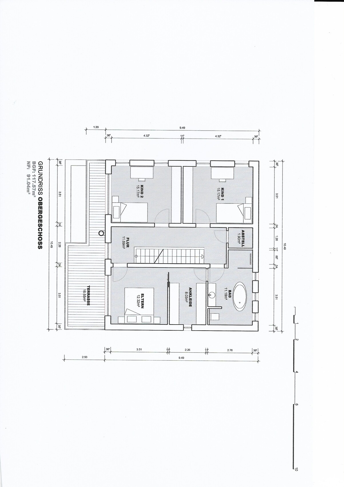
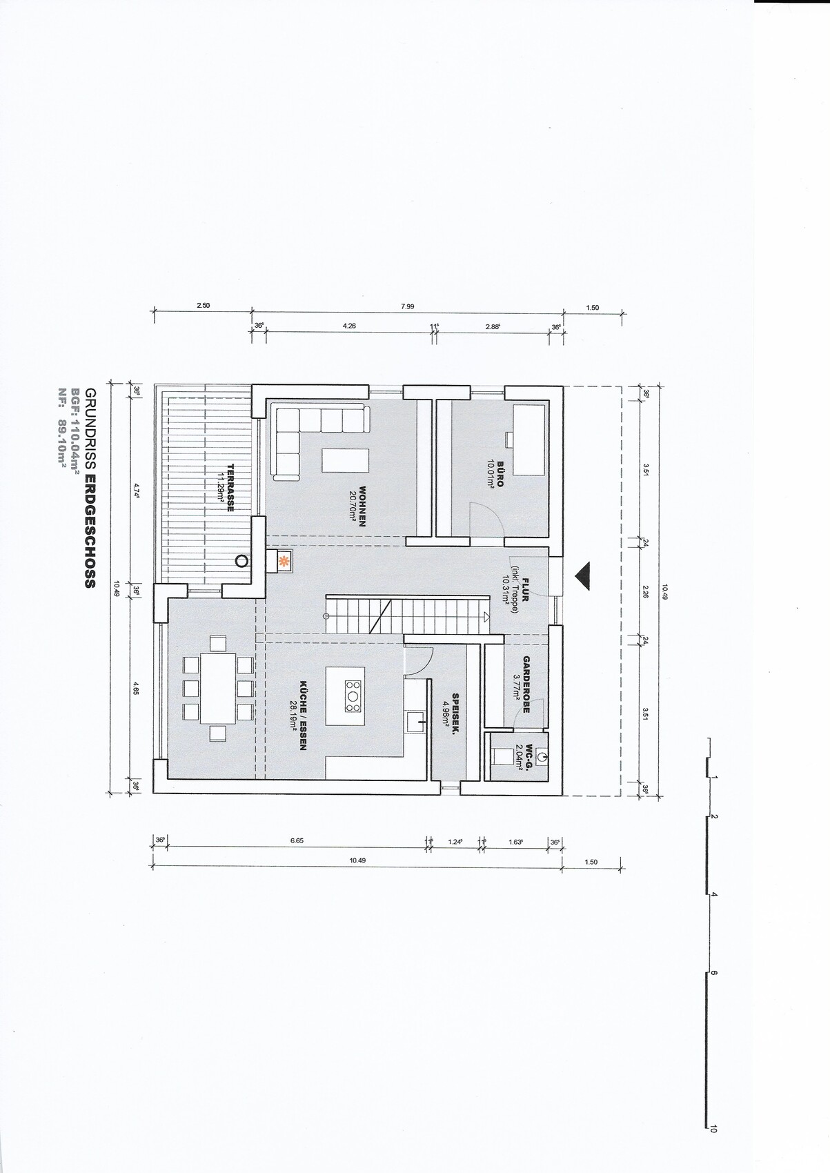
paar Monate ist es schon her, aber wir haben Eure berechtigte Kritik zu Herzen genommen und noch mal neu geplant. Anbei findet Ihr erste Grundrisse von EG und OG (KG fehlt noch, das wird wohl eine Ferienwohnung werden). Außerdem zwei Außenansichten... Es ist noch nicht alles fertig, aber zumindest wollte ich mal die Richtung zur Diskussion stellen. Ich hoffe, dass wir zumindest vom 80er-Jahre-Style etwas weggekommen sind
 
T

thewoodmaker

sorry - ich bin der Threadersteller, muss aber wohl über zwei Accounts verfügen, weil ich mich wohl irgendwann Mal bereits schon angemeldet habe. Sorry für das Chaos - das war keine Absicht.
 
kbt09

kbt09

Schade, dass man hier Kopfverrenken machen muss. Was passiert denn im UG? Norden war planrechts? Und im EG kann man von der Straße ins Haus?

Küche sollte man planen, die eingezeichnete Insel kann maximal 130 cm breit werden, wenn die Gänge ober- und unterhalb 90 cm sein sollen. Wo sollen Hochschränke stehen? Ich würde die Speisekammer auflösen und dafür unter der Treppe Stauraum schaffen bzw. es gibt doch den Keller. Und dann würde ich dem Küchenbereich mehr Tageslicht gönnen.

Außerdem die Treppe wohl andersherum setzen, damit man vom Eingang nach oben gehen kann. Heißt natürlich man kommt aus dem UG-Bereich im Zwischenraum Wohnen/Essen raus ... daher vielleicht geschlossene Treppe?
 
Zuletzt aktualisiert 19.11.2025
Im Forum Grundrissplanung / Grundstücksplanung gibt es 2536 Themen mit insgesamt 87979 Beiträgen


Ähnliche Themen zu Einfamilienhaus an Hanglage, ca. 220 m², 2,5 Geschossig, Satteldach - Ideen?
Nr.ErgebnisBeiträge
1Wohin mit der Treppe? Dachausbau Walmdachbungalow - Seite 219
2Treppe im Flur, Grundriss steht eigentlich schon :o( 20
3Was ist bei einer Treppe beachten/Unterschie Wendeluing 22
4Grundrissfrage, Treppe, Fenster, Ausrichtung 12
5 2 Vollgeschosse, Durchgang Garage, Hauswirtschaftsraum unter Treppe 25
6Frage zu Grundriss, insbesondere Treppe 13
7"notwendige Treppe" zum Dachgeschoss - Seite 423
8Treppe Grundriss Planung, Auftritt und Unterzug 21
9Grundrissfrage, Garage, Treppe 33
10Technikraum so klein wie möglich - Unter der Treppe? 10
11Treppe ohne Geländer geliefert und ich muss nun nachzahlen? - Seite 319
12Welche Treppe habt ihr genommen 77
13Gerade Treppe - warum? 14
14Abschluss Treppe - Parkett 28
15Baumangel - Treppe nicht in Ordnung - Seite 212
16Treppe - Sind die Treppenmaße 2.00x2.00m in Ordnung? - Seite 568
17Einfamilienhaus ca. 150 qm Grundriss - Treppe wie planen? 65
18Stadtvilla mit gerader Treppe, offene moderne Bauweise, 140m² 18
19Treppe im Wohnzimmer als Hype - Pro & Contra? - Seite 426
20Fliesen auf halbgewendelter Treppe - Wer hat da Erfahrungen? - Seite 638

Oben