ᐅ Einfamilienhaus ~200qm mit Doppelgarage auf trapezförmigem Grundstück
Erstellt am: 05.05.23 15:45
M
Mucuc18Servus liebe Hausbau-Forum-Gemeinde!
Nach fleißigem Mitlesen stelle ich nun gerne unseren aktuellen Entwurf zur konstruktiven Kritik.
Im Folgenden die üblichen Infos, Süden ist die Planunten im Lageplan:
Bebauungsplan/Einschränkungen
Größe des Grundstücks | 512qm
Hang | Nein
Grundflächenzahl | 160qm Grundfläche für Hauptgebäude mgl. (+140qm Überschreitung für sonstiges)
Anzahl Stellplatz | min. 1,5
Dachform | SD / WD oä. (Mansarddächer in Umgebung vorhanden)
Maximale Höhen/Begrenzungen| FH 9,4m | WH 6,5m
weitere Vorgaben | Abstandsflächen von 0,4H auf zwei Seiten, sonst 0,8H
Anforderungen der Bauherren
Stilrichtung, Dachform, Gebäudetyp | klassiches Mansard-Walmdach eher etwas moderner interpretiert
Keller, Geschosse | EG, OG, DG + Keller
Anzahl der Personen, Alter| 2 (30J,33J) + 1 (0J) + x
Raumbedarf im EG, OG | Ca. 80-90qm für jeweils EG und OG
Büro | 1 Büro notwendig für Homeoffice
Schlafgäste pro Jahr | tbd, teilw. jedoch auch längere Besuche
offene oder geschlossene Architektur | eher offen, jedoch mit entsprechendem Schallschutz und Privatsphäre
konservativ oder moderne Bauweise | Eher modern
offene Küche, Kochinsel | große offene Küche mit Insel wichtig
Anzahl Essplätze | 4-6 stetig verfügbar, mit Möglichkeit zur Erweiterung
Kamin | ja
Musik/Stereowand | nein, freies Hifi-System
Balkon, Dachterrasse | nein
Garage, Carport | Doppelgarage
Nutzgarten, Treibhaus | Garten mit Beeten und 2-3 Bäumen, Einfriedung mit Hecke
Hausentwurf
Von wem stammt die Planung: Architekt & eigene Ideen/Zeichnungen
Was gefällt besonders? Warum? Eigenes Elterngeschoss, großzügiger Allraum, gerade Treppe, Anzahl Zimmer im OG (Flexibilität), ausreichend Garderobenplatz, Treppe getrennt vom Wohnraum
Was gefällt nicht? Warum? Aufstellungsmöglichkeiten Wärmepumpen-Außengerät, DG ggf. mit etwas viel Platz, der nicht sinnvoll genutzt werden kann (Schrägen)
Preisschätzung lt Architekt/Planer: bisher keine getätigt
Preislimit Haus, inkl Ausstattung.: 1,4-1,5m
favorisierte Heiztechnik: Luft-Wasser-Wärmepumpe
Wenn Ihr verzichten müsst, auf welche Details/Ausbauten
-könnt Ihr verzichten: Kamin, Pool, ggf. Doppelgarage
-könnt Ihr nicht verzichten: Möglichst „großer“ Garten
Warum ist der Entwurf so geworden, wie er jetzt ist? ZB
Mischung aus eigenen Vorstellungen/Ideen und Architekt sowie einigen „Verbesserungsschleifen“ über die letzten Wochen. Prinzipiell vorherrschend ist hier der Versuch auf einem eher kleinen Grundstück möglichst viel zusammenhängende Gartenfläche zu erhalten. Daher mit Rücksprung im Osten geplant, um Abstandsflächen auf dem trapezförmigen Grundstück einzuhalten. 3 Geschosse + Keller sollen dafür sorgen, die Grundfläche des Hauses möglichst klein zu halten und den „Elternbereich“ etwas vom Kinder/Gast – Bereich zu trennen. Unsere Wünsche sehen wir im aktuellen Grundriss gut umgesetzt. Kleinere Details z.B. die Fenstermaße betreffend wollen wir noch anpassen (z.B. gleich große Fenster im OG Westen, ggf. etwas größere Hängeschiebetüre im EG, …)
Was ist die wichtigste/grundlegende Frage zum Grundriss in 130 Zeichen zusammengefasst?
Sehr ihr Verbesserungspotentiale, welche wir berücksichtigen sollten oder gar No-Gos welche wir nochmals überdenken sollten? Wir sind mit dem erreichten Stand recht zufrieden, freuen uns aber über Input, zu Themen, die wir ggfs. übersehen oder uns bisher "schöngeredet" haben
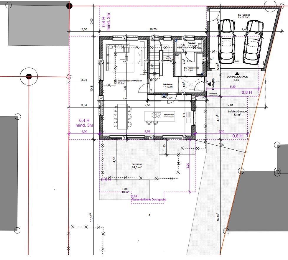
EG
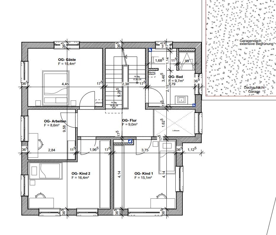
OG

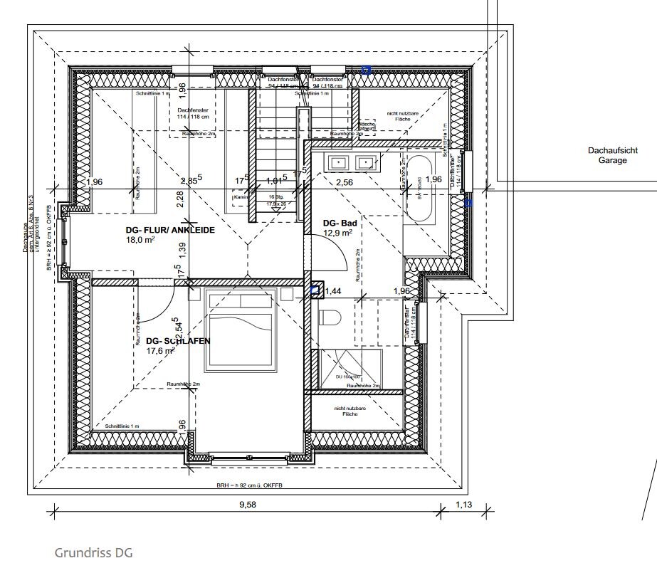
DG

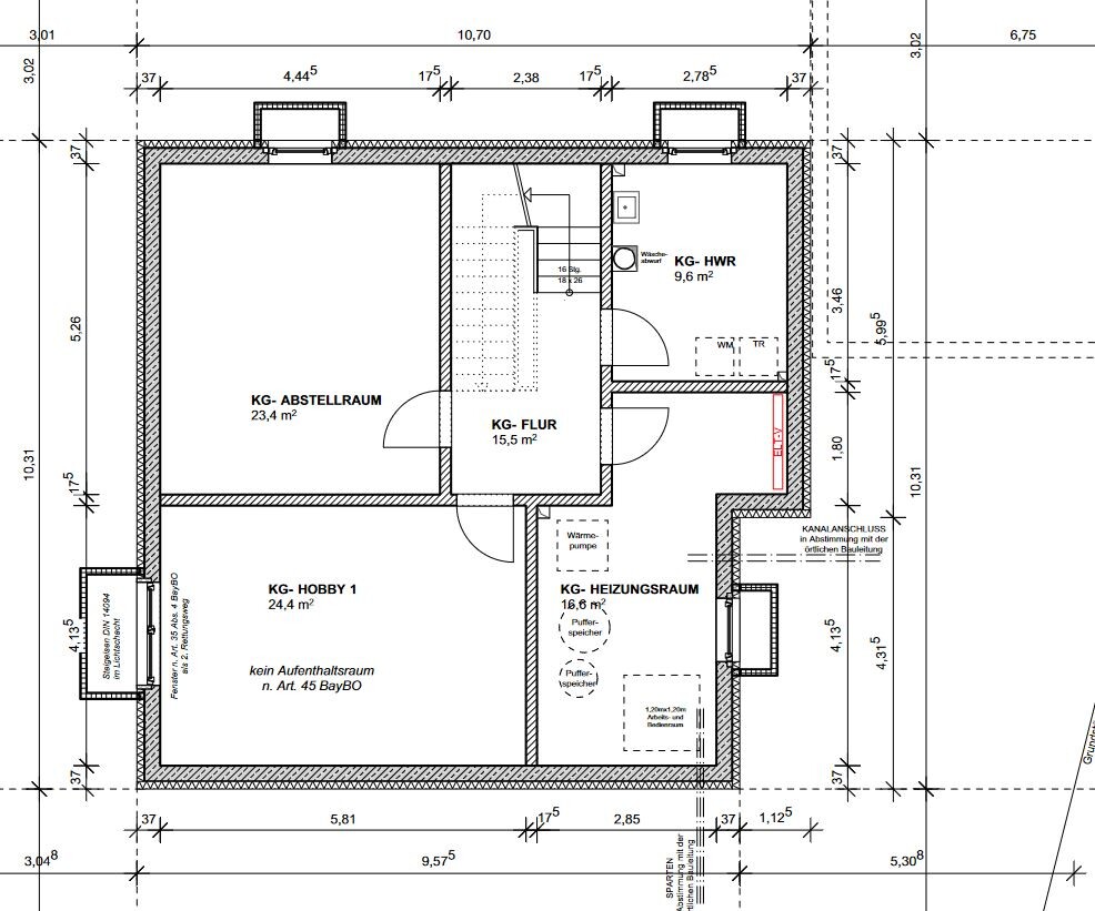
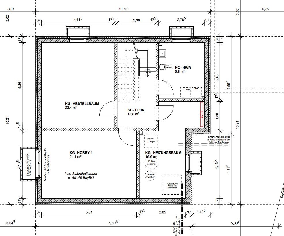
KG

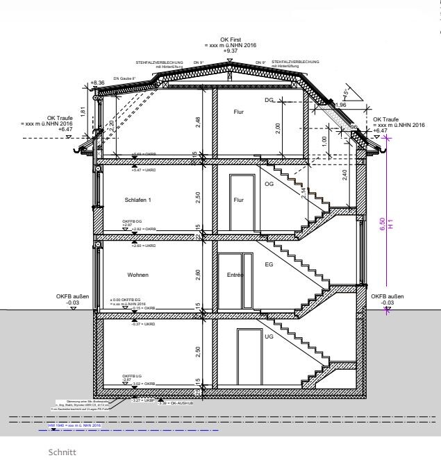
Schnitt

Ansicht Süd

Ansicht Ost

Ansicht West

Nach fleißigem Mitlesen stelle ich nun gerne unseren aktuellen Entwurf zur konstruktiven Kritik.
Im Folgenden die üblichen Infos, Süden ist die Planunten im Lageplan:
Bebauungsplan/Einschränkungen
Größe des Grundstücks | 512qm
Hang | Nein
Grundflächenzahl | 160qm Grundfläche für Hauptgebäude mgl. (+140qm Überschreitung für sonstiges)
Anzahl Stellplatz | min. 1,5
Dachform | SD / WD oä. (Mansarddächer in Umgebung vorhanden)
Maximale Höhen/Begrenzungen| FH 9,4m | WH 6,5m
weitere Vorgaben | Abstandsflächen von 0,4H auf zwei Seiten, sonst 0,8H
Anforderungen der Bauherren
Stilrichtung, Dachform, Gebäudetyp | klassiches Mansard-Walmdach eher etwas moderner interpretiert
Keller, Geschosse | EG, OG, DG + Keller
Anzahl der Personen, Alter| 2 (30J,33J) + 1 (0J) + x
Raumbedarf im EG, OG | Ca. 80-90qm für jeweils EG und OG
Büro | 1 Büro notwendig für Homeoffice
Schlafgäste pro Jahr | tbd, teilw. jedoch auch längere Besuche
offene oder geschlossene Architektur | eher offen, jedoch mit entsprechendem Schallschutz und Privatsphäre
konservativ oder moderne Bauweise | Eher modern
offene Küche, Kochinsel | große offene Küche mit Insel wichtig
Anzahl Essplätze | 4-6 stetig verfügbar, mit Möglichkeit zur Erweiterung
Kamin | ja
Musik/Stereowand | nein, freies Hifi-System
Balkon, Dachterrasse | nein
Garage, Carport | Doppelgarage
Nutzgarten, Treibhaus | Garten mit Beeten und 2-3 Bäumen, Einfriedung mit Hecke
Hausentwurf
Von wem stammt die Planung: Architekt & eigene Ideen/Zeichnungen
Was gefällt besonders? Warum? Eigenes Elterngeschoss, großzügiger Allraum, gerade Treppe, Anzahl Zimmer im OG (Flexibilität), ausreichend Garderobenplatz, Treppe getrennt vom Wohnraum
Was gefällt nicht? Warum? Aufstellungsmöglichkeiten Wärmepumpen-Außengerät, DG ggf. mit etwas viel Platz, der nicht sinnvoll genutzt werden kann (Schrägen)
Preisschätzung lt Architekt/Planer: bisher keine getätigt
Preislimit Haus, inkl Ausstattung.: 1,4-1,5m
favorisierte Heiztechnik: Luft-Wasser-Wärmepumpe
Wenn Ihr verzichten müsst, auf welche Details/Ausbauten
-könnt Ihr verzichten: Kamin, Pool, ggf. Doppelgarage
-könnt Ihr nicht verzichten: Möglichst „großer“ Garten
Warum ist der Entwurf so geworden, wie er jetzt ist? ZB
Mischung aus eigenen Vorstellungen/Ideen und Architekt sowie einigen „Verbesserungsschleifen“ über die letzten Wochen. Prinzipiell vorherrschend ist hier der Versuch auf einem eher kleinen Grundstück möglichst viel zusammenhängende Gartenfläche zu erhalten. Daher mit Rücksprung im Osten geplant, um Abstandsflächen auf dem trapezförmigen Grundstück einzuhalten. 3 Geschosse + Keller sollen dafür sorgen, die Grundfläche des Hauses möglichst klein zu halten und den „Elternbereich“ etwas vom Kinder/Gast – Bereich zu trennen. Unsere Wünsche sehen wir im aktuellen Grundriss gut umgesetzt. Kleinere Details z.B. die Fenstermaße betreffend wollen wir noch anpassen (z.B. gleich große Fenster im OG Westen, ggf. etwas größere Hängeschiebetüre im EG, …)
Was ist die wichtigste/grundlegende Frage zum Grundriss in 130 Zeichen zusammengefasst?
Sehr ihr Verbesserungspotentiale, welche wir berücksichtigen sollten oder gar No-Gos welche wir nochmals überdenken sollten? Wir sind mit dem erreichten Stand recht zufrieden, freuen uns aber über Input, zu Themen, die wir ggfs. übersehen oder uns bisher "schöngeredet" haben
EG
OG
DG
KG
Schnitt
Ansicht Süd
Ansicht Ost
Ansicht West
Mucuc18 schrieb:
Sehr ihr Verbesserungspotentiale, welche wir berücksichtigen sollten oder gar No-Gos welche wir nochmals überdenken sollten? zum Grundriss sag ich nix, da haben andere einen besseren Überblick.
Aber diese Dachform - die ist heutzutage echt ein No-Go, da passt ja fast gar kein Photovoltaik drauf.
Müllerin schrieb:
zum Grundriss sag ich nix, da haben andere einen besseren Überblick.Schön, daß Du auch mal wieder hier bist !Müllerin schrieb:
Aber diese Dachform - die ist heutzutage echt ein No-Go, da passt ja fast gar kein Photovoltaik drauf.Endlich mal ein Mansarddach - und dann auch noch in beiden Dimensionen !Daß es selten geworden ist, liegt eher an seiner faktischen Ausrottung durch gedankenlose Bebauungspläne. Vom Prinzip her ist diese Dachform gerade die bestoptimierbare für Photovoltaik.
https://www.instagram.com/11antgmxde/
https://www.linkedin.com/company/bauen-jetzt/
Mucuc18 schrieb:
Preisschätzung lt Architekt/Planer: bisher keine getätigtDas solltet ihr allerdings mal tun… das ist ja schon eine Marie: das Mansarddach zählt ja auch als vollständiger Ausbau der knappen 80qm.Mucuc18 schrieb:
Preislimit Haus, inkl Ausstattung.: 1,4-1,5mAch, das lese ich jetzt erst. Na, dann 🙂Mucuc18 schrieb:
Raumbedarf im EG, OG | Ca. 80-90qm für jeweils EG und OGMucuc18 schrieb:
der Versuch auf einem eher kleinen Grundstück möglichst viel zusammenhängende Gartenfläche zu erhalten.Bedenke, dass Eure mega Auffahrt auch wieder den Garten einschränkt. Mucuc18 schrieb:
No-Gos welche wir nochmals überdenken sollten?Naja… das Dach man mögen. Passt aber zur Kaffeemühlenvilla. Modern würde ich es nicht bezeichnen.Nogos wären für mich das Gäste-Klo hinter der Garderobe, die Wanne im Eltern- und nicht im Kinderbereich, eine Duschtür im Kinderbad (wer soll die putzen?) und schon irgendwie ein großer Planungsfehler: die fehlende Höhe im Schlafzimmer an einer Ecke (untere linke Bettecke und Dachschräge). Ein 1,90 großer Mann muss sich da schon einrücken, dass er da ohne Kopfnuss durchkommt.
Ich finde gerade die Dachform ausgesprochen apart und wg. Photovoltaik kann man ja auch mal überlegen die Photovoltaik quasi als "Dachziegel" ausführen zu lassen. Ein Budget war ja nicht genannt 😉 ... @ypg hat es gerade entdeckt ... also ok vermutlich.
Grundriss gefällt mir. Nur bei der Küche würde ich mal konkret planen, die zerrissene Wand zum Flur sollte gut durchdacht werden. Und, den Luftraum würde ich sparen und lieber auf der "Kinder/Gastetage" Waschmaschine/Trockner ermöglichen.
Schlafzimmer Bettkante sehe ich wie Yvonne, allerdings würde ich da vermutlich das Bett einfach 90 ° drehen und mit dem kopfteil an die planrechte Wand stellen.
Badewanne nur im großen Bad finde ich nicht schlimm, weil das Bad über den Flur erschlossen ist. Duschtür im Kinderbad kann genauso gut ein Duschvorhang sein, ansonsten eben doch eine Duschtür. Die Phase Kinder und Badewanne ist nicht immer ausgesprochen lang und insbesondere in den ersten Jahren ohne Anwesenheit eines Elternteils eh nicht möglich.
Es ist halt sehr viel Platz ... gibt es soviel Hobby für soviel Keller?
Grundriss gefällt mir. Nur bei der Küche würde ich mal konkret planen, die zerrissene Wand zum Flur sollte gut durchdacht werden. Und, den Luftraum würde ich sparen und lieber auf der "Kinder/Gastetage" Waschmaschine/Trockner ermöglichen.
Schlafzimmer Bettkante sehe ich wie Yvonne, allerdings würde ich da vermutlich das Bett einfach 90 ° drehen und mit dem kopfteil an die planrechte Wand stellen.
Badewanne nur im großen Bad finde ich nicht schlimm, weil das Bad über den Flur erschlossen ist. Duschtür im Kinderbad kann genauso gut ein Duschvorhang sein, ansonsten eben doch eine Duschtür. Die Phase Kinder und Badewanne ist nicht immer ausgesprochen lang und insbesondere in den ersten Jahren ohne Anwesenheit eines Elternteils eh nicht möglich.
Es ist halt sehr viel Platz ... gibt es soviel Hobby für soviel Keller?
kbt09 schrieb:
Schlafzimmer Bettkante sehe ich wie Yvonne, allerdings würde ich da vermutlich das Bett einfach 90 ° drehen und mit dem Kopfteil an die planrechte Wand stellen.Es sind jetzt 2,54 Meter… andere Seite kann man nur raten. Ich denke, nahezu gleich?Ähnliche Themen