ᐅ Einfamilienhaus 180-190qm auf 10x20m Baufenster, erster Entwurf GU
Erstellt am: 28.10.19 12:32
B
BuilderbobB
Builderbob28.10.19 12:32Hallo zusammen,
meine Frau und ich wollen demnächst auch unter die Häuslebauer gehen und haben uns von unserem (voraussichtlichen) Fertighausanbieter einmal einen Grundriss auf Basis unseres ersten Gesprächs erstellen lassen.
Ein konkretes Grundstück haben wir im Auge, allerdings wird das Neubaugebiet momentan noch vermessen und anschließend werden die Flurstücke neu geordnet. Einen amtlichen Lageplan des Grundstücks gibt es daher noch nicht, sondern nur den beigefügten Bebauungsplan-Ausschnitt (gestrichelte Linien = Grundstück-Grenzen).
Den Grundrissentwurf finden wir zunächst mal interessant, zumal es (jedenfalls für uns) nicht nach einem Grundriss von der Stange des Anbieters aussieht. Einige aus meiner Sicht verbesserungswürdige Punkte habe ich unten mal aufgelistet - euch fallen bestimmt noch mehr auf/ein...
Vielen Dank vorab schon einmal für eure Eischätzungen!
Thomas
Bebauungsplan/Einschränkungen
Größe des Grundstücks - 47qm
Hang - nein
Grundflächenzahl - 0,4
Geschossflächenzahl - 0,8
Baufenster, Baulinie und -grenze - Baufenster 10x20m, Grenzabstand 3m zur Straße/Nachbargrundstück, Randbebauung - möglich, nicht geplant
Anzahl Stellplatz - 2
Geschossigkeit - 2 Vollgeschosse
Dachform - Sattel, Walm, Pult, Flach
Stilrichtung - modern
Ausrichtung -
Maximale Höhen/Begrenzungen - 9,80m Höhe Fahrbahnoberkante bis OK Gebäude
weitere Vorgaben -
Anforderungen der Bauherren
Stilrichtung, Dachform, Gebäudetyp - nicht festegelegt (außer: kein Flachdach)
Keller, Geschosse - 2 Vollgeschosse, kein Keller
Anzahl der Personen, Alter - 3 Personen (36,35,1), perspektivisch 2. Kind
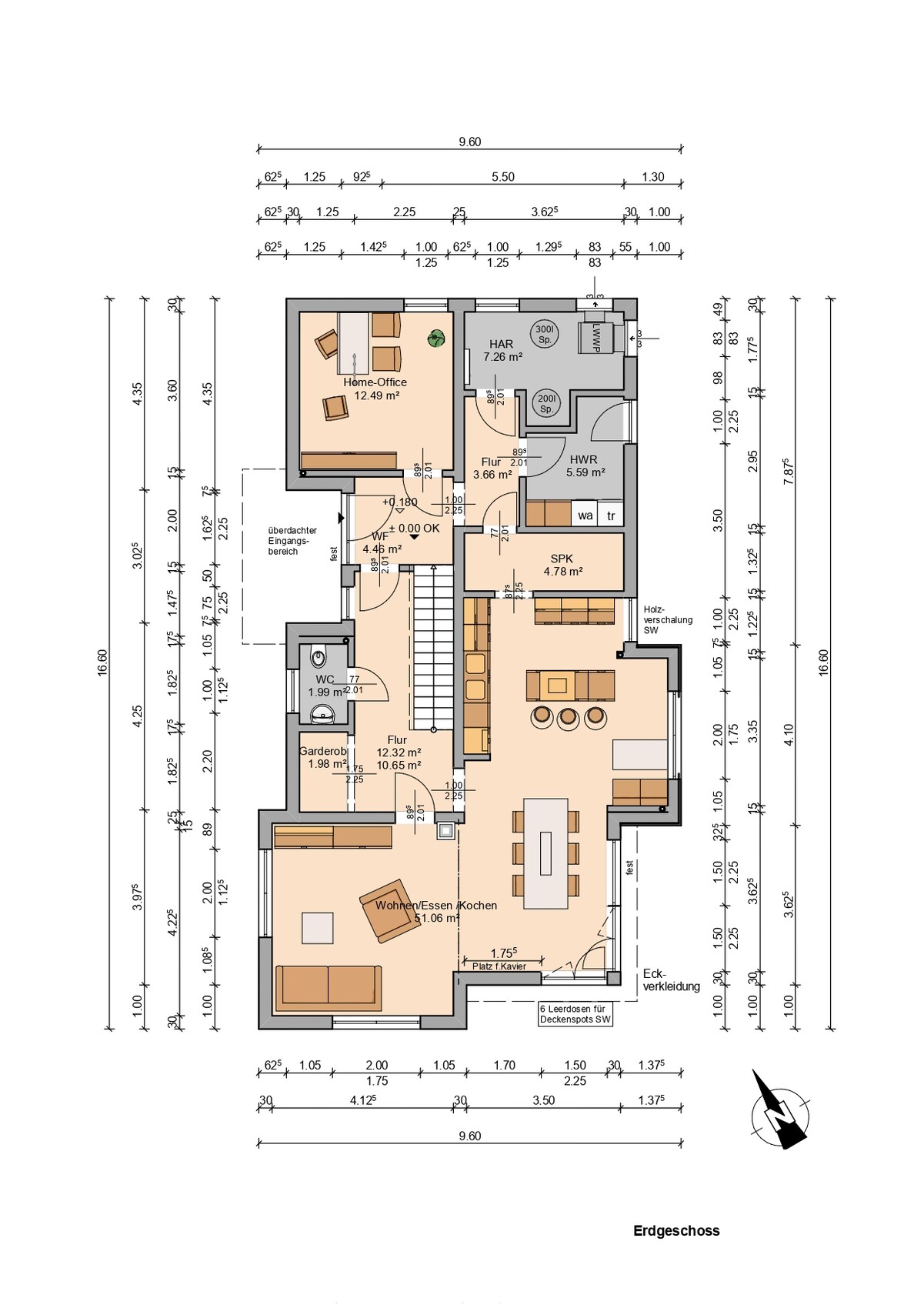
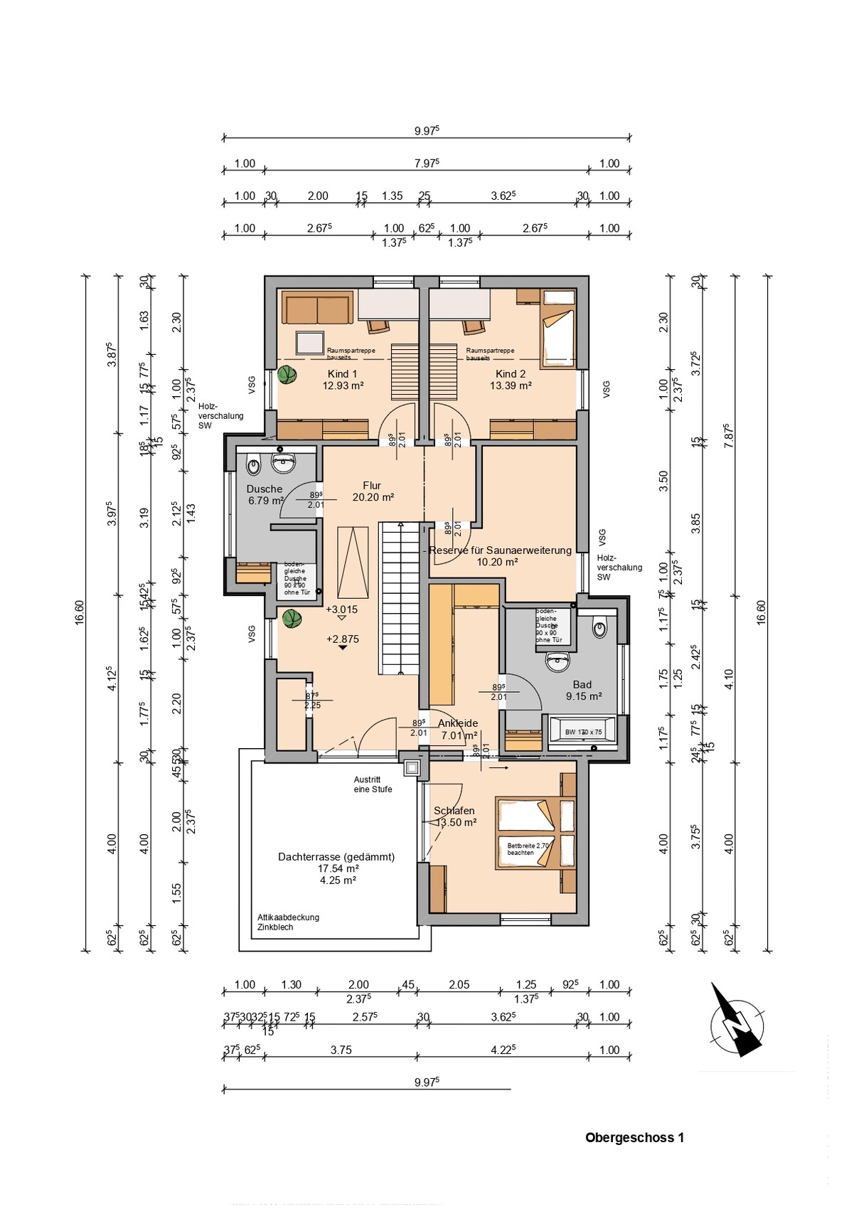
Raumbedarf im EG, OG - EG: Offener Wohn/Ess/Küchenbereich, Speisekammer, Arbeits-/Gästezimmer, Hauswirtschaftsraum. OG: Schlafzimmer/Bad/„Ankleide“, 2 Kinderzimmer, Kinderbad
Büro: Familiennutzung oder Homeoffice? - gelegentlich Homeoffice, Raum teilt sich Funktion mit Gästezimmer
Schlafgäste pro Jahr - 5-10
offene oder geschlossene Architektur - offen
konservativ oder moderne Bauweise - modern
offene Küche, Kochinsel - ja
Anzahl Essplätze - 6-10
Kamin - ja
Musik/Stereowand - nein
Balkon, Dachterrasse - nice to have, nicht zwingend
Garage, Carport - Carport
Nutzgarten, Treibhaus - nein
Hausentwurf
Von wem stammt die Planung: GU
Was gefällt besonders? Warum?
EG: offener Wohn-/Essbereich und trotzdem keine Sichtachse Sofa/Küche, kurzer Weg von Haustür zu Speisekammer, abgetrennter Bereich HTR/Hauswirtschaftsraum.
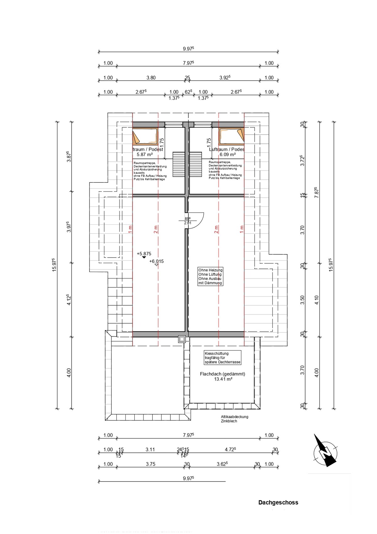
OG: Kinder- und Elternbereich getrennt, keine „gefangene“ Ankleide, Dachterrasse, „Schlafpodest“ in Kinderzimmer
Was gefällt nicht? Warum?
Grundsätzlich: Grundriss sieht sehr schlauchig aus
EG: Windfang (mE unnötig), Garderobe weit weg von Haustür (alternativ unter Treppe?), WC zu schmal(?), kein direkter Zugang von Küche zur Terrasse (geplant im SO/SW - „über Eck“), Sitzecke in Küche (kommt weg bzw. Sitzfensterbank geplant), Abstand Kücheninsel /Wand, Durchgang Wohnen/Essen zu eng wenn Kamin und Klavier (175x60) wie vorgesehen stehen?
OG: Kinderzimmer im Norden, Schlafzimmer im Süden, „Raum“ am Austritt auf Dachterrasse, Flächennutzung insgesamt (großer Flur 20qm plus 10qm „Überbleibsel“ als „Saunaraum“ (Sauna für 2 Personen sollte im Bad integriert sein), dafür Bad recht klein und Ankleide recht schmal)
Preisschätzung lt Architekt/Planer: 465.000 (ohne Grundstück, ohne Baunebenkosten)
Persönliches Preislimit fürs Haus, inkl Ausstattung: 500.000
favorisierte Heiztechnik: Luft-Wasser-Wärmepumpe, ggf mit Photovoltaik
Wenn Ihr verzichten müsst, auf welche Details/Ausbauten
-könnt Ihr verzichten: Sauna, Kücheninsel, Dachterrasse
-könnt Ihr nicht verzichten: Kamin, Arbeits-/Gästezimmer, separate Ankleide/„Schrankzimmer“, 2 Bäder im OG
Warum ist der Entwurf so geworden, wie er jetzt ist? ZB
Standardentwurf vom Planer? - nein
Entsprechende/Welche Wünsche wurden vom Architekten umgesetzt? - Entwurf auf Basis unseres Raumprogramms und unserer "Wunschliste" (zB Kamin, „Sitzfensterbank“ in Küche, räumliche Trennung WZ und Küche, keine gefangene Ankleide)
Was macht ihn in Euren Augen besonders gut oder schlecht? - Schlecht: Flächennutzung im OG (20qm Flur + 10qm Sauna-/„Restraum“), gut: Trennung „Technikbereich“ im EG und Kinder-/Elternbereich im OG
Was ist die wichtigste/grundlegende Frage zum Grundriss in 130 Zeichen zusammengefasst?
Kann man auf Basis dieses ersten Entwurfs weiter planen oder besser noch mal neu von Null? Wenn letzteres, wie besser (klassisches Rechteck?)?









meine Frau und ich wollen demnächst auch unter die Häuslebauer gehen und haben uns von unserem (voraussichtlichen) Fertighausanbieter einmal einen Grundriss auf Basis unseres ersten Gesprächs erstellen lassen.
Ein konkretes Grundstück haben wir im Auge, allerdings wird das Neubaugebiet momentan noch vermessen und anschließend werden die Flurstücke neu geordnet. Einen amtlichen Lageplan des Grundstücks gibt es daher noch nicht, sondern nur den beigefügten Bebauungsplan-Ausschnitt (gestrichelte Linien = Grundstück-Grenzen).
Den Grundrissentwurf finden wir zunächst mal interessant, zumal es (jedenfalls für uns) nicht nach einem Grundriss von der Stange des Anbieters aussieht. Einige aus meiner Sicht verbesserungswürdige Punkte habe ich unten mal aufgelistet - euch fallen bestimmt noch mehr auf/ein...
Vielen Dank vorab schon einmal für eure Eischätzungen!
Thomas
Bebauungsplan/Einschränkungen
Größe des Grundstücks - 47qm
Hang - nein
Grundflächenzahl - 0,4
Geschossflächenzahl - 0,8
Baufenster, Baulinie und -grenze - Baufenster 10x20m, Grenzabstand 3m zur Straße/Nachbargrundstück, Randbebauung - möglich, nicht geplant
Anzahl Stellplatz - 2
Geschossigkeit - 2 Vollgeschosse
Dachform - Sattel, Walm, Pult, Flach
Stilrichtung - modern
Ausrichtung -
Maximale Höhen/Begrenzungen - 9,80m Höhe Fahrbahnoberkante bis OK Gebäude
weitere Vorgaben -
Anforderungen der Bauherren
Stilrichtung, Dachform, Gebäudetyp - nicht festegelegt (außer: kein Flachdach)
Keller, Geschosse - 2 Vollgeschosse, kein Keller
Anzahl der Personen, Alter - 3 Personen (36,35,1), perspektivisch 2. Kind
Raumbedarf im EG, OG - EG: Offener Wohn/Ess/Küchenbereich, Speisekammer, Arbeits-/Gästezimmer, Hauswirtschaftsraum. OG: Schlafzimmer/Bad/„Ankleide“, 2 Kinderzimmer, Kinderbad
Büro: Familiennutzung oder Homeoffice? - gelegentlich Homeoffice, Raum teilt sich Funktion mit Gästezimmer
Schlafgäste pro Jahr - 5-10
offene oder geschlossene Architektur - offen
konservativ oder moderne Bauweise - modern
offene Küche, Kochinsel - ja
Anzahl Essplätze - 6-10
Kamin - ja
Musik/Stereowand - nein
Balkon, Dachterrasse - nice to have, nicht zwingend
Garage, Carport - Carport
Nutzgarten, Treibhaus - nein
Hausentwurf
Von wem stammt die Planung: GU
Was gefällt besonders? Warum?
EG: offener Wohn-/Essbereich und trotzdem keine Sichtachse Sofa/Küche, kurzer Weg von Haustür zu Speisekammer, abgetrennter Bereich HTR/Hauswirtschaftsraum.
OG: Kinder- und Elternbereich getrennt, keine „gefangene“ Ankleide, Dachterrasse, „Schlafpodest“ in Kinderzimmer
Was gefällt nicht? Warum?
Grundsätzlich: Grundriss sieht sehr schlauchig aus
EG: Windfang (mE unnötig), Garderobe weit weg von Haustür (alternativ unter Treppe?), WC zu schmal(?), kein direkter Zugang von Küche zur Terrasse (geplant im SO/SW - „über Eck“), Sitzecke in Küche (kommt weg bzw. Sitzfensterbank geplant), Abstand Kücheninsel /Wand, Durchgang Wohnen/Essen zu eng wenn Kamin und Klavier (175x60) wie vorgesehen stehen?
OG: Kinderzimmer im Norden, Schlafzimmer im Süden, „Raum“ am Austritt auf Dachterrasse, Flächennutzung insgesamt (großer Flur 20qm plus 10qm „Überbleibsel“ als „Saunaraum“ (Sauna für 2 Personen sollte im Bad integriert sein), dafür Bad recht klein und Ankleide recht schmal)
Preisschätzung lt Architekt/Planer: 465.000 (ohne Grundstück, ohne Baunebenkosten)
Persönliches Preislimit fürs Haus, inkl Ausstattung: 500.000
favorisierte Heiztechnik: Luft-Wasser-Wärmepumpe, ggf mit Photovoltaik
Wenn Ihr verzichten müsst, auf welche Details/Ausbauten
-könnt Ihr verzichten: Sauna, Kücheninsel, Dachterrasse
-könnt Ihr nicht verzichten: Kamin, Arbeits-/Gästezimmer, separate Ankleide/„Schrankzimmer“, 2 Bäder im OG
Warum ist der Entwurf so geworden, wie er jetzt ist? ZB
Standardentwurf vom Planer? - nein
Entsprechende/Welche Wünsche wurden vom Architekten umgesetzt? - Entwurf auf Basis unseres Raumprogramms und unserer "Wunschliste" (zB Kamin, „Sitzfensterbank“ in Küche, räumliche Trennung WZ und Küche, keine gefangene Ankleide)
Was macht ihn in Euren Augen besonders gut oder schlecht? - Schlecht: Flächennutzung im OG (20qm Flur + 10qm Sauna-/„Restraum“), gut: Trennung „Technikbereich“ im EG und Kinder-/Elternbereich im OG
Was ist die wichtigste/grundlegende Frage zum Grundriss in 130 Zeichen zusammengefasst?
Kann man auf Basis dieses ersten Entwurfs weiter planen oder besser noch mal neu von Null? Wenn letzteres, wie besser (klassisches Rechteck?)?
Gefällt euch dieser verschachtelte Grundriss?
Ich hätte spontan einige Ecken rausgenommen.
Wie ist das Carport und die Stellplätze eingeplant
Unbedingt eure vorhandene oder gewünschte Möblierung im Maßstab einzeichnen. Dabei die Laufwege und bei Tischen besetzte Stühle berücksichtigen.
Ich hätte spontan einige Ecken rausgenommen.
Wie ist das Carport und die Stellplätze eingeplant
Unbedingt eure vorhandene oder gewünschte Möblierung im Maßstab einzeichnen. Dabei die Laufwege und bei Tischen besetzte Stühle berücksichtigen.
Climbee schrieb:
Auch ohne Keller wird das schwer mit dem Budget hin zu kommen, da will ich ja noch gar nicht auf Details eingehen.
Ist das euer maximaler Betrag? Dann könnt ihr gleich mal abspecken.
Und das muß ja auch - bei einer Grundstücksgröße von 47qm Ich find, das geht schon. 500K sind ne Ansage. Wenn die 190qm etwa stimmen, sollte es klappen. Grundstück und Baunebenkosten sind ja separat.B
Builderbob28.10.19 15:27@haydee / @kaho674
Meine Frau findet das Verschachtelte ganz nett ("individuell"). Ich habe mich aber auch gefragt, ob nicht ein "einfacherer" Grundriss (z.B. 9x12m) mit ggf. einem Erker (wo auch immer) mehr Sinn macht... Dann wäre auch mehr Platz für Garten über...
Carport ist nördlich der Haustür angedacht (darf lt. Bebauungsplan auch in die Abstandsfläche zum Nachbarn), der zweite Stellplatz davor zur Straße hin.
@Climbee
Stimmt, bei 47 qm Grundstück sollten wir vielleicht lieber in die Höhe bauen...
Mit Abspecken habe ich per se kein Problem, zumal der Entwurf von der Wohnfläche auch um einiges über den anvisierten ~180-190 qm liegt - nur wo genau? Und vielleicht noch zur Klarstellung (kann meinen Ausgangspost nicht mehr bearbeiten): das angegebene Budget ist fürs Haus, für Außenanlagen und Co. gibt es ein separates. Was aber nicht heißt, dass wir um jeden Preis die 500.000 auch loswerden müssen
Meine Frau findet das Verschachtelte ganz nett ("individuell"). Ich habe mich aber auch gefragt, ob nicht ein "einfacherer" Grundriss (z.B. 9x12m) mit ggf. einem Erker (wo auch immer) mehr Sinn macht... Dann wäre auch mehr Platz für Garten über...
Carport ist nördlich der Haustür angedacht (darf lt. Bebauungsplan auch in die Abstandsfläche zum Nachbarn), der zweite Stellplatz davor zur Straße hin.
@Climbee
Stimmt, bei 47 qm Grundstück sollten wir vielleicht lieber in die Höhe bauen...
Mit Abspecken habe ich per se kein Problem, zumal der Entwurf von der Wohnfläche auch um einiges über den anvisierten ~180-190 qm liegt - nur wo genau? Und vielleicht noch zur Klarstellung (kann meinen Ausgangspost nicht mehr bearbeiten): das angegebene Budget ist fürs Haus, für Außenanlagen und Co. gibt es ein separates. Was aber nicht heißt, dass wir um jeden Preis die 500.000 auch loswerden müssen
Ähnliche Themen