Einfamilienhaus 180-190qm auf 10x20m Baufenster, erster Entwurf GU

4,00 Stern(e) 12 Votes
Zuletzt aktualisiert 19.11.2025
Sie befinden sich auf der Seite 5 der Diskussion zum Thema: Einfamilienhaus 180-190qm auf 10x20m Baufenster, erster Entwurf GU
>> Zum 1. Beitrag <<

Climbee

Climbee

Für mich ist alles in einer Schriftgröße

Builderbob, erkundige dich was für eine Anzahl an Stellplätzen vorgeschrieben ist. Meist gibt es da Auflagen wie viel und wie. Bei uns dürfen die z.B. nicht hintereinander liegen sondern jeder Stellplatz muß einzeln zugänglich sein. Das regelt aber jede Gemeinde für sich, auch die Anzahl. Aber unter zwei Stellplätzen für ein Einfamilienhaus wird es wahrscheinlich eh nicht gehen.
Die Frage ist, ob das Garagen/Carports werden müssen oder eben auch schnöde Stellplätze sein können. Die brauchen nämlich weniger Platz. Auch eine Kombi von Garage/überdachter Stellplatz oder Carport/offener Stellplatz wäre zu überlegen. Oder ein Doppelcarport mit einer Holzwand an der Wetterseite. Auch das benötigt weniger Platz als eine Garage mit Mauern drumrum (da kann man die Autotür nämlich nur bis zur Mauer auf machen - beim offenen Stellplatz/Carport auch drüber hinaus)
 
V

vx220

Würde mich auch wundern wenn hintereinander gewertet wird als 2 Stellplätze.
Bei uns in Bayern ist die Art egal. Hauptsache nicht hintereinander.
 
B

Builderbob

Meist gibt es da Auflagen wie viel und wie. Bei uns dürfen die z.B. nicht hintereinander liegen sondern jeder Stellplatz muß einzeln zugänglich sein. Das regelt aber jede Gemeinde für sich, auch die Anzahl. Aber unter zwei Stellplätzen für ein Einfamilienhaus wird es wahrscheinlich eh nicht gehen.
Habe mal in die Stellplatzsatzung der Gemeinde geschaut:
"(1) Garagen und Stellplätze müssen ohne Überquerung anderer Stellplätze ungehindert erreichbar sein.
(2) Ist für eine Wohnung mehr als ein Stellplatz erforderlich, kann dieser zusätzliche Stellplatz auch so hergestellt werden, dass der andere zu dieser Wohnung gehörende Stellplatz gefangen angeordnet ist."

Der Bebauungsplan sagt folgendes:
"Im allgemeinen Wohngebiet sind außerhalb der durch Baugrenzen festgesetzten überbaubaren Grundstücksfläche nur offene und überdachte Stellplätze mit einem maximalen Abstand von der Straßenbegrenzungslinie von 6,0m zulässig.
Garagen haben mit ihren Zufahrten einen seitlichen Mindestabstand zu Verkehrsflächen und öffentlichen Grünflächen von 1,50m einzuhalten."

Bedeutet für mich: für ein Einfamilienhaus (1 "Wohnung" im Sinne der Satzung) kann ich zwei Stellplätze hintereinander anordnen. Die 6m Abstand von der Straßenbegrenzungslinie für den weiter von der Straße entfernt liegenden Stellplatz sollten dafür ja ausreichen. Da nur offene und überdachte Stellplätze außerhalb der Baugrenzen stehen dürfen, scheiden Garagen wegen des schmalen Grundstücks wohl aus (außer ich würde sie ganz in den Norden des Baufensters setzen und das Haus dahinter)...

Nachdem ich noch mal darüber nachgedacht habe, wäre ein Doppelcarport wirklich nicht schlecht. Ich sehe aber nicht, wo ich das unterbringen könnte, außer eben direkt an der Straße und das Haus dahinter. Anders als die Garagen dürfte das Carport ja wohl direkt an die Straße und müsste nicht ins Baufenster = 3m Abstand halten?
 
RomeoZwo

RomeoZwo

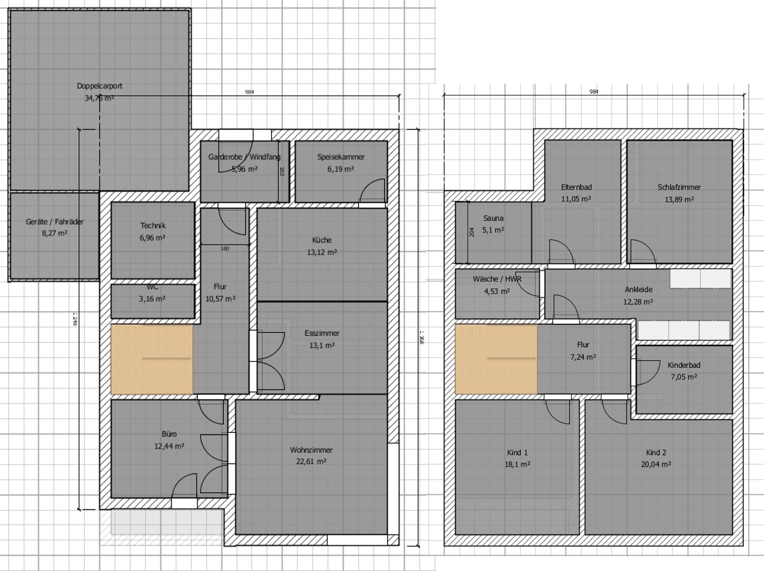
So, ich hab mal mit einem Doppelcarport (weil die 1,5m gelten ja nur für Garagen) und einem Eingang im Nordosten gespielt ...

Grün umkreiste Bauplan-Szene mit überlagertem Grundriss und farbigen Zonen.


Mit dem OG Grundriss bin ich allerdings noch nicht zufrieden. Den Hauswirtschaftsraum als Wäscheraum hab ich jetzt im OG, weil im EG durch das Carport-Eck der Platz gefehlt hat. Dadurch ist das OG aber leider etwas verschachtelt geworden. Die Kinderzimmer sind auch eher groß geraten, aber eine Verschiebung der Treppe würde das Büro wieder verkleinern. Oder auf das Gimmick "überdachter Außenbereich" vor dem Büro verzichten. Aber gerade ein kleiner Überdachter Terrassenbereich - muss auch nicht auf der Hauptterrasse sein - fehlt mir an unserem Haus.


Grundriss eines Hauses: linke Seite Wohnen/Küche, rechte Seite Schlafzimmer/Kinderzimmer, Bad Sauna.


Aber eigentlich wäre die Hauptterrasse doch nach Südwesten am schönsten, oder? Dann das Büro doch lieber wieder nach oben ... hab da schon wieder ne neue Idee ...
 
kaho674

kaho674

"Im allgemeinen Wohngebiet sind außerhalb der durch Baugrenzen festgesetzten überbaubaren Grundstücksfläche nur offene und überdachte Stellplätze mit einem maximalen Abstand von der Straßenbegrenzungslinie von 6,0m zulässig.
Also ich lese hier, dass jeder Stellplatz (außerhalb der Baugrenzen) - ob offen oder überdacht - einen Mindestabstand von 6m zur Straße haben muss. Aber wir können ja mal @Escroda fragen...?
 
Zuletzt aktualisiert 19.11.2025
Im Forum Grundrissplanung / Grundstücksplanung gibt es 2536 Themen mit insgesamt 87973 Beiträgen


Ähnliche Themen zu Einfamilienhaus 180-190qm auf 10x20m Baufenster, erster Entwurf GU
Nr.ErgebnisBeiträge
1Wer muss die Höhe Garagen/Stellplatz wiederherstellen? 50
2Stellplatz am Haus sein, der von drei Seiten einegezäunt ist?? - Seite 856
3Carport vs. Baugrenze - Niedersachsen 29
4TG-Stellplatz: Beste Position für 230V Steckdose und Wallbox 11
5Einfamilienhaus 2 Grundrissvarianten Entscheidung 19
66 Stellplätze auf einem Grundstück Anordnen - Seite 220
7Platzierung Stellplätze / Carport auf dem Grundstück 42
8Alle erforderlichen Stellplätze bauen, auch wenn diese nicht benötigt? - Seite 656
9Ausgewiesener Stellplatz als Garten nutzen - Seite 213
10Zu Wenig Stellplätze für Baugenehmigung 20
11Stellplatz Baden Württemberg - Seite 313
12Grundrissoptimierung Sanierung Zweifamilienhaus zu Einfamilienhaus Bj. 1957 31
13Kostenschätzung Planung Einfamilienhaus 13
14Wohnen auf Werkstatt / Garagen - Seite 221
15Einfamilienhaus mit ebenerdiger Einliegerwohnung auf Hang - Seite 6297
16Grundriss Einfamilienhaus ca. 300qm, Grundstück 780qm 24
17Grundstück zur Bebauung neben Bestand - "Einfamilienhaus in Omas Garten" 23
18Grundriss 200m² Einfamilienhaus, Hochparterre, Bestandsgrundstück, Doppelgarage 88
19Süd Hang Grundstück 700qm Einfamilienhaus ca. 150qm, Ideen Input? 41
20Einfamilienhaus Satteldach ca. 137qm, 1 Vollgeschoss 121

Oben