ᐅ Einfamilienhaus, ~160m², Bauhausstil; Erster Entwurf nach unseren Wünschen
Erstellt am: 23.08.19 22:03
N
NotstromHallo zusammen,
lange haben wir uns darauf gefreut endlich können wir euch unseren ersten diskutierbaren Grundriss / Entwurf zeigen und sind ganz gespannt auf euer Feedback.
Der eine oder andere wir meinen Thread schon mal gesehen haben (https://www.hausbau-forum.de/threads/efh-Bauhausstil-Wohnfläche-180m-mit-Doppelgarage.31853/
) haben und hier kommt das Schmuckstück
Bebauungsplan/Einschränkungen
Größe des Grundstücks: 530m²
Hang: Nein
Grundflächenzahl: s. Screenshot
Geschossflächenzahl: s. Screenshot
Baufenster, Baulinie und -grenze: s. Screenshot
Randbebauung: s. Screenshot
Anzahl Stellplatz: Doppelgarage
Geschossigkeit: 2
Dachform: Flachdach
Stilrichtung: Bauhaus
Ausrichtung
Maximale Höhen/Begrenzungen
weitere Vorgaben
Der grün markierte Bereich stellt unser Grundstück dar => Flurstück 8479



Anforderungen der Bauherren
Stilrichtung, Dachform, Gebäudetyp: Bauhausstil, flaches Dach
Keller, Geschosse: Keller ja, EG, OG
Anzahl der Personen, Alter: 3 Personen perspektivisch vier: 33, 30, 2
Raumbedarf im EG, OG: Wir hatten mal mit 180 auf zwei Stockwerken geplant, dies aber nun (auch des Feedbacks hier wegen) reduziert auf 160, EG etwas größer als das OG, rund 75-85m2
Büro: Familiennutzung oder Homeoffice? Ja, im Keller (Gästezimmer <-> Büro)
Schlafgäste pro Jahr: schwer zu sagen, bestimmt ca. 10x / Jahr á 2-5
offene oder geschlossene Architektur: Eher offen
konservativ oder moderne Bauweise: Eher modern
offene Küche, Kochinsel: Insel
Anzahl Essplätze: 1
Kamin: Ja
Musik/Stereowand: Unsere Soundbar reicht völlig aus
Balkon, Dachterrasse: Vielleicht, eher unentschlossen (Architekt: Wie oft holst du dir wirklich dein Bier und gehst auf den Balkon / Dachterrasse statt auf die schöne Terrasse im EG?)
Garage, Carport: DG, ggf. Einzelgarage mit Carport
Nutzgarten, Treibhaus: Klein aber fein (ein paar Tomaten, Gurken, Zucchini...)
Hausentwurf
Von wem stammt die Planung: Architekt
Was gefällt besonders? Warum? DIe Architektur mit den zwei Rechtecken versetzt übereinander finden wir schön, fragen uns jedoch ob der zusätzliche Kostenaufwand (kennen bisher keine Hausnummer) dies rechtfertigt. Wir glauben das dies ja statisch schwieriger umzusetzen ist als bei einem "Würfel"
Was gefällt nicht? Warum? Die Größe des Schlafzimmer / Ankleidezimmer / Kinderzimmer. Gefühlt fehlen mir im Schlafzimmer 2-5 m² und im zweiten Kinderzimmer auch.
Preisschätzung lt Architekt/Planer: Im ersten Wurf waren das rund 550.000 EUR
Persönliches Preislimit fürs Haus, inkl Ausstattung: 620.000 EUR
favorisierte Heiztechnik: Indifferent, Tendenz: Wärmepumpe.
Wenn Ihr verzichten müsst, auf welche Details/Ausbauten
-könnt Ihr verzichten: die derzeitige Bauform (zwar schön, aber ein Würfel täte es auch)
-könnt Ihr nicht verzichten: Fläche
Warum ist der Entwurf so geworden, wie er jetzt ist? ZB
Standardentwurf vom Planer? Das ist der zweite Entwurf der aus dem GEspräch mit uns letzter Woche entstand und wir finden ihn sehr gelungen
Entsprechende/Welche Wünsche wurden vom Architekten umgesetzt? Absolut + zusätzlich die Idee von ihm die Küche "umzulegen" welche ihm beim Erarbeiten kam. Gästezimmer ist nun in den Keller gewandert => Damit mehr Fläche im EG (Davor fühlte es sich ziemlich lieblos und "aneinandergequetscht" an)
Was macht ihn in Euren Augen besonders gut oder schlecht? Die Architektur
...und nun lasse ich euch mal allein mit unserem Haus



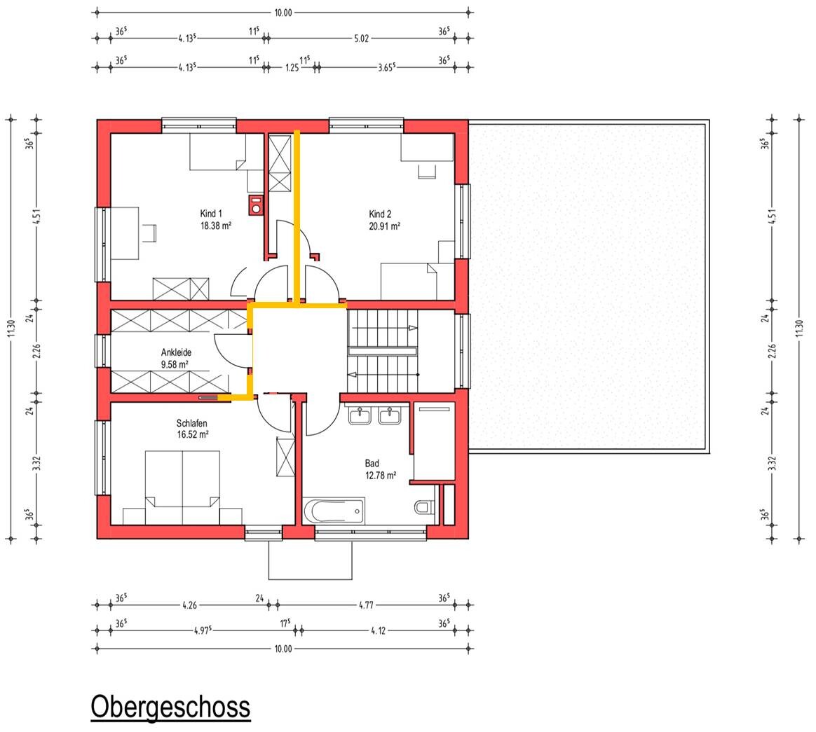
Grundriss OG:

Keller:



lange haben wir uns darauf gefreut endlich können wir euch unseren ersten diskutierbaren Grundriss / Entwurf zeigen und sind ganz gespannt auf euer Feedback.
Der eine oder andere wir meinen Thread schon mal gesehen haben (https://www.hausbau-forum.de/threads/efh-Bauhausstil-Wohnfläche-180m-mit-Doppelgarage.31853/
) haben und hier kommt das Schmuckstück
Bebauungsplan/Einschränkungen
Größe des Grundstücks: 530m²
Hang: Nein
Grundflächenzahl: s. Screenshot
Geschossflächenzahl: s. Screenshot
Baufenster, Baulinie und -grenze: s. Screenshot
Randbebauung: s. Screenshot
Anzahl Stellplatz: Doppelgarage
Geschossigkeit: 2
Dachform: Flachdach
Stilrichtung: Bauhaus
Ausrichtung
Maximale Höhen/Begrenzungen
weitere Vorgaben
Der grün markierte Bereich stellt unser Grundstück dar => Flurstück 8479
Anforderungen der Bauherren
Stilrichtung, Dachform, Gebäudetyp: Bauhausstil, flaches Dach
Keller, Geschosse: Keller ja, EG, OG
Anzahl der Personen, Alter: 3 Personen perspektivisch vier: 33, 30, 2
Raumbedarf im EG, OG: Wir hatten mal mit 180 auf zwei Stockwerken geplant, dies aber nun (auch des Feedbacks hier wegen) reduziert auf 160, EG etwas größer als das OG, rund 75-85m2
Büro: Familiennutzung oder Homeoffice? Ja, im Keller (Gästezimmer <-> Büro)
Schlafgäste pro Jahr: schwer zu sagen, bestimmt ca. 10x / Jahr á 2-5
offene oder geschlossene Architektur: Eher offen
konservativ oder moderne Bauweise: Eher modern
offene Küche, Kochinsel: Insel
Anzahl Essplätze: 1
Kamin: Ja
Musik/Stereowand: Unsere Soundbar reicht völlig aus
Balkon, Dachterrasse: Vielleicht, eher unentschlossen (Architekt: Wie oft holst du dir wirklich dein Bier und gehst auf den Balkon / Dachterrasse statt auf die schöne Terrasse im EG?)
Garage, Carport: DG, ggf. Einzelgarage mit Carport
Nutzgarten, Treibhaus: Klein aber fein (ein paar Tomaten, Gurken, Zucchini...)
Hausentwurf
Von wem stammt die Planung: Architekt
Was gefällt besonders? Warum? DIe Architektur mit den zwei Rechtecken versetzt übereinander finden wir schön, fragen uns jedoch ob der zusätzliche Kostenaufwand (kennen bisher keine Hausnummer) dies rechtfertigt. Wir glauben das dies ja statisch schwieriger umzusetzen ist als bei einem "Würfel"
Was gefällt nicht? Warum? Die Größe des Schlafzimmer / Ankleidezimmer / Kinderzimmer. Gefühlt fehlen mir im Schlafzimmer 2-5 m² und im zweiten Kinderzimmer auch.
Preisschätzung lt Architekt/Planer: Im ersten Wurf waren das rund 550.000 EUR
Persönliches Preislimit fürs Haus, inkl Ausstattung: 620.000 EUR
favorisierte Heiztechnik: Indifferent, Tendenz: Wärmepumpe.
Wenn Ihr verzichten müsst, auf welche Details/Ausbauten
-könnt Ihr verzichten: die derzeitige Bauform (zwar schön, aber ein Würfel täte es auch)
-könnt Ihr nicht verzichten: Fläche
Warum ist der Entwurf so geworden, wie er jetzt ist? ZB
Standardentwurf vom Planer? Das ist der zweite Entwurf der aus dem GEspräch mit uns letzter Woche entstand und wir finden ihn sehr gelungen
Entsprechende/Welche Wünsche wurden vom Architekten umgesetzt? Absolut + zusätzlich die Idee von ihm die Küche "umzulegen" welche ihm beim Erarbeiten kam. Gästezimmer ist nun in den Keller gewandert => Damit mehr Fläche im EG (Davor fühlte es sich ziemlich lieblos und "aneinandergequetscht" an)
Was macht ihn in Euren Augen besonders gut oder schlecht? Die Architektur
...und nun lasse ich euch mal allein mit unserem Haus
Grundriss OG:
Keller:
Kann man anbieten. Ich persönlich mag diese massiven Überhänge ja nicht, aber das ist Geschmackssache.
Das WZ wäre mir für die Hausgröße etwas zu knapp, aber geht noch. Die Tür zum WC im EG würde ich in den Eingangsbereich verlegen, da mir das stille Örtchen sonst nicht still genug wäre.
Kinderzimmer am Schlafzimmer ist ja immer so ne Sache - da würd ich die Wand etwas dicker machen. Gilt auch für das Kind am Bad.
Keller 2 würd ich teilen. Nicht jeder Kellerraum braucht zwingend einen Lichtschacht. Macht die Terrasse zur Sau. Das wär's mir nicht wert.
Ansonsten ganz gut.
Das WZ wäre mir für die Hausgröße etwas zu knapp, aber geht noch. Die Tür zum WC im EG würde ich in den Eingangsbereich verlegen, da mir das stille Örtchen sonst nicht still genug wäre.
Kinderzimmer am Schlafzimmer ist ja immer so ne Sache - da würd ich die Wand etwas dicker machen. Gilt auch für das Kind am Bad.
Keller 2 würd ich teilen. Nicht jeder Kellerraum braucht zwingend einen Lichtschacht. Macht die Terrasse zur Sau. Das wär's mir nicht wert.
Ansonsten ganz gut.
Notstrom schrieb:
Der eine oder andere wir meinen Thread schon mal gesehen haben (https://www.hausbau-forum.de/threads/efh-Bauhausstil-Wohnfläche-180m-mit-Doppelgarage.31853/
) haben und hier kommt das SchmuckstückIch schaue es mir morgen mal in Ruhe an - einstweilen Danke für die vorbildliche Verlinkung zwischen Ursprungs- und Grundrissthema !https://www.instagram.com/11antgmxde/
https://www.linkedin.com/company/bauen-jetzt/
Mir gefällt das wohl
Ich mag diese Überhänge, möchte sie aber selbst nicht haben.
Aber ein schöner Entwurf!
Fürs OG wären Maße interessant.
Was mir nicht gefällt: WZ-Einrichtung wirkt unbehaglich. Um 90 Grad gedreht gg den Uhrzeigersinn würde es schon etwas behaglicher sein. Dennoch aufpassen mit zwei Zugängen - das WZ könnte einfach nicht gemütlich sein. Ist zwei Kindern auch solche Sache, welchen Weg sie abends einschlagen.
Bad ist unmöglich möbliert. Da jetzt schon Planungen investieren.
Ich mag diese Überhänge, möchte sie aber selbst nicht haben.
Aber ein schöner Entwurf!
Fürs OG wären Maße interessant.
Was mir nicht gefällt: WZ-Einrichtung wirkt unbehaglich. Um 90 Grad gedreht gg den Uhrzeigersinn würde es schon etwas behaglicher sein. Dennoch aufpassen mit zwei Zugängen - das WZ könnte einfach nicht gemütlich sein. Ist zwei Kindern auch solche Sache, welchen Weg sie abends einschlagen.
Bad ist unmöglich möbliert. Da jetzt schon Planungen investieren.
Ihr habt ein flaches Grundstück und baut euch 4 Stufen vor die Tür?
Im og sind noch viele Ecken wo es nicht rund läuft.
Aus dem einen Elternzimmer lieber ein Kinderzimmer machen.
Dem Bad würde paar m2 gut tun, vor allem bei der Badewanne und der Tür.
Bei der Küche zum Flur eine Schiebetür einplanen.
Ansonsten sehr schick.
Im og sind noch viele Ecken wo es nicht rund läuft.
Aus dem einen Elternzimmer lieber ein Kinderzimmer machen.
Dem Bad würde paar m2 gut tun, vor allem bei der Badewanne und der Tür.
Bei der Küche zum Flur eine Schiebetür einplanen.
Ansonsten sehr schick.
Ähnliche Themen