Einfamilienhaus 145qm mit Garage ohne Keller

5,00 Stern(e) 7 Votes
Zuletzt aktualisiert 21.11.2025
Sie befinden sich auf der Seite 4 der Diskussion zum Thema: Einfamilienhaus 145qm mit Garage ohne Keller
>> Zum 1. Beitrag <<

XeNiA

XeNiA

Danke für diesen Denkanstoß :)
Wir hatten ganz am Anfang der Planung die gleichen Gedanken und sehen es zu 100% wie Du! Haben es dann irgendwie aus den Augen verloren, weil wir die Außenplanung zum großen Teil erst machen wollten, wenn wir drin sind und wissen, wie die Laufwege sind.
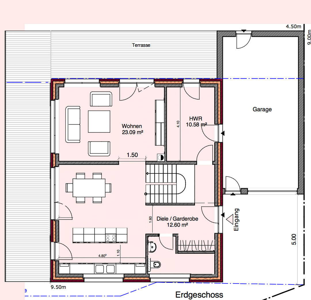
Auf der Ess-/Küchenseite (Süd-Seite) haben wir nur 3m bis zum Grundstücksende. Reicht das von der Tiefe denn aus für eine Terrasse? Würde es nicht zu gequetscht wirken?

Der Punkt mit der Waschmaschine und Trockner oben in der Ankleide wird auf jeden Fall nochmal überdacht.
Ich würde es toll finden, wenn wir die das irgendwie mit ins Bad integrieren könnten. Dafür die Ankleide etwas kleiner.
 
XeNiA

XeNiA

Vielen Dank Euch allen für Euer Feedback! Ich freu mich, dass es in Großen und Ganzen gut gelungen scheint :)

Basierend auf Euren Anmerkungen, habe ich gerade den Grundriss, Fenster und die Ansichten etwas geändert.
Was meint Ihr dazu?
Die Ansicht Ost gefällt mir so um Längen besser.
Zu den zu vielen Fenstern im Wohnzimmer will mir nichts Gescheites einfallen, vor allem weil ich große Fenster liebe ;-)

Frontansicht eines zweistöckigen Ziegelhauses mit Garage und großen Fenstern


Zweistöckiges Haus mit roter Backsteinfassade unten und grauer Metallfassade oben, große Fenster


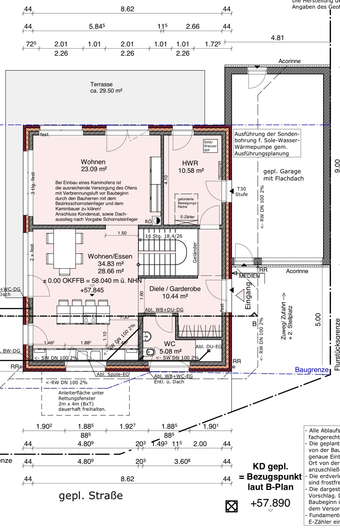
2D-Grundriss-Erdgeschoss: Wohnzimmer, Küche, Diele, HWR, Garage, Terrasse
 
Y

ypg

Der Trend geht zur 3.Terrasse [emoji2] Da kann eine gern etwas kuschliger gestaltet werden. Aber der Einwand ist völlig berechtigt von @Tego12


Grüsse
 
XeNiA

XeNiA

Hallo!

Da ich es immer sehr spannend finde, wie es mit all den geplanten Grundrissen weiter gegangen ist, möchte auch ich Euch gerne unser fertiges Haus zeigen und erzählen, ob wir es nochmal genau so bauen würden.
Wir haben im März 2017 angefangen zu bauen und sind nach genau 8 Monaten Bauzeit, im November 2017 eingezogen. Wir leben also schon fast sieben Jahre im Haus.
Fast alles würden wir wieder genauso planen wie damals (ich beschränke mich hier aber nur auf die Grundriss-Aspekte):
-Treppe zum Essbereich ausgerichtet und nicht direkt im Eingangsbereich
-zweite Dusche im EG
-direkter Zugang Hauswirtschaftsraum zur Garage
-Wohnzimmer durch Wand vom Essbereich und Küche trennen
-Podesttreppe
-Küche-Essbereich als Mittelpunkt des Hauses
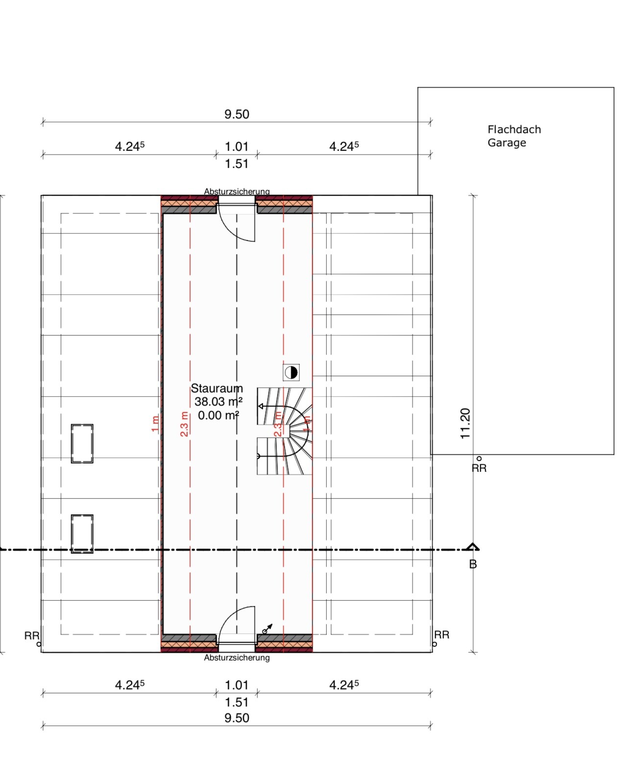
-große Ausbaureserve auf dem Dachboden
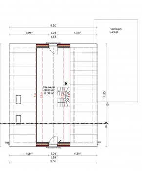
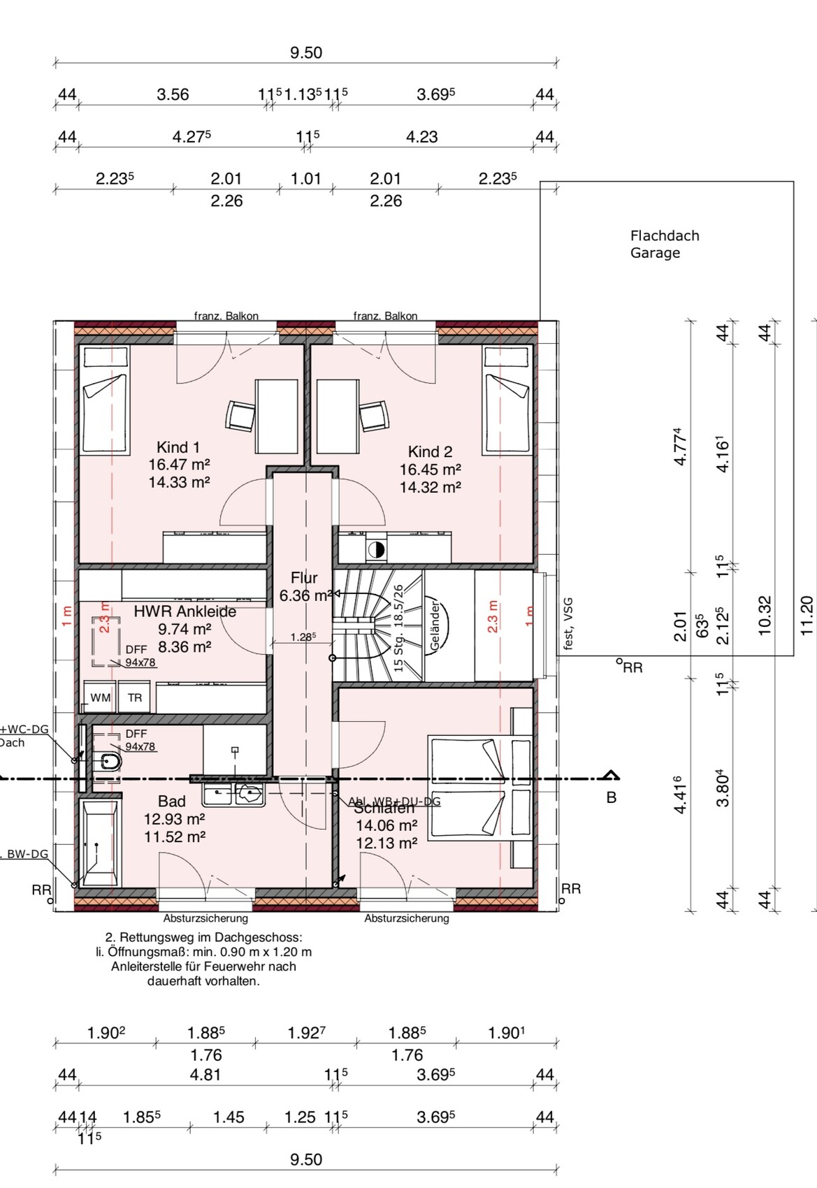
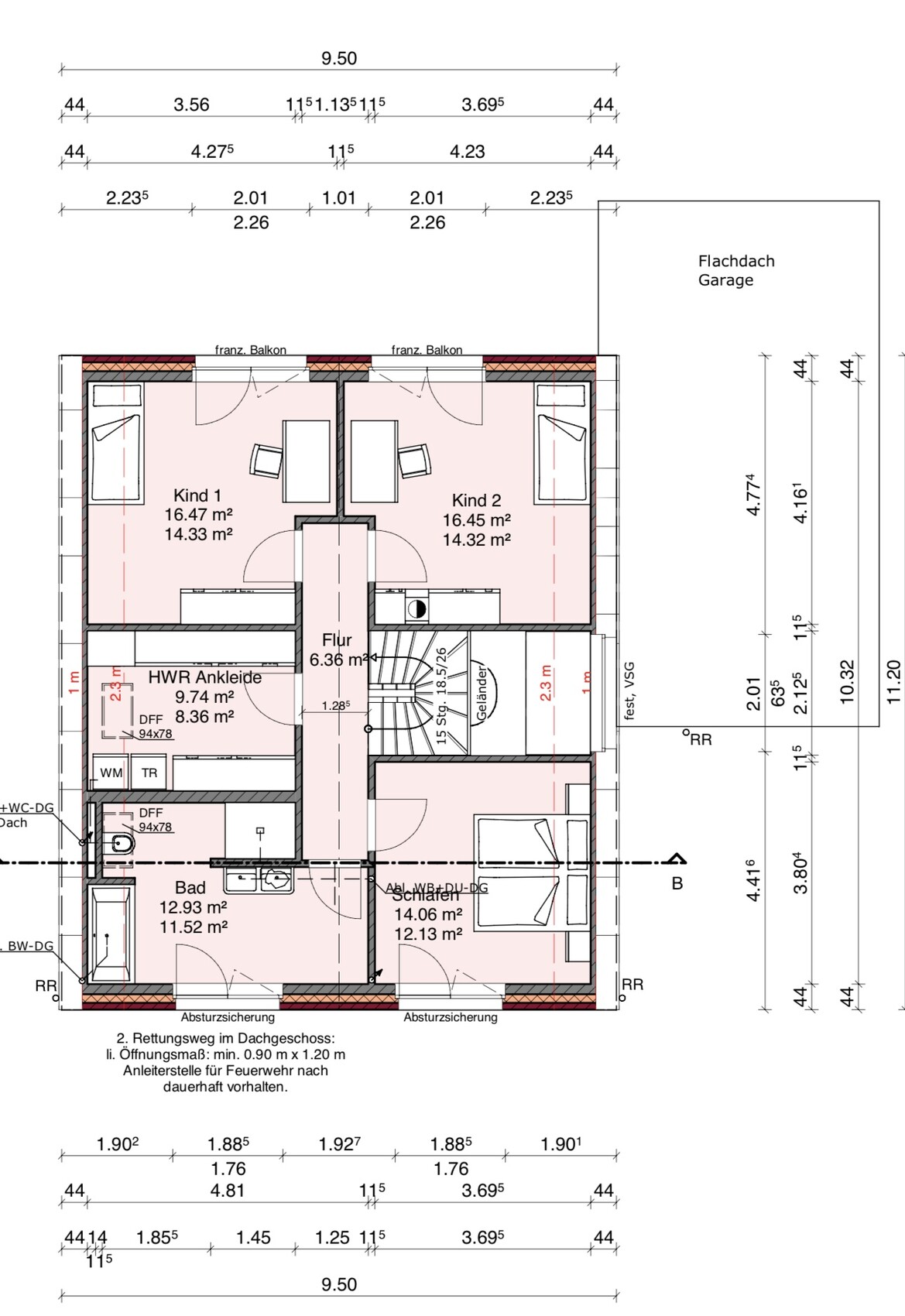
-zweiter Hauswirtschaftsraum im OG mit Waschmaschine und Trockner
-gleichgroße Kinderzimmer

was wir ändern würden:
-Lage der Kinderzimmer mit Schlafzimmer und Bad tauschen damit sie heller werden
-größere Fensterfront im Wohnzimmer ohne „Unterbrechungen“

Ich hoffe die Anregungen sind für den einen oder anderen interessant oder hilfreich und wünsche noch einen schönen Abend!




Grundrissplan eines Hauses mit Wohn- und Essbereich, Diele und Terrasse.

Grundriss Dachgeschoss: zwei Kinderzimmer, Schlafzimmer, Bad, Flur, HWR, Ankleide, Balkon

Grundriss eines Staurums mit Treppenaufgang, Absperrsicherungen und angrenzender Flachdach-Garage.

Garten mit Holzzaun, rotem Backsteinhaus, grüne Wiese, Kies- und Steinpfad.

Backsteinhaus im Abendlicht; warme Innenbeleuchtung hinter Glas-Schiebetüren; Garten und Pflanzen.

Rotes Backsteinhaus mit steilem Ziegeldach, Fenstern mit Jalousien und Baum davor.

Anhang anzeigen großer-garten-mit-terrasse-pergola-und-sitzbereich-am-ziegelhaus.jpeg
Anhang anzeigen gemuetliche-terrasse-im-garten-beim-rotem-ziegelhaus-mit-bambus-hecke-und-sonnensegel-esstisch-und-s
 
M

Maulwurfbau

Sehr sehr schön geworden. Mir gefällt euer Grundriss sehr gut.

Interessant finde ich den Aspekt der Zeit und der veränderten Sichtweise auf ein Haus. 2016 Geplant, da dachte noch niemand wirklich an Homeoffice, heute findest Du in nahezu jeder Planung ein kleines Office.
 
Zuletzt aktualisiert 21.11.2025
Im Forum Grundrissplanung / Grundstücksplanung gibt es 2535 Themen mit insgesamt 87978 Beiträgen


Ähnliche Themen zu Einfamilienhaus 145qm mit Garage ohne Keller
Nr.ErgebnisBeiträge
1Grundriss Einfamilienhaus mit Doppelgarage und Terrasse - Seite 219
2Grundriss für 150qm Einfamilienhaus mit Wohnzimmer nach Norden 21
3Eure Meinung zum Grundriss für das EG 28
4Feedback zu Grundriss Einfamilienhaus erwünscht 18
5Bewertung Grundriss ca. 160 qm Einfamilienhaus EG/OG ca. 800 qm Grundstück 33
6Waschmaschine und Trockner in Ankleide? 16
7Bungalow 135qm: Grundriss + Fenster - Seite 7104
8Platzierung der Möbel im Wohnzimmer im Grundriss 10
9Grundriss: Offenes Wohnzimmer inkl. Kamin - Feedback 11
10Nicht-bodentiefe Fenster im Wohnzimmer unmodern? Welche Vorhänge? - Seite 217
11Meinung zum Grundriss eines geplanten Bauhauses - Seite 323
12Unser Grundriss-Entwurf, eure Meinungen 20
13Findet ihr den Grundriss unserer Stadtvilla so Ok? 46
14Plan, wie findet ihr den Grundriss??? 13
15Grundriss mit Garage auf Grundstück realisierbar? - Seite 429
16Meinungen zum Grundriss Einfamilienhaus Münsterland 32
17Unser anvisierter Grundriss - bitte um Einschätzungen 67
18Meinung zu Grundriss 16
19Mal wieder Grundriss - Fertighaus kurz vor Bauantrag 22
20Grundriss - Eure Meinungen, Ideen und Vorschläge 31

Oben