Bebauungsplan - Vergrößerung Wohnfläche möglich?

4,80 Stern(e) 10 Votes
Zuletzt aktualisiert 21.11.2025
Sie befinden sich auf der Seite 17 der Diskussion zum Thema: Bebauungsplan - Vergrößerung Wohnfläche möglich?
>> Zum 1. Beitrag <<

H

hausbau_phobos

Fußbodenheizung gibt's.

Deine Variante gefällt mir sehr gut, wird so weitergereicht, danke.
Was bedeutet KW?
 
H

hanghaus2023

Bei Fußbodenheizung ist der Vorschlag der Architektin recht komplex. Du kannst ja auf den Estrich keine Wände stellen.

KW = Kinderwagen. Der kann bei Besuch auch in die Garage. ;)

Mir ist noch nicht klar wie der Abgang zum Keller aus der Terrasse umgebaut werden soll? Ist der durch eine Wand oder Brüstung von der Terrasse getrennt? Braucht man den denn noch?
 
H

hausbau_phobos

Bei Fußbodenheizung ist der Vorschlag der Architektin recht komplex. Du kannst ja auf den Estrich keine Wände stellen.

KW = Kinderwagen. Der kann bei Besuch auch in die Garage.

Mir ist noch nicht klar wie der Abgang zum Keller aus der Terrasse umgebaut werden soll? Ist der durch eine Wand oder Brüstung von der Terrasse getrennt? Braucht man den denn noch?
Ach so, ja der kann zur Not auch in die Garage, Immerhin haben wir dort jetzt einen Durchgang geplant, keine Ahnung wie man das ohne direkte Verbindung Garage <> Haus planen konnte - ziemlich dämlich, immer außen durch den Regen laufen zu müssen wenn die Garage schon de facto ins Haus integriert ist.
Bzgl Fußbodenheizung: Sorry, missverständlich. Fußbodenheizung gibt's heisst, Fußbodenheizung gibts künftig. Jetzt noch nicht.

Terrasse: Da ist derzeit eine hässliche, massive Betonbrüstung. Die kommt weg und wird durch etwas eleganteres ersetzt werden, meine Frau wollte zB so deckenhohe Holzstreben, keine Ahnung wie man das nennt. Der Abgang dort ist für mich etwas unglücklich positioniert, aber der Vorbesitzer hat aus der Garage in den Keller runter Motorräder gebracht zum Schrauben - da ist auch nur halb Treppe, halb Rampe, plus Seilwinde an der Decke :-/
Ich hätt die Treppe lieber irgendwo im Garten/zb beim Hauswirtschaftsraum, aber ist halt nun mal so.
 
H

hanghaus2023

Was der Frau gefällt wird selbstverständlich umgesetzt. ;) Kann mir die Holzabtrennung der Terrasse auch gut vorstellen.

Bei mir hat der Durchgang zur Garage dazu geführt, das die Erschließungskosten sich mit der Berechnungsgrundlage um 50 m2 erhöt hat.

Bitte da eine Brandschutztür planen. Aber das weiss die Architektin sicher.
 
H

hausbau_phobos

So, ich versuch mal den aktuellen Planstand hochzuladen.
Ich hoffe, man kann was erkennen - die Dokumente sind dermassen gross, dass runterskaliert vermutlich die Beschriftung nicht lesbar bleibt.
Echt ungeschickt, dass man hier nicht auf zB Dropbox verlinken darf.

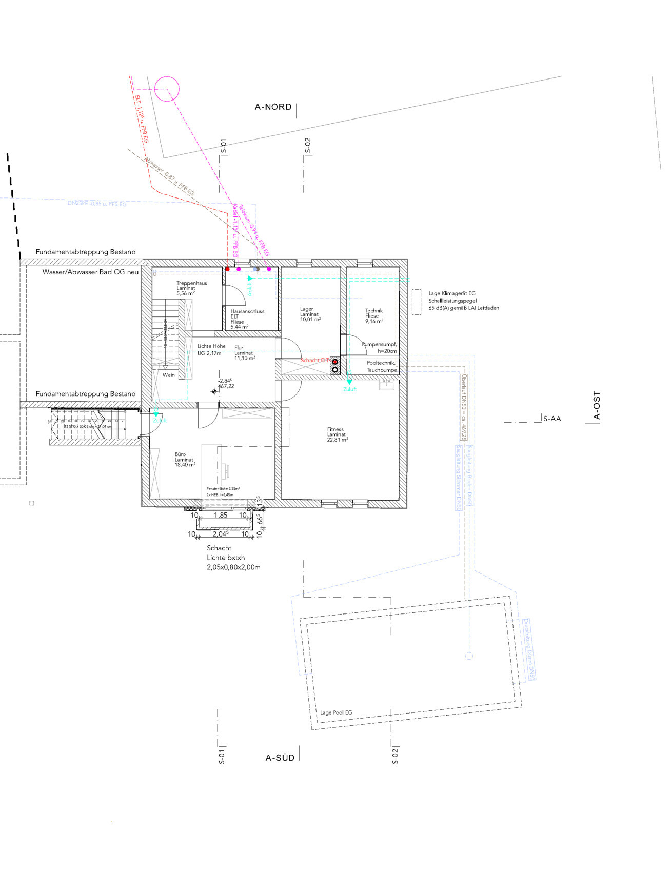
UG: Grundriss unverändert, ausser dem Lichtschacht in meinem künftigen Büro (Süd-West), der wird etwas größer und durch einen Spiegelschacht kommt mehr Tageslicht rein. Fitnessraum, ein Lagerraum, ein Technikraum (inkl. Pooltechnik), ein Elektro-Raum (KNX-Anlage + Netzwerktechnik brauchen Platz, plus dort kommen die Hausanschlüsse rein. Nicht ideal, ich wollte dort eigentlich noch ein kleines Bad, aber die Anschlüsse zu versetzen wäre viel zu teuer plus der Technikraum ohnehin zu klein für alles)

Grundrissplan eines Hauses mit Treppen, Zimmern, Bad und Technikraum

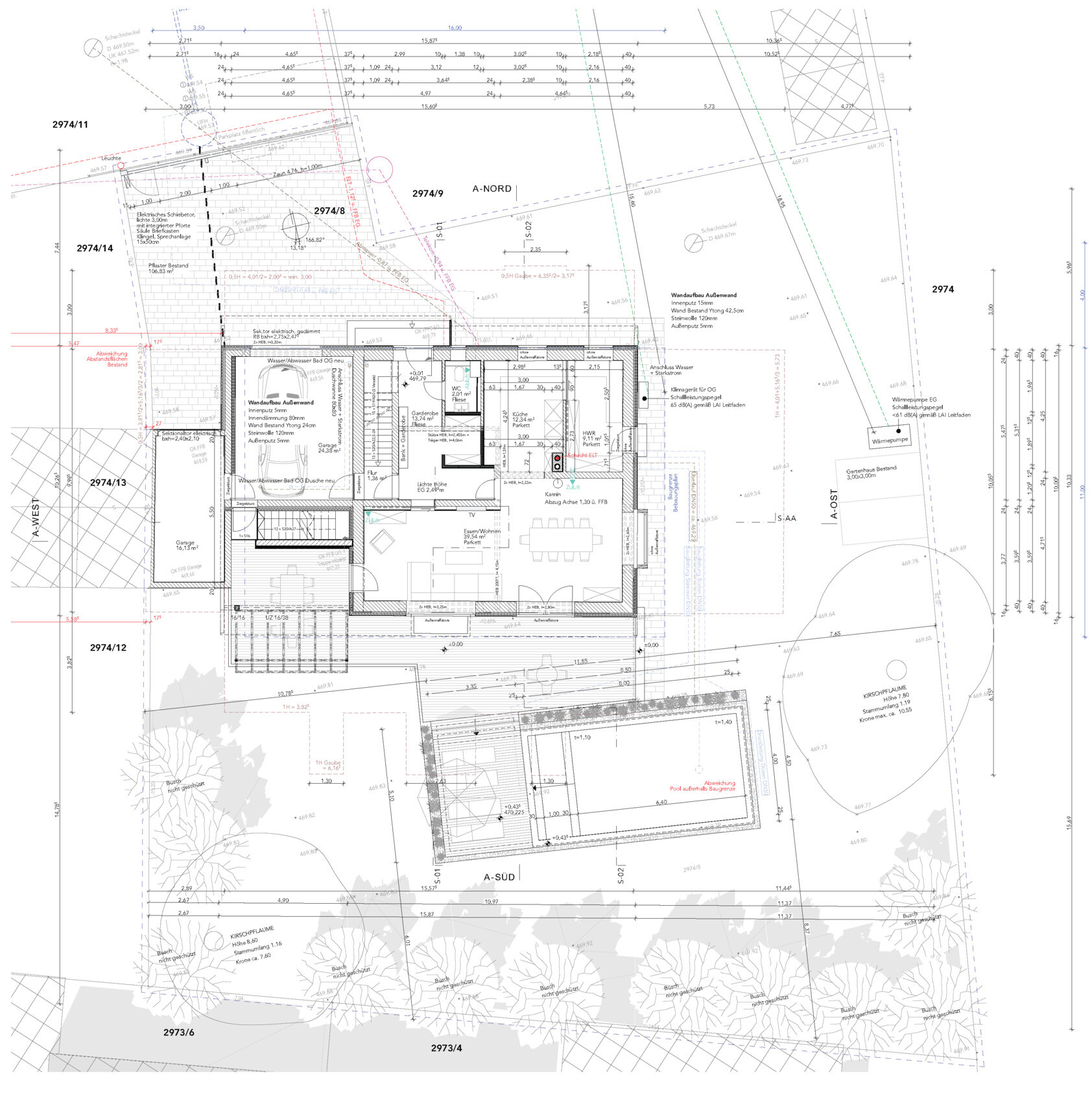
EG: Ess- und Wohnzimmer nun in einem, Zugang zu Küche neu über WZ, dafür Platz für eine Garderobe; wofür die kleine Dusche unten weichen muss. Mehr Fensterfläche, Sitzfenster, Durchgang in die Garage (der bislang nur von außen gegeben war??), Türe aus dem Hauswirtschaftsraum in den (Kräuter-)garten.
Aufschiebbares Glasdach als Vorbau noch vorm Freisitz (nur oben, seitlich offen)

Grundriss eines Wohnhauses: Innenraumaufteilung, Möbel, Maßlinien und umliegende Außenbereiche.

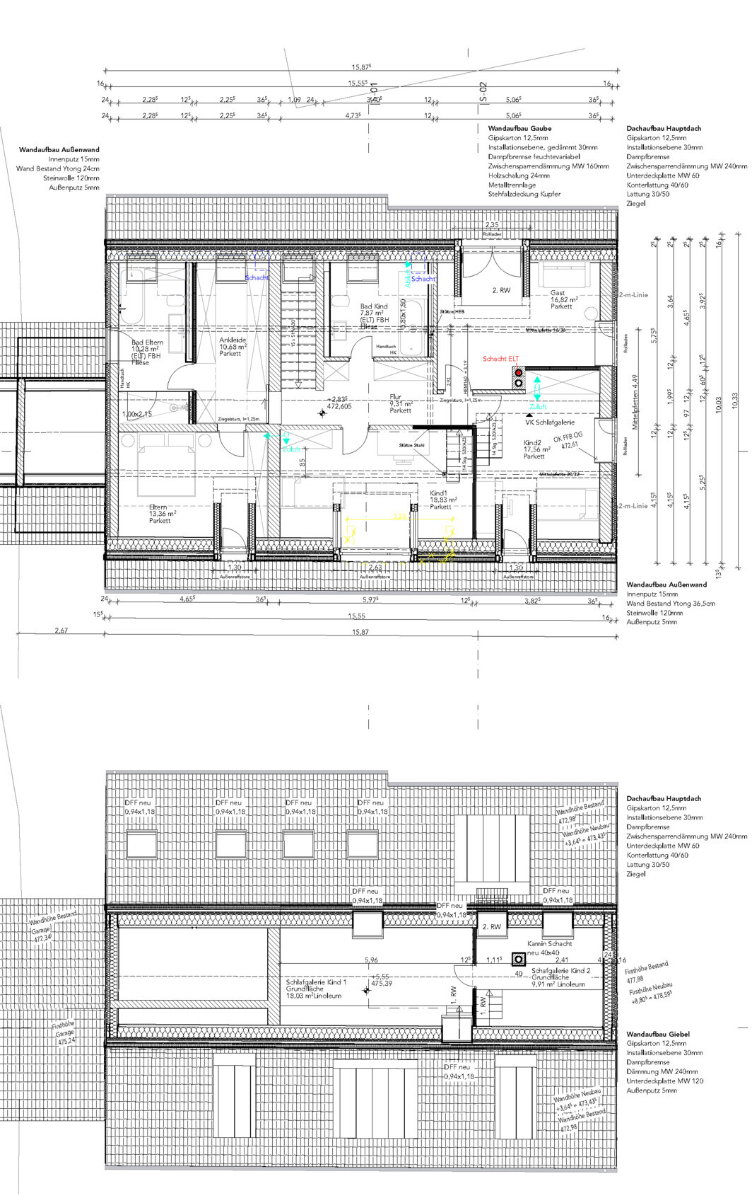
OG: Speicher wird ausgebaut zu Ankleide- und Badezimmer, Luftraum über Terrasse wird ein Boden eingezogen, das wird unser Schlafzimmer.
Elternbereich somit abgetrennt vom Rest des OGs. Zwischendecke wird entfernt, somit Deckenhöhe fast 5m, Blick auf die Holzbalken.
Kinderzimmer 1 (Osten) hat definitiv die bessere Aussicht, dafür ist Kinderzimmer 2 besser geschnitten und hat die größere Gaube (maximale Größe durch Bebauungsplan vorgegeben). Beide Kinderzimmer haben eine Treppe in die Galerien
Im N-O das Gästezimmer/Nähzimmer/Lesezimmer, damit wir dort auch was vom Ausblick haben - der Blick Richtung Osten geht unverbaubar über die Felder auf die Isarauen.
Spitzboden/Galerien: Wir Erwachsene haben ohnehin das ganze Haus für uns, also sollen die Kinder maximal viel Platz erhalten. Kinderzimmer 2 hat die größere Galerie, da das Zimmer sonst etwas benachteiligt ist. Licht Höhe über der Treppe überall >1.9m.

Architektur-Plan: detaillierter Grundriss eines Hauses mit Zimmern, Treppe und Dach.


Außenansichten:
Nordseite wird vermutlich die unterste Reihe PV entfallen zwecks besserer Optik. Gauben aus Kupfer. Fassade Betonoptik, Dach rot, Verkleidung Holz bei Eingang und flächenbündigem grossem Garagentor.
Verkleidung Sitzfenster aus Cortenstahl.

Vier Ansichten eines modernen Einfamilienhauses (Nord, Ost, Süd, West) mit PV-Dach und Glasfassade.

Mehrere Ansichten eines Hauses mit blauen Solarpanelen auf rotem Dach, Terrasse und Garten.
 
Zuletzt aktualisiert 21.11.2025
Im Forum Bauland / Baurecht / Baugenehmigung / Verträge gibt es 3159 Themen mit insgesamt 42907 Beiträgen


Ähnliche Themen zu Bebauungsplan - Vergrößerung Wohnfläche möglich?
Nr.ErgebnisBeiträge
1 2 Vollgeschosse, Durchgang Garage, Hauswirtschaftsraum unter Treppe 25
2Grundriss Einfamilienhaus ohne Keller, 3 Kinderzimmer und Büro 18
3Ideen zu Entwurf für Einfamilienhaus mit Keller - Seite 847
4Grundriss Einfamilienhaus 190m2 mit Keller Feedback? - Seite 441
5Einfamilienhaus - Bayern 150m² inkl Keller, Terrasse - Kostenaufstellung 11
6Entwurf Einfamilienhaus mit 3 Kinderzimmer, Keller und Grenzbebauung 32
7170m2 Einfamilienhaus auf dem bayrischen Lande 98
8Hanghaus 235 qm mit Garage im Keller auf 3600 qm Grundstück 15
9Holzdecke und Teilisolierung für Keller mit Garage - Seite 215
10Grundriss Einfamilienhaus 136m² mit Garage & Keller 17
11Grundriss Einfamilienhaus 155m², ohne Keller, 3 Kinderzimmer, 1 Büro 38
12Fußbodenheizung in Kinderzimmer? Einige Räume ohne Fußbodenheizung geplant? Luft-Wasser-Wärmepumpe raus? 48
13Eigenentwurf Grundriss Bungalow mit Keller 10
14Werkplanung Einfamilienhaus 180qm Flachdach mit Keller & Doppelgarage - Seite 2142
15Grundrissplanung Bungalow mit Keller an leichter Hanglage - Seite 226
16Stadtvilla 190m² mit Einfahrt & Garten zur Südseite 30
17Grundrissplanung Einfamilienhaus (Stadtvilla) ca.140m² (3 Kinderzimmer) 42
18Platzierung Haus und Garage auf leerem Grundstück - Ideen? - Seite 317
19200m2 Einfamilienhaus für 4-5 Personen ohne Keller auf schmalem Grundstück 67
20Grundrissentwurf Einfamilienhaus mit Keller und Doppelgarage auf 540qm - Seite 326

Oben