ᐅ Bebauungsplan - Vergrößerung Wohnfläche möglich?
Erstellt am: 09.06.23 13:25
H
hausbau_phobos09.06.23 13:25Liebe Leute,
wir sind derzeit auf der Suche nach einem Grundstück oder Haus in der näheren Umgebung. Da wir nur Kaufen würden, wenn wir ein relativ grosses Grundstück finden, ist die Auswahl gar nicht so gross.
Jetzt hätten wir ein tolles Grundstück gefunden, mit einem Haus aus 1980 darauf. Wir werden das Haus nächste Woche nochmals mit einem Gutachter gemeinsam besichtigen, da wir keine Ahnung von der Materie haben... Das bringt mich aber gleich zum nächsten Problem:
Uns ist bewusst, dass das Haus umfangreich saniert werden muss, da uns aber ohnehin die Wohnfläche etwas zu klein ist, würden wir sehr gerne gleichzeitig das Haus etwas erweitern, in welcher Form auch immer. Jetzt habe ich vom Makler den Bebauungsplan erhalten. Den kann ich mittels Google so halb und halb interpretieren, sicher bin ich mir aber nicht.
Standort ist Münchner Norden/Landkreis Freising.
Darf ich euch um Hilfe bitten?
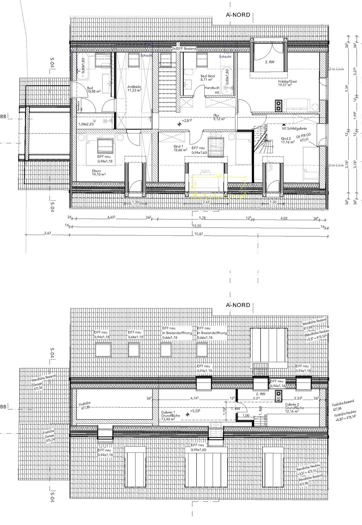
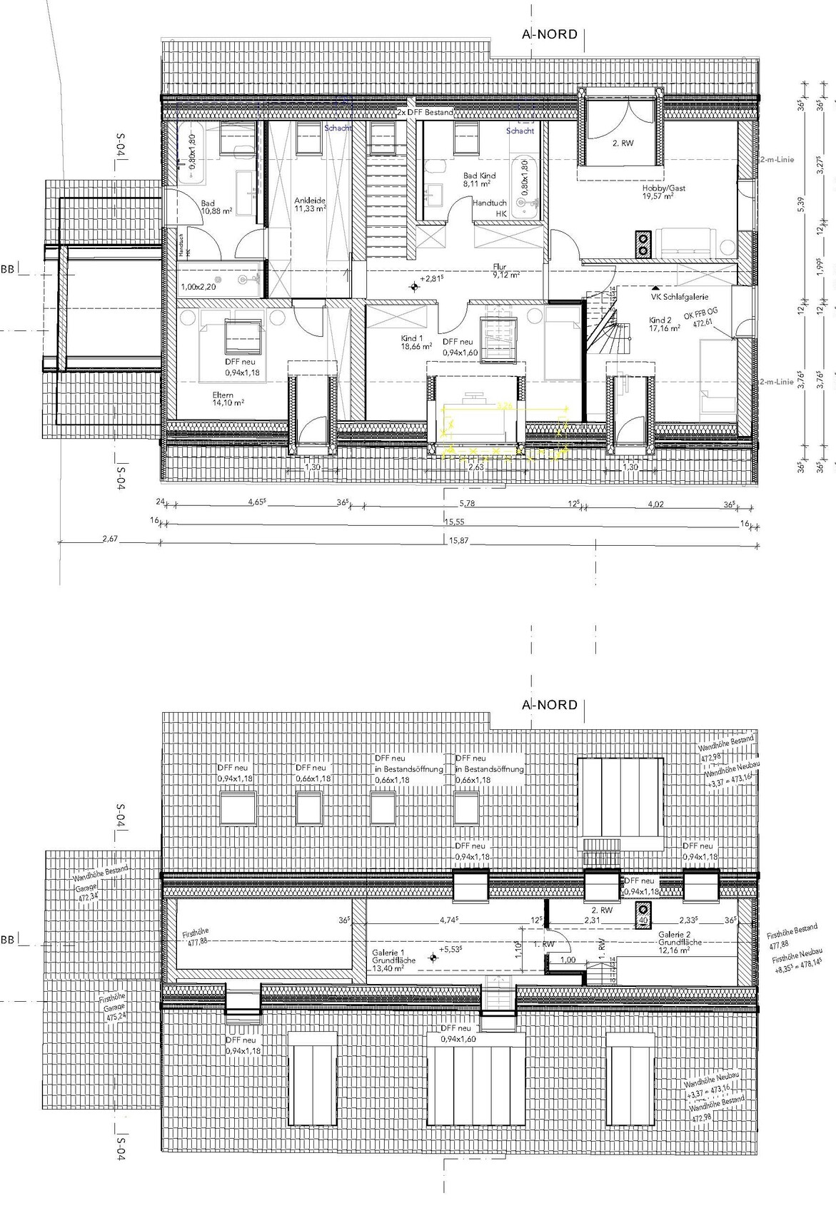
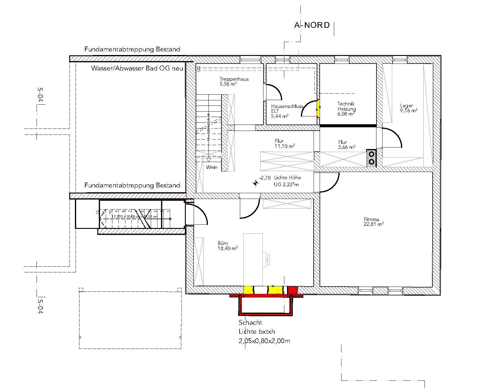
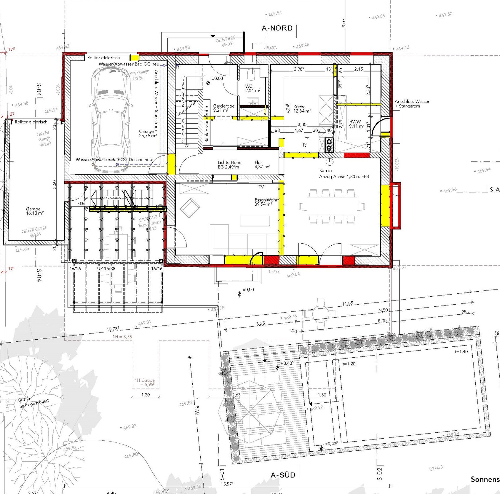
Anbei habe ich den Plan hochgeladen, das Grundstück ist grün eingekreist. Auf den ersten Blick sehe ich 2 Dinge, die irgendwie konträr sind - einerseits die Geschossflächenzahl von 0.4; andrerseits sind die Grundmauern des Hauses exakt vorgegeben - gibt es Möglichkeiten, hiervon etwas abzuweichen?
Wir würden natürlich jetzt nicht irgendwelche 200m2 anbauen wollen, aber idealerweise ca 20m2 Grundfläche + Obergeschoss wären schön, falls noch möglich.
Herzlichen Dank für eure Hilfe!
Schönes Wochenende,
Robert





wir sind derzeit auf der Suche nach einem Grundstück oder Haus in der näheren Umgebung. Da wir nur Kaufen würden, wenn wir ein relativ grosses Grundstück finden, ist die Auswahl gar nicht so gross.
Jetzt hätten wir ein tolles Grundstück gefunden, mit einem Haus aus 1980 darauf. Wir werden das Haus nächste Woche nochmals mit einem Gutachter gemeinsam besichtigen, da wir keine Ahnung von der Materie haben... Das bringt mich aber gleich zum nächsten Problem:
Uns ist bewusst, dass das Haus umfangreich saniert werden muss, da uns aber ohnehin die Wohnfläche etwas zu klein ist, würden wir sehr gerne gleichzeitig das Haus etwas erweitern, in welcher Form auch immer. Jetzt habe ich vom Makler den Bebauungsplan erhalten. Den kann ich mittels Google so halb und halb interpretieren, sicher bin ich mir aber nicht.
Standort ist Münchner Norden/Landkreis Freising.
Darf ich euch um Hilfe bitten?
Anbei habe ich den Plan hochgeladen, das Grundstück ist grün eingekreist. Auf den ersten Blick sehe ich 2 Dinge, die irgendwie konträr sind - einerseits die Geschossflächenzahl von 0.4; andrerseits sind die Grundmauern des Hauses exakt vorgegeben - gibt es Möglichkeiten, hiervon etwas abzuweichen?
Wir würden natürlich jetzt nicht irgendwelche 200m2 anbauen wollen, aber idealerweise ca 20m2 Grundfläche + Obergeschoss wären schön, falls noch möglich.
Herzlichen Dank für eure Hilfe!
Schönes Wochenende,
Robert
hausbau_phobos schrieb:
Auf den ersten Blick sehe ich 2 Dinge, die irgendwie konträr sind - einerseits die Geschossflächenzahl von 0.4; andrerseits sind die Grundmauern des Hauses exakt vorgegebenNein, es ist das Baufenster vorgegeben, welches 11 mal 16 Meter mißt. Wo das tatsächliche Haus von den Grenzen dieses Baufensters zurückweicht, wäre es erweiterbar. Du solltest in einem Katasterauszug (Bayernaltlas) herausfinden können, wo das Haus in diesem Baufenster steht. Soweit Grenzabstände eingehalten bleiben, ist die Gemeinde in der Regel für begründete und maßvolle Verschiebungen des Baufensters zugänglich.https://www.instagram.com/11antgmxde/
https://www.linkedin.com/company/bauen-jetzt/
Baugrenzen sind einzuhalten (geringfügige Überbauung bei Grund erlaubt, zb wenn zu kleine Wohnfläche möglich)
Baulinien dürfen auch mit untergeordneten Anbauten überbaut werden, da muss aber die Außenwand des Hauses (ohne Anbau) die Baulinie berühren.
Das wäre dann bei Euch möglich, wenn es eine Baulinie gibt (ich kann das nicht erkennen)
Ja, ist blöd. Aber in den Bauordnungen ist es nun mal so, dass das eine nicht unbedingt das andere aushebelt.
Ps: allgemeine Antwort, kann den Bebauungsplan derzeit nicht vollständig lesen.
Baulinien dürfen auch mit untergeordneten Anbauten überbaut werden, da muss aber die Außenwand des Hauses (ohne Anbau) die Baulinie berühren.
Das wäre dann bei Euch möglich, wenn es eine Baulinie gibt (ich kann das nicht erkennen)
Ja, ist blöd. Aber in den Bauordnungen ist es nun mal so, dass das eine nicht unbedingt das andere aushebelt.
Ps: allgemeine Antwort, kann den Bebauungsplan derzeit nicht vollständig lesen.
H
hausbau_phobos09.06.23 14:33Danke für die raschen Antworten!
Das Haus steht mMn exakt auf eben jenem Baufenster von 11*16m, dummerweise ist da aber die 2e, größere Garage bereits dabei. Und das Obergeschoss hat halt Dachschrägen, dh ist auch nicht voll nutzbar.
Mist. Dh wir müssten unbedingt Mal mit der Gemeinde sprechen, ob die gewillt wären, etwas zu ändern.
Ist es besser, das einem Profi zu überlassen, oder schadet es nicht, wenn man Mal unverbindlich anruft?
Das Haus steht mMn exakt auf eben jenem Baufenster von 11*16m, dummerweise ist da aber die 2e, größere Garage bereits dabei. Und das Obergeschoss hat halt Dachschrägen, dh ist auch nicht voll nutzbar.
Mist. Dh wir müssten unbedingt Mal mit der Gemeinde sprechen, ob die gewillt wären, etwas zu ändern.
Ist es besser, das einem Profi zu überlassen, oder schadet es nicht, wenn man Mal unverbindlich anruft?
hausbau_phobos schrieb:
Baufenster von 11*16mWomit ist es denn eingegrenzt? Baugrenze oder -Linie?H
hausbau_phobos09.06.23 14:47Wenn ich richtig gegoogelt habe, Baumgrenze. 2 Striche, 1 Punkt?
Ähnliche Themen