Badplanung - Keine passende Lösung für das Bad

4,70 Stern(e) 6 Votes
Zuletzt aktualisiert 12.10.2025
Sie befinden sich auf der Seite 6 der Diskussion zum Thema: Badplanung - Keine passende Lösung für das Bad
>> Zum 1. Beitrag <<

S

Stein2023

Ich bin mir nicht sicher ob Dein Planer einige Bier zu viel getrunken hat. Aber die Lage der Türen ist doch eher gewürfelt als geplant.

Wenn ich die Treppe hoch komme würde ich den kürzesten Weg versuchen. Dann im Bad am besten die Türen so nahe wie möglich an die Ecke damit die Wände Platz für Einbauten haben.

z. B. so?

Anhang anzeigen 80055
Die Türen hatte ich als Platzhalter so reingestellt :D Dein Vorschlag gefällt auf den ersten Blick gut. Wobei wir ohne Badewanne planen. Man könnte Waschmaschine+Tockner auf den Badewannenplatz stellen und das Doppelwaschbecken neben die Dusche bzw. an die Duschwand.
 
H

hanghaus2023

Das hatte ich schon mal so ähnlich. Habe es aber dann verworfen. Du kannst ja auch selber die Einrichtung verschieben wie Dir es gefällt.
 
H

hanghaus2023

Das hatte statische Gründe: Die Mauern im OG müssen über den Mauern des EG liegen. Daher haben wir Eltern und Kinderzimmer getauscht.
Das hat sich ein Statiker angeschaut? Der hat dann wohl auch die seltsamen Stützen neben der Treppe geplant? MMn sollte das eher kaum Probleme geben. Man kann ja auch im OG teilweise Trockenbauwände realisieren.
 
kbt09

kbt09

Mal mit den beiden Querwänden im OG wie in deinem OG. Die senkrechten Wände müssen meiner Meinung nach nicht unbedingt über den EG-Wänden liegen.

Bad ist jetzt eher quick and dirty.

Elternschlafzimmer ca. 370 bis 380 an Kopfseite vom Bett, Ankleidebereich ca. 210 bis 215 cm.

Im Flur eine Schranknische integriert, dann müssen auch nicht so schrecklich viele Schränke ins Bad.

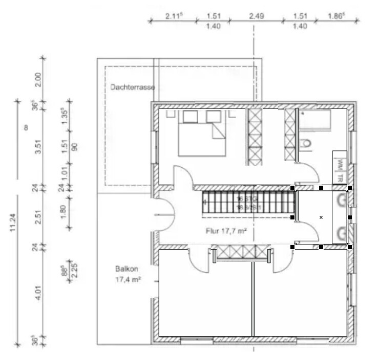
Grundriss einer Wohnung mit Flur, Treppe, Balkon und Dachterrasse
 
K a t j a

K a t j a

Ok, wir müssen die Maße nochmal klar stellen:
Uns sind die klar. Die Frage ist, ob sie Euch klar sind? Am besten Mal das Bett bis 50 cm an die Wand schieben und dann alle Szenarien durchspielen. Will man so aufstehen? Kommt man ins Bett, ohne umzufallen? Geht das auch ich im Dunkeln? Usw.

Bisher hatten wir eigentlich kein Fenster für die Ankleide geplant.
Offensichtlich.
 
S

Stein2023

Uns sind die klar. Die Frage ist, ob sie Euch klar sind? Am besten Mal das Bett bis 50 cm an die Wand schieben und dann alle Szenarien durchspielen. Will man so aufstehen? Kommt man ins Bett, ohne umzufallen? Geht das auch ich im Dunkeln? Usw.
Ich weiß ja nicht, was für ein breites Bett du hast... 4 Meter ist die Raumbreite. 3,13 Meter ist die Rückwand am Betkopf. 2 Meter breit ist das Bett:


Grundriss eines Schlafzimmers mit Holzboden, Bett in der Mitte, Messlinien und Möbel.


Das Schlafzimmer ist exakt 1 zu 1 dieses:


Schlafzimmer mit Bett, beige Decke, Nachttischlampen und Balkonfenster


Wo ist das Problem an diesem Schlafzimmer? Vielleicht zu wenig Platz für einen etwas breiten Nachschrank oder was ist es? Erkläre es nochmal. Waren übrigens vor Ort und haben uns dieses Schlafzimmer angeschaut. Ein Haus von Viebrockhaus, falls du es genauer wissen willst.
 
Zuletzt aktualisiert 12.10.2025
Im Forum Sanitär / Bad / WC gibt es 1365 Themen mit insgesamt 14346 Beiträgen


Ähnliche Themen zu Badplanung - Keine passende Lösung für das Bad
Nr.ErgebnisBeiträge
1Idee Schlafzimmer - Bett / Schrank Anordnung 32
2was für Farben für das Schlafzimmer ? - Seite 344
3Gestaltung Schlafzimmer 35
4Pfiffige Schlafzimmer Idee mit Ankleide gesucht 19
5Extra-Bad vom Schlafzimmer oder doch Abstellraum? - Seite 329
6Kinderzimmer und Schlafzimmer - Welche Größe ist zu empfehlen? - Seite 256
7Badewanne im Schlafzimmer - was haltet ihr davon? - Seite 435
8Neuplanung Bad und Schlafzimmer. Raumgrößen noch leicht variabel. - Seite 236
9Grundriss Einfamilienhaus ohne Keller/Schlafzimmer und Bad im EG - Seite 427
10Grundriss Schlafzimmer, Ankleide und Bad en Suite 36
11Fensterfläche zu Raumgröße, insbesondere Schlafzimmer 10
12Grundriss Schlafzimmer mit Bad und Ankleide - Seite 362
13Bett SUNDNES - welche Schrauben? 15
14Ankleide/Schlafzimmer Problem - Grundrissdiskussion 25
15Schlafzimmer auf der Südseite zu warm? 18
16Heizung Kinderzimmer,schlafzimmer und Bad 14
17Größe vom Schlafzimmer und Kinderzimmer - Seite 338
18Schlafzimmer warm im Haus mit Lüftung inkl. Wärmerückgewinnung 24
19Teppich im Schlafzimmer trotz Fußbodenheizung? 36
20Schaltung - Schlafzimmer - Deckenleuchte / Nachttischlampe 12

Oben