8,02m Positionierung Waschbecken / Toilette

4,00 Stern(e) 4 Votes
Zuletzt aktualisiert 20.11.2025
Sie befinden sich auf der Seite 8 der Diskussion zum Thema: 8,02m Positionierung Waschbecken / Toilette
>> Zum 1. Beitrag <<

B

Badneuling26

@ypg Das habe bislang bei jeder Planung gemacht. Wir hätten dann 0,80 cm zwischen Dusche und Waschbecken.

Du hattest zu Beginn geschrieben du hättest eine Idee und wolltest was skizzieren. War bei meinen Vorschlägen deine Idee dabei?

Ich bin immer noch am nachdenken
 
B

Badneuling26

@ypg schade
Ich bin immer noch der Meinung das alles auf der rechten Wand und das öffnen der Duschtür Richtung Toilette "am besten" wäre.
Welche Variante hättest du vorgezogen?
Wie du sagst die 2,01x4 sind nun mal nicht perfekt, sodass man an irgendeinem Tod sterben muss
 
Y

ypg

Der Entwurf aus #11 gefällt mir am besten - der hier zuerst angehängte
Man kommt gut rein, also es ist offen und lädt ein, hat eine "große" rechteckige Bodenfläche, verschiedene Plätze an den Wänden für Schrank und Regale (kein Aneinanderreihen von Möbeln)
und Platz für Bewegung.
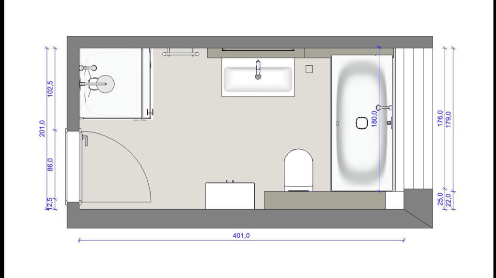
Badezimmer-Grundriss: Dusche links, Waschbecken oben, Toilette in der Mitte, Badewanne rechts.


Badezimmer-Grundriss von oben mit Badewanne, Dusche, Waschbecken und Toilette



Grüsse
 
B

Badneuling26

Danke @ypg
Bei dieser Variante war das Problem, dass zwischen Waschbecken und Toilette 0,65 Abstand waren.
Wir werden nun ein Gäste-WC machen lassen.
Vielleicht ändere ich dann noch mal die Planung für das Bad.
Ich male nach das ganze mal erneut.
Fändest du die Dusche jetzt wo sie ist besser? Oder lieber dusche mit Tür tauschen? Lg
 
N

nelly190

Der Entwurf aus #11 gefällt mir am besten - der hier zuerst angehängte
Man kommt gut rein, also es ist offen und lädt ein, hat eine "große" rechteckige Bodenfläche, verschiedene Plätze an den Wänden für Schrank und Regale (kein Aneinanderreihen von Möbeln)
und Platz für Bewegung. Anhang anzeigen

Grüsse
Unser altes Bad steht genau so. Nur die Tür und die Dusche sind getauscht. Und ich finde es voll gut. Ohne Mega Platz Verschwendung.
Nur das dort keine Vorsatzwand ist. Sondern es steht ein Freistehendes Klo mit Spülkasten hinten auf die Toilette geschraubt. Abfluss ist dann nach unten.
Das würde euch hier auch enorm helfen, denn dann entfallen die 20 cm Kasten. Wieso eigentlich soviel ?
 

Anhänge

  • 0 Bytes Aufrufe: 0
Zuletzt aktualisiert 20.11.2025
Im Forum Sanitär / Bad / WC gibt es 1375 Themen mit insgesamt 14406 Beiträgen


Ähnliche Themen zu 8,02m Positionierung Waschbecken / Toilette
Nr.ErgebnisBeiträge
1Badplanung bei einem kleinen Bad mit Walkinn Dusche 22
2Walk-In Dusche, Spritzwasser, brauche ich eine Tür? 35
3größere Dusche im Grundriss unterbringen - Welche Größe wählen? - Seite 638
4Renovierung-Tipps für sehr kleines Bad mit Dusche statt Badewanne - Seite 336
5Grundrissplanung: Badezimmer Dusche 47
6Anschlagrichtung und Position Tür im Bad OG - Seite 314
7Bad-Grundriss 8,7qm, mit Dusche und Badewanne 16
8Nachträglicher Einbau Wanne oder Dusche? - Seite 327
9Kleine Walk-in-Dusche möglich? - Seite 211
10Brauche hilfe bei Badezimmerplanung 19
11Hauptbadezimmer (10qm) mit offener Dusche, Ideen? - Seite 884
12Grundriss Bad mit Dusche 11
13Dusche auf Podest und Schubfach 13
14Waschbecken im Wäscheraum? 18
15Badplanung - Wie den Platz für Waschbecken und Schränke nutzen 32
16In der Dusche kommt kein Warmwasser mehr an... 13
17Größe begehbare Dusche - Seite 430
18Badplanung - Dusche und Badewanne tauschen? - Seite 224
19Walk-in Dusche, welche Breite für den Zugang - Seite 643
20Wäscheabwurf in Dusche einbauen? - Seite 996

Oben