ᐅ 170m2 Einfamilienhaus auf dem bayrischen Lande
Erstellt am: 13.11.20 08:34
X
XxTankerxX13.11.20 08:34Hallo zusammen,
jetzt im zweiten Anlauf bin ich wohl im richtigen Teil der Forums und habe auch den Fragebogen gefunden. Gerne würde ich euch um eine Meinung über meine aktuelle Planung befragen. Das ganze steht im großen und ganzen, aber vllt könnte man das eine oder andere Detail ja noch optimieren.
Bebauungsplan/Einschränkungen
Größe: 830 m2
Hang: kaum
Anzahl Stellplatz: 2x
Geschossigkeit: Alles erlaubt
Dachform: Alles erlaubt
Stilrichtung: Alles erlaubt
Erlaubt Dachfarben: Alles ausser violett
Pflanzvorschrift: 2 kleinere Bäume
Anforderungen der Bauherren
Stil: Modern & Traditionell zugleich, Satteldach
Keller, Geschosse: 2 Vollgeschossige Etagen
Anzahl der Personen, Alter: 2x Ende 20 (Kinder in den nächsten Jahren geplant)
Büro: Familiennutzung oder Homeoffice: Homeoffice
Schlafgäste pro Jahr: Maximal 1x
offene oder geschlossene Architektur: Teilweise offen
konservativ oder moderne Bauweise: Eine gewisse Mischung
offene Küche, Kochinsel: Offen
Anzahl Essplätze: 6
Kamin: Ja, Pellet
Balkon, Dachterrasse: Terrasse reicht uns, jedoch soll es überdacht sein
Garage, Carport: Garage mit Nutzplatz
Nutzgarten, Treibhaus: Nicht direkt im Hausplan mit eingeplant
Hausentwurf
Von wem stammt die Planung:
-Architekt
Was gefällt besonders? Warum? Große Kinderzimmer, Wellness im Keller, Offene Küche, Extra Bad im Elternschlafzimmer
Was gefällt nicht? Warum? Fällt mir aktuell nichts ein
Preisschätzung lt Architekt/Planer: /
Persönliches Preislimit fürs Haus, inkl Ausstattung(möbel): 550.000€
favorisierte Heiztechnik: Pellet
Hausautomatisierung gewünscht: KNX
(jedoch wird die Programmierung selbst durchgeführt, und soll auch nicht übertrieben überall eingesetzt werden)
Wenn Ihr verzichten müsst, auf welche Details/Ausbauten
-könnt Ihr verzichten: Viel Platz im Schlafzimmer (haben wir auch)
-könnt Ihr nicht verzichten: 2 Badezimmer, Platz für Kinder
Warum ist der Entwurf so geworden, wie er jetzt ist? ZB
Standardentwurf vom Planer? Nein
Entsprechende/Welche Wünsche wurden vom Architekten umgesetzt? Ja
Was macht ihn in Euren Augen besonders gut oder schlecht? Moderner Baustil mit traditionellen/konservativen Elementen.
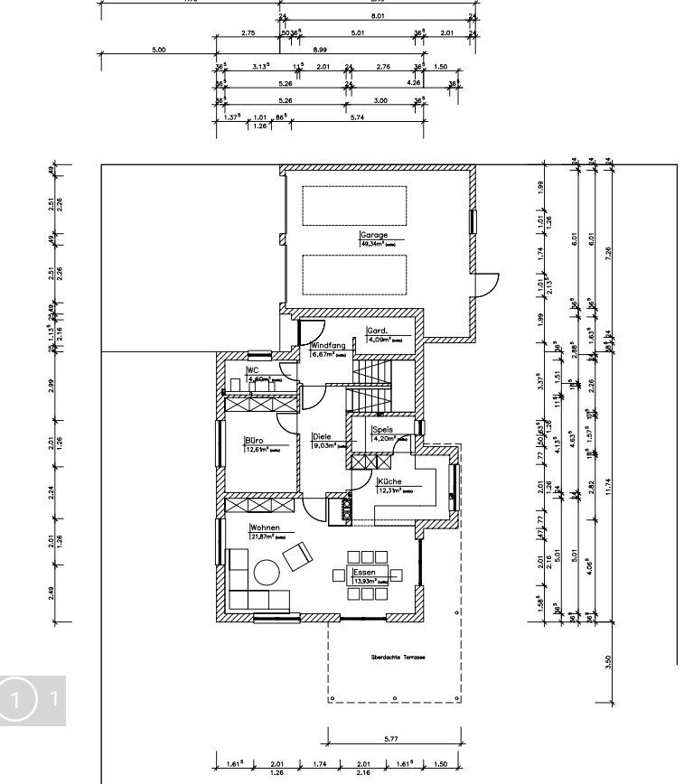
Anbei der aktuelle Plan.
Edit: Die Terrasse wird aus Helligkeitsgründen auf der Südseite nur 3m anstatt 3.5m breit.
Bitte sagt eure Meinungen dazu.
Viele Grüße,
XxTankerxX




jetzt im zweiten Anlauf bin ich wohl im richtigen Teil der Forums und habe auch den Fragebogen gefunden. Gerne würde ich euch um eine Meinung über meine aktuelle Planung befragen. Das ganze steht im großen und ganzen, aber vllt könnte man das eine oder andere Detail ja noch optimieren.
Bebauungsplan/Einschränkungen
Größe: 830 m2
Hang: kaum
Anzahl Stellplatz: 2x
Geschossigkeit: Alles erlaubt
Dachform: Alles erlaubt
Stilrichtung: Alles erlaubt
Erlaubt Dachfarben: Alles ausser violett
Pflanzvorschrift: 2 kleinere Bäume
Anforderungen der Bauherren
Stil: Modern & Traditionell zugleich, Satteldach
Keller, Geschosse: 2 Vollgeschossige Etagen
Anzahl der Personen, Alter: 2x Ende 20 (Kinder in den nächsten Jahren geplant)
Büro: Familiennutzung oder Homeoffice: Homeoffice
Schlafgäste pro Jahr: Maximal 1x
offene oder geschlossene Architektur: Teilweise offen
konservativ oder moderne Bauweise: Eine gewisse Mischung
offene Küche, Kochinsel: Offen
Anzahl Essplätze: 6
Kamin: Ja, Pellet
Balkon, Dachterrasse: Terrasse reicht uns, jedoch soll es überdacht sein
Garage, Carport: Garage mit Nutzplatz
Nutzgarten, Treibhaus: Nicht direkt im Hausplan mit eingeplant
Hausentwurf
Von wem stammt die Planung:
-Architekt
Was gefällt besonders? Warum? Große Kinderzimmer, Wellness im Keller, Offene Küche, Extra Bad im Elternschlafzimmer
Was gefällt nicht? Warum? Fällt mir aktuell nichts ein
Preisschätzung lt Architekt/Planer: /
Persönliches Preislimit fürs Haus, inkl Ausstattung(möbel): 550.000€
favorisierte Heiztechnik: Pellet
Hausautomatisierung gewünscht: KNX
(jedoch wird die Programmierung selbst durchgeführt, und soll auch nicht übertrieben überall eingesetzt werden)
Wenn Ihr verzichten müsst, auf welche Details/Ausbauten
-könnt Ihr verzichten: Viel Platz im Schlafzimmer (haben wir auch)
-könnt Ihr nicht verzichten: 2 Badezimmer, Platz für Kinder
Warum ist der Entwurf so geworden, wie er jetzt ist? ZB
Standardentwurf vom Planer? Nein
Entsprechende/Welche Wünsche wurden vom Architekten umgesetzt? Ja
Was macht ihn in Euren Augen besonders gut oder schlecht? Moderner Baustil mit traditionellen/konservativen Elementen.
Anbei der aktuelle Plan.
Edit: Die Terrasse wird aus Helligkeitsgründen auf der Südseite nur 3m anstatt 3.5m breit.
Bitte sagt eure Meinungen dazu.
Viele Grüße,
XxTankerxX
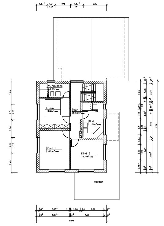
Hallo erstmal.
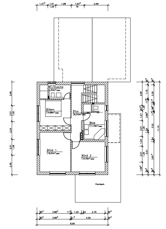
Positiv finde ich, dass das Elternschlafzimmer hier ein kleineres Duschbad en Suite bekommt und das große Familienbad für alle da ist.
Negativ fallen mir hier 2 wesentliche Dinge auf: Treppe und Küche.
Der Küchenerker ist für den Grundriss nicht nützlich und der Durchgang zum Wohnzimmer erscheint sehr schmal.
Noch unglücklicher empfinde ich die Treppe. Die passt nicht bzw. nicht an dieser Stelle zum Grundriss. Offensichtlich wird das im OG. Der Gang ist sehr lang und wird Richtung Kinderzimmer ja immer schmaler.
Im EG ist das Verhältnis von Windfang+Garderobe+Diele gegenüber der tatsächlichen Wohnfläche viel zu groß - die 3 genannten zusammen haben so viele Quadratmeter wie das Wohnzimmer!
Positiv finde ich, dass das Elternschlafzimmer hier ein kleineres Duschbad en Suite bekommt und das große Familienbad für alle da ist.
Negativ fallen mir hier 2 wesentliche Dinge auf: Treppe und Küche.
Der Küchenerker ist für den Grundriss nicht nützlich und der Durchgang zum Wohnzimmer erscheint sehr schmal.
Noch unglücklicher empfinde ich die Treppe. Die passt nicht bzw. nicht an dieser Stelle zum Grundriss. Offensichtlich wird das im OG. Der Gang ist sehr lang und wird Richtung Kinderzimmer ja immer schmaler.
Im EG ist das Verhältnis von Windfang+Garderobe+Diele gegenüber der tatsächlichen Wohnfläche viel zu groß - die 3 genannten zusammen haben so viele Quadratmeter wie das Wohnzimmer!
X
XxTankerxX13.11.20 09:50Elokine schrieb:
Hallo erstmal.
Positiv finde ich, dass das Elternschlafzimmer hier ein kleineres Duschbad en Suite bekommt und das große Familienbad für alle da ist.
Negativ fallen mir hier 2 wesentliche Dinge auf: Treppe und Küche.
Der Küchenerker ist für den Grundriss nicht nützlich und der Durchgang zum Wohnzimmer erscheint sehr schmal.
Noch unglücklicher empfinde ich die Treppe. Die passt nicht bzw. nicht an dieser Stelle zum Grundriss. Offensichtlich wird das im OG. Der Gang ist sehr lang und wird Richtung Kinderzimmer ja immer schmaler.
Im EG ist das Verhältnis von Windfang+Garderobe+Diele gegenüber der tatsächlichen Wohnfläche viel zu groß - die 3 genannten zusammen haben so viele Quadratmeter wie das Wohnzimmer!Zur Küche, naja ein paar Quadratmeter lassen sich rausholen und das Haus ist dann nicht nur ein rechteckiger-Kasten. Wie weit man nun die Theke zum Esszimmer zieht ist noch eine Sache. Ein paar zentimeter mehr Platz kann vllt nicht Schaden da gebe ich dir recht.
Zur Treppe: Ich finde diese genial. So ist auch der Keller mit Windfang thermisch vom Wohnbereich mit Treppe zum Obergeschoss getrennt. Und gerade in den Keller muss man im Sommer bei Gartenarbeiten öfter mal. So ist man dort auch recht schnell von der Haustür aus.
Und wir wollten erst einen sehr großen quadratischen Eingangsbereich. Der Gang ist eher eine Zwischenlösung - nimmt etwas weniger Platz in Anspruch und trotzdem hat man noch genug Platz für zusätzliche Komoden oder andere Staumöglichkeiten.
Mache die Terrasse tiefer als 3 m. Die Rasenkante ist ein Stoplerstein. Du muß ja keine Überdachung rausziehen über die ganze Tiefe
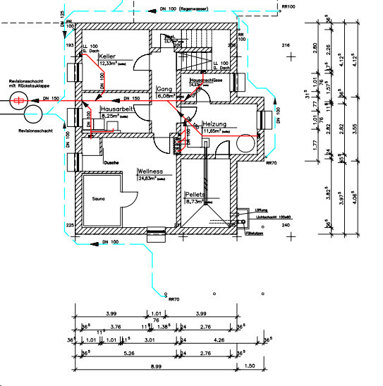
Einen Wellnessbereich im Keller ohne Zugang nach draußen? Wirklich? Das währe für mich kein Wellness.
Zeichne in jeden Raum die vorhandene und gewünschte Möblierung in Maßstab ein. Verkehrswege berücksichtigen.
Finde die Treppenposition unglücklich und die Küche will mir auch nicht recht gefallen.
Der Platz beim Bett im Elternschlafzimmer sieht recht knapp aus. Meist ist doch noch Ablagefläche neben dem Bett. Oder kurzzeitig ein Babybay
Einen Wellnessbereich im Keller ohne Zugang nach draußen? Wirklich? Das währe für mich kein Wellness.
Zeichne in jeden Raum die vorhandene und gewünschte Möblierung in Maßstab ein. Verkehrswege berücksichtigen.
Finde die Treppenposition unglücklich und die Küche will mir auch nicht recht gefallen.
Der Platz beim Bett im Elternschlafzimmer sieht recht knapp aus. Meist ist doch noch Ablagefläche neben dem Bett. Oder kurzzeitig ein Babybay
H
hampshire13.11.20 10:15Der Entwurf gefällt mir ausgesprochen gut.
- Treppe: Bei der Anordnung der Treppe habe ich auch sofort gedacht, dass es recht pfiffig ist den Zugang zum Keller aus dem Eingangsbereich und dien Aufgang ins OG aus dem inneren Flur zu setzen.
- Eingang und Garderobe: Sicher ist das recht groß geraten - für einen Haushalt, der eine komplette Generation Kinder vor sich hat ist das überaus praktisch. Kinderwagen steht nie im Weg. Platz für Kleidung Mäntel und Jacken ist großzügig, Haustüre kann auch mal offen bleiben ohne dass alles gleich thermisch durcheinander gerät - auch klasse mit Kindern.
- Küche: Ich würde Flur, Speis und Küche zu einem großen Raum verbinden, akustisch etwas dämmen und tageslichtartig beleuchten. Das wäre ein toller Mittelpunkt für eine Familie. Der Durchgang zum Essbereich kann wirklich etwas breiter sein.
- Erker: Ich sehe, dass dieser Platz im Technikraum und in der Küche bringt. Das ist aus meiner Sicht gut gelöst, wenngleich nicht kostenoptimiert. Aber Kosten sind ja nie das einzige Kriterium.
- Wohnbereich: Warum Menschen gerne mit dem Rücken zu den Fenstern sitzen bleibt mir ein ewiges Rätsel. Liegt wohl an der Bedeutung der Glotze - obschon hier keine klassische TV-Ausrichtung zu sehen ist.
- Privatsphäre: Die Struktur des Hauses ermöglicht - keine superenge Rundumbebauung vorausgesetzt - ein angenehm privates Leben abseits des Eingangsbereiches.
- Kinderzimmer: Schön, dass diese einen prominenten Platz im Haus bekommen und auch ein ordentliches Familienbad
- Elternbad: knapp funktioniert. Wenn ein Kinderbettchen mit im Raum steht ist das Ein- und Aussteigen aus dem Bett in Wohnmobilmanier. Natürlich geht das, ich hätte damit kein Problem.
- Saunabereich: Ich würde eine Außentreppe in den Garten überlegen. Dazu die Sauna 90 Grad drehen und die Treppe unter dem Wohnzimmerfenster in den garten führen. Vielleicht kommt da ja mal ein festes oder saisonal aufgestelltes Wasser in den Garten - sehr angenehm zwischen den Saunagängen.
- Garage: Ein durchgängiges Tor ist praktischer als zwei Einzeltore. Kann man um die Garage herum um beispielsweise Fahrhäder nicht an den Autos vorbei zu schieben? Dann breitere Türe oder ein weiteres tor hinten und es gibt keinen Ärger mit Kratzern. Kinderfahrzeuge werden erfahrungsgemäß intensiv und mit wechselnder Einparksorgfalt genutzt.
- Auffahrt: Hoffentlich nicht einfach ein gerades Pflaster wie in der Zeichnung angedeutet. Hier ist Raum für Grün und Schwung.
- Terrasse: Auch hier tut etwas "Schwung" gut. So entsteht eine behagliche Fläche zu einer strengeren (Teil-) Überdachung. Menschen, die draußen sitzen brauchen Platz.
- Terrassendach: Durchscheinende Photovoltaik Elemente spenden Licht, Energie und sehen auch gut aus.
- Übergang vom Essbereich nach draußen: Vollverglaste Lösung überlegen. Dann wird es trotz Dach weder dunkel, noch optisch eng.
- Außen: Macht Holz dran 😉
X
XxTankerxX13.11.20 10:40hampshire schrieb:
Der Entwurf gefällt mir ausgesprochen gut.
- Treppe: Bei der Anordnung der Treppe habe ich auch sofort gedacht, dass es recht pfiffig ist den Zugang zum Keller aus dem Eingangsbereich und dien Aufgang ins OG aus dem inneren Flur zu setzen.
- Eingang und Garderobe: Sicher ist das recht groß geraten - für einen Haushalt, der eine komplette Generation Kinder vor sich hat ist das überaus praktisch. Kinderwagen steht nie im Weg. Platz für Kleidung Mäntel und Jacken ist großzügig, Haustüre kann auch mal offen bleiben ohne dass alles gleich thermisch durcheinander gerät - auch klasse mit Kindern.
- Küche: Ich würde Flur, Speis und Küche zu einem großen Raum verbinden, akustisch etwas dämmen und tageslichtartig beleuchten. Das wäre ein toller Mittelpunkt für eine Familie. Der Durchgang zum Essbereich kann wirklich etwas breiter sein.
- Erker: Ich sehe, dass dieser Platz im Technikraum und in der Küche bringt. Das ist aus meiner Sicht gut gelöst, wenngleich nicht kostenoptimiert. Aber Kosten sind ja nie das einzige Kriterium.
- Wohnbereich: Warum Menschen gerne mit dem Rücken zu den Fenstern sitzen bleibt mir ein ewiges Rätsel. Liegt wohl an der Bedeutung der Glotze - obschon hier keine klassische TV-Ausrichtung zu sehen ist.
- Privatsphäre: Die Struktur des Hauses ermöglicht - keine superenge Rundumbebauung vorausgesetzt - ein angenehm privates Leben abseits des Eingangsbereiches.
- Kinderzimmer: Schön, dass diese einen prominenten Platz im Haus bekommen und auch ein ordentliches Familienbad
- Elternbad: knapp funktioniert. Wenn ein Kinderbettchen mit im Raum steht ist das Ein- und Aussteigen aus dem Bett in Wohnmobilmanier. Natürlich geht das, ich hätte damit kein Problem.
- Saunabereich: Ich würde eine Außentreppe in den Garten überlegen. Dazu die Sauna 90 Grad drehen und die Treppe unter dem Wohnzimmerfenster in den garten führen. Vielleicht kommt da ja mal ein festes oder saisonal aufgestelltes Wasser in den Garten - sehr angenehm zwischen den Saunagängen.
- Garage: Ein durchgängiges Tor ist praktischer als zwei Einzeltore. Kann man um die Garage herum um beispielsweise Fahrhäder nicht an den Autos vorbei zu schieben? Dann breitere Türe oder ein weiteres tor hinten und es gibt keinen Ärger mit Kratzern. Kinderfahrzeuge werden erfahrungsgemäß intensiv und mit wechselnder Einparksorgfalt genutzt.
- Auffahrt: Hoffentlich nicht einfach ein gerades Pflaster wie in der Zeichnung angedeutet. Hier ist Raum für Grün und Schwung.
- Terrasse: Auch hier tut etwas "Schwung" gut. So entsteht eine behagliche Fläche zu einer strengeren (Teil-) Überdachung. Menschen, die draußen sitzen brauchen Platz.
- Terrassendach: Durchscheinende Photovoltaik Elemente spenden Licht, Energie und sehen auch gut aus.
- Übergang vom Essbereich nach draußen: Vollverglaste Lösung überlegen. Dann wird es trotz Dach weder dunkel, noch optisch eng.
- Außen: Macht Holz dran 😉
Danke für deine Meinung.-Wo würdest du Holz dran machen?
- Im Hof kommt auf jeden Fall noch ein wenig Grün, genauso vor der Terrasse. Hier wird eh eine Südtreppe zum Garten vorgesehen.
Frage an dich und an alle: Wie würdet ihr die Überdachung gestalten? Verglast hatte ich auch gedacht. Jedoch muss man eine schöne Lösung finden um den Erker mit zu überdachen. Vielleicht könnte man was kombinieren.
Ähnliche Themen