ᐅ Einfamilienhaus mit Doppelgarage - Architektenentwurf
Erstellt am: 27.01.26 08:21
Hallo zusammen!
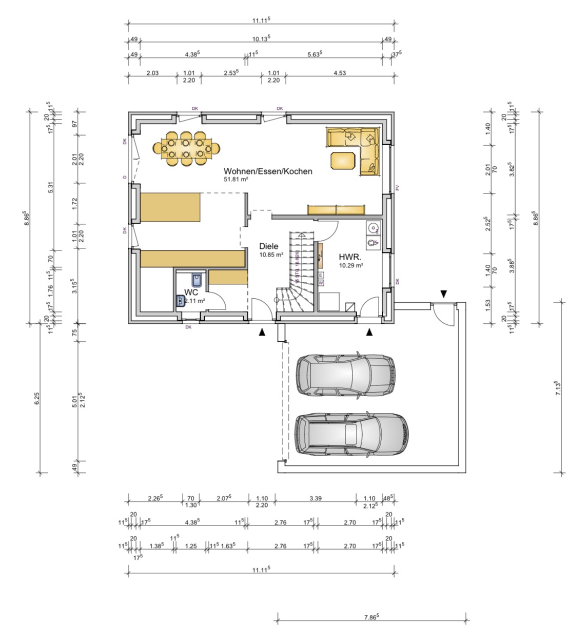
Hier würde ich euch gerne mal den Entwurf unserer Architektin für unser Haus mit Doppelgarage vorstellen.
Wir haben das Grundstück mit der Nr. 83!
Das Ganze soll so platziert werden, das die Garage in der Nordecke (Angrenzend an Grundstück Nr. 84 & Nr. 80) geschoben wird.
Seht ihr noch Verbesserungspotential in irgendeiner Form?
Über ein bisschen Input würde ich mich sehr freuen.
Bebauungsplan/Einschränkungen
Größe des Grundstücks: ca. 549 qm
Hang: Keiner
Grundflächenzahl: 0,4
Geschossflächenzahl: 0,5
Baufenster, Baulinie und -grenze: zur Straße 10 m
Randbebauung: nein
Anzahl Stellplatz: 2
Geschossigkeit: 2
Dachform: Frei, bis auf Flachdach
Stilrichtung: Frei
Ausrichtung: Egal
Maximale Höhen/Begrenzungen: Traufhöhe 7,50m
weitere Vorgaben: Dachneigung 20° -45°
Anforderungen der Bauherren
Stilrichtung, Dachform, Gebäudetyp: modern, Satteldach
Keller, Geschosse: ohne Keller, 2 Geschosse
Anzahl der Personen, Alter: 2 Personen; 36 J., 23 J.
Raumbedarf im EG, OG
Büro: Homeoffice
Schlafgäste pro Jahr: 1-2
offene oder geschlossene Architektur: Egal
konservativ oder moderne Bauweise: Modern
offene Küche, Kochinsel: Kochinsel
Anzahl Essplätze: 5-6
Kamin: nein
Musik/Stereowand: nein
Balkon, Dachterrasse: Terrasse vor Wohnzimmer in den Garten
Garage, Carport: Doppelgarage geplant
Nutzgarten, Treibhaus: nein
weitere Wünsche/Besonderheiten/Tagesablauf, gern auch Begründungen, warum dieses oder das nicht sein soll
Hausentwurf
Von wem stammt die Planung: Architektin
Was gefällt besonders? Warum?
Was gefällt nicht? Warum?
Preisschätzung laut Architekt/Planer:
Persönliches Preislimit fürs Haus, inkl. Ausstattung: 300.000 € mit viel Eigenleistung
favorisierte Heiztechnik: Luft-Wärme-Pumpe
Wenn Ihr verzichten müsst, auf welche Details/Ausbauten
-könnt Ihr verzichten:
-könnt Ihr nicht verzichten: Büro, Ankleide
Warum ist der Entwurf so geworden, wie er jetzt ist?
Entwurf der Architektin nach unserer Raumanforderung



Hier würde ich euch gerne mal den Entwurf unserer Architektin für unser Haus mit Doppelgarage vorstellen.
Wir haben das Grundstück mit der Nr. 83!
Das Ganze soll so platziert werden, das die Garage in der Nordecke (Angrenzend an Grundstück Nr. 84 & Nr. 80) geschoben wird.
Seht ihr noch Verbesserungspotential in irgendeiner Form?
Über ein bisschen Input würde ich mich sehr freuen.
Bebauungsplan/Einschränkungen
Größe des Grundstücks: ca. 549 qm
Hang: Keiner
Grundflächenzahl: 0,4
Geschossflächenzahl: 0,5
Baufenster, Baulinie und -grenze: zur Straße 10 m
Randbebauung: nein
Anzahl Stellplatz: 2
Geschossigkeit: 2
Dachform: Frei, bis auf Flachdach
Stilrichtung: Frei
Ausrichtung: Egal
Maximale Höhen/Begrenzungen: Traufhöhe 7,50m
weitere Vorgaben: Dachneigung 20° -45°
Anforderungen der Bauherren
Stilrichtung, Dachform, Gebäudetyp: modern, Satteldach
Keller, Geschosse: ohne Keller, 2 Geschosse
Anzahl der Personen, Alter: 2 Personen; 36 J., 23 J.
Raumbedarf im EG, OG
Büro: Homeoffice
Schlafgäste pro Jahr: 1-2
offene oder geschlossene Architektur: Egal
konservativ oder moderne Bauweise: Modern
offene Küche, Kochinsel: Kochinsel
Anzahl Essplätze: 5-6
Kamin: nein
Musik/Stereowand: nein
Balkon, Dachterrasse: Terrasse vor Wohnzimmer in den Garten
Garage, Carport: Doppelgarage geplant
Nutzgarten, Treibhaus: nein
weitere Wünsche/Besonderheiten/Tagesablauf, gern auch Begründungen, warum dieses oder das nicht sein soll
Hausentwurf
Von wem stammt die Planung: Architektin
Was gefällt besonders? Warum?
Was gefällt nicht? Warum?
Preisschätzung laut Architekt/Planer:
Persönliches Preislimit fürs Haus, inkl. Ausstattung: 300.000 € mit viel Eigenleistung
favorisierte Heiztechnik: Luft-Wärme-Pumpe
Wenn Ihr verzichten müsst, auf welche Details/Ausbauten
-könnt Ihr verzichten:
-könnt Ihr nicht verzichten: Büro, Ankleide
Warum ist der Entwurf so geworden, wie er jetzt ist?
Entwurf der Architektin nach unserer Raumanforderung
N
nordanney27.01.26 08:42Buddy90 schrieb:
Persönliches Preislimit fürs Haus, inkl. Ausstattung: 300.000 € mit viel EigenleistungAlso praktisch komplett selbst bauen? Zeit, Erfahrung, Eigenkapital (Banken finanzieren so etwas fast nicht) & Co. vorhanden? Mit den genannten Kosten liegst Du nicht sehr weit weg von den reinen Materialkosten und Nebenkosten.
Hallo,
es gibt doch extra ein Unterforum mit "Finanzierung" ? Wenn Leute jetzt was in der Rubrik "Planung" posten, warum geht man noch auf die Finanzierung ein?!
Ich beobachte immer wieder, dass sehr viele Leute hier immer wieder darauf eingehen, obwohl nicht danach gefragt wird.
Ich habe 2019 gebaut und hier meine Grundrisse gepostet, ganz Viele schrieben zu meinem Budget "kannst vergessen.....wir planen hier keine Luftschlösser etc."
Wir leben bis heute im Haus und hatten bisher keinerlei finanzielle Probleme, es kann natürlich immer was dazwischen kommen.
Zu deinem Plan:
EG wirkt sehr stimmig, würde nur den Treppeneinstieg nicht direkt am Eingang planen, ziehst oft den Dreck nach oben....und reicht 1 Tür zum Wohn- und Essbereich nicht aus, haben wir auch so und vermissen nichts, ist ja ein kurzer Weg, du könntest dann dort Schränke noch hinstellen....
Zum OG kann ich nichts sagen, aber irgendwie noch Verbesserungspotential.....
Viel Glück
es gibt doch extra ein Unterforum mit "Finanzierung" ? Wenn Leute jetzt was in der Rubrik "Planung" posten, warum geht man noch auf die Finanzierung ein?!
Ich beobachte immer wieder, dass sehr viele Leute hier immer wieder darauf eingehen, obwohl nicht danach gefragt wird.
Ich habe 2019 gebaut und hier meine Grundrisse gepostet, ganz Viele schrieben zu meinem Budget "kannst vergessen.....wir planen hier keine Luftschlösser etc."
Wir leben bis heute im Haus und hatten bisher keinerlei finanzielle Probleme, es kann natürlich immer was dazwischen kommen.
Zu deinem Plan:
EG wirkt sehr stimmig, würde nur den Treppeneinstieg nicht direkt am Eingang planen, ziehst oft den Dreck nach oben....und reicht 1 Tür zum Wohn- und Essbereich nicht aus, haben wir auch so und vermissen nichts, ist ja ein kurzer Weg, du könntest dann dort Schränke noch hinstellen....
Zum OG kann ich nichts sagen, aber irgendwie noch Verbesserungspotential.....
Viel Glück
Ich denke die Preise sind auch Regional abhängig...
Die Garage soll nur mit geplant werden und ist im Preis für 300.000€ natürlich nicht inklusive. Das hätte ich dazu schreiben sollen, sorry!
Als Beispiel habe ich für den Rohbau incl. Erdarbeiten und Klinker (1€/Stein) ein Angebot für 135.000€.
Das Dach für 22.000€
Fenster für 20.000€
Fliesenleger für 19.000€
Heizung für 20.000€
Zentrale Kontrollierte-Wohnraumlüftung Eigenleistung für 6.000€
Innenputz für 11.000€
Maler in Eigenleistung
Sanitär Eigenleistung in Zusammenarbeit mit einer Firma
Elektro Eigenleistung in Zusammenarbeit mit einer Firma
Photovoltaik 21kwp für 12.000€
Gerüst für 10.000€
Das waren so die großen Positionen würde ich sagen... Oder fällt euch noch auf was fehlt?
Ich denke durch meinen ersten Hausbau konnte ich gute Erfahrungen sammeln und in dieses Projekt einbringen.
Die Garage soll nur mit geplant werden und ist im Preis für 300.000€ natürlich nicht inklusive. Das hätte ich dazu schreiben sollen, sorry!
Als Beispiel habe ich für den Rohbau incl. Erdarbeiten und Klinker (1€/Stein) ein Angebot für 135.000€.
Das Dach für 22.000€
Fenster für 20.000€
Fliesenleger für 19.000€
Heizung für 20.000€
Zentrale Kontrollierte-Wohnraumlüftung Eigenleistung für 6.000€
Innenputz für 11.000€
Maler in Eigenleistung
Sanitär Eigenleistung in Zusammenarbeit mit einer Firma
Elektro Eigenleistung in Zusammenarbeit mit einer Firma
Photovoltaik 21kwp für 12.000€
Gerüst für 10.000€
Das waren so die großen Positionen würde ich sagen... Oder fällt euch noch auf was fehlt?
Ich denke durch meinen ersten Hausbau konnte ich gute Erfahrungen sammeln und in dieses Projekt einbringen.
N
nordanney27.01.26 09:37tumaa schrieb:
Wenn Leute jetzt was in der Rubrik "Planung" posten, warum geht man noch auf die Finanzierung ein?!Bei viele, die sich später zurückmelden und sagen, dass das Budget NICHT gereicht hat. Und da ich Bauen beruflich seit 30 finanziell begleite, gebe ich lieber hier ein Feedback, als dass sich Bauherren später ärgern oder das Traumhaus dann doch nur ein Luftschloss wird, weil es nicht finanzierbar ist.
300k all in für gute 140qm ist ohne große EL gerade mit Klinkerfassade - egal wo in D - nicht drin. Rein Maler und Elektro/Sanitär reißen es nicht raus.
Buddy90 schrieb:
Das waren so die großen Positionen würde ich sagen... Oder fällt euch noch auf was fehlt?Alles, was nicht in den einzelnen Positionen enthalten ist und noch on top kommt. Hausanschlüsse/Erdarbeiten, die über die 30cm gem. Rohbauer hinaus gehen, Architektenkosten nebst Bauantrag und Statiker, Innentüren, Bauherrenaufgaben usw.
Buddy90 schrieb:
Ich denke durch meinen ersten Hausbau konnte ich gute Erfahrungen sammeln und in dieses Projekt einbringen.Dann viel Erfolg und Freude mit dem neuen Haus.
Ähnliche Themen