Werkplanung Einfamilienhaus 180qm Flachdach mit Keller & Doppelgarage

4,50 Stern(e) 11 Votes
Zuletzt aktualisiert 20.11.2025
Sie befinden sich auf der Seite 23 der Diskussion zum Thema: Werkplanung Einfamilienhaus 180qm Flachdach mit Keller & Doppelgarage
>> Zum 1. Beitrag <<

I

ivenh0

Danke für das erneute Feedback.

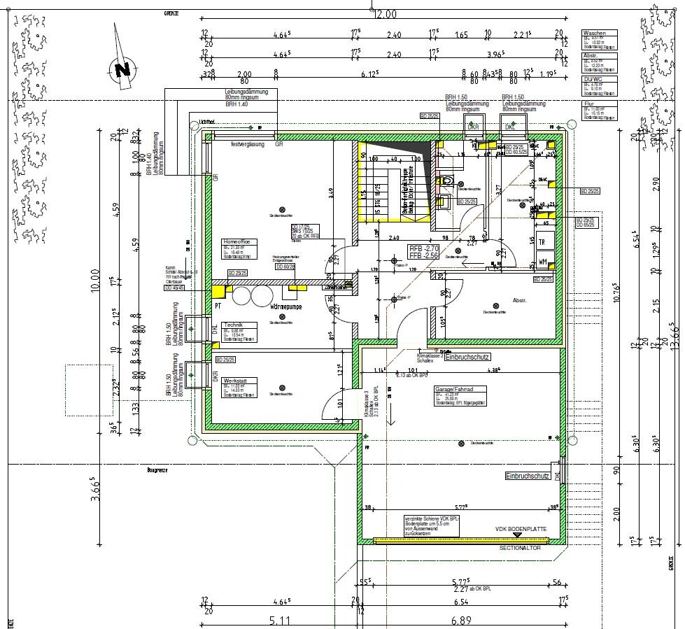
Wir haben die Planung nun so eingereicht. Das mit den Kinderzimmer ist ein guter Hinweis. Allerdings sind beide ausreichend groß und ich finde es nicht sonderlich schlimm, wenn eins größer als das andere ist.
(Ich kann mir gut vorstellen, dass eines der Kinder in der Pubertät in den Keller ziehen wird und dort dann das eigene Bad genießt).
Noch haben wir genügend Zeit um es ggf. später in der Werkplanung anzupassen.
 
11ant

11ant

Das mit den Kinderzimmer ist ein guter Hinweis. Allerdings sind beide ausreichend groß und ich finde es nicht sonderlich schlimm, wenn eins größer als das andere ist.
Um Größe oder Größenunterschied ging es mir nicht, sondern darum, die aufgeschlagenen Türblätter nicht wie zur Erschießung an die Wand zu stellen, sondern dahinter Platz zu lassen, Kleiderschränke auch dort aufzustellen. Das erhöht einfach die Zahl der Möblierungsvarianten, was manchmal wertvoller ist, als die nominellen Quadratmeter.
 
I

ivenh0

Wo kann mit kleinen Anpassungen noch etwas optimiert werden? Sei es Beleuchtung, Wände, Türen, Fenster, ...


Grundrissplan eines Hauses: Maßgetreuer Bauplan mit Wänden, Türen, Räumen und Nordpfeil.

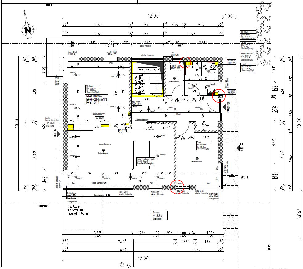
Grundriss eines Gebäudes mit Räumen, Wänden, Türen und Maßangaben.

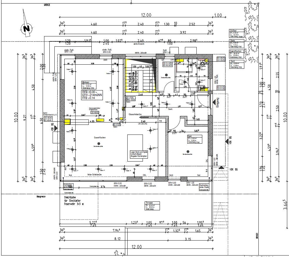
Grundrissplan eines Wohnhauses mit Zimmern, Türen, Treppen und Maße; roter Markierungsbereich.

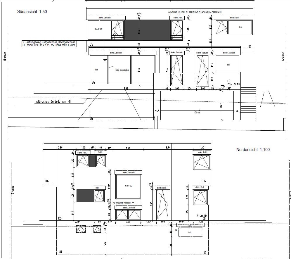
Süd- und Nordansicht eines Gebäudes mit Fenstern, Türen und Maßlinien.

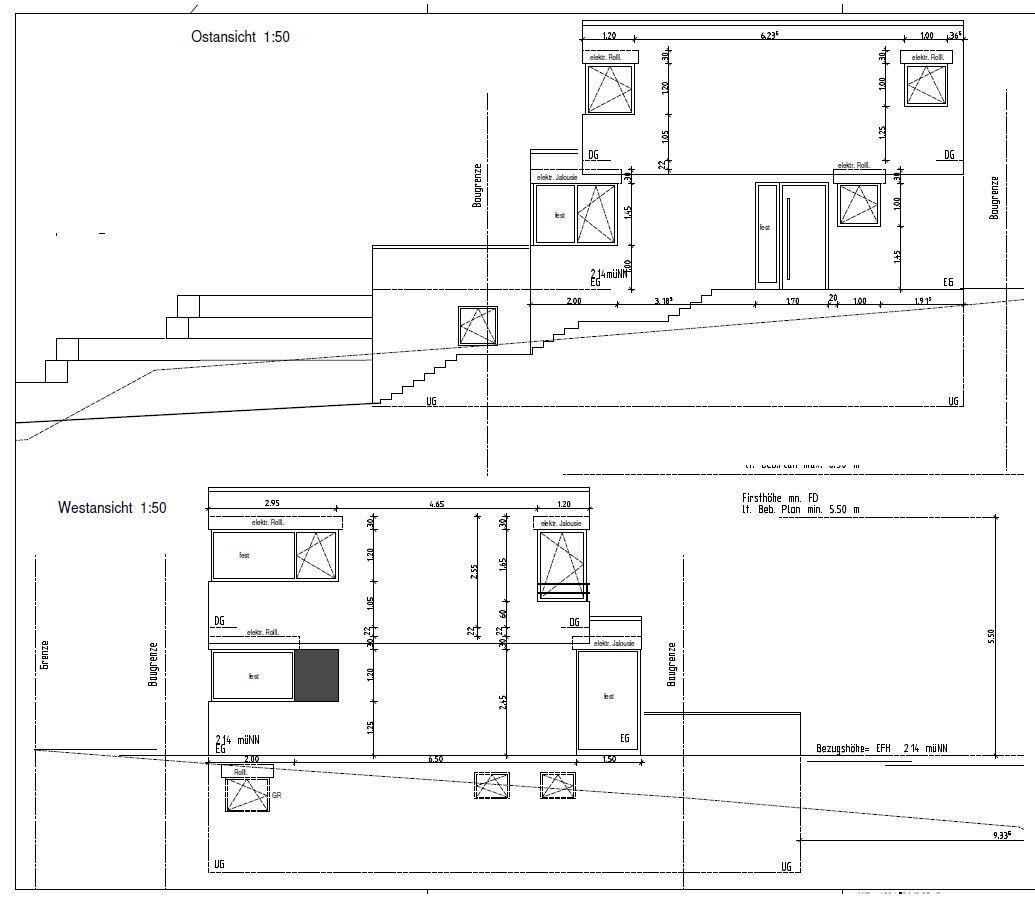
Architekturzeichnung: Ost- und Westansicht eines Gebäudes mit Treppen und Fenstern.


Vorab zur Fensteranordnung im Norden. Wir wissen, dass diese in der Außenansicht nicht gut aussieht, hier haben wir uns aber bewusst dafür entschieden, da uns die Anordnung von innen sehr gut gefällt -> Tolles Fenster auf der Plattform EG/OG, Licht im Flur KG

Bin gespannt auf eure Reaktionen

Gruß
 
Zuletzt bearbeitet:
kaho674

kaho674

Schöne Planung, obwohl ich zugeben muss, dass das 2. Kind echt bissl die A-Karte gegenüber Kind 1 hätte. Wenn da wirklich 2 Kinder da sind, wäre ich auch für mehr Gerechtigkeit.

Was mir bei den Fenstern (innen!) auffällt - die sind teilweise oft auf Kante gestrickt und zwar im wahrsten Sinne des Wortes. Ich bin kein Freund von "an den Rand klatschen" bzw. "in die Ecke quetschen". Fenster direkt an die Zimmerwand - das würde ich an Eurer Stelle noch mal in der 3D-Simulation ansehen. Mir würde es nicht so gefallen.


Grundriss eines Gebäudes mit Abmessungen, Wänden und Türen; rote Kreise kennzeichnen Anschlüsse.
 
11ant

11ant

Fenster direkt an die Zimmerwand - das würde ich an Eurer Stelle noch mal in der 3D-Simulation ansehen.
Ja, das hat etwas von Bürozelle, und ibs. wenn es nur an einer Seite angeklatscht ist, optisch etwas einbeiniges. Ästhetisch aus erfahrener Sicht ein böser Fehler - umgekehrt macht es aus Laiensicht aber gerade das "besonders bauhausige" aus.
 
I

ivenh0

Schöne Planung, obwohl ich zugeben muss, dass das 2. Kind echt bissl die A-Karte gegenüber Kind 1 hätte. Wenn da wirklich 2 Kinder da sind, wäre ich auch für mehr Gerechtigkeit.

Was mir bei den Fenstern (innen!) auffällt - die sind teilweise oft auf Kante gestrickt und zwar im wahrsten Sinne des Wortes. Ich bin kein Freund von "an den Rand klatschen" bzw. "in die Ecke quetschen". Fenster direkt an die Zimmerwand - das würde ich an Eurer Stelle noch mal in der 3D-Simulation ansehen. Mir würde es nicht so gefallen.

Anhang anzeigen 22126
Das Fenster in der Speisekammer macht so schon Sinn, denn in diesem schmalen Raum auf der linken Seite durchgängig ein Regal gestellt werden. Das Fenster im Bad ist unglücklich! Werden wir verschieben. Danke für den Hinweis. Habt ihr eine Lösung für die Türe im Büro? Nach rechts schieben ist doof, denn entweder müsste das Fenster dann verschmälert werden, oder es entfällt die Wand zw. Fenster und Türe, was uns optisch nicht so gut gefällt.

Ideen?
 
Zuletzt aktualisiert 20.11.2025
Im Forum Grundrissplanung / Grundstücksplanung gibt es 2535 Themen mit insgesamt 87978 Beiträgen


Ähnliche Themen zu Werkplanung Einfamilienhaus 180qm Flachdach mit Keller & Doppelgarage
Nr.ErgebnisBeiträge
1Badezimmer-Grundriss Planung - Wie die Fenster platzieren? 12
2Beschlagene Fenster trotz Lüftungsanlage - Seite 649
3Badplanung 14m², Neubau, quadratisch, zwei Fenster - Seite 970
4Haus von 1988 sanieren - Fenster und Haustüre? - Seite 315
5Einbruchsichere Fenster? - Seite 233
6Innenraum Gestaltung - Fenster 14
7Aufpreis für farbige Fenster realistisch? - Seite 319
8Gutachter Mängelfeststellung, Feststellung Einbau Fenster 10
9Riesiges Problem mit dem Kondenswasser am Fenster - Seite 334
10Trefz Fenster Preise und Erfahrungen? 14
11Fenster, Vorbaurollladen, Außenputz 10
12Rundes Fenster - unzufrieden mit Innenlaibung 16
13Welche Rollläden bei verschlossenem Fenster, nur Verglasung? 13
14 Küchenplanung mit tiefen Fenster - Seite 643
15Fenster im Neubau: Dreifachverglasung mit Grünstich? - Seite 321
16Grundrissfrage, Treppe, Fenster, Ausrichtung 12
17Welche Fenster und Türen empfehlenswert? 21
18Bodengleiche Dusche mit Fenster in der Nähe 13
19Grundriss Einfamilienhaus geplant, Fenster gefallen uns 43
20Mindestbreite bei 2flügeliges Fenster/Terrassentür? 48

Oben