Werkplanung Einfamilienhaus 180qm Flachdach mit Keller & Doppelgarage

4,50 Stern(e) 11 Votes
Zuletzt aktualisiert 03.01.2026
Sie befinden sich auf der Seite 21 der Diskussion zum Thema: Werkplanung Einfamilienhaus 180qm Flachdach mit Keller & Doppelgarage
>> Zum 1. Beitrag <<

Y

ypg

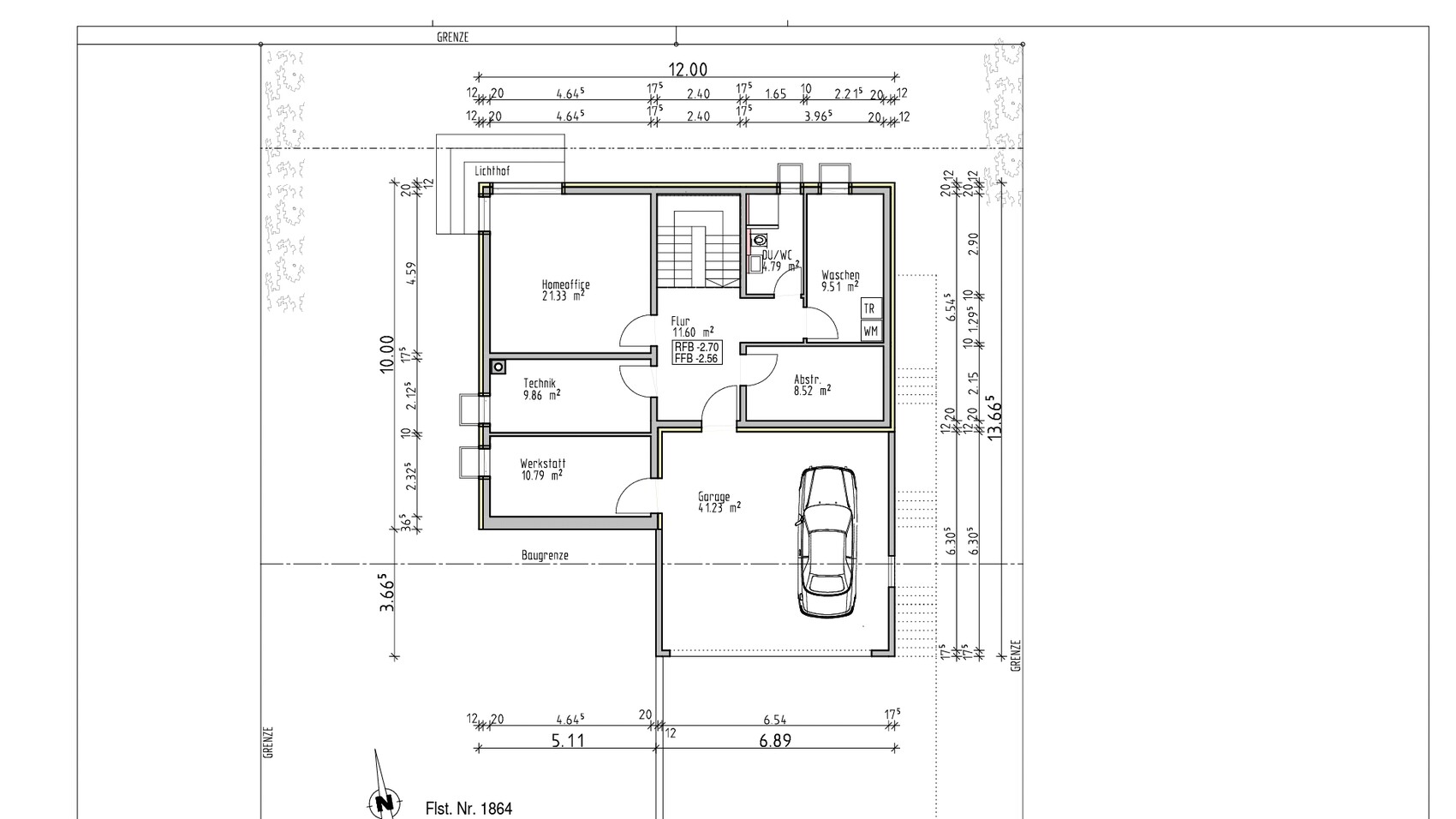
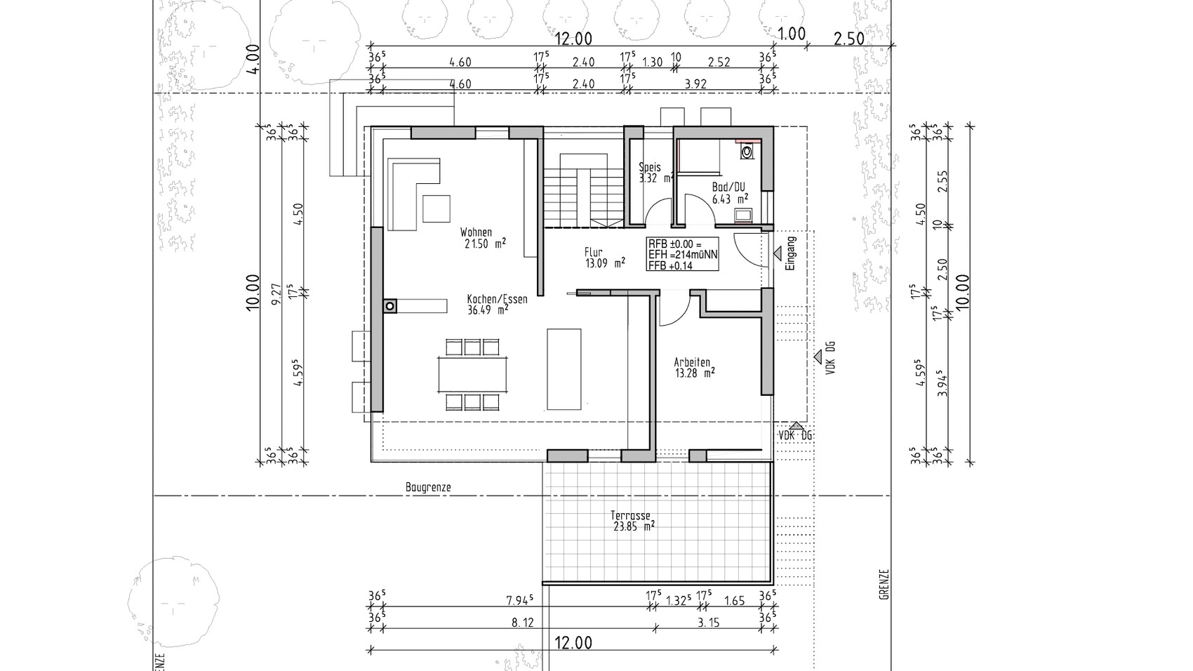
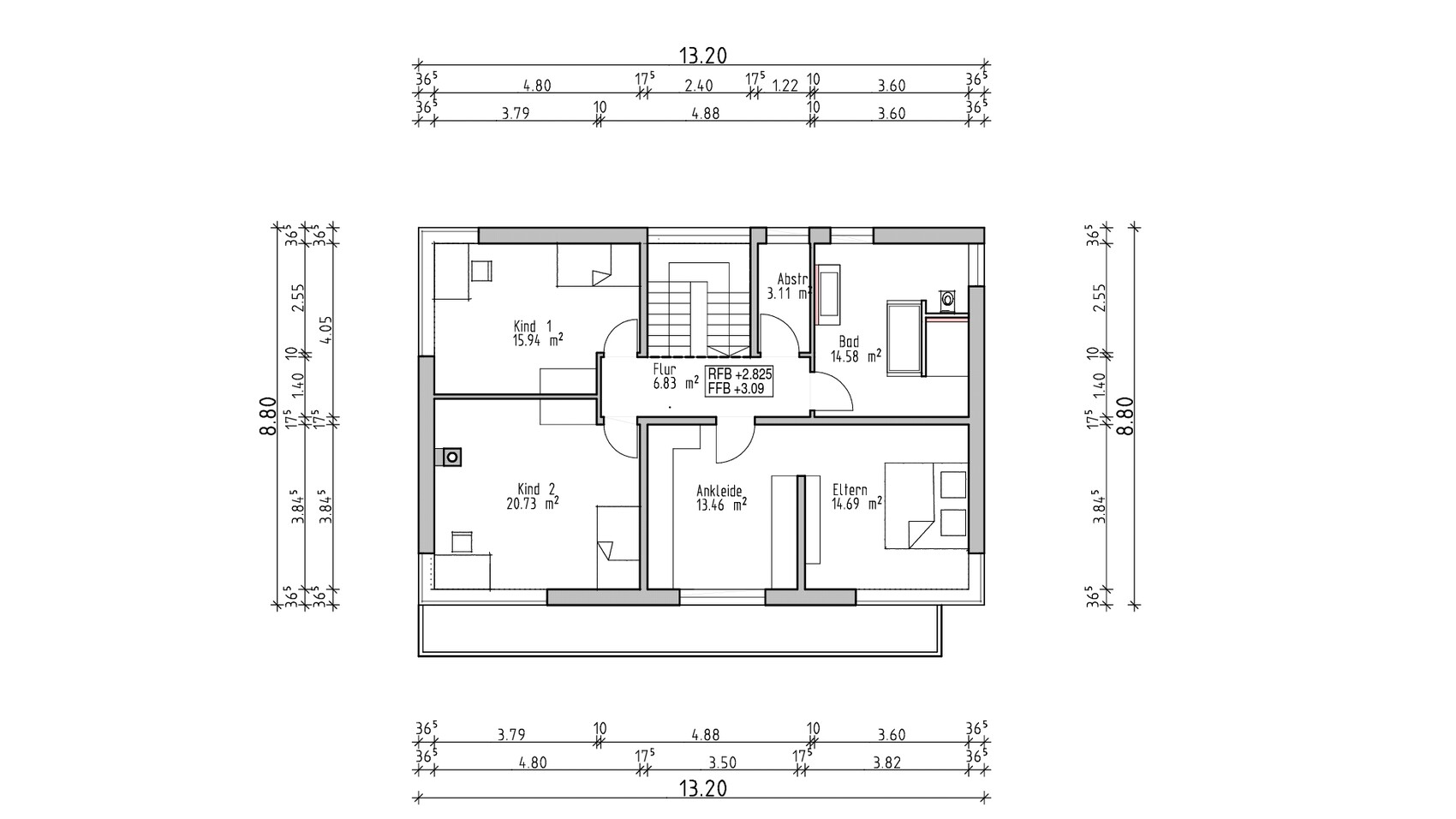
Wir spielen gerade noch mit dem Gedanken ein Kinderbad im OG zu realisieren. D.h. das vorhandene Bad würde kleiner werden und dafür würde ein Kinderbad (Dusche, WC, Einzelwaschtisch) dazu kommen.

Mit wie viel Zusatzkosten müssten wir rechnen?
Rechne doch einfach mal mit 8-10000...
 
A

arnonyme

Warum überhaupt noch ein Kinderbad im OG?
Im EG ist doch eine Dusche vorhanden. Wenn ihr nur 2 Kinder plant, sollte das doch reichen.
Ich würde das Geld eher in Holz-Aluminium Fenster stecken
Meine Schwägerin hat auch nur 1 Bad im OG, sowie eine Dusche im EG, mit 4 Kindern!
So wie es aussieht reicht das (noch).
Solange die Kinder klein sind, ist das denke ich kein Problem. Nur später wirds wahrscheinlich ein wenig problematisch.
 
I

ivenh0

Die Idee wurde zwischenzeitlich wieder verworfen - die letzten Änderungswünsche an den Plänen wurden versendet, so dass diese jetzt in die Pläne einfließen und wir hoffentlich nächste Woche den Bauantrag einreichen können :-]
 
K

Karlstraße

Die Idee wurde zwischenzeitlich wieder verworfen - die letzten Änderungswünsche an den Plänen wurden versendet, so dass diese jetzt in die Pläne einfließen und wir hoffentlich nächste Woche den Bauantrag einreichen können :-]
Kannst du noch mal deine finalen Pläne einstellen? Fand deine Planung super und würde sie gerne final sehen!
 
Zuletzt aktualisiert 03.01.2026
Im Forum Grundrissplanung / Grundstücksplanung gibt es 2563 Themen mit insgesamt 88708 Beiträgen


Ähnliche Themen zu Werkplanung Einfamilienhaus 180qm Flachdach mit Keller & Doppelgarage
Nr.ErgebnisBeiträge
1Erstkontakt und Vorstellung unserer Pläne 10
2Duschbeleuchtung Walk in Dusche - Seite 214
3Ablaufrinne Bodenebene Dusche mit Fußbodenheizung 44
4Anschluss Badewanne an Dusche 21
5Fliesenhöhe 2 m in Dusche genug? 18
6Dusche 2 Seiten offen 26
7Bodengleiche Dusche mit Fenster in der Nähe 13
8Offene Dusche - Wie tief? - Seite 228
9Gästebad 75x90cm Dusche Armaturplatzierung - Seite 222
10Badplanung bei einem kleinen Bad mit Walkinn Dusche 22
11Hauptbadezimmer (10qm) mit offener Dusche, Ideen? - Seite 884
12Grundriss Bad mit Dusche 11
13Fußbodenheizung in der Dusche? - Seite 214
14Duschwanne oder geflieste Dusche? - Seite 424
15Bodentiefe offene Dusche, welche Größe? 16
16Dusche auf Podest und Schubfach 13
17Decke über der Dusche - LED-Spots 12
18Bodengleiche Dusche fertig und Problem mit Abdichtung 25
19größere Dusche im Grundriss unterbringen - Welche Größe wählen? - Seite 238
20Fußbodenheizung in der Dusche notwendig? Was meint ihr dazu? 35

Oben