Werkplanung Einfamilienhaus 180qm Flachdach mit Keller & Doppelgarage

4,50 Stern(e) 11 Votes
Zuletzt aktualisiert 03.01.2026
Sie befinden sich auf der Seite 14 der Diskussion zum Thema: Werkplanung Einfamilienhaus 180qm Flachdach mit Keller & Doppelgarage
>> Zum 1. Beitrag <<

I

ivenh0

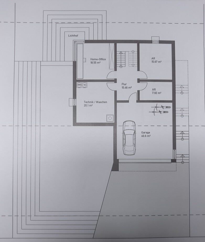
So, wir hatten einen klasse Termin und sind total happy über die Gestaltung des Entwurfs. Was ist eure Meinung dazu?
Moderne weiße Villa mit großen Glasfronten, Balkon rechts, Baum und Grünfläche.

Modernes weißes zweistöckiges Haus auf Hanglage mit Garage, Auto und Grünfläche.

Moderne weiße Villa auf Hanglage mit Garage, Einfahrt, Treppen und Auto vor dem Eingang.

Moderne weiße Villa auf einem Hügel mit Treppen, Terrasse und Bäumen.

Grundriss eines Wohn-/Ess-/Kochbereichs mit Foyer, HWR, DU/WC und Home-Office.

Grundriss Kellergeschoss: Garage mit Auto, Home-Office, Technik/Waschen, Flur, 2 AR, Treppen.

Grundriss eines Obergeschosses mit Flur, Bad, Schlafen, Ankleide und zwei Kinderzimmern.

Grundriss eines Hauses mit Garage, Flur, Home-Office, Technik/Waschen und Abstellräumen.
 
Y

ypg

So spontan kann ich nicht meckern [emoji2]
Man darf auch einen guten Entwurf nicht willkürlich zerfleddern.

Ich würde im Westen noch ein Fenster im WZ machen und die Ecke in der Ankleide nutzen, vom Flur aus diesen Wäscheschacht zu machen. Den Rest im EG und KG vermitteln.
 
I

ivenh0

So spontan kann ich nicht meckern [emoji2]
Man darf auch einen guten Entwurf nicht willkürlich zerfleddern.

Ich würde im Westen noch ein Fenster im WZ machen und die Ecke in der Ankleide nutzen, vom Flur aus diesen Wäscheschacht zu machen. Den Rest im EG und KG vermitteln.
Danke
Das mit dem Wäscheabwurf verstehe ich nicht. Wir hatten ihn jetzt durch das Bad im OG und EG in den AR im KG vorgesehen
 
Zuletzt aktualisiert 03.01.2026
Im Forum Grundrissplanung / Grundstücksplanung gibt es 2563 Themen mit insgesamt 88708 Beiträgen


Ähnliche Themen zu Werkplanung Einfamilienhaus 180qm Flachdach mit Keller & Doppelgarage
Nr.ErgebnisBeiträge
1Fitness-Ecke im Hauswirtschaftsraum? 27
2 2 Vollgeschosse, Durchgang Garage, Hauswirtschaftsraum unter Treppe - Seite 325
3Technik / Hauswirtschaftsraum im OG Meinungen? 27
4Zusätzlicher Hauswirtschaftsraum im OG für Waschmaschine etc. 13
5Fußbodenheizung auch im Technikraum / Hauswirtschaftsraum - Seite 319
6Reicht der Hauswirtschaftsraum auch als Abstellkammer aus? 22
7Heizungsanlage passt nicht wie geplant in den Hauswirtschaftsraum 27
8Schallschutztür im Hauswirtschaftsraum notwendig? Erfahrungen? 22
9Hauswirtschaftsraum streichen - Welche Farbe? Latexfarbe? - Seite 216
10Schrank für Hauswirtschaftsraum 21
11Leitungsführung vom Hauswirtschaftsraum zum Bad 23
12Wie Hauswirtschaftsraum im Keller sinnvoll in die thermische Hülle? 15
13Hausanschlusssäule im Garten vs. Hausanschluss direkt im Hauswirtschaftsraum 35
14Hauswirtschaftsraum mit Gipsputz streichen - Welche Farbe? 20
15CAT Kabel im Hauswirtschaftsraum - nicht gecrimpt? - Seite 545
16Zugang von der Garage in den Hauswirtschaftsraum 49
17Ikea Pax Hauswirtschaftsraum/Waschküche System? - Was habt ihr? 64
18Kleinstmögliches Fenster für Lüftung Hauswirtschaftsraum 22
19Ideen Wäsche trocknen Hauswirtschaftsraum 20
20Hauswirtschaftsraum vorstreichen - frischer Estrich 10

Oben