Treppe Grundriss Planung, Auftritt und Unterzug

4,40 Stern(e) 5 Votes
Zuletzt aktualisiert 22.10.2025
Sie befinden sich auf der Seite 4 der Diskussion zum Thema: Treppe Grundriss Planung, Auftritt und Unterzug
>> Zum 1. Beitrag <<

M

Milanni123

so...
Ich habe jetzt tatsächlich eine Treppe gefunden, die ir gefällt. Denkt ihr mit dem Grundriss passt es, wenn Mann noch so eine halbhohe Mauer davor macht? Oder wird es zu eng?

Danke noch mal!

Moderne dunkle Holztreppe mit Geländer im hellen Treppenhaus und Fliesenboden.


Grundriss: Haus mit Essen/Wohnen, Küche, Diele, G-WC, HWR und Carport
 
Nofret

Nofret

Das ist eine sehr steile Treppe - und mit offenen Stufen mit Kleinkindern gefährlich und ungeeignet. Wie willst Du bei dieser Stiege einen Schrank oder ein Doppelbett hochbekommen?
 
M

Milanni123

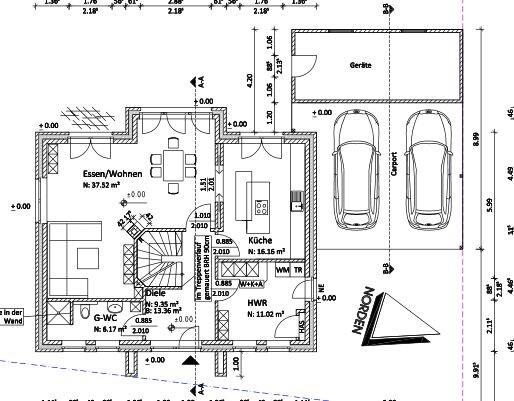
Hi zusammen! Ich traue mich fast nicht, das hier zu fragen... Wir haben uns ja nun für die halbgewendelte Treppe entschieden.
Allerdings sind wir uns hier mit der Laufrichtug noch nicht einig. Was sagt ihr?
So wie sie aktuell im Grundriss ist, läuft man ja direkt auf das Treppengeländer zu, wenn man rein kommt. Würden wir die Laufrichtung umkehren, dann würde die Treppe ja erst hinten an der Wand entlang laufen und man würde dann praktisch unter durch laufen.

Wie ist das eure Meinung? Ich glaube wenn wir die Laufrichtung umkehren, dann könnte alles offener wirken. Oder?

Liebe Grüße und ich hoffe ich nerve nicht, mit der Treppen-Fragerei!

Grundriss Erdgeschoss mit Wohn- und Essbereich, Küche, Diele, HWR, G-WC, Garage für zwei Autos.


2D-Grundriss eines Hauses mit beschrifteten Zimmern, Treppen, Flur und Bad
 
Zuletzt aktualisiert 22.10.2025
Im Forum Grundrissplanung / Grundstücksplanung gibt es 2524 Themen mit insgesamt 87533 Beiträgen


Ähnliche Themen zu Treppe Grundriss Planung, Auftritt und Unterzug
Nr.ErgebnisBeiträge
1Treppe im Flur, Grundriss steht eigentlich schon :o( 20
2Frage zu Grundriss, insbesondere Treppe 13
3Grundriss Einfamilienhaus 1,5 + Keller / 1. Vorentwurf - Vorschläge? - Seite 655
4Wie findet ihr diesen Grundriss? - Seite 211
5Grundriss die IV! :-) - Seite 318
6Meinungen zum Grundriss EG 10
7Grundriss über 200qm - Was haltet die Experten davon? 13
8Eure Meinung zum Grundriss für das EG - Seite 528
9Meinung zum Grundriss eines geplanten Bauhauses 23
10Unser Grundriss von 120qm auf 469qm Grundstück - Seite 1273
11Eure Meinungen zu unserem Grundriss und Angebot - Seite 322
12Vorplanung mit dem Architekten - eigener Grundriss sinnvoll? 18
13Grundriss Einfamilienhaus. Bitte um Feedback bzw Ideen :-) - Seite 325
14Entwurf Grundriss Bungalow Meinungen 22
15Einfamilienhaus-Grundriss Entwurf - Seite 223
16Grundriss Neubau - Bitte um Feedback 36
17Meinungen f. Grundriss Einfamilienhaus ca. 160qm - Seite 329
18Feedback zu Grundriss Einfamilienhaus erwünscht 18
19Ideenfindung für Grundriss 120m2 Einfamilienhaus - Seite 212
20Grundriss Doppelhaushälfte-Kleinstgrundstück - Seite 539

Oben