Stadtvilla 190m² mit Einfahrt & Garten zur Südseite

4,30 Stern(e) 3 Votes
Zuletzt aktualisiert 19.11.2025
Sie befinden sich auf der Seite 3 der Diskussion zum Thema: Stadtvilla 190m² mit Einfahrt & Garten zur Südseite
>> Zum 1. Beitrag <<

11ant

11ant

Grundflächenzahl: 0,4
Geschossflächenzahl: 2
Da stimmt wohl etwas nicht. Falls da "0,4 / II" stehen sollte, ist 0,4 schlimmstenfalls sogar die Geschossflächenzahl ! - berichte mal genau, was da steht. Üblicherweise ist die Nutzungsschablone (einmal für alle Bereiche des Planes) erläutert. Deutlich seltener als Grundflächenzahl und Geschossflächenzahl wird eine Baumassenzahl angegeben.
 
Zuletzt bearbeitet:
Y

ypg

Da stimmt wohl etwas nicht. Falls da "0,4 / II" stehen sollte, ist 0,4 schlimmstenfalls sogar die Geschossflächenzahl ! - berichte mal genau, was da steht. Üblicherweise ist die Nutzungsschablone (einmal für alle Bereiche des Planes) erläutert. Deutlich seltener als Grundflächenzahl und Geschossflächenzahl wird eine Baumassenzahl angegeben.
Ja, das glaube ich auch.
 
Y

ypg

Garage in die SO-Ecke?!

Und ich korrigiere: im Garten hast Du auch im Norden Sonne, gerade auch abends.
Wie viel Sonne durch welches Fenster kommt, ist eine andere Sache: da gilt Süd, bzw. dass im Norden fast gar nichts ins Haus kommt.
Das muss man entkoppelt betrachten.
Man kann einen großen Allraum sehr gut mit SW-Fenstern belichten, während die Terrasse im NW zu begehen ist.
Nochmal zum Sonnenstand:
wir haben vor zwei Wochen, also Mitte April in unserem Nord-Bad ab ca. 18 Uhr Sonne bekommen. Zwar nur seitlich, aber das zum Sonnen-Saison-Beginn finde ich das schon beachtlich und nennenswert zum Thema "es gibt nur im Süden Sonne"

Ich würde wie schon gesagt die Garage in den SO verlegen und die Auffahrt etwas mit einer Hecke vom Westgarten abtrennen, sodass auch im SW eine Terrasse gut angelegt ist.
Das Haus würde ich schmaler machen, dass es sich auf das Grundstück fügt und im Westen etwas mehr Platz bietet.
Aber das wären nur Gedankenabsätze, die sich ergeben, wenn man mal mit Bleistift auf Karopapier zeichnet und die Grundflächenzahl-Frage durch das Bauamt/ Bebauungsplan abgesegnet ist
 
O

Oguretz

Zu den JPGs musst du aber eine Lupe mitliefern. Beschneide die mal um den ganzen weißen Rand .

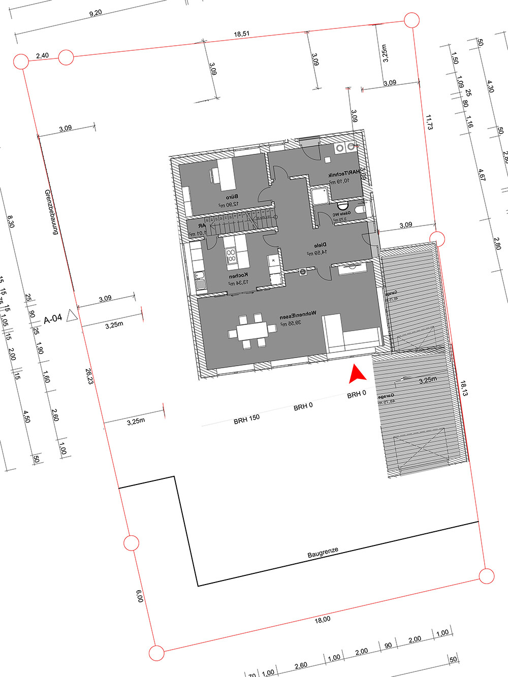
Zum Grundriss:
  • Der Gartenschuppen im Rahmen der Garage ist ja nun weitestmöglichst vom Hauptgarten entfernt
  • Warum nicht Kochen/Essen zusammenpacken, wenn Essplatz bei Küche gewünscht?
  • Die Türen zu den Zimmern sehen mehr als schmal aus
  • Freiraum beim Hochkommen von der Treppe ist doch Max. 1 m - oder?
  • Im Bad könnte man Dusche und WC/Bidet? samt Fenster tauschen und das West-Fenster etwas schmaler machen, dann erhält die Dusche auch natürliches Licht.
  • Schlafzimmer/Ankleide finde ich ungünstig verteilt. Wenn einer schon aufsteht, muss er immer 2 mal am Bett vorbei. Außerdem hat der Raum die Schokoladenseite, während z. B. das dritte Kinderzimmer nur morgens Sonne hat.
  • Es sind wohl noch 2 weitere Kinder geplant? Warum dann so ungleichmäßige Kinderzimmergrößen?
  • Gibt es Kundenbesuch im Büro?
Muss die Garage in den Westen?
 
kaho674

kaho674

Also etwa so?


Lageplan: roter Rand, Innenraum mit Küche, Essbereich, Treppe.


Oder noch weiter nördlich?
Haus lieber noch länger und schmaler, oder?
Wobei die "Innereien" natürlich komplett neu müssten.
 
O

Oguretz

Zu den JPGs musst du aber eine Lupe mitliefern. Beschneide die mal um den ganzen weißen Rand .

Zum Grundriss:
  • Der Gartenschuppen im Rahmen der Garage ist ja nun weitestmöglichst vom Hauptgarten entfernt
  • Warum nicht Kochen/Essen zusammenpacken, wenn Essplatz bei Küche gewünscht?
  • Die Türen zu den Zimmern sehen mehr als schmal aus
  • Freiraum beim Hochkommen von der Treppe ist doch Max. 1 m - oder?
  • Im Bad könnte man Dusche und WC/Bidet? samt Fenster tauschen und das West-Fenster etwas schmaler machen, dann erhält die Dusche auch natürliches Licht.
  • Schlafzimmer/Ankleide finde ich ungünstig verteilt. Wenn einer schon aufsteht, muss er immer 2 mal am Bett vorbei. Außerdem hat der Raum die Schokoladenseite, während z. B. das dritte Kinderzimmer nur morgens Sonne hat.
  • Es sind wohl noch 2 weitere Kinder geplant? Warum dann so ungleichmäßige Kinderzimmergrößen?
  • Gibt es Kundenbesuch im Büro?
Muss die Garage in den Westen?

Die Küche sollte möglichst geschlossen sein, wegen Gerüchen.

Es waren tatsächlich zu schmale Türen. Habe da leider die Falschen gewählt.

Ja leider ist bei der Treppe wenn man hoch kommt nicht viel Platz. Gefällt mir eigentlich auch nicht besonders.

Das mit der Dusche und dem Bidet tauschen ist eine gute Idee.

Das dritte "Kinderzimmer" soll ein Bügelraum werden, da eigentlich nur 2 Kinder geplant sind. Habe es leider falsch bezeichnet.

Es wird auch 1x in der Woche Kundenbesuch kommen.

Nein die Garage muss auch nicht unbedingt im Westen sein. Ist nur nicht so schlecht, da links neben dem Grundstück, wo 6m gekennzeichnet sind, 5 öffentliche Parkplätze gebaut werden und man beim raus fahren somit wenigstens links eine einigermaßen freie Sicht hat.
 
Zuletzt aktualisiert 19.11.2025
Im Forum Grundrissplanung / Grundstücksplanung gibt es 2536 Themen mit insgesamt 87973 Beiträgen


Ähnliche Themen zu Stadtvilla 190m² mit Einfahrt & Garten zur Südseite
Nr.ErgebnisBeiträge
1Grundflächenzahl/Geschossflächenzahl bei Grundstück ohne Bebauungsplan: Wie kalkulieren? Erfahrungen? 18
2Was bedeutet: Grundflächenzahl 0,4 Geschossflächenzahl 1,2 Geschosse II - II 12
3Staffelgeschosshaus 23x30m Grundstück mit Grundflächenzahl 0,25 25
4Haus, Garage / Carport auf dem Grundstück platzieren 93
5Ausrichtung Haus und Garage auf dem Grundstück - Seite 218
6Platzierung Haus und Garage auf Grundstück - Seite 212
7Position Garage auf Grundstück, Vorgabe im Bebauungsplan 22
8Ausrichtung Einfamilienhaus + Garage bei West-Ost Grundstück mit Strasse im Westen 18
9Grundriss mit Garage auf Grundstück realisierbar? 29
10Grundstück - Baufenster - Lage von Haus und Garage 44
11Kettenhaus auf 240qm Grundstück - Grundsatzfragen / Machbar? - Seite 361
12Grundstück in Hochwasserschutzgebiet - Nicht empfehlenswert? - Seite 239
13Grundriss Bungalow auf schon genutztem Grundstück 108
14Grundstück auf dem Lande - welches Grundstück welche Bauform - BW 12
15Grundstück in Marburg gefunden... Worauf achten? 11
16Grundflächenzahl; § 19 Abs.4 Baunutzungsverordnung - Erfahrungen? - Seite 526
17Grundstück vorhanden - wie nutzen? - Seite 951
18Grundstück cash kaufen, Bau über KfW/NRW.Bank - Seite 227
19Bungalow - macht das auf einem solchen Grundstück Sinn? - Seite 221
20Einfamilienhaus bauen mit/ohne Keller bei kleinem Grundstück - Seite 1065

Oben