Planung Erdgeschoss Essen/Kochen/Wohnen

4,20 Stern(e) 5 Votes
Zuletzt aktualisiert 29.11.2025
Sie befinden sich auf der Seite 6 der Diskussion zum Thema: Planung Erdgeschoss Essen/Kochen/Wohnen
>> Zum 1. Beitrag <<

F

faselph

Auch nicht über das Nebengebäude rechts?

Mit Denkmalschutz habe ich noch was im Kopf.

Wie lange nutzten die Kinder ihr Reich noch während der Ausbildung oder danach? Zu Hause wohnen ist doch noch eine pragmatische Möglichkeit etwas Geld als Startkapital zusammeln oder als Gästezimmer für Elternbesuch.
Vielleicht zieht mal eines eurer Kinder ein mit einer größeren Familie und ihr macht es euch unterm Dach gemütlich ohne Getrampel auf dem Kopf.
Will man fremde Mieter in einem Haus?

Ich würde für jetzt planen.
Hallo Haydee, das mit dem Zugang übers Nebengebäude haben wir abgeklärt, wird sehr schwierig bis unmöglich dass das akzeptiert wird. Ausserdem würde dann die ganze Fläche von dem Nebengebäude von unserer Wohnfläche abgezogen. Das heisst wir verlieren 50m2 Wohnfläche oder anders gesagt, wir müssten das Haus 4 Meter kürzer bauen.

Wie schon vorhin geschrieben habt ihr damit wahrscheinlich recht, dass das mit der Teilung noch nicht so genau nehmen sollte und mich auf jetzt fokussieren sollte, allerdings sehe ich bis auf das nach hinten Schieben der Treppe (und dadurch größerer Eingangsbereich) und dem Tausch vom Bad zwischen die Zimmer im EG (dadurch mehr Wandfläche und Separierung) nicht so viel Optimierungspotential.
Vielleicht muss man aber mal einen Schritt zurück machen und alles etwas anders anschauen.
 
F

faselph

Es gibt einen Zielkonflikt: jetzt seid ihr eine 'Grossfamilie' mit 3 Kindern und vielen Gästen - dh. ihr benötigt eine entsprechend grosse Küche, Garderobe, Ess-& Wohnbereich.

Wenn das Teil dann mal eine dann mal eine 3,5-Zi WHG sein soll sind die Anforderungen aber ganz andere - die Wohnung ist dann für 1- max. 3 Personen ausgelegt. Die Gewichtung der Schlafzimmer mit Schränken ist dann höher, der Schlafbereich sollte dann auch etwas abgegrenzter sein können, die Küche & Garderobe deutlich kleiner etc.

Eierlegende Wollmilchsäue sind halt nach wie vor nicht erfunden worden.
Hallo Nice-Nofret

du hast recht, wir sollten uns auf jetzt fokussieren, merci für den Input.
 
F

faselph

Welche Variante gefällt Dir besser? Wieso kann man kein Fenster mehr ändern? Steht der Neubau schon?

Im SO ein grosses Fenster mit Festverglasung und nur eine Tür.

Den Beitrag hättest aber anpinnen sollen.


Da ist das Wohnzimmer aber kaum vorhanden.
Hallo Hanghaus

Nein der Neubau steht noch nicht, aber Gesuch ist eingegeben, so weit ich das verstanden habe kann dann an der Außengestaltung nichts mehr geändert werden, aber muss ich zuerst nochmal nachfragen damit ich hier nichts falsches sage.

Wieso würdest du ein grosses Fenster mit nur einer Tür anstelle der grosssen Front im Südosten? Damit es mehr Wand gibt?

Nochmal Asche über mein Haupt dass ich den 1 Beitrag nicht gefunden und einfach einen neuen Beitrag eröffnet habe. Ihr seid wirklich so hilfreich und ich war zu faul um etwas länger zu suchen, tut mir leid.
 
F

faselph

Hallo Hanghaus, von deinen beiden Varianten gefällt mir diese besser, jetzt verstehe ich auch was du mit der Tür und Festverglasung in der Sudostfassade meinst.
Die Variante mit der Küche unten rechts finde ich aber auch nicht so schlecht.

Gruss


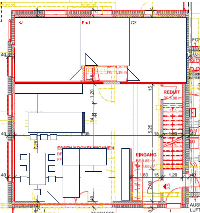
Grundriss eines Hauses mit SZ, Bad, GZ, Essen/Koch/Wohnen und Eingang


Detaillierter 2D-Hausgrundriss mit Eingangsbereich, Wohnzimmer, Küche und Bad.


Welche Variante gefällt Dir besser? Wieso kann man kein Fenster mehr ändern? Steht der Neubau schon?

Im SO ein grosses Fenster mit Festverglasung und nur eine Tür.

Den Beitrag hättest aber anpinnen sollen.


Da ist das Wohnzimmer aber kaum vorhanden.
 
F

faselph

Sorry, habe gerade gesehen dass ich den Text immer nach dem Zitat einfügen soll, werde mich von nun an daran halten, sorry dass ich das z. Teil falsch gemacht habe.

Gruss
 
N

nordanney

Ich würde komplett neu denken. Da mal eben schnell erstellt, sieht vieles nicht schön aus. Aber Du verstehst damit, was ich meine. "Richtiger" Eingangsbereich. Auch die zwei Zimmer kann man darstellen. Aber: Hast Du keinen Architekten und machst alles selber?

Grundriss einer Wohnung: Eingang, Ess/Koch/Wohnen, Zimmer 1, WC, Terrasse.
 
Zuletzt aktualisiert 29.11.2025
Im Forum Küchenplanung und Küchenbau gibt es 1074 Themen mit insgesamt 12736 Beiträgen


Ähnliche Themen zu Planung Erdgeschoss Essen/Kochen/Wohnen
Nr.ErgebnisBeiträge
1Kalkulation Einfamilienhaus mit 175m² Wohnfläche, Keller und Doppelgarage - Seite 379
2Lage Gäste-WC - Eingangsbereich? 28
3Walk-In Dusche, Spritzwasser, brauche ich eine Tür? - Seite 235
4Aufteilung?! Kleines Zimmer / starke Schräge / Heizkörper - Seite 361
5Blockhaus mit Krüppelwalmdach am Wald - Planung verbessern? - Seite 11204
6Heizanlage Hausbau mit Nebengebäude beheizt, Fußbodenheizung, Gas / Erdwärme 11
7„Großes Haus“ vs „kleines Haus“ + Nebengebäude 27
8Einfluss Nebengebäude auf Grenzbebauung - Seite 325
92-geschoßiges Einfamilienhaus ohne Keller mit Nebengebäude und Zufahrt im Süden - Seite 227
10Massivhaus-Einfamilienhaus 142 m² Wohnfläche, Fragen zu Grundrissen/Baukosten - Seite 327
11Keller für 20m² mehr Wohnfläche opfern? - Seite 215
12Grundrissplanung ~138 m² Wohnfläche zwei Vollgeschosse Stadtvilla - Seite 460
13130m2 Haus 1 1/2 geschossig Verhältnis Nutz/Wohnfläche 20
14Baukosten Pro Quadratmeter Wohnfläche, Erfahrungen? 35
15Wohnfläche auf einmal nur noch Nutzfläche? - Seite 214
16Optimale Wohnfläche Doppelhaus Freiburg 13
17Ist Kellerfläche teurer als Wohnfläche? 58
18Einfamilienhaus Bauhausstil Wohnfläche 180m mit Doppelgarage 53
19Dachgeschoss nicht vollständig als Wohnfläche gemeldet - NRW 19
20Unser Lebensprojekt: Einfamilienhaus mit 800m2 Wohnfläche 85

Oben