Planung Erdgeschoss Essen/Kochen/Wohnen

4,20 Stern(e) 5 Votes
Zuletzt aktualisiert 29.11.2025
Sie befinden sich auf der Seite 7 der Diskussion zum Thema: Planung Erdgeschoss Essen/Kochen/Wohnen
>> Zum 1. Beitrag <<

F

faselph

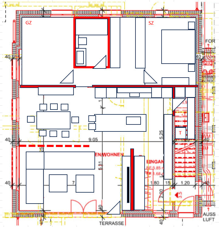
Hallo Nordanney, doch wir haben einen Architekten, mit dem sind wir eben zu dem Eingangs gezeichneten Plan gekommen, wobei da natürlich auch unsere Ideen eingeflossen sind, da allererste Entwurf sah im EG so aus, daraus ist dann der Rest entstanden.

Könntest du auch einen mit 2 Zimmern erstellen lassen?

Gruss Philipp


Detaillierter Grundriss eines Hauses mit Wänden, Maßen und Zimmern.
 
H

hanghaus2023

Hier mal noch eine Variante. Schlafzimmer mit Ankleide oder mit Raumteiler wo der TV dran kommt. Fenster größer versteht sich.


Grundriss eines Gebäudes mit Räumen, Türen und Möbeln; rote und blaue Linien kennzeichnen Wände.
 
N

nordanney

Als Gedankenanstoß aber zumindest ausreichend. Vielleicht könnt Ihr Euch auch im Netz von Grundrissen von Doppelhaushälften inspirieren lassen. Da ist es auch der Klassiker, dass der Eingang so wie bei Euch liegt.
 
F

faselph

Frage: Warum müssen es zwingend zwei Räume unten sein?
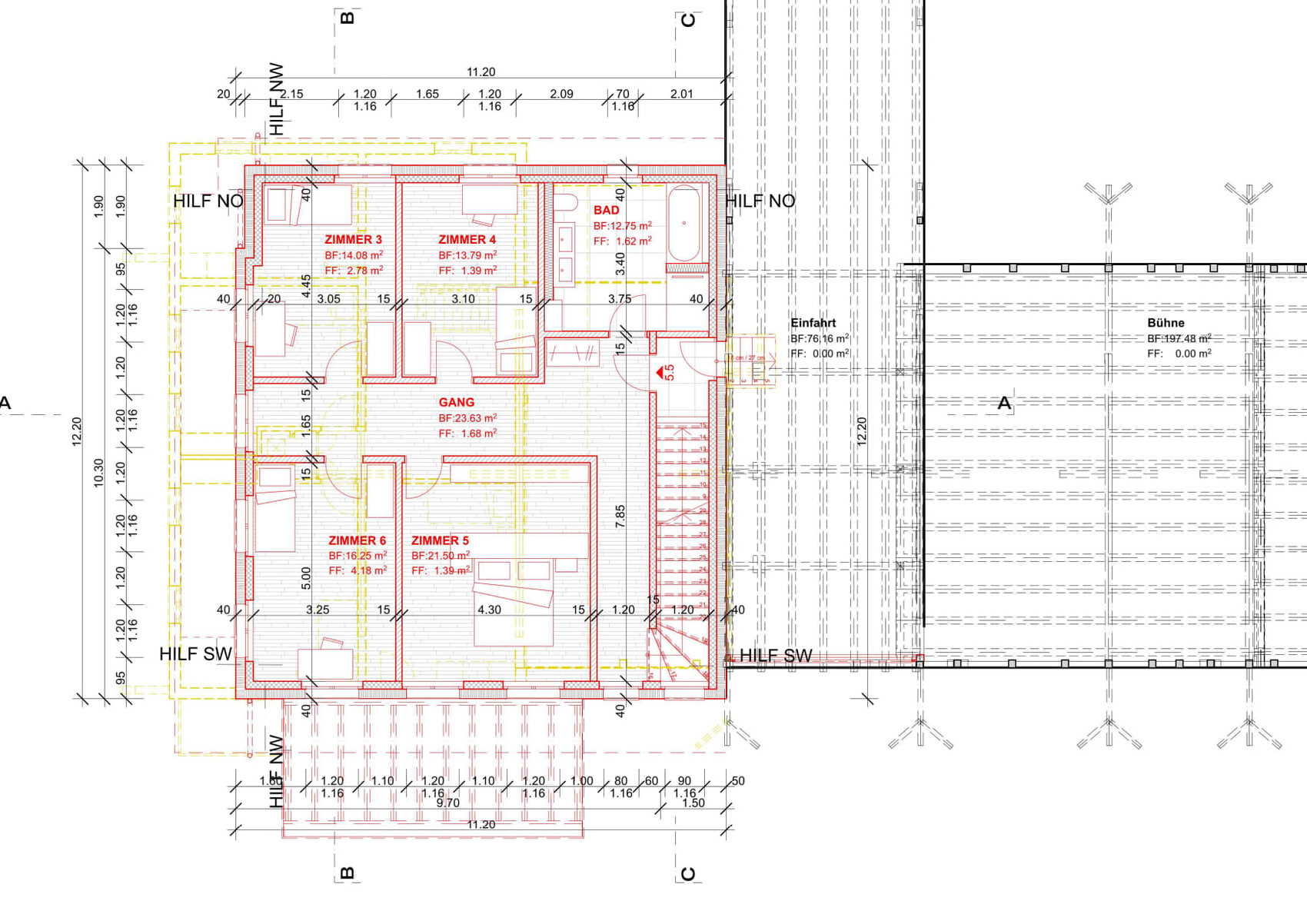
Hallo Nordanney, wir können EG und OG benutzen (aufgrund der Flächen). Wir sind 2 Erwachsene, 3 Kinder, meine Schwiegermutter aus dem Ausland besucht uns 1x pro Jahr für 3 Monate und wir arbeiten auch viel von zu Hause = 3 Kinderzimmer, 1 Elternzimmer, 1 Gästezimmer, 1 Büro, 1 Familienbad, 1 Gästebad.
Wir haben jetzt 3 Kinderzimmer, 1 Elternzimmer, und Familienbad im OG, dadurch benötigen wir 2 Zimmer im EG. Oder denkst du das wir das Büro auch noch ins OG bekommen?
Hier noch der Stand vom Grundriss vom OG:
Grundriss eines Wohnhauses mit ZIMMER 3–6, BAD, GANG und EINGANG.
 
Zuletzt aktualisiert 29.11.2025
Im Forum Küchenplanung und Küchenbau gibt es 1074 Themen mit insgesamt 12736 Beiträgen


Ähnliche Themen zu Planung Erdgeschoss Essen/Kochen/Wohnen
Nr.ErgebnisBeiträge
1Größe Kinderzimmer/Grundriss 12
2Wanddicke Kinderzimmer / Bad 35
3Jalousien in Kinderzimmer und Bad auf der Südseite 12
4Größe vom Schlafzimmer und Kinderzimmer 38
5Kinderzimmer in Dachgeschoss zu klein geplant? - Seite 233
6Kinderzimmer im Obergeschoss bis zum Dach offen 25
7Ups...! Wir brauchen jetzt doch ein Kinderzimmer... 19
8Umbau Kinderzimmer - Fenster in zwei Fenster aufteilen? 20
9Kinderzimmer mit bodentiefen Fenstern 22
10Kork oder Bambus für Kinderzimmer? 41
11Grundrissplanung Hanghaus mit 5 Kinderzimmer 370
12Kinderzimmer und Schlafzimmer - Welche Größe ist zu empfehlen? 56
13Einrichtung Kinderzimmer - Wie sollen wir die gestalten? 15
1412x9,6m 2 Vollgeschosse, Keller, DG, 4 Kinderzimmer - Seite 14153
15Schallschutz Kinderzimmer 12
16Grundrissplanung Einfamilienhaus (Stadtvilla) ca.140m² (3 Kinderzimmer) 42
17Einfamilienhaus mit 156 m² Grundfläche (2 Kinderzimmer + Homeoffice) 21
18Grundrissplanung ca. 200qm (3 Kinderzimmer + Schlafen) - Seite 529
19Einfamilienhaus ~190qm, drei Kinderzimmer, ohne Keller - Feedback wäre mega 19
20Schallschutztür Schlafzimmer / Kinderzimmer 23

Oben