Neubau Einfamilienhaus 2 Vollgeschosse mit Doppelgarage 150qm

4,60 Stern(e) 13 Votes
Zuletzt aktualisiert 26.11.2025
Sie befinden sich auf der Seite 9 der Diskussion zum Thema: Neubau Einfamilienhaus 2 Vollgeschosse mit Doppelgarage 150qm
>> Zum 1. Beitrag <<

W

Wugler1978

Sobald der finale Grundriss steht, werde ich diesen hier posten. Bilder vom Hausbau gibt es dann selbstverständlich auch.
 
W

Wugler1978

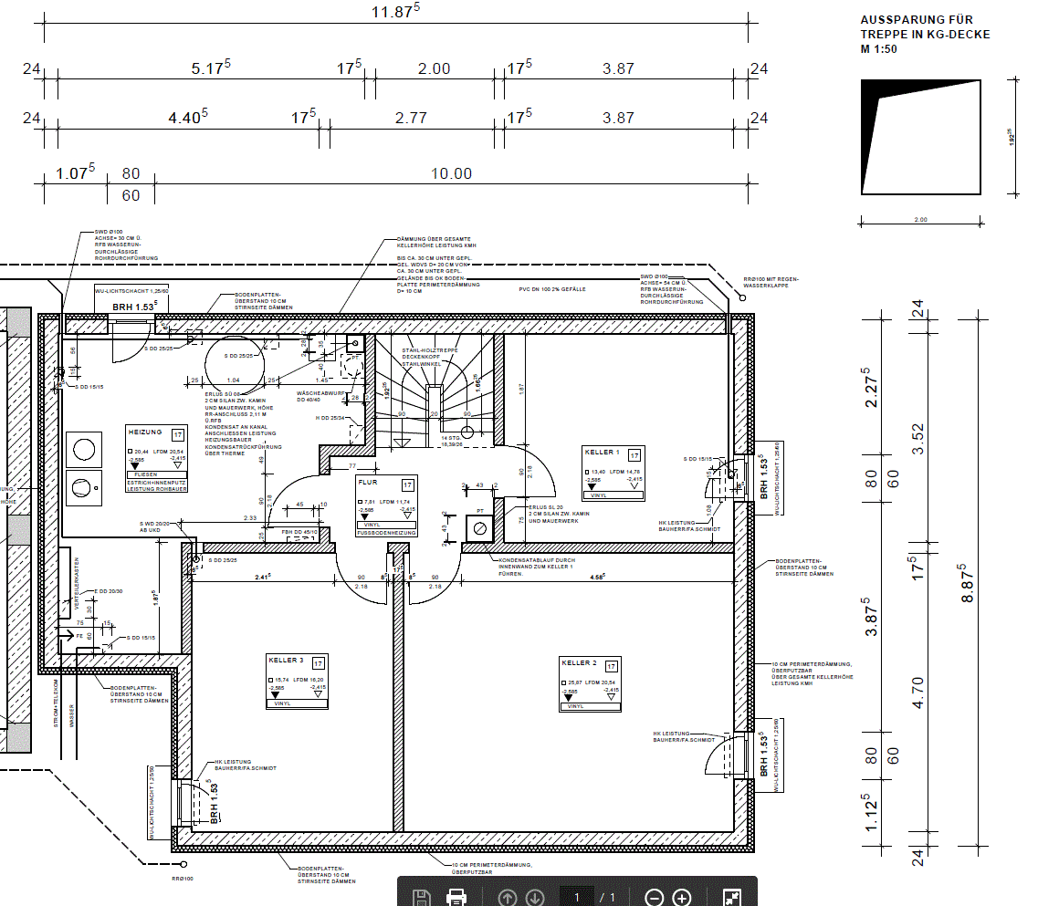
Wir sind jetzt mit unserer Planung durch. Wie versprochen jetzt unser finaler Grundriss. Wir haben einige Hinweise aus dem Forum dankend aufgenommen und den Plan geändert.
Das Haus wurde jetzt etwas breiter. Dadurch konnten wir die Küche und das Schlafzimmer um 30 cm verbreitern.
Im Windfang haben wir die Betondecke rausgenommen um mehr Höhe in den Raum zu bekommen.
Die Anmerkung bezüglich der Speisekammer haben wir diskutiert und dann entschieden, sie nicht rauszunehmen. Wir werden jetzt Einbauregale mit der Tiefe von Getränkekisten einbauen und haben dann noch einen Durchgang von ca 80-90 cm.
Die Garage mussten wir leider komplett umplanen, da der Geländeverlauf zu einer Garagenhöhe von 3,35m geführt hat und wir somit die Abstandsflächen einhalten mussten.

Architekturplan: Grundriss eines Hauses mit Räumen, Türen und Terrasse.


Grundriss Kellergeschoss: Bauplan mit Wänden, Türen, Treppen und Maßangaben.


Grundriss eines Wohnhauses: Räume, Türen, Wände, Maßlinien und Treppenbereich.


Südansicht eines zweigeschossigen Hauses mit Garage links, großen Fenstern und Garten.
 
kaho674

kaho674

Ich find's ganz gut. Ok, ein paar Sachen würd ich anders machen wie z.B. ein Fenster in die Ankleide und noch eins ins Bad, aber das wird ein schönes Haus.
 
W

Wugler1978

Ich find's ganz gut. Ok, ein paar Sachen würd ich anders machen wie z.B. ein Fenster in die Ankleide und noch eins ins Bad, aber das wird ein schönes Haus.
Fenster Ankleide ist raus, wegen ausbleichen der Kleidung. Fenster im Bad musste leider rausfliegen, da wir die Garage verschoben haben und somit das Dach der Garage im Weg ist.
 
Zuletzt aktualisiert 26.11.2025
Im Forum Grundrissplanung / Grundstücksplanung gibt es 2536 Themen mit insgesamt 88016 Beiträgen


Ähnliche Themen zu Neubau Einfamilienhaus 2 Vollgeschosse mit Doppelgarage 150qm
Nr.ErgebnisBeiträge
1Einfamilienhaus-Grundriss 170 qm für 4 Personen mit Garage 20
2Grundriss. Meinungen, Ideen und konstruktive Kritiken. - Seite 424
3Grundriss im Villenstil - Seite 221
4Grundriss unseres Bungalows - Seite 282
5Grundriss Neubau Satteldachhaus 145 qm, 9 x 11,5 m, kurz vor Bauantrag - Seite 332
6Bewertung Grundriss ca. 145 qm Einfamilienhaus Keller/EG/OG - Seite 4111
7Grundriss Einfamilienhaus 1,5 + Keller / 1. Vorentwurf - Vorschläge? - Seite 555
8Durchsicht Grundriss-Planung Einfamilienhaus mit Vollgeschossen 15
9Bungalow mit 140qm und Garage im Grundriss 13
10Grundriss mit Garage auf Grundstück realisierbar? - Seite 329
11Grundriss Einfamilienhaus (ca. 170 qm) mit Garage - Hanglage 35
12Grundriss 140 m2 Einfamilienhaus mit Garage - Hausausrichtung ok? - Seite 218
13Fenster im Gäste-WC/Gästezimmer trotz Garage möglich? 33
14Grundriss Bungalow 150qm mit Garage 79
15Grundriss Einfamilienhaus mit Keller und Garage - Seite 250
16Grundriss Einfamilienhaus, 200m2, 2 Vollgeschosse, Garage, ohne Keller 39
17Grundriss Einfamilienhaus mit 240m² mit Einliegerwohnung 75m² und Garage 39
18Grundriss Einfamilienhaus ca. 135 m³, Grundriss. Garage, 1,5 Geschossig, 4 Personen 11
19Grundriss Einfamilienhaus geplant, Fenster gefallen uns 43
20Grundriss Neubau Einfamilienhaus: Fenster/Türen/Innenwände Größe/Anordnung ok? 20

Oben