Neubau Doppelhaushälfte - Anregungen zum geplanten Grundriss

4,60 Stern(e) 8 Votes
Zuletzt aktualisiert 14.10.2025
Sie befinden sich auf der Seite 2 der Diskussion zum Thema: Neubau Doppelhaushälfte - Anregungen zum geplanten Grundriss
>> Zum 1. Beitrag <<

H

hanse987

Die Treppe ist schon sehr steil. Geht schon die Richtung "Hühnerleiter". Ich würde mir so eine Treppe vorher mal live ansehen und auch begehen, ob dies auch für dich OK ist.

Wo kommt den die Garderobe hin?

Wie immer bei so "nackten" Grundrissen: Zeichne die vorhandenen und gewünschten Möbel ein und vergesse nicht die Verkehrswege. Dann sieht man schnell ob so eine Grundriss funktioniert oder nicht.
 
Y

ypg

Wo kommt den die Garderobe hin?
Das denke ich ja auch jedes Mal. Aber allein als Single ist das, denke ich, nicht so ein Problem. Zur Not plant man an der langen Küchenwand Einbauschränke, wo die Regenjacke rein kann.
Bei uns wurden schicke Reihenhäuser gebaut, noch sind sie in der Vermarktung. Geplant als Quartier, so nennt man das jetzt, wo ein Spielplatz mit Bänken drumherum zentraler Treffpunkt sein soll.
Hier mal ein Beispiel eines Hauses mit 148qm auf drei Ebenen für eine vierköpfige Familie

Grundriss eines Hauses: obere Küche, WC, HWR, offener Wohn-/Essbereich und Terrasse.
 
11ant

11ant

Könntest du das erläutern: "die äußerst merkwürdig gezeichneten Eckdetails der Hauswand an der gemeinsamen Seite"
Was ist daran so merkwürdig?
Nicht "merkwürdig" sondern nett gesagt "kaum zu glauben" ist, daß die Wände hier quasi "auf Gehrung verleimt" würden. Ich wüßte gar nicht, was ich rauchen müßte, um das zu glauben. Wer Ahnung vom Bauen hat, wird derlei nicht zeichnen - wer ohne solche Ahnung einen Automaten programmiert, es so darzustellen, der schon. In der Realität auf der Baustelle wird da etwas nicht zusammenpassen (oder von Immerso-Bauarbeitern einfach "gemacht" werden, ohne sich um den Plan zu scheren). Am Ende sehe ich jemanden Dir vorschlagen, etwas anderes abzunehmen als wofür Du bezahlt hast.
 
Y

ypg

Ich wüßte gar nicht, was ich rauchen müßte, um das zu glauben. Wer Ahnung vom Bauen hat, wird derlei nicht zeichnen - wer ohne solche Ahnung einen Automaten programmiert, es so darzustellen, der sc
Ach komm, es ist keine Ausführungsplanung, sondern nur eine Vorstellung für den Bauherren. Überbewerte doch nicht immer diese Entwurfsskizzen.
 
R

Rebell33

Wenn Du in der Küche mehrere Hochschränke planst, dann achte darauf, dass seitlich der Fenster keine 60/65cm vorhanden sind. Das funktioniert also nicht. Entweder also ändern oder die Tatsache in der Küchenplanung berücksichtigen.
Was ist mit der Badeinrichtung? Das Fenster über der Wanne ist natürlich blöd.
Daran hatte auch schon gedacht. Anbei ein Foto (alles andere als maßstabsgetreu) von der Küchenplanung
und ein ein Bild vom Badfenster (ist die Nachbarseite, aber ist bei mir gleich).
3D-Rendering eines modernen weißen Hauses mit Eingangstür, mehreren Fenstern; roter Text 'Badfenster'.

Küchen-Grundriss mit Kühlschrank, Herd, Spüle, Waschmaschine und Hängeschränken; 16,63 m²
 
R

Rebell33

Die Treppe ist schon sehr steil. Geht schon die Richtung "Hühnerleiter". Ich würde mir so eine Treppe vorher mal live ansehen und auch begehen, ob dies auch für dich OK ist.

Wo kommt den die Garderobe hin?

Wie immer bei so "nackten" Grundrissen: Zeichne die vorhandenen und gewünschten Möbel ein und vergesse nicht die Verkehrswege. Dann sieht man schnell ob so eine Grundriss funktioniert oder nicht.
Die Treppe hatte ich mal auf Fotos gesehen. Kam mir nicht wie Bergsteigen vor.

Ich wollte eine schmale Garderobe an die Treppenwand stellen. Das reicht für meine drei Jacke und fünf Schuhe.

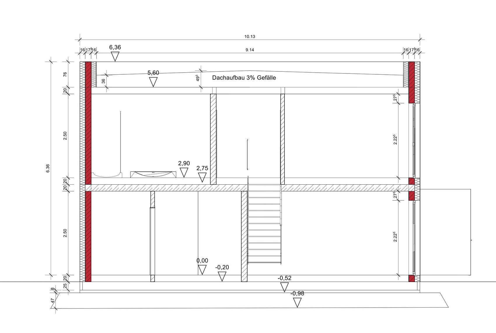
Anbei noch ein Bild vom Querschnitt.
Querschnitt durch ein zweigeschossiges Gebäude mit Treppe, Dachaufbau 3% Gefälle und Maßlinien.
 
Zuletzt aktualisiert 14.10.2025
Im Forum Grundrissplanung / Grundstücksplanung gibt es 2514 Themen mit insgesamt 87310 Beiträgen


Ähnliche Themen zu Neubau Doppelhaushälfte - Anregungen zum geplanten Grundriss
Nr.ErgebnisBeiträge
1Grundrissfrage, Treppe, Fenster, Ausrichtung - Seite 212
2Grundrissfrage, Garage, Treppe 33
3Einfamilienhaus ca. 150 qm Grundriss - Treppe wie planen? 65
4Stadtvilla mit gerader Treppe, offene moderne Bauweise, 140m² 18
5Schrank unter der Treppe oder kleiner Abstellraum - Seite 211
6Planung Einbaustrahler Flur und Garderobe - Tipps - Seite 662
7Grundrissfrage: Tausch gerader Treppe durch L-Treppe - Seite 631
8Wohin mit der Treppe? Dachausbau Walmdachbungalow - Seite 219
9Treppe im Flur, Grundriss steht eigentlich schon :o( 20
10Was ist bei einer Treppe beachten/Unterschie Wendeluing 22
11 2 Vollgeschosse, Durchgang Garage, Hauswirtschaftsraum unter Treppe 25
12Frage zu Grundriss, insbesondere Treppe 13
13"notwendige Treppe" zum Dachgeschoss - Seite 423
14Treppe Grundriss Planung, Auftritt und Unterzug 21
15Technikraum so klein wie möglich - Unter der Treppe? 10
16Treppe ohne Geländer geliefert und ich muss nun nachzahlen? - Seite 319
17Welche Treppe habt ihr genommen 77
18Gerade Treppe - warum? 14
19Abschluss Treppe - Parkett 28
20Baumangel - Treppe nicht in Ordnung - Seite 212

Oben