Neubau / Badplanung / 16qm / Alternativen?

4,50 Stern(e) 6 Votes
Zuletzt aktualisiert 10.10.2025
Sie befinden sich auf der Seite 4 der Diskussion zum Thema: Neubau / Badplanung / 16qm / Alternativen?
>> Zum 1. Beitrag <<

Y

ypg

Hier wäre ein Fensterband angebracht, welches die Maße von dem Seitenteil im EG hat, nur gedreht und bündig zur rechten Ansichtsseite
Ein Fensterband ist lang und schmal und hat eine hohe Brüstung.

Dort wird die Spüle vermutlich relativ mittig im Raum in einer Insel liegen.
das Abwasser der Spüle geht direkt aus dem Gebäude, ohne dass es an ein Fallrohr angeschlossen werden muss.

Du müsstest schon erklären, wo das Fallrohr hinkommt, schliesslich geht es durch die Küche! Also dort am besten in eine Ecke... das muss dann im Bad entsprechend eingezeichnet werden.
 
K

koestech

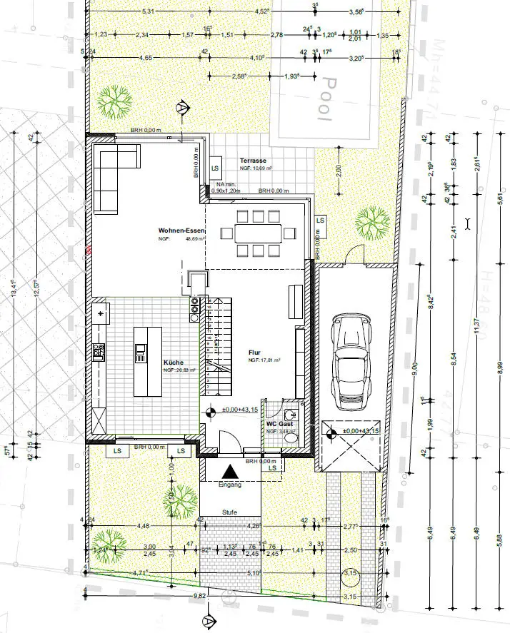
Ich habe mir noch mal den Plan vom EG angeschaut (siehe Anhang).

Ideal ist so wie ich das sehe unten (straßenseitig) rechts, dadurch würde der dort im EG liegende Mauervorspung um die Dicke des Fallrohres verbreitert. Unten links wäre aber nicht viel schlechter, dadurch würde allenfalls der schrank in der Küche den Ausschnitt berücksichtigen müssen.



Grundriss: Erdgeschoss mit Eingang, Garage, Küche, Wohnen-Essen, Flur, Terrasse, Garten, Pool
 
Y

ypg

Ich habe mir noch mal den Plan vom EG angeschaut (siehe Anhang).

Ideal ist so wie ich das sehe unten (straßenseitig) rechts, dadurch würde der dort im EG liegende Mauervorspung um die Dicke des Fallrohres verbreitert. Unten links wäre aber nicht viel schlechter, dadurch würde allenfalls der Schrank in der Küche den Ausschnitt berücksichtigen müssen.


Anhang anzeigen 24614
Das wäre eine gute Lage, ja.
Ich sehe, die Abwasserplanung gibt es bei Euch noch nicht.
Aber zeichne doch mal bitte im Bad die Treppe neu: wie kann denn der erste Beitrag zum EG passen?
Zielführend: kann man noch die Tür zum Bad versetzen?
 
K

koestech

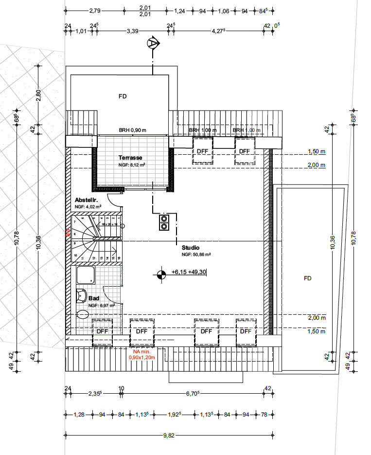
Hi!

Die Treppe in meinen Skizzen ist die Treppe vom 1.OG in das Studio. Die Treppe von EG zu OG ist nicht in meinen Skizzen.

Die Tür lässt sich daher in gewissem Rahmen nach rechts verschieben. Nach links sieht es wegen der Treppe schlecht aus.

(Ich habe zum Verständnis auch den Plan vom Studio angehängt)


Grundriss eines Studios mit Terrasse, Bad, Abstellraum und Treppe.
 
Y

ypg

Dann hat sich das aber mit dem Fallrohr an der einen Küchenseite erledigt.
Ich seh das Rohr dann planlinks unten - wegen des Bades im Studio.
Alles andere wäre sinnfrei.
Toilette also dort ungefähr, wo ich die Dusche eingezeichnet habe.
BUs sagen zwar, es geht alles, aber wenn ihr mal ein verstopfes Rohr habt, dann wäre es ärgerlich, eine Wand im Bad rauszukloppen.
(Die Frage ist, ob der BU irgendwo einen Versorgungsschacht weiter mittig plant, aber das erscheint mir dort unsinnig wegen der Treppe)

Wie viel Personen bedienen das Bad?
Wie viel Waschtischfläche wollt ihr in der Länge?
 
K

koestech

Das mit dem Bad im Studio hatte ich schon verdrängt. Daher hat du natürlich recht, das Fallrohr macht nur planunten links Sinn.

Wir sind zu Dritt, also zwei Erwachsene und unsere 8 jährige Tochter.
 
Zuletzt aktualisiert 10.10.2025
Im Forum Sanitär / Bad / WC gibt es 1365 Themen mit insgesamt 14346 Beiträgen


Ähnliche Themen zu Neubau / Badplanung / 16qm / Alternativen?
Nr.ErgebnisBeiträge
1Grundrissfrage, Treppe, Fenster, Ausrichtung 12
2 2 Vollgeschosse, Durchgang Garage, Hauswirtschaftsraum unter Treppe 25
3Esstisch in einer kleinen Küche - Seite 449
4Stadtvilla mit gerader Treppe, offene moderne Bauweise, 140m² - Seite 218
5Grundriss EG Wohnen / Küche - Trennwand - Seite 219
6Wohin mit der Treppe? Dachausbau Walmdachbungalow - Seite 219
7Treppe im Flur, Grundriss steht eigentlich schon :o( - Seite 320
8Probleme bei der aufteilung Küche, Essen , Wohnen - Seite 216
9Grundrissfrage, Garage, Treppe 33
10Grobe Schnitzer im Grundriss? Küche zu klein? - Seite 639
11REH - Grundrissplanung - Küche zu klein 30
12Schrank unter der Treppe oder kleiner Abstellraum - Seite 211
13Grundriss-Änderung Einfamilienhaus 150 m² aufgrund von Treppe 36
14Treppe um 10cm versetzt, Optionen? - Seite 339
15Grundriss Einfamilienhaus - Problemfall Küche 20
16Türanschlag zum Wohn/-Essbereich und Beleuchtung Küche 13
17Neue Küche wird eine von Ikea - Seite 214
18Planungsbeginn neue Küche - Seite 222
19Unsere neue erste Ikea Küche - Planung und Vorbereitung - Seite 369
20Küche: geschlossen oder offen? Welche Raumaufteilung? - Seite 1086

Oben