Mit der Badplanung noch nicht glücklich

4,40 Stern(e) 5 Votes
Zuletzt aktualisiert 10.10.2025
Sie befinden sich auf der Seite 2 der Diskussion zum Thema: Mit der Badplanung noch nicht glücklich
>> Zum 1. Beitrag <<

A

a782290

Hallo zusammen,

vielen Dank für die Antworten.

Ich möchte kurz ein-zwei Beweggründe für die Planung erklären:
- zwischen Badewanne und WC wollen wir gar keine "Schamwand", weil uns dadurch das Bad kleiner / enge / getrennte vorkommen würde, was wir vermeiden wollen
- zudem finden wir die heutigen Toiletten recht "anschaulich", also nichts was man verstecken müsste
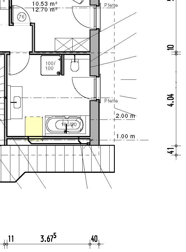
(Im Foto zur Seitenansicht zum Bad gefällt uns nur die Wand nicht, an der das WC angebracht ist. Warum muss die so weit raus? Das müssen wir noch erfragen.)

Das bodentiefe Fenster gefällt uns im Bad eigentlich sehr gut, da es viel Licht bietet und den Raum größer gestaltet. Zudem würden wir beim Duschen einfach was vor das Fenster ziehen (Plissee).

Die Dusche soll zu beiden Seiten einsehbar sein, aber nur von der Fensterseite begehbar. Bei der Seite wenn man den Raum betritt, soll ein festes Glaselement rein. Wir wollen auch hier keine Feste Wand, wie im Grundriss geplant, weil es mit der Glasscheibe das Bad wiederum größer erscheinen lässt. Auch würde mehr Licht den Raum erreichen. (nicht nur vom Dachfenster über der Wanne, sondern auch von der Seite). Was wir aber noch ändern: Wir werden die Dusche inkl. Trennwand wo der Waschtisch dran ist etwas weiter nach rechts (zum Fenster) verschieben, damit man wenn man das Bad betritt nicht gleich gegen die Wand schaut und mehr Platz beim Betreten hat.

Eckwannen mögen wir leider nicht so sehr (nehmen die nicht viel zu viel Wasser auf?).
Wir wissen auch noch nicht genau ob es eine freistehende Wanne mit Abstellmöglichkeit zur Wandseite werden soll (s. 3D-Entwurf), oder doch eine klassische eckige Wanne wie im Grundriss. Freistehende sind natürlich teurer, aber wir dachten uns, dass freistehende Wannen das Bad optisch auflockern und einfach schöner wirken (?).

Was uns eigentlich am meisten bei der Badgestaltung beschränkt, ist die Position der Eingangstür sowie die Dachschräge.

Ich habe mal zwei Entwürfe beigefügt, die wir z.Z. favorisieren. Leider wissen wir noch nicht so recht welcher uns mehr zusagt. Habt ihr dazu vielleicht noch eine Idee / Meinung? Das wäre sehr hilfreich!
(p.s. die gelbe Fläche stellt das Dachfenster dar)

Vielen Dank, Stube

2D-Architektur-Floorplan Bad mit Badewanne, Waschbecken, Toilette und Treppe


2D-Grundriss eines Badezimmers mit Badewanne, Waschbecken und Toilette
 
Y

ypg

In dem Beispielbild ist die Toilette an dieser Wand, damit diese die 2-Meter-Linie erreicht.
Grundsätzlich sollte der vordere Rand der Toilette bei der 2-Meter-Linie liegen, damit man auch davor stehen kann... auch beim Putzen oder so :)
Ich finde Zeichnung 1 ganz ansprechend!
Ich würde nur die Wanne etwas in Szene setzen, durch seitliche und hintere Podeste (zum Ablegen und für Deko)

ich bin auch kein Fan von den Abmauerungen der Toilette (Schamwand), aber bietet sich eventuell bei einer mehrköpfigen Familie an .
 
Zuletzt bearbeitet:
Mycraft

Mycraft

Moderator
Ich würde die Dusche mind. 120x90 planen und nicht 100x100 das wäre mir zu klein...und ja auch ich finde bodentiefe Fenster in Bädern sinnlos...dann lieber einfach ein größeres Fenster....es wird doch eh mind. zur Hälfte zugeklebt oder ähnliches...

Eine Eckwanne ist tatsächlich sehr viel günstiger als eine freistehende...

Vor dem Klo wird sowieso irgendwas stehen denke ich...ich würde es in der Ecke lassen...und wenn man reinkommt dann schaut man eh auf die Wanne und nicht hinten links in die Ecke
 
Mycraft

Mycraft

Moderator
- zudem finden wir die heutigen Toiletten recht "anschaulich", also nichts was man verstecken müsste
(Im Foto zur Seitenansicht zum Bad gefällt uns nur die Wand nicht, an der das WC angebracht ist. Warum muss die so weit raus? Das müssen wir noch erfragen.)

Vielen Dank, Stube
Das hat mit dem vorwandelement zu tun an dem das WC hängt...es muss ja im Boden verankert werden und hat auch eine bestimmte Höhe...da ihr wahrscheinlich keine Extrakosten haben wollt und ein Standard WC samt Standard Element ins Bad kommt muss es soweit raus...

Zudem müssen ja auch Wasser-/ Abwasser auch irgendwo versteckt werden...+Entlüftung der Stränge...
 
A

a782290

Vielen Dank für eure Meinungen!

Zur Zeit bevorzugen wir Variante 1 (ENT_3), weil hier nicht alles "klassisch" an den Wänden steht, sondern es moderner und aufgelockerter wirkt. Hier hätten wir die Wanne auf direkt unter dem Doppelflügelfenster. Um die Wanne soll auch noch ein Podest, um etwas abstellen zu können (das fehlt in der Zeichnung). Eine "richtige" Eckwanne finden wir leider nicht "hübsch". Also entweder eine ovale / runde freistehende Wanne mit Podest hinten, oder eine klassische rechteckige Wanne mit Podest hinten, in der Ecke stehend wie auf den Zeichnungen. Eine freistehende (runde/ovale) Wanne würden wir aber eh nicht schräg in die Ecke stellen, da das Bad Hörfür nicht groß genug ist.

Eigentlich ist es nur eine Designentscheidung / Kostenentscheidung welche Art von Wanne rein soll. Obwohl mich die Vorstellung das Bad zu betreten und auf eine Runde statt auf eine Eckige Wanne zu schauen schon etwas mehr reizt.

Die Dusche größer zu dimensionieren ist ein guter Einwand. Ich denke mal das müssen wir noch davon abhängig machen, ob es eine geflieste Duschtasse oder eine eingesetzte mit minimaler Randhöhe sein soll bzw. eine bodengleiche. Dort gehen bei uns auch gerade die Meinungen auseinander. Was ist hygienischer? (Fliesen bringen Fugen und solche beherbergen Unreinheiten(?). Zudem ist das wohl schwieriger zu Säubern?
 
Mycraft

Mycraft

Moderator
Naja ich habe eine geflieste Dusche, klar ist die Reinigung etwas aufwendiger...bei ner Duschtasse wischt man ja praktisch nur drüber...also ist jedes anderes System schwieriger zu reinigen als eine Weisse Acryl- bzw. Stahltasse...

Dafür gewinnst du einiges an Optik, die Dusche wird durch die Fugen automatisch rutschfest, die Wärme einer eventuell vorhanden Fußbodenheizung darunter wird besser übertragen...sowohl angenehmer beim Duschen wie auch Trocknung hinterher erfolgt sehr viel schneller.
 
Zuletzt aktualisiert 10.10.2025
Im Forum Sanitär / Bad / WC gibt es 1365 Themen mit insgesamt 14346 Beiträgen


Ähnliche Themen zu Mit der Badplanung noch nicht glücklich
Nr.ErgebnisBeiträge
1Grundriss 200qm mit integriertem Wintergarten und Galerie 32
2Ideen zum Grundriss und evtl. noch Tipps? 45
3Grundriss Neubau - Bitte um Feedback 36
4Grundriss Einfamilienhaus Architektenplanung 32
5Grundriss - Anregungen & Kritik erwünscht! 26
6Unser Grundriss steht zur Diskussion - Seite 439
7größere Dusche im Grundriss unterbringen - Welche Größe wählen? 38
8Grundriss: Doppelhaushälfte 8x12m Meinungen und kreative Ideen erwünscht :-) - Seite 4123
9Grundriss - Planung Einfamilienhaus 2 Vollgeschosse - Stadtvilla - Seite 2113
10Grundriss-Planung Einfamilienhaus 230-235 m² auf zwei Vollgeschossen - Seite 283
11Bungalow Grundriss 3 Personen, 130qm, bitte Meinungen… - Seite 26167
12Meinungen zu unserem Grundriss erwünscht 166
13Mein Grundriss steht (fast), jetzt bräuchte ich eure Hilfe :-) 26
14Grundriss-Neuentwurf für Dachgeschoss 51
15Grundriss-Optimierung | Doppelhaushälfte am Hang mit 192m² Wohnfläche - Seite 1487
16Grundriss EG - Räume gross genug? 10
17Grundriss Einfamilienhaus 150 m² 448m² 1,5 geschossig - Seite 555
18Grundriss Doppelhaushälfte, 2,5 Geschosse + Nutzkeller - Seite 1071
19Elektrische Rollläden für schräges Dachfenster - Seite 315
20Grundriss Einfamilienhaus mit 240m² mit Einliegerwohnung 75m² und Garage 39

Oben