a782290
2014-03-30 00:41:04
- #1
大家好,
非常感谢大家的回复。
我想简要说明一下规划的一个两个理由:
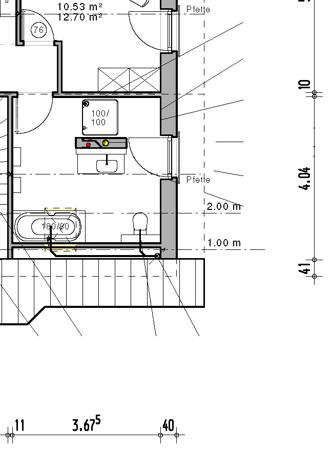
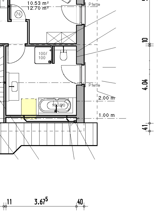
- 我们不想在浴缸和马桶之间设置“隐私隔断”,因为那样会让浴室显得更小、更狭窄、更分割,我们想避免这种情况
- 此外,我们觉得现在的马桶比较“显眼”,也就是说不用特别遮挡
(从照片的侧面看浴室,我们只是不喜欢马桶安装的那面墙。为什么那面墙要突出那么多?这个我们还需要问清楚。)
我们其实很喜欢浴室的落地窗,因为它提供了很多光线,使空间显得更大。此外,淋浴时可以拉上窗帘(百褶窗)。
淋浴区两侧都可以看见,但只能从窗户那边进入。进入浴室那侧会装一个固定的玻璃元素。我们也不想像平面图里那样做固定墙,因为有玻璃板反而让浴室看起来更大,光线也能更多进入房间。(不仅是来自浴缸上方的天窗,也包括侧边的光线。)我们还会做调整:会把包括洗手台隔断的淋浴区稍微向右(靠窗户方向)移动,这样进浴室时不会直对墙壁,进门时空间更宽敞。
我们不太喜欢角形浴缸(会不会用水太多?)
我们也不确定是做一个带墙边放置空间的独立浴缸(见3D设计图),还是做一个传统的角形浴缸,像平面图里那样。独立浴缸当然更贵,但我们觉得它们可以让浴室视觉上更轻松,也更美观(?)。
其实,浴室设计上限制我们最多的,是入口门的位置和屋顶斜面。
[B]我附上了两个目前我们比较喜欢的设计方案。遗憾的是我们还不太确定更喜欢哪个。[B]你们有没有什么想法或意见?那将非常有帮助!
(p.s. 黄色区域代表天窗)
非常感谢,Stube


非常感谢大家的回复。
我想简要说明一下规划的一个两个理由:
- 我们不想在浴缸和马桶之间设置“隐私隔断”,因为那样会让浴室显得更小、更狭窄、更分割,我们想避免这种情况
- 此外,我们觉得现在的马桶比较“显眼”,也就是说不用特别遮挡
(从照片的侧面看浴室,我们只是不喜欢马桶安装的那面墙。为什么那面墙要突出那么多?这个我们还需要问清楚。)
我们其实很喜欢浴室的落地窗,因为它提供了很多光线,使空间显得更大。此外,淋浴时可以拉上窗帘(百褶窗)。
淋浴区两侧都可以看见,但只能从窗户那边进入。进入浴室那侧会装一个固定的玻璃元素。我们也不想像平面图里那样做固定墙,因为有玻璃板反而让浴室看起来更大,光线也能更多进入房间。(不仅是来自浴缸上方的天窗,也包括侧边的光线。)我们还会做调整:会把包括洗手台隔断的淋浴区稍微向右(靠窗户方向)移动,这样进浴室时不会直对墙壁,进门时空间更宽敞。
我们不太喜欢角形浴缸(会不会用水太多?)
我们也不确定是做一个带墙边放置空间的独立浴缸(见3D设计图),还是做一个传统的角形浴缸,像平面图里那样。独立浴缸当然更贵,但我们觉得它们可以让浴室视觉上更轻松,也更美观(?)。
其实,浴室设计上限制我们最多的,是入口门的位置和屋顶斜面。
[B]我附上了两个目前我们比较喜欢的设计方案。遗憾的是我们还不太确定更喜欢哪个。[B]你们有没有什么想法或意见?那将非常有帮助!
(p.s. 黄色区域代表天窗)
非常感谢,Stube