Hausbau - Ratgeber
Bauherrenhilfe
- Bauherrenhilfe vor Vertragsabschluss
-- Warum einen unabhängigen Baubetreuer?
-- Vertragsgrundlagen
-- Bausumme
-- Zahlungsplan zur Kostenkontrolle
-- Pflichten des Bauherren vor Vertragsabschluss
-- Unterlagen beim Hausbau vor Vertragsabschluss
- Bauherrenhilfe nach Vertragsabschluss
-- Bauantrag bei Behörden
-- Bau-Genehmigungsverfahren bei Baubehörden
-- Bauspezifische Versicherungen
-- Bauzeitenplan
-- Baubeginn - die Letzten Pflichten der Bauherrschaft
- Bauherrenhilfe während der Bauzeit
- Gewährleistungsansprüche
- Bauabnahme
Baufinanzierung
- Baufinanzierung - Allgemeine Fragen
- Kreditarten
- Kredit-Konditionen
- Bausparen
- Staatliche Förderungen
- Verkehrswert
- Haushaltsrechnung und Bonität
Hausbau Planung
- Haustypen
- Hausbau Vorbereitungsarbeiten
- Das Baugrundstück
- Baugrund beim Hausbau
- Baurecht
- Gebäudeschutz
- Erdarbeiten und Wasserhaltung
- Stützmauern
- Einfriedung
- Untergeschoss
- Kanalisation
- Tragende Elemente
- Nichttragende Innenwände
- Fundation / Fundament
- Deckenkonstruktionen
- Dächer
- Kaminanlagen
- Treppen Rampen Leitern
- Dachbeläge und Spengler
- Fenster
- Sonnen und Wetterschutz
- Aussenputze
- Einbauten, Küchen, Türen
- Bodenbeläge und Unterlagsböden
- Parkett
- Gips, Wand, Decke
Haustechnik und Energie
- Heiztechnik
- Lüftung und Klimatechnik
- Sanitärtechnik
- Elektrotechnik
- Erneuerbare Energie
Whirlpools / Jacuzzi
Hausbau Magazin
- Baufinanzierung trotz Krise?
- Das Blockhaus
- Moderne Dämmstoffe im Vergleich
- Erker Vor- und Nachteile
- Glasflächen beim Hausbau
- Günstig ein Haus Bauen
- Mediterraner Hausbaustil
- Mehrgenerationenhaus
- Moderne Architektur
- Gartengestaltung leicht gemacht
- Traditioneller Ziegelbau
- Villa als höchster Traum
- Im Eigenheim Ruhestand geniessen
- Altbau sanieren
- Kauf einer Holzgarage
- Immobilienmakler
- Arbeitshandschuhe für den Winter
- Zuhause verschönern
- Outdoor-Plissees
- Schlafzimmer planen
- Terrassenüberdachung
- Wohngebäudeversicherung
- Zaunarten und Eigenschaften
- Hauseingang gestalten
- Der perfekte Grundriss
- Sparsamer heizen im Altbau
- Einfamilienhaus smart finanzieren
- Planung einer PV-Anlage
- Neues Haus
- Immobilienfinanzierung
- Installation einer Photovoltaikanlage
- Asbest erkennen und entfernen
- Gartenpflege im Frühling – worauf achten
- Sauna im Fokus - Wellness zuhause
- Erfolgreich vermieten
- Die perfekte Winterbekleidung
- Das Niedrigenergiehaus
- Der April und seine Stürme
- Architektonische Vielfalt
- Ökologisch und nachhaltig bauen
- Das perfekte Schlafzimmer
- Nachhaltige Energieversorgung
- Zukunftsorientiert bauen
- Nachhaltigkeit beim Hausbau
- Tiny Houses
- Wärmepumpen als nachhaltige Heizvariante
- Maßgeschneiderten Kleiderschrank
- Der richtige Baukredit
- Ratgeber für erfolgreichen Hausbau
- Haus als Altersvorsorge
Do-it-yourself Anleitungen
- Verlegeanleitung für Bodenbeläge und Parkett
- Bodenbeläge und Parkett reinigen und pflegen
- Malerarbeiten am Haus
- Garten Tipps
- Umzug und Reinigung

ᐅ Meinungen zum Grundriss Stadtvilla

Erstellt am: 06.12.12 11:49
N
Nilo
N
Nilo
06.12.12 11:49
Hallo zusammen,

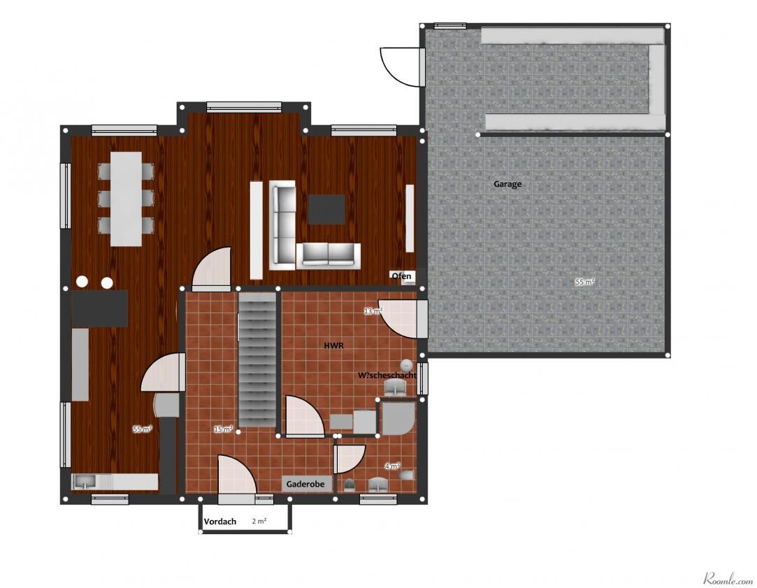
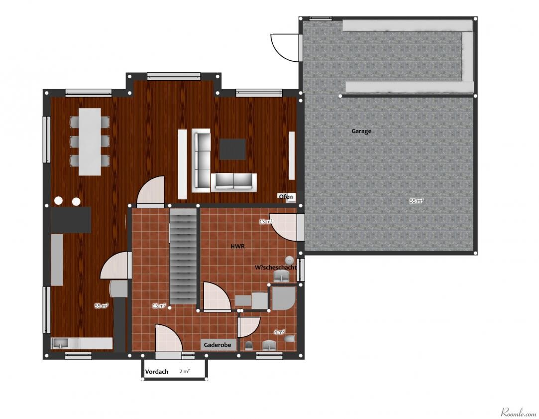
nachdem wir nun endlich ein passendes Grundstück gefunden haben (640qm, ca. 22x29m, eben), wollte ich gerne eure Meinungen zu unserem Grundriss hören.

Eckdaten:
Stadtvilla, 2 Vollgeschosse ohne Keller (daher die große Garage)
Terrasse hat Westausrichtung

Den Grundriss haben wir selber erstellt und nach u. nach verbessert.

Unsere Gedanken dabei ...
... im EG:
* große Garage mit Stauraum inkl. direktem Zugang von der Terrasse
* Garage als Grenzbebauung im Norden
* direkter Zugang Garage/Hauswirtschaftsraum
* großer Hauswirtschaftsraum wg. fehlendem Keller
* Duschbad im EG statt 2 Bäder im OG (1 Bad weniger zu putzen; wir planen das Haus für 4 Personen)
* offener Wohn-/Essbereich mit Süd- u. Westausrichtung

... im OG:
* Luftraum im Flur für einen hellen Eingangsbereich im EG
* kleines Büro wäre schön aber ist nur Nico to have
* Elternschlafzimmer darf ruhig etwas kleiner rein, hier soll wirklich nur das Bett u. eine Kommode rein. Dafür separate Ankleide (haben wir derzeit auch und wissen wir zu schätzen, da wir zu unterschiedlichen Zeiten aufstehen)
* Bad mit Ostausrichtung u. über Bad/Hauswirtschaftsraum im EG wg. Abflussrohren u. Wäscheabwurf


Und jetzt bin ich auf eure Meinungen gespannt. Was haben wir nicht bedacht? Wo seht ihr Verbesserungsbedarf?

Wohnungs-Grundriss: Offene Küche/Essbereich links, Wohnzimmer, Flur, HWR, Garderobe, Garage rechts.


Grundriss: zentrales Treppenhaus, linke Zimmer, rechte Bad- und Waschküche, Balkontür unten.
M
Musketier
06.12.12 18:06
Im großen und ganzen gefällt mir der Grundriss richtig gut. Ich hab mich auch ne ganze Zeit mit roomle rumgeschlagen und eine Stadtvilla entworfen.

Ein paar Punkte hab ich trotzdem.

OG
Der Großteil der Türen ist vermutlich breiter als 80cm. Falls das behindertengerecht sein soll, dann passen die Türen vom Ankleidezimmer und den Bädern nicht dazu.
Die halb-schräge Wand vom Schlafzimmer kannst du so nicht lassen.
Im OG hast du viel zu viel Verkehrsfläche + den Luftraum. Meines Erachtens Verschwendung pur.
Ist der Luftraum Bedingung? Ansonsten die Wand vom Ankleidezimmer bis zur Treppe raus ziehen. Dann hast du das Problem mit der Schlafzimmerwand gelöst und ihr habt ein großes Ankleide und Schlafzimmer. Den Haupteingang zum Bad kannst du an der Stelle des jetzigen Luftraums machen. Falls dann zu viel Platz im Bad und Ankleide hast, kannst du auch noch eine kleine Abstellkammer für Putzzeug etc. einplanen oder bringst die Waschmaschine und Trockner nach oben.
Die Türen sollten wenn möglich besser 60 cm von der Wand entfernt eingeplant werden, dann hast du die Möglichkeit den Raum dahinter für Schränke zu nutzen.
Falls die Dusche bodentief ist, kommt der Ablauf unten auf dem Flur raus.

Schade dass unser Budget begrenzter ist.
N
Nilo
07.12.12 10:25
Hallo Musketier,

danke für deinen Input. Es ist wie immer, noch soviel Gehirnschmalz ersetzt nicht darüber zu sprechen

Zu deinen Ansätzen:

Türen: Danke für den Hinweis, waren automatisch so vorgegeben, habe ich auf 80cm angepasst
OG: Guter Ansatz, habe ich mal so angepasst. Zwar haben wir jetzt im vorderen Bereich des Flurs noch viel verlorene Fläche, wo man eine Abstellkammer unterbringen könnte, aber ich denke ohne Fenster ist es im Flur oben zu dunkel.

Habe auch den Grundriss im Ganzen noch mal angepasst, da er etwas zu groß wurde. Jetzt sind wir wieder bei den geplanten ca. 160qm.

Mit dem "neuen" Grundriss könnten wir sogar meinen Wunsch eines Kamins als Raumtrenner zwischen Ess-/Wohnzimmer einplanen.

Denke mit dieser Grundidee können wir zum Architekten gehen und unsere Vorstellungen zeigen.

Grundriss eines Hauses: Wohnzimmer, Küche mit Essbereich, HWR, Garderobe, WC, Vordach, Garage.


Grundriss eines Hauses mit zentraler Treppe, mehreren Zimmern, Betten und Möbeln.
M
Musketier
07.12.12 11:18
Noch 3 Sachen zum neuen Grundriss.

Ich bin kein Statiker, aber sinnvoll wäre es vermutlich die Küchenwand und die Kinderzimmer-Wände übereinander zu lassen, wie im 1. Entwurf.
Das wird vermutlich wieder etwas zu Lasten der Kinderzimmers gehen, aber du bekommst zusätzlich die Ecke im AZ raus.
Schornstein könnte man vermutlich auch im Hauswirtschaftsraum und Ankleidezimmer unterbringen. Damit muß er nicht so hoch werden und du sparst dir eine Leiter am Schornstein. (bei uns wären das ca. 700€ zusätzlicher Kosten gewesen). Wenn du mit dem Kamin einen richtigen Raumteiler machen willst, dann kannst du das Rohr bestimmt auch verdeckt im Teiler dorthin ziehen. Außerdem kommt das dem Platz im AZ zugute, wo du fast keine Stellfläche für paar Regale hast.
Die Gegenstände (Schränke) sind generell zu klein eingezeichnet. Das verfälscht zu sehr und sieht aus, als hättest du jede Menge Platz.

Was hast du für Budget zur Verfügung?
C
Curly
07.12.12 11:30
Hallo,

die Ecke im Schlafzimmer am Erker würde ich eher zum Arbeitszimmer machen. So kannst du den Platz vielleicht für ein Einbauregal nutzen und Bücher reinstellen. Im Schlafzimmer nützt dir so eine kleine Ecke doch nichts.
Im Bad finde ich den Platz vor den Waschbecken zu beengt. Da würde ich eine T-förmige Mauer reinmachen (also so ein liegendes T, zur rechten Wand hin). An die kurze T-Seite kannst du dann die Waschbecken montieren, hintendran liegen versteckt die Toilette und die Dusche. Sonst stehst du in dem geräumigen Bad ganz rechts, direkt an der Mauer vor dem Spiegel und in der Mitte ist der Platz ungenutzt.

Viele Grüße
Sabine
N
Nilo
07.12.12 11:35
Danke für deine Hinweise. Mit den Wänden Kinderzimmer/Küche hast du auf jeden Fall Recht.
Schornstein ist auch eine gute Idee, das werde ich mal als Frage notieren.

Budget:
Wir planen als Kfw70 Massivhaus mit 160qm alles in allem mit 350.000,- EUR + Grundstück.
Das deckt sich auch sowohl mit der Kostenaufstellung unseres Architekten als auch mit zwei Angeboten von Bauträgern.
Wir wollen zwar durch die ein o andere Eigenleistung noch ein bisschen was einsparen aber damit planen wir nicht.
ankleidezimmergrundrissgaragehauswirtschaftsraumtürenschlafzimmerluftraumflurschornsteingrundstück