ᐅ Meinungen zu unserem Grundriss erwünscht
Erstellt am: 26.02.14 21:15
Hallo Experten,
nun haben wir tatsächlich ein Grundstück gefunden und die Planung ist in den letzten Zügen.
Was sagt ihr zu unserem Grundriss? Verbesserungsvorschläge?
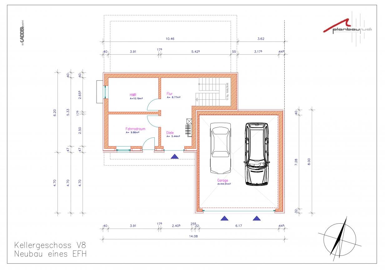
1. Es ist ein Hanggrundstück, deshalb auch die Teilunterkellerung. Einen Keller wollten wir eigentlich nie, aber hier bietet sich das einfach an, weil der Herr des Haus auch unbedingt eine Doppelgarage haben möchte.
2. Es ist ein Nordgrundstück nach hinten. Das Grundstück ist 17m breit (Baufenster 11m) und 42m (Baufenster vorne 20m) lang. Die Straße ist komplett im Süden, deshalb ist eine komplette Ausrichtung in den Süden nicht möglich. Das Baufenster lässt es nicht zu. Wir finden es aber nicht schlimm und hoffen durch die vielen Fenster auch so genügend Licht ins Haus zu bekommen.
Was sagt ihr?





nun haben wir tatsächlich ein Grundstück gefunden und die Planung ist in den letzten Zügen.
Was sagt ihr zu unserem Grundriss? Verbesserungsvorschläge?
1. Es ist ein Hanggrundstück, deshalb auch die Teilunterkellerung. Einen Keller wollten wir eigentlich nie, aber hier bietet sich das einfach an, weil der Herr des Haus auch unbedingt eine Doppelgarage haben möchte.
2. Es ist ein Nordgrundstück nach hinten. Das Grundstück ist 17m breit (Baufenster 11m) und 42m (Baufenster vorne 20m) lang. Die Straße ist komplett im Süden, deshalb ist eine komplette Ausrichtung in den Süden nicht möglich. Das Baufenster lässt es nicht zu. Wir finden es aber nicht schlimm und hoffen durch die vielen Fenster auch so genügend Licht ins Haus zu bekommen.
Was sagt ihr?
B
Bauexperte26.02.14 21:27Guten Abend,
Grüße, Bauexperte
Kisska86 schrieb:Du hast - imho - an anderer Stelle hier im Forum geschrieben (weiß leider nicht mehr wo), daß Dein Teilkeller unschlagbar günstig sein soll. Wie kommst Du darauf, bzw. wer baut Dir das zu dem vermeintlich günstigen Preis in NRW und zum Festpreis? Wenn ich nicht ganz daneben liege, kommt Dein Planer aus Bayern?
1. Es ist ein Hanggrundstück, deshalb auch die Teilunterkellerung. Einen Keller wollten wir eigentlich nie, aber hier bietet sich das einfach an, weil der Herr des Haus auch unbedingt eine Doppelgarage haben möchte.
Grüße, Bauexperte
W
wadenkneifer26.02.14 21:48Der andere "Faden" ist hier: https://www.hausbau-forum.de/threads/erfahrungen-zum-eingang-im-ug.9559/
Zum Grundriss nur 2 kleine Anmerkungen (zum grundsätzlichen Konzept hab ich mich ja im anderen Thread schon geäußert):
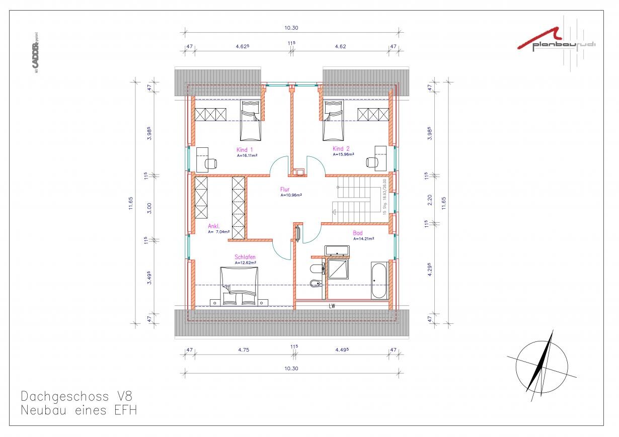
- Das WC im Bad oben ist ne dunkle Ecke. Licht muss immer an.
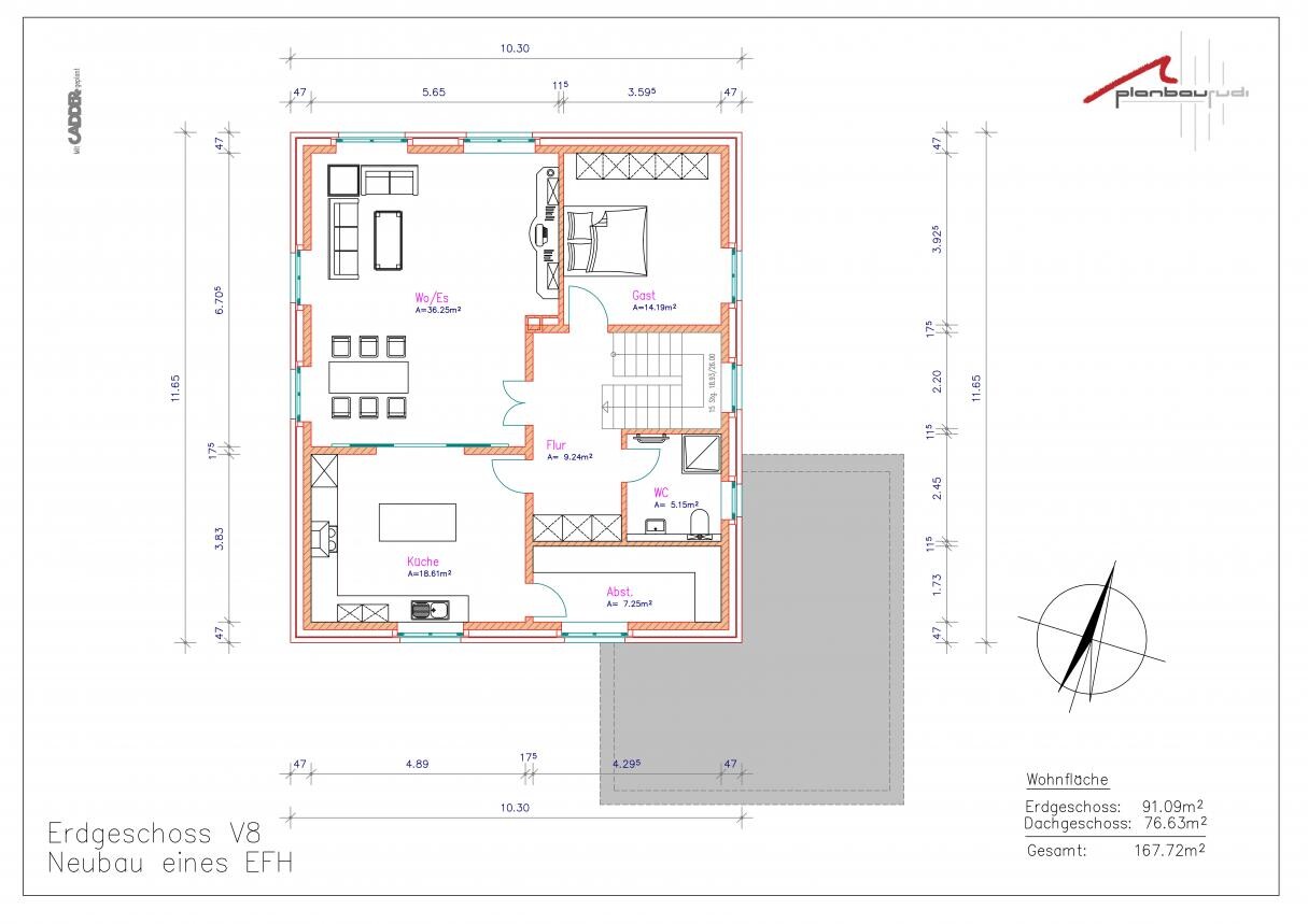
- Die Fenster im EG und OG sind asymmetrisch. Schaut euch die Ansichten genau an, ob Euch das so zusagt.
Viele Grüße
Zum Grundriss nur 2 kleine Anmerkungen (zum grundsätzlichen Konzept hab ich mich ja im anderen Thread schon geäußert):
- Das WC im Bad oben ist ne dunkle Ecke. Licht muss immer an.
- Die Fenster im EG und OG sind asymmetrisch. Schaut euch die Ansichten genau an, ob Euch das so zusagt.
Viele Grüße
Danke ihr Lieben!
@ypg: Der Planer kommt aus NRW und wir verteilen alle Gewerke selbst. Es ist kein Bauträger oder GU im eigentlichen Sinne vorhanden. Den Rohbau stellt uns ein Bekannter incl. Keller ud das war seine Aussage. Die Erdarbeiten machen wohl sehr viel aus an den Kosten und diese sind bei uns ja nicht viel geringer als bei einem Normalbau.
@Wadenkäfer: Danke für den Link!
@Bad oben: Meint ihr di
@ypg: Der Planer kommt aus NRW und wir verteilen alle Gewerke selbst. Es ist kein Bauträger oder GU im eigentlichen Sinne vorhanden. Den Rohbau stellt uns ein Bekannter incl. Keller ud das war seine Aussage. Die Erdarbeiten machen wohl sehr viel aus an den Kosten und diese sind bei uns ja nicht viel geringer als bei einem Normalbau.
@Wadenkäfer: Danke für den Link!
@Bad oben: Meint ihr di
Sorry auf den falschen Knopf gekommen.
@Bad oben: Meint ihr da kann man allgemein noch etwas verbessern? Das das WC zu dunkel ist, haben wir uns schon gedacht. Ein Dachfenster als Lösung vielleicht? Wollten vielleicht zwei kleine Dachfenster, eins über Toilette und Bidet und das andere über der Wanne? Meint das ist eine gute Lösung? Vielleicht komplett anders?
@Fenster: Sind noch komplett in Überarbeitung, deshalb hab ich auch noch keine Ansichten gepostet. Was haltet ihr hier von Eckfenstern in Küche und Hauswirtschaftsraum? Und wie praktisch sind diese Fenster in Schlauchform? Lichtbänder heißen die glaube ich?
@Bad oben: Meint ihr da kann man allgemein noch etwas verbessern? Das das WC zu dunkel ist, haben wir uns schon gedacht. Ein Dachfenster als Lösung vielleicht? Wollten vielleicht zwei kleine Dachfenster, eins über Toilette und Bidet und das andere über der Wanne? Meint das ist eine gute Lösung? Vielleicht komplett anders?
@Fenster: Sind noch komplett in Überarbeitung, deshalb hab ich auch noch keine Ansichten gepostet. Was haltet ihr hier von Eckfenstern in Küche und Hauswirtschaftsraum? Und wie praktisch sind diese Fenster in Schlauchform? Lichtbänder heißen die glaube ich?
Ähnliche Themen