Hallo,
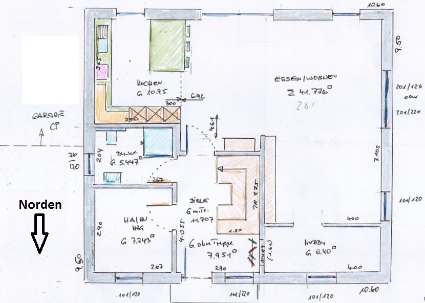
ich möchte hier gerne unseren geplanten Grundriss diskutieren. Im Anhang sind EG als auch OG zu sehen Das Haus ist für 4 Personen ausgelegt (+Hund) hat knapp über 150 qm ohne Keller und ein Sattelach mit Drempel zwischen 1 und 1,25 (je nachdem, wie viel genau am Ende erlaubt ist). Der Hauptgarten geht Richtung Süden, Richtung Westen ist etwa 4 Meter Platz. Auf der Ostseite ist eine 9 Meter Garage geplant (dort ist unser Nachbar). Bedarf für ein extra Gästezimmer oder Büro haben wir nicht. Sollte wirklich später ein weiteres Zimmer benötigt werden, kann im EG ein Bereich abgetrennt werden.
EG:
Was mir gefällt:
- Halbwegs großes Duschbad (Dusche EG notwendig, hauptsächlich wegen Hund). Sobald das zweite Kinde da ist, ist eine zweites komfortables Duschbad sicherlich eh praktisch.
- Küche und Essbereich (dort halten wir uns meist auf) Richtung Hauptgarten ausgerichtet (Süden)
- Kleiner Bereich abgetrennt im Wohnbereich für eine Näheecke mit direktem Zugang zum Wohnbereich (wir möchten uns Abends gerne im gleichen Bereich aufhalten, nicht in getrennten Zimmern)
- Viel Licht
Wo ich überlege:
- Treppe mit 1,50*2,75 ausreichend groß?
- Näheecke eventuell zu klein? (1,60 x 4)
- Fläche für Garderobe ausreichend?
OG:
Was mir gefällt:
- Kinderzimmer mit Zwerchgiebel beide nach Süden ausgerichtet und gleich groß
- Schlafzimmer nach Norden (ich hasse Hitze beim Schlafen)
- Extra Raum für Waschmaschine und Trockner im OG
Wo ich überlege:
- Bad zu klein? Wie könnte man das vernünftig möblieren? Der Bereich Hauswirtschaftsraum + Bad kann natürlich noch komplett verändert werden. Evt. lieber den Hauswirtschaftsraum ganz nach Norden, so dass man Waschmaschine + Trockner in die Schräge setzen kann? Zugang zum Hauswirtschaftsraum könnte ja auch übers das Bad realisiert werden und nicht vom Flur. Was habt ihr für Ideen?
- Die linke untere Ecke gefällt mir gefühlt als Ganzes noch nicht. Abstellraum könnte auch wegfallen, lieber größerer offenerer Flur mit einem Veluxfenster und evt. einer Kommode an der Wand + Sessel?
Ich freue mich auf Anregungen, Kritik und Diskussionen. Es sind natürlich noch keine finalen Pläne, aber die Bemaßung stimmt und als Diskussionsgrundlage sicherlich gut brauchbar.
Gruß
Tego


ich möchte hier gerne unseren geplanten Grundriss diskutieren. Im Anhang sind EG als auch OG zu sehen Das Haus ist für 4 Personen ausgelegt (+Hund) hat knapp über 150 qm ohne Keller und ein Sattelach mit Drempel zwischen 1 und 1,25 (je nachdem, wie viel genau am Ende erlaubt ist). Der Hauptgarten geht Richtung Süden, Richtung Westen ist etwa 4 Meter Platz. Auf der Ostseite ist eine 9 Meter Garage geplant (dort ist unser Nachbar). Bedarf für ein extra Gästezimmer oder Büro haben wir nicht. Sollte wirklich später ein weiteres Zimmer benötigt werden, kann im EG ein Bereich abgetrennt werden.
EG:
Was mir gefällt:
- Halbwegs großes Duschbad (Dusche EG notwendig, hauptsächlich wegen Hund). Sobald das zweite Kinde da ist, ist eine zweites komfortables Duschbad sicherlich eh praktisch.
- Küche und Essbereich (dort halten wir uns meist auf) Richtung Hauptgarten ausgerichtet (Süden)
- Kleiner Bereich abgetrennt im Wohnbereich für eine Näheecke mit direktem Zugang zum Wohnbereich (wir möchten uns Abends gerne im gleichen Bereich aufhalten, nicht in getrennten Zimmern)
- Viel Licht
Wo ich überlege:
- Treppe mit 1,50*2,75 ausreichend groß?
- Näheecke eventuell zu klein? (1,60 x 4)
- Fläche für Garderobe ausreichend?
OG:
Was mir gefällt:
- Kinderzimmer mit Zwerchgiebel beide nach Süden ausgerichtet und gleich groß
- Schlafzimmer nach Norden (ich hasse Hitze beim Schlafen)
- Extra Raum für Waschmaschine und Trockner im OG
Wo ich überlege:
- Bad zu klein? Wie könnte man das vernünftig möblieren? Der Bereich Hauswirtschaftsraum + Bad kann natürlich noch komplett verändert werden. Evt. lieber den Hauswirtschaftsraum ganz nach Norden, so dass man Waschmaschine + Trockner in die Schräge setzen kann? Zugang zum Hauswirtschaftsraum könnte ja auch übers das Bad realisiert werden und nicht vom Flur. Was habt ihr für Ideen?
- Die linke untere Ecke gefällt mir gefühlt als Ganzes noch nicht. Abstellraum könnte auch wegfallen, lieber größerer offenerer Flur mit einem Veluxfenster und evt. einer Kommode an der Wand + Sessel?
Ich freue mich auf Anregungen, Kritik und Diskussionen. Es sind natürlich noch keine finalen Pläne, aber die Bemaßung stimmt und als Diskussionsgrundlage sicherlich gut brauchbar.
Gruß
Tego
Mir gefällt der Grundriss.
So wie ich es sehe, soll es vom Flur zum Nähzimmer einen vorbereiteten Sturz geben, der Bereich aber aktuell Garderobe sein. Kann ich sehr gut nachvollziehen.
@ypg .. warum Wanne und Dusche bündig ziehen? Die Wanne paßt doch so gut.
Mir gefällt der Waschmaschinenraum im OG und auch die sonstige Raumaufteilung.
So wie ich es sehe, soll es vom Flur zum Nähzimmer einen vorbereiteten Sturz geben, der Bereich aber aktuell Garderobe sein. Kann ich sehr gut nachvollziehen.
@ypg .. warum Wanne und Dusche bündig ziehen? Die Wanne paßt doch so gut.
Mir gefällt der Waschmaschinenraum im OG und auch die sonstige Raumaufteilung.
Erstmal Danke für die Antworten.
@ypg: Wir sind noch am überlegen, ob offene oder geschlossene Treppe. Derzeit ist eine Betontreppe mit Holzstufen geplant. Wir überlegen aber eventuell doch lieber eine offene Treppe zu nehmen, dann könnten wir darunter noch eine zweite Garderobe realisieren bzw. ist es dann sicherlich gefühlt alles offener. Deine Meinung dazu?
Eine Tür zum Hobbyraum, gute Frage. Ich habe kurz über eine Schiebetür nachgedacht, weiß aber nicht, ob es notwendig ist. Was ist deine Meinung dazu?
@BeHaElJa: Aber natürlich doch. Bereits gekauft, 500 qm groß, mit einem Baufeld von 10,60 in der Breite und 14 Meter in der Tiefe (+3m für Terrasse). First muss entlang der Breite verlaufen, sprich Eingang von Traufseite. Im Norden des Hauses verläuft die kleine Stichstraße (nur für uns und Nachbarn). Der Plan ist von einem Planer eines GU, der allerdings auch Architektenunterstützung in Form seiner Frau hat, entsprechend wurden alle Punkte des Bebauungsplan beachtet.
@ypg: Wir sind noch am überlegen, ob offene oder geschlossene Treppe. Derzeit ist eine Betontreppe mit Holzstufen geplant. Wir überlegen aber eventuell doch lieber eine offene Treppe zu nehmen, dann könnten wir darunter noch eine zweite Garderobe realisieren bzw. ist es dann sicherlich gefühlt alles offener. Deine Meinung dazu?
Eine Tür zum Hobbyraum, gute Frage. Ich habe kurz über eine Schiebetür nachgedacht, weiß aber nicht, ob es notwendig ist. Was ist deine Meinung dazu?
@BeHaElJa: Aber natürlich doch. Bereits gekauft, 500 qm groß, mit einem Baufeld von 10,60 in der Breite und 14 Meter in der Tiefe (+3m für Terrasse). First muss entlang der Breite verlaufen, sprich Eingang von Traufseite. Im Norden des Hauses verläuft die kleine Stichstraße (nur für uns und Nachbarn). Der Plan ist von einem Planer eines GU, der allerdings auch Architektenunterstützung in Form seiner Frau hat, entsprechend wurden alle Punkte des Bebauungsplan beachtet.
kbt09 schrieb:
Mir gefällt der Grundriss.
So wie ich es sehe, soll es vom Flur zum Nähzimmer einen vorbereiteten Sturz geben, der Bereich aber aktuell Garderobe sein. Kann ich sehr gut nachvollziehen.Auch dir danke für die Antwort. Genau, ein Sturz kommt rein, aber noch keine Tür. Benötigt man später wirklich doch mal ein weiters Zimmer, kann man im Wohnbereich eine weitere Wand einziehen und dort eine Tür realisieren. Vielleicht sogar im Alter Wohnen auf einer Ebene.
Ähnliche Themen