@Melanie L. jetzt mal so, wie ich es machen würde

.
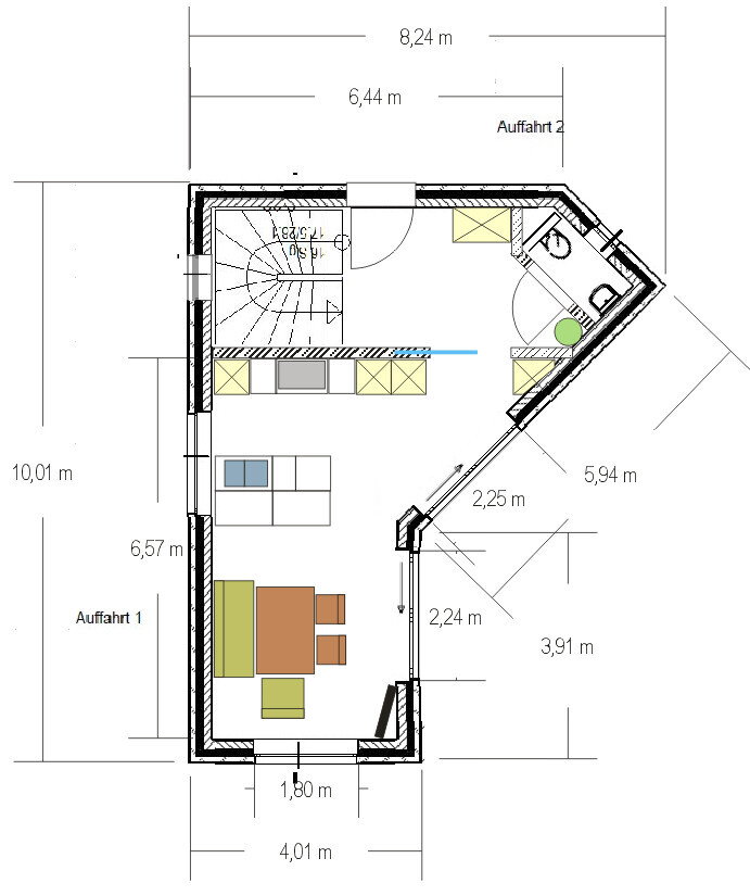
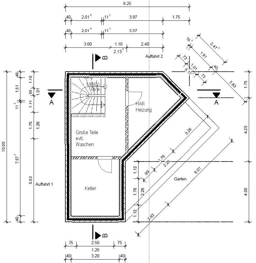
Untergeschoss ... HAR Richtung Straße .. und man sieht schon, die Treppe ist gewandert.
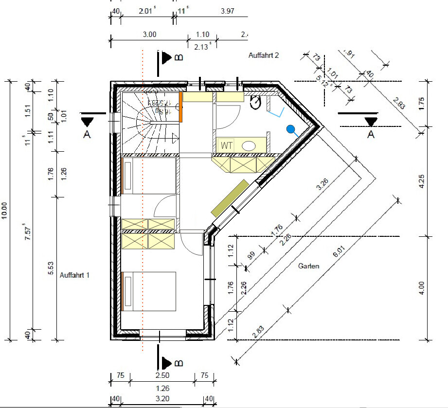
Im EG einen Eingangsbereich mit Garderobenschrank, WC über dem HAR, kleine Dekonische und Trennwand zum Wohnraum mit Glasschiebetür
Küche mit der Kochfeldzeile in der Hochschrankwand und eine schöne Vorbereitungsinsel. Hochschränke von links .. erhöhte Geschirrspüler, dann Kochfeldplatz, dann Backofen-Hochschrank und zum Abschluss Kühlschrank. In der Ecke rechts evtl. Sonderanpassung für Deko oder selten benutztes.
Dann einen Sitzplatz mit einem modernem Küchensofa und Küchensessel, Tisch ca. 100x150 cm, TV planunten rechts in der Ecke.
Die Terrassenzugänge würde ich breiter als 176 cm machen, sonst wird auch Schiebetür nicht gut gehen.
Und dann das OG:
Bad wieder über dem HAR .. Dusche in der Ecke bodeneben gefliest mit Trennwand und geteilter Glastür, die vor allem auch nach innen aufgeht, damit nicht der Bereich vor der Dusche naßgetropft wird.
Dazu WC, Kommode unter dem Fenster, breiter Waschtisch, hier evtl. einen Waschtrockner integriert (dann muss man die Wäsche nicht vom OG in den Keller transportieren und zurück).
Planunten das "Masterschlafzimmer" mit einem Bett von 150x210, also Matratze 140x200 plus Bettrahmen. 200 cm Schrank unter der Schräge angepasst.
Gästezimmer ... da fällt mir auf, evtl. lieber Schiebetür, dann kann das Bett und 40 cm tiefer Schrank vermutlich besser in dem Raum leben.
Im Vorraum an der Wand zum Bad noch etwas Stauraum .. Fenster als Sitzfenster und nach planoben noch eine Kommode unterhalb der Fensterbrüstung.