Haus, Garage / Carport auf dem Grundstück platzieren

4,70 Stern(e) 6 Votes
Zuletzt aktualisiert 22.11.2025
Sie befinden sich auf der Seite 13 der Diskussion zum Thema: Haus, Garage / Carport auf dem Grundstück platzieren
>> Zum 1. Beitrag <<

G

Grantlhaua

Außerdem habe ich da die Rückwand zur Küche im Bereich der Unterschränke im Küchenblock offen gelassen. Trick ist es, die Unterschränke von Küchenseite ohne Rückwand zu wählen. Dann kann man hier z. B. die Gebrauchswasserkiste, Altglas und Altpapier gleich im Transportbehälter etc. sammeln. Von Küchenseite nutzbar und, wenn man zum Einkaufen geht, kann man von Flur-Seite die Transportbehälter gleich zur Entsorgung rausnehmen. Die Gebrauchswasserkiste, wenn neu gekauft, gleich vom Flur dort reinstellen.
Das ist ja ne coole Idee!

Im Kücheneck unten rechts ein feststehendes Fensterelement Richtung Terrasse / Garten .. das kann bodentief sein, könnte auch z. B. eine Sitzbrüstungshöhe haben
Das haben wir ja schon drin, und gefällt mir wahnsinnig gut!

TK-Schrank mit Eiswürfelbereiter anzuschließen
Den kriegen wir Da gibts ja leider nur einen einzigen Einbau TK-Schrank mit Eiswürfelspender innen.

Jetzt hast du die Speisekammer aber auch einfach wegrationalisiert, was aber eigentlich nicht in Frage kommt weil das eine der Hauptprämissen meiner Freundin ist. Nichts desto trotz, werde ich diese Anregungen von dir in unseren Planungen mit einbringen, wobei uns beiden diese Art von Hochschrankwand rein optisch eher nicht zusagt.

Ich danke dir für diesen Einsatz und die Mühe die du dir machst!
 
kbt09

kbt09

Nö, ist halt zugänglich vom Flur und die Küche selber bietet genug Stauraum für Nudeln und Konserven (KF ) ... siehe meinen Text. Und der SK-Stauraum vom Flur zusätzlich Platz für Küchenrollen, Klopapier usw. und diesen 2-seitig nutzbaren Stauraum in den Küchenunterschränken .

Ich denke, das ist die bessere Lösung, denn für die Langzeit-Vorräte habt ihr ja auch immer noch den Keller.

Einfach mal Situationen durchspielen, dann die viel gepriesene Stauraumplanung machen.

Diese Küche bietet:
  • 480 cm Unterschrankstauraum mit Auszügen in Normaltiefe (Geschirrspüler nicht mitgezählt)
  • 270 cm Unterschrankstauraum mit Auszügen in 50 cm Tiefe
  • 120 cm Unterschrankstauraum mit Innenauszügen speziell für Vorräte unter den Backöfen
  • 160 cm Unterschrankstauraum mit Türen von Vor- und Rückseite nutzbar
  • 120 cm Stauraum ab ca. 152 cm Höhe mit nutzbarer Höhe von knapp 70 cm für größere Teile (über den Backöfen)
  • 160 cm Stauraum ab ca. 182 cm Höhe mit nutzbarer Höhe von knapp 35 cm für Teile in Behältern, damit man sie schneller rausnehmen kann und gut ran kommt, für sehr selten gebrauchtes (über der Abstellfläche in der Hochschrankwand)
  • 120 cm Stauraum ab ca. 195 cm Höhe mit nutzbarer Höhe von knapp 22 cm für wirklich kaum gebrauchtes (über den Kühlgeräten)
Das ist enorm viel Stauraum.

Wichtig ist die gute Aufteilung in Auszüge und Schubladen, Korpus mind. 78 cm Höhe, 6rasterig. Lieber eine Ebene mehr, als unendlich hohe Auszüge, in denen man dann alles stapelt, usw.
 
G

Grantlhaua

@kbt09
Ich danke dir vielmals! Wenn das Garagenthema gelöst ist, werde ich mir die genannten Sachen und auch deine Posts noch mal durchlesen Ein bisschen Luft in der Küchenplanung haben wir ja noch...
 
kbt09

kbt09

Ok .

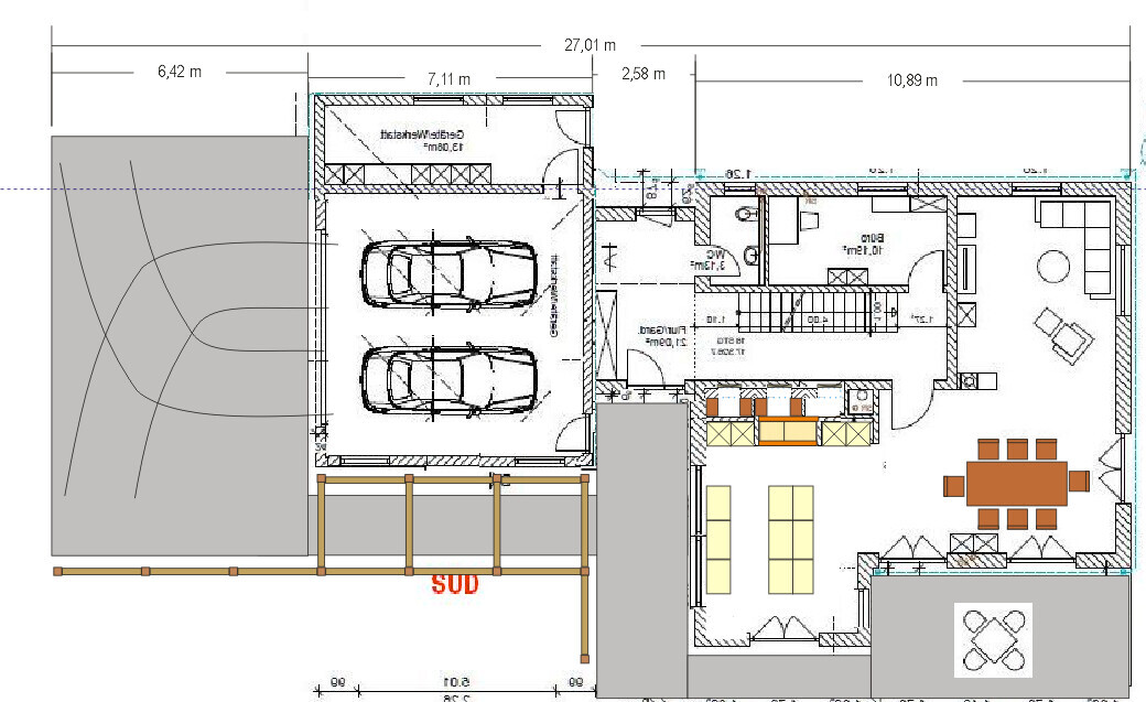
Nochmal ein wenig mit der Garage gespielt:

Grundriss eines Hauses mit Doppelgarage, offener Küche, Essbereich und Wohnzimmer.


In Richtung Süden dann eine Art Laubengang, den man als reine Pfosten und oben Querbalken-Konstruktion an der Einfahrt weiterführen kann.
Lagerraum jetzt in den Norden, Ausgang Garage in den Eingangsbereich vom Haus.

Außerdem mal in etwa den Rangierstart aufgezeichnet. Einfahrt sollte dann aber schon knapp 650 cm sein. Bleiben Richtung Osten noch ca. 4 m .. würde euch das reichen?
 
G

Grantlhaua

Außerdem mal in etwa den Rangierstart aufgezeichnet. Einfahrt sollte dann aber schon knapp 650 cm sein. Bleiben Richtung Osten noch ca. 4 m .. würde euch das reichen?
Mit welchem Programm machst du das? Du bist spitze!

Einfahrt ist jetzt mindestens 6,5 wird eher 7,5m. Die Tür vom Lagerraum bin ich am Überlegen auf die Vorderseite Richtung Hof zu verlegen, da damit besser zugänglich.

Außerdem überlege ich, die Garage um 0,5m tiefer zu stellen und dafür zwei Steine oben mehr aufzumauern, da es zur Straße hin ein Gefälle von ca 0,5-0,7m gibt. den Weg an der Garage entlang könnte ich ja dann als "Rampe" ausführen. Was hältst du davon? Allerdings bräuchte man dann im Norden eine kleine Stützmauer.
 
Zuletzt aktualisiert 22.11.2025
Im Forum Grundrissplanung / Grundstücksplanung gibt es 2535 Themen mit insgesamt 87992 Beiträgen


Ähnliche Themen zu Haus, Garage / Carport auf dem Grundstück platzieren
Nr.ErgebnisBeiträge
1Planung optimale Anordnung Haus, Garage und Einfahrt 13
2Länge / Gefälle Einfahrt Garage / Carport 10
3Fliesen oder Vinyl in Küche und Flur 19
4Technikraum in Garage einbauen? Ist dies möglich? - Seite 335
5Grundrissentwurf eines Passivhauses 170m² mit Garage - Seite 318
6Entwurf Einfamilienhaus mit Garage/Carport - bitte um Bewertung 22
7 2 Vollgeschosse, Durchgang Garage, Hauswirtschaftsraum unter Treppe - Seite 325
8Grundriss Einfamilienhaus / Garage im EG? 10
9Grundrissplanungen Einfamilienhaus und Garage - Seite 332
10Grundrissplanung Einfamilienhaus (190 qm) mit Garage 18
11Grundriss Bungalow 150qm mit Garage - Seite 1379
12Grundriss Einfamilienhaus 240 m² mit teilüberbauter Garage - Seite 296
13Grundriss Einfamilienhaus 136m² mit Garage & Keller 17
14Haus ohne Garage und Keller? Ausbau Dachboden? Fresswarze? - Seite 585
15Grundriss Einfamilienhaus mit Garage 18
16Grundriss Haus / Grundstück - Seite 328
17Kostenschätzung Einfamilienhaus mit Garage 11
18Erstes Angebot, 157m2 mit Keller, KFW 70, Garage 14
19Grundriss mit Garage auf Grundstück realisierbar? - Seite 329
20Einfamilienhaus mit Einliegerwohnung & Garage 14

Oben