
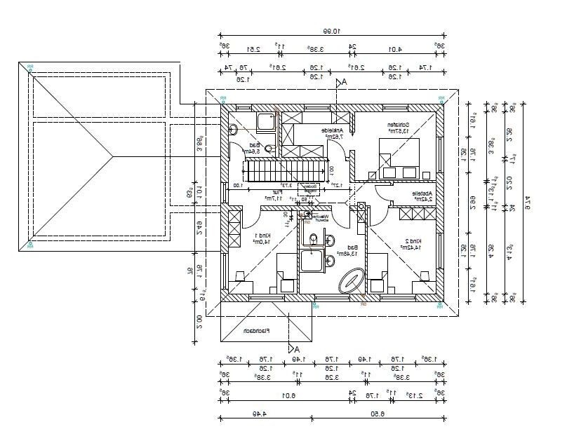
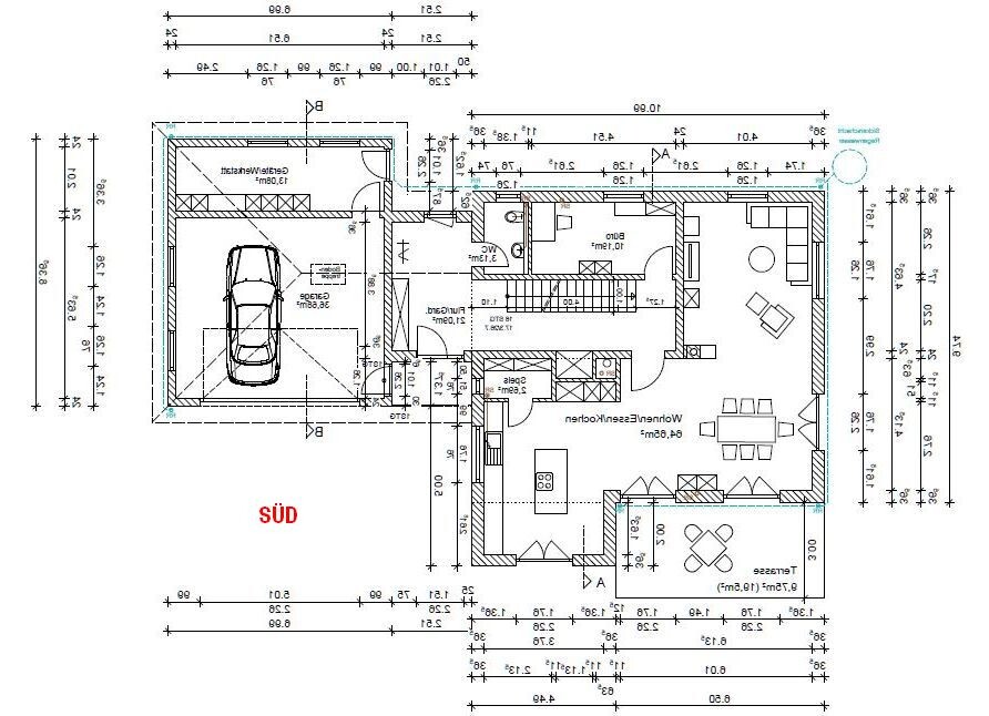
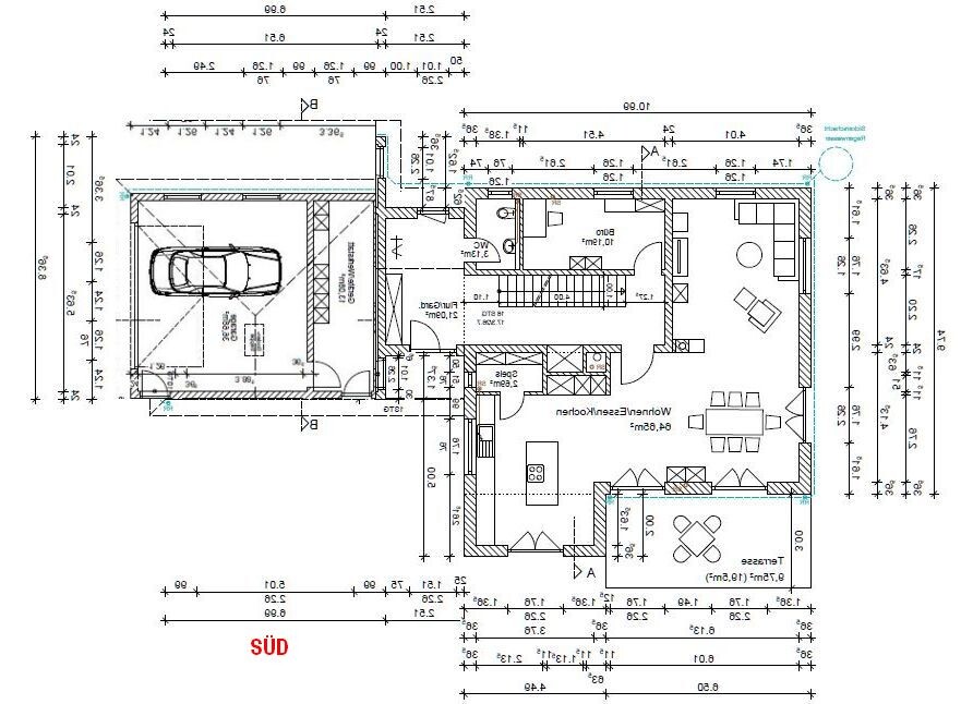
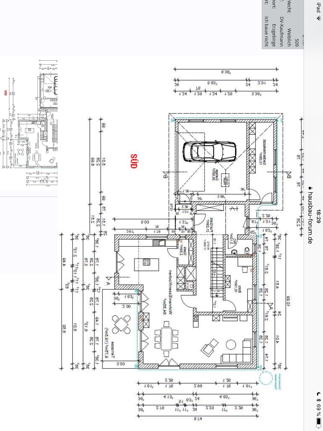
11ant
Ich dachte schon, das solle eine Illustration sein, für die begrabenen Diskussionserkenntnisse betreffend der Ausrichtung der RäumeZur Probe ist aber schon gebaggert worden.
Ich glaube, Yvonne dachte eher an eine schnelle Simulation aus den bestehenden Plänen, notfalls mit gespiegelter Schrift, einfach in den Lageplan hineingebeamt.Ich hab die Orginalpläne noch nicht,