Haus am Hang mit 2 Einliegerwohnungen

4,00 Stern(e) 9 Votes
Zuletzt aktualisiert 18.11.2025
Sie befinden sich auf der Seite 8 der Diskussion zum Thema: Haus am Hang mit 2 Einliegerwohnungen
>> Zum 1. Beitrag <<

A

Alkaral

Ich würde das Haus ohne Einliegerwohnung bauen

UG Eingang, Garderobe, Arbeitszimmer, Haustechnik, Abstellraum
EG Kochen, Essen, Wohnen, 1 Kinderzimmer
dirketer Gartenzugang der den Sommer Wohn und Essbereich mit kleinem Spieleck für die Kleinkinder erschließt.
OG restliche Schlafzimmer vom Flur aus Zugang zum Garten
dort dann den Hang erschließen mit schattigem Spielbereich
nächste Gartenebene mit Südsonne Terrasse für die Übergangszeit (da im Sommer zu Heiß) Sollte hoch genug sein und vom Haus nicht mehr verschattet werden.
Garage und Haus können die Plätze tauschen

Wenn es geht würde ich im UG 2 Kinderzimmer planen und die beiden großen dort einquartieren.
Vielen Dank für den interessanten Vorschlag. Du würdest also das Haus an die Südwestseite des Grundstücks bauen mit lediglich einem kleinen Spieleck für die Kleinkinder Richtung Südwesten und den eigentlichen Garten oben in den Norden des Grundstücks? Hört sich für mich irgendwie falschherum an, weil man sich normalerweise ja in Richtung Süden orientiert. Wir werden es uns aber noch mal intensiv durch den Kopf gehen lassen.
 
H

haydee

750000 Euro für so ein großes Haus, Doppelgarage, Außenanlage an so einem Hang sind sehr knapp

Alleine der Statiker hat einen 5stellig
Betrag verursacht.

Wie sind die Bodenverhältnisse bei euch?
Wasser
Bodenklasse
Schadstoffe

Von wo fährst du auf die oberen Stellplätze die wegfallen

Ja man sagt Garten in den Süden
Dort hält man es im Sommer kaum aus
Kinder soll man vor Sonne schützen
Euer Grundstück ist so hoch, das ihr euch nicht verschattet
Fensterflächen bekommt ihr in den Süden um in der dunklen Jahreszeit Licht und Wärme ins Haus zu lassen
1. Wegfall Einliegerwohnung
Die Miete wird kaum die Kosten besser den Kapitaldienst erbringen
2. Haus so stellen das möglichst wenig Erde bewegt werden muss. Jede Schaufel kostet richtig Geld
3. der Hang braucht Terrassen
Deshalb würde ich jedem Stock einen Außenbereich zuordnen
4. möglichst wenig Wand in die Erde bringen
Bei uns ist eine dicke Wand aus WU Beton mit Unmengen an Stahl die von beiden Seiten isoliert ist. zwischen Betonwand und Erdreich ist Schotter aufgefüllt
Kosten ca. das 2 fache einer Außenwand ohne Erdkontakt
Ein Au-pair-Mädchen braucht keine eigene Wohnung
 
kbt09

kbt09



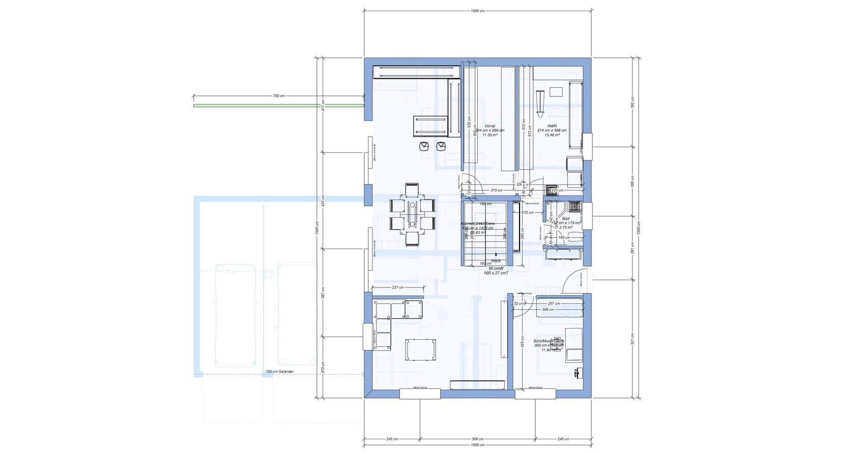
Hier mitten in deinem OG ist lt. Beschriftung der Bereich Treppenhaus und Flur Richtung Eltern 275 cm breit. Treppe rechnet man schon mit mind. 200 cm Breite .. bleiben 75 cm für Flur und Geländer zum Treppenloch.

Auch dein Elternschlafzimmer ist eher falsch bemaßt ... 293 cm breit und angeblich 105 cm zwischen Bett und Wand zum Bad ... Bett also incl. Bettrahmen nur 188 cm. Ich plane so etwas immer mit 215 cm. 200 cm Matratze plus Bettrahmen plus der Tatsache, dass man in Realität das Bett meist mit 2 bis 5 cm Abstand zur Wand stellt. Da reichen zwar 293 cm noch, aber dann sollte man die Abstände eben auch immer korrekt darstellen.

Abgesehen davon ist der Hauptlaufweg deiner Treppe immer noch ggü. vom Sofa. Teenagerkinder .. usw. alles zieht am Sofa vorbei .
 
A

Alkaral

750000 Euro für so ein großes Haus, Doppelgarage, Außenanlage an so einem Hang sind sehr knapp
Uff. Das ernüchtert natürlich. Zumal wir auch von ziemlich viel Haustechnik träumen: Niedrigenergiehaus, Photovoltaik, Wärmepumpe, Fußbodenheizung, Zisterne, Gartenbewässerungsanlage, etc. Da müssen wir wohl einiges streichen

Wie sind die Bodenverhältnisse bei euch?
Wasser
Bodenklasse
Schadstoffe
Laut Aussage meines Vaters (Bauingenieur), sehr günstig. Das Bodengutachten steht aber noch aus.

Von wo fährst du auf die oberen Stellplätze die wegfallen
Von oben gibt es ebenfalls eine kleine Sackgasse, die an unserem Grundstück endet.

Ja man sagt Garten in den Süden
Dort hält man es im Sommer kaum aus
Kinder soll man vor Sonne schützen
Wir haben über deinen Vorschlag auf Seite 6 gestern lange geredet, sind aber zu dem Schluss gekommen, dass die Aufteilung der Geschosse für unsere Bedürfnisse so besser ist: wir möchten das Familienleben auf einer Etage mit einem Garten bündeln, der Garten soll direkt neben der Küche liegen, der Garten so wie er aktuell geplant ist, liegt im hinteren Anteil sowieso im Schatten, weil wir an der Südwestseite sowieso eine schräg verlaufende Mauer zum Nachbarn ziehen müssen damit uns dessen Garten nicht entgegen kommt, auch im vorderen Anteil ist vieles schattig, da das ganze Grundstück umgeben von Bäumen ist.

2. Haus so stellen das möglichst wenig Erde bewegt werden muss. Jede Schaufel kostet richtig Geld
3. der Hang braucht Terrassen
Deshalb würde ich jedem Stock einen Außenbereich zuordnen
4. möglichst wenig Wand in die Erde bringen
Bei uns ist eine dicke Wand aus WU Beton mit Unmengen an Stahl die von beiden Seiten isoliert ist. zwischen Betonwand und Erdreich ist Schotter aufgefüllt
Kosten ca. das 2 fache einer Außenwand ohne Erdkontakt
Ein Au-pair-Mädchen braucht keine eigene Wohnung
Vielen Dank für die Hinweise, da hast du vollkommen Recht. Am Montag haben wir einen Termin beim Architekten. Ich werde ihn fragen, was besser ist: Haus, wie aktuell geplant oder Haus mit kleinerer Grundfläche ohne Einliegerwohnung. Mal sehen, was der sagt, er macht mir einen kompetenten Eindruck und kennt die Örtlichkeit gut.
 
A

Alkaral

Hier mitten in deinem OG ist lt. Beschriftung der Bereich Treppenhaus und Flur Richtung Eltern 275 cm breit. Treppe rechnet man schon mit mind. 200 cm Breite .. bleiben 75 cm für Flur und Geländer zum Treppenloch.

Auch dein Elternschlafzimmer ist eher falsch bemaßt ... 293 cm breit und angeblich 105 cm zwischen Bett und Wand zum Bad ... Bett also incl. Bettrahmen nur 188 cm. Ich plane so etwas immer mit 215 cm. 200 cm Matratze plus Bettrahmen plus der Tatsache, dass man in Realität das Bett meist mit 2 bis 5 cm Abstand zur Wand stellt. Da reichen zwar 293 cm noch, aber dann sollte man die Abstände eben auch immer korrekt darstellen.
Vielen Dank für den Hinweis, du hast vollkommen Recht. Ich habe die Wand neben dem Treppenhaus nach links verschoben. Dadurch wird der Flur und das Elternschlafzimmer breiter, Kind 1 und Gäste etwas schmaler (siehe angehängtes Bild OG-71). Jetzt müsste es passen, oder?

Abgesehen davon ist der Hauptlaufweg deiner Treppe immer noch ggü. vom Sofa. Teenagerkinder .. usw. alles zieht am Sofa vorbei .
Das stimmt. Meinst du, es wäre besser, wenn wir eine kleine Wand zur Abtrennung des Wohnzimmers einführen würden? Das würde das bisher geplante offene Konzept natürlich etwas beeinträchtigen. Auf dem Bild EG-71 habe ich das mal gemacht. Allerdings haben meine Frau und ich gestern Abend beraten und waren der Meinung, dass man einen solchen Raumteiler auch später noch installieren kann..

Ich habe den Kniestock im OG nun auf 150 cm reduziert und habe das Gästezimmer und die beiden Bäder im OG mit Dachfenstern ausgestattet. Jetzt kommen wir mit der Abstandsfläche hin, ganz Recht ist es mir aber natürlich nicht. Ich hätte volle Raumhöhe im OG lieber gehabt (unter anderem, weil ich 1,93 m bin und mein Sohn 2007m schon 1,87 m ist).
Ich musste zudem die Doppelgarage und den Garten etwas schmaler machen

Grundriss eines Hauses: Wohnzimmer, Küche, Essen, Schlafzimmer, Bad, Garage.


Grundriss eines Hauses mit mehreren Zimmern, Bad, Küche und Flur; Maße in cm.
 
Climbee

Climbee

Du verschiebst Wände und nestelst an Kleinigkeiten herum.

Ich finde den gesamten Kasten grundsätzlich potthäßlich und unpassend. Hanghäuser können megageil sein, aber das hier ist es leider nicht. Mir fehlt so insgesamt ein Konzept.
Bisher hast du auch noch nicht geantwortet, warum die Einliegerwohnung so zwingend sein muß. Wie gesagt, zu Finanzierung des Kastens taugt sie nicht. Für ein AuPair tut's eine Gästesuite auch (also Zimmer mit Bad und wenn's nobel ist, darf da noch eine Singleküche rein - das kann dann später das älteste Kind mal nutzen) - also warum den Platz verbraten und sich immer mit fremden Leuten auf dem Grundstück arrangieren?

750.000€? Träum weiter... reicht nie! Nicht für ein Hanghaus in der Größe und dann noch in Bayern - auch mit nur einer Einliegerwohnung. So, wie der Entwurf jetzt ist, wirst du die Million locker knacken. 750.000€ - Schenkelklopfer!!! Weißt du, wie die Preise für Leistungen und Materialien rund um den Bau sich die letzten Jahre gerade in BY entwickelt haben?

Du fängst m.E. falsch an. Ich würde mir mal grundsätzlich die Baulinien verinnerlichen. Wie viel Grundfläche hast du, was darfst du, was nicht. Und dann OHNE Plan eine Liste der musst haves und der nice to haves und der Dinge, die ihr gar nicht wollt anlegen.

Und dann zu einem guten Architekten, einer, dessen Stil euch gefällt.

Nebenher könnt ihr weiter an euren Entwürfen pusseln - macht ja Spaß.

Holt euch Input. Musterhäuser sind bei euch leider nicht so zielführend, weil es keinen Musterhauspark für Hanglage gibt, aber ich weise immer gerne auf die Reihe "Traumhäuser" beim BR hin - noch immer in der Mediathek verfügbar - da kann man sich viele Anregungen holen.

Kauft euch Architekturzeitschriften. Auch wenn die darin vorgestellten Häuser euren Preisrahmen wahrscheinlich sprengen - gute Anregungen kann man sich immer holen.

Wenn der erste Entwurf vom Architekten kommt, könnt ihr immer noch Wände verschieben und eure Anregungen einpflegen.

Aber der Entwurf hier, sorry, das ist einfach ein Kasten ohne Konzept in den Hang geschoben. Dabei könnte es auch schön werden.
 
Zuletzt aktualisiert 18.11.2025
Im Forum Grundrissplanung / Grundstücksplanung gibt es 2536 Themen mit insgesamt 87964 Beiträgen


Ähnliche Themen zu Haus am Hang mit 2 Einliegerwohnungen
Nr.ErgebnisBeiträge
1Grundriss-Entwurf Einfamilienhaus in Hanglage, Einliegerwohnung, Doppelgarage - Seite 271
2Einfamilienhaus-Planung am Hang (2.700qm Grundstück) - Erfahrungen / Diskussion 42
3Meinungen zum Grundstück am Hang. - Seite 222
4Grundriss-Entwurf: Einfamilienhaus mit Keller; 560qm Grundstück - Seite 765
5Grundriss-Planung Einfamilienhaus ca. 240qm mit Doppelgarage und Einliegerwohnung im Keller 16
6Hausbau 2.0 - erster Grundriss-Entwurf - Seite 13155
7Erste Planung Einfamilienhaus mit Einliegerwohnung auf 600 m2 14
8Einfamilienhaus mit ebenerdiger Einliegerwohnung auf Hang - Seite 30297
9Grundrisse Einfamilienhaus mit Einliegerwohnung 280 m2 auf 320m2 sympathisch kleinen Grundstück - Seite 286
10Anordnung Haus und Stellplätze - Kleines Grundstück - Haus mit Einliegerwohnung - Seite 227
11Neubau Einfamilienhaus ca. 190m² mit Doppelgarage ohne Keller - Entwurf Nr. 3 42
12Grundstück am Hang im Münchner Umland - wie entscheiden? - Seite 754
13Süd Hang Grundstück 700qm Einfamilienhaus ca. 150qm, Ideen Input? 41
14Grundrissplanung / Entwurf Einfamilienhaus Flachdach mit Doppelgarage 87
15Einliegerwohnung für Eltern: 210 m² Einfamilienhaus und 80 m² Einliegerwohnung - Seite 17129
16Grundriss Einfamilienhaus mit Einliegerwohnung - Seite 577
17Grundrissplanung mit enger werdendem Grundstück - Seite 223
18Erste Grundrissplanung auf Karopapier: Hang, Keller + 2 Geschosse. 80
19Grundriss Einfamilienhaus ca. 300qm, Grundstück 780qm - Seite 224
20Grundriss Haus mit Einliegerwohnung - Verbesserungsvorschläge? - Seite 15221

Oben