Haus am Hang mit 2 Einliegerwohnungen

4,00 Stern(e) 9 Votes
Zuletzt aktualisiert 18.11.2025
Sie befinden sich auf der Seite 3 der Diskussion zum Thema: Haus am Hang mit 2 Einliegerwohnungen
>> Zum 1. Beitrag <<

kbt09

kbt09

Im OG passt auch soweit man das erkennen kann Treppe und Flur nicht richtig zusammen.

Und, was ich auch nicht so schön finde, Dreh- und Angelpunkt der Treppe ist immer der Wohnbereich .. keine Ruhe auf dem Sofa ... und das dann bei 4 Teenager-Kindern.

Elternschlafzimmer - die Bettposition, das wird zu eng. Die Bäder sind überfrachtet und haben eher Miniduschen.
Begehbarer Kleiderschrank mit 175 cm Breite reicht nicht für 2 Schrankreihen.

Was mir fehlt ist der richtige Lageplan mit Höhenpunkten und Nachbargrundstücken ... auch wg. der Zufahrten usw. Was ist mit der Garage im Norden?

Die 2 Vermietwohnungen würde ich auch nicht einplanen. So wie ich das sehe, gäbe es für die Mietparteien ja noch nicht mal einen Kellerplatz oder so ... was ist mit Fahrrädern, Koffern usw. von denen? Das ist nicht richtig durchdacht.
Haus könnte dann kleiner in der Grundfläche und man kann z. B. UG mit Büro/Gast/Hauswirtschaftsraum/Technik verplanen, EG mit Kochen/Essen/Wohnen/Eltern und DG dann mit Kindern.
 
A

Alkaral

Vielen Dank für die vielen (zum Teil schmerzhaften), aber unglaublich wertvollen Hinweise. Wir werden nun wahrscheinlich tatsächlich die obere Einliegerwohnung streichen, dann fällt das DG inklusive Dachterrasse weg.
Zum Glück haben wir nicht, wie zum Teil angedeutet ein sauteures Grundstück gekauft und voll auf die "Mitfinanzierung" durch die Mieter gesetzt, wir haben weiterhin volle Freiheit. Die Idee entsprang nur dem Gedanken die Möglichkeiten des Grundstücks mit dem separaten Zuganges/Zufahrt von oben auzunutzen.

Meine Frau und ich werden nun "in Klausur gehen" und noch mal alles überdenken. Eure Anregungen werden wir dezidiert durchgehen und in die Überlegungen einfließen lassen. Wir werden dann komplett neue Pläne posten; vielleicht machen wir auch einen neuen Thread auf?

In der Zwischenzeit werden wir diesen Thread (und auch den von dir empfohlenen Thread 11ant) aber natürlich weiterhin hochinteressiert lesen. Wenn ihr also weitere Anregungen habt, dann schreibt es doch rein.

Viele Grüße und vielen Dank!
 
A

Alkaral

Hallo zusammen,

okay, wir sind aus unserer Klausur zurückgekehrt. Ihr habt ja recht; wir streichen die obere Einliegerwohnung und damit das komplette DG!

Die Garage und der Stellplatz oben (im Norden) müssen damit auch nicht gebaut werden. Dafür haben wir den Kniestock im OG (das ja jetzt irgendwie das DG ist) von 150 cm auf 200 cm erhöht, damit wir Fenster zur Seite raus haben und nicht überall Dachschrägen im OG haben.

Die übrigen Anregungen haben wir auch ernst genommen und zum Großteil umgesetzt. Bitte schaut sie euch noch mal an, wir sind gespannt auf weitere Ideen (und auch auf eure Kritik, wenn´s sein muss).

Habt ihr Ideen, was wir aus dem Grundstücksteil im Norden nun machen können? Wir haben mal eine Tür vom Schlafzimmer im OG in diesen Gartenteil eingebaut. Natürlich brauchen wir jetzt auch keine Mauer im Garten mehr, sondern können die 3 Meter Höhenunterschied terrassiert begrünen. Vielleicht machen wir auch eine Rutsche für die Kinder dort hin oder so

Ist es tatsächlich so, dass man eine dachbegrünte Garage nicht an die Grundstücksgrenze bauen darf?

Kann ich den hinteren Teil der linken Garage als kleinen Keller für die Einliegerwohnung nutzen, oder kriegen wir da Feuchtigkeitsprobleme, da wir ja unter der Erde sind?

Viele Grüße

Grundriss: Garage ELW (290×739 cm) links und Doppelgarage (505×739 cm) rechts.


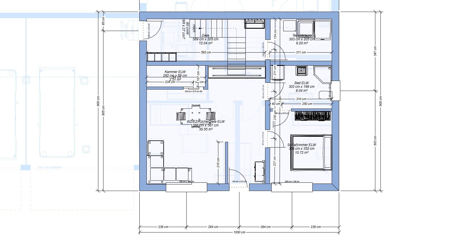
Grundriss einer Einliegerwohnung mit Küche, Wohnzimmer, Bad, Schlafzimmer, Treppen, Maßen in cm.


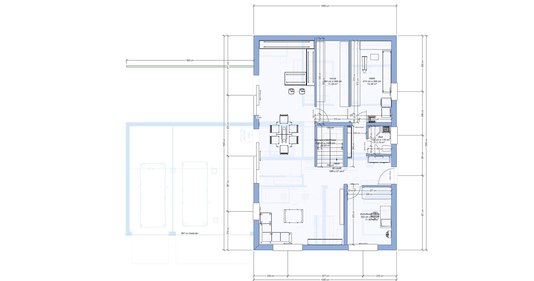
Grundriss eines Hauses mit Garage, Innenaufteilung, Türen und Maßlinien.


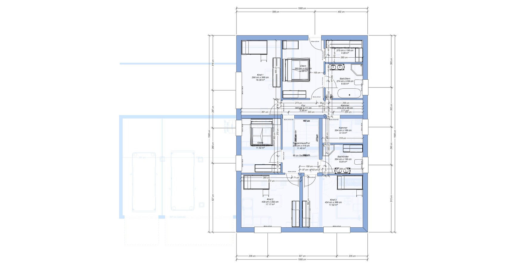
Grundriss eines Hauses: detaillierter Etagenplan mit Zimmern, Bad, Küche, Wohnzimmer und Garage.


Mehrstöckiges Hausmodell mit brauner Fassade, Holztreppe und Dachüberhang vor Himmel


Braunes zweistöckiges Haus mit Außentreppe, Holzfenstern und Garage links, blauer Himmel.


Modernes braunes Haus mit Garage, Deck und Dach, blauer Himmel.


3D-Rendering eines Hauses auf einer erhöhten Plattform mit Terrasse, Geländern und Wolkenhimmel.
 
Zuletzt aktualisiert 18.11.2025
Im Forum Grundrissplanung / Grundstücksplanung gibt es 2536 Themen mit insgesamt 87965 Beiträgen


Ähnliche Themen zu Haus am Hang mit 2 Einliegerwohnungen
Nr.ErgebnisBeiträge
1 2 Vollgeschosse, Durchgang Garage, Hauswirtschaftsraum unter Treppe 25
2Grundriss für Einfamilienhaus mit 200m² mit Einliegerwohnung 75 +Keller 140m² +Garage 56m² 59
3Grundriss Einfamilienhaus mit 240m² mit Einliegerwohnung 75m² und Garage 39
4Einliegerwohnung für Eltern: 210 m² Einfamilienhaus und 80 m² Einliegerwohnung - Seite 4129
5Einfamilienhaus Stadtvilla ca. 180qm + Einliegerwohnung 70qm - offene Bauweise - Seite 323
6Grundriss Einfamilienhaus mit Einliegerwohnung am Südhang oberhalb der Straße 14
7Grundriss Einfamilienhaus mit Einliegerwohnung in Bayern mit starken Hang 26
8Grundriss Haus mit Einliegerwohnung - Verbesserungsvorschläge? 221
9Grundriss-Diskussion: Einfamilienhaus + Einliegerwohnung als Mehrgenerationenhaus am Nordhang 26
10Grundriss Einfamilienhaus Stadtvilla mit Einliegerwohnung - Was meint ihr? 17
11Haus ohne Garage und Keller? Ausbau Dachboden? Fresswarze? - Seite 585
12Grundriss Einfamilienhaus / Garage im EG? 10
13Grundstück - Baufenster - Lage von Haus und Garage - Seite 544
14Lage von Haus & Garage im Baufenster planen *Vorplanung* - Seite 4129
15Neubau Stadtvilla mit Einliegerwohnung und Doppelgarage - Seite 272
16Bitte um Feedback zu Grundrissen Einfamilienhaus mit Einliegerwohnung 21
17Grundriss Einfamilienhaus mit Einliegerwohnung 77
18Grundriss, längliches Einfamilienhaus, integrierte Garage kein Keller 16
19Grundriss Einfamilienhaus (ca. 170 qm) mit Garage - Hanglage 35
20Grundriss 140 m2 Einfamilienhaus mit Garage - Hausausrichtung ok? - Seite 218

Oben