ᐅ Grundrissplanung UG-EG - Hanggrundstück
Erstellt am: 21.04.20 18:35
S
Sternchen3121.04.20 18:35Hallo zusammen,
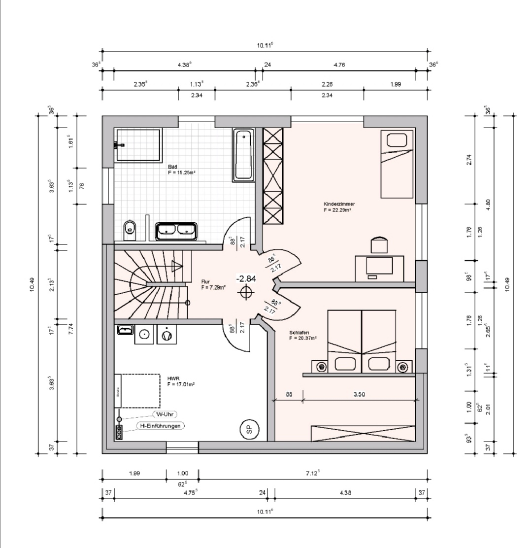
Der Grundriss wäre soweit fertig, jetzt würde ich gerne von euch wissen was Ihr davon haltet. Noch können wir alles ändern.
Bebauungsplan/Einschränkungen
Größe des Grundstücks: 717qm
Hang: abschüssig, 10% Gefälle
Baufenster, Baulinie und -grenze
Randbebauung:
Anzahl Stellplatz: Fertiggarage / Doppelgarage 6x7
Geschossigkeit: UG+EG
Dachform: Satteldach
Anforderungen der Bauherren
Stilrichtung, Dachform, Gebäudetyp: Satteldach
Keller, Geschosse: UG+EG
Anzahl der Personen, Alter: 2 Erwachsene / 1 Kleinkind
Raumbedarf im EG, OG: ca. 140qm
Büro: Kinderzimmer / Büro / Gästezimmer in einem
Schlafgäste pro Jahr: 3
Kamin: nein
Terrasse: Ja
Garage, Carport: Doppelgarage
Nutzgarten, Treibhaus: nein
Hausentwurf
Von wem stammt die Planung: Planer eines Bauunternehmens
Was gefällt besonders? Warum? gezeichnet größtenteils nach unseren Wünschen
Was gefällt nicht? Warum? Essbereich zu schmal zw. Küchen und Wohnzimmer (die linke Küchenzeile muss so lange werden (von links nach rechts - erhöhter Geschirrspüler, Ofen und Mikrowelle übereinander, Tür in die Speise, Side by Side Kühlschrank, Hochschrank). Rechte Seite überlegen wir ggf. etwas zu kürzen um mehr Platz im Essbereich zu bekommen.
Preisschätzung lt Architekt/Planer: 400.000€
Persönliches Preislimit fürs Haus, inkl Ausstattung: 410.000€
favorisierte Heiztechnik: Luft-Wasser-Wärmepumpe mit Fußbodenheizung
Wenn Ihr verzichten müsst, auf welche Details/Ausbauten
-könnt Ihr verzichten: offen
-könnt Ihr nicht verzichten: offen
Warum ist der Entwurf so geworden, wie er jetzt ist?
Wir haben sehr lange selbst gezeichnet, verändert, angepasst. Das ist das Ergebnis aus Zusammenarbeit zw. Planer und unseren Wünschen
Entsprechende/Welche Wünsche wurden vom Architekten umgesetzt? alle
Infos:
Es wird ein Einfamilienhaus in Massivbauweise, KFW55, mit Photovoltaikanlage, Fußbodenheizung, Luft-Wasser-Wärmepumpe, Satteldach mit 22°. Kinderplanung ist abgeschlossen, ergo 2 Erwachsene und 1 Kleinkind. Das Haus wird von Straße aus kommend auf abschüssigem Hanggrundstück mit 10% Gefälle gebaut. Die Bereiche im UG welche von der Erde komplett verdeckt sind in WU Beton, der Rest gemauert. Die Südseite geht nach vorne zur Straße hin, daher hier auch die Hauptterrasse. Der Durchgang zwischen Küche und Speise verschwindet hinter einer versteckten Tür in der Wandzeile der Küche. Vom Windfang in die Speise kommt man entweder durch eine Schiebetüre oder normalen Tür, öffnend zur Speise hin. Eine Hebeanlage für das untere Bad wird nicht benötigt da wir ein Gefälle von Bad zum Kanal von 2,8% haben werden. Der Kanalanschluss auf unserem Geländer liegt auf einer Tiefe von 3,39meter. Das Haus wird zu dem etwas höher über Straßenoberkante gebaut. Eine Rückstauklappe ist natürlich geplant. Aus dem unteren Bad kommt man nach hinten durch eine weitere Tür in den hinteren Garten (Nord/Ost). Die Doppelgarage (Fertiggarage) bekommt zum Gefälle hin statt einer Tieferfundamentierung eine quere Nutzgarage gestellt mit seitlicher Tür von 3x7 Meter so dass man dies als Lagerraum / Keller / Gartenzubehör nutzen kann. Die Terrasse wird nicht ganz so weit ums Eck gehen wie in der Planung, damit das Grundstück dort schneller abfallen kann.
Nach so langem planen, überlegen, ändern, wird man auch mal blind und übersieht das ein oder andere. Daher sind wir für Kritik, Tipps, Tricks und Hinweise sehr dankbar
Feuer frei & ganz lieben Dank schon im Voraus.







Der Grundriss wäre soweit fertig, jetzt würde ich gerne von euch wissen was Ihr davon haltet. Noch können wir alles ändern.
Bebauungsplan/Einschränkungen
Größe des Grundstücks: 717qm
Hang: abschüssig, 10% Gefälle
Baufenster, Baulinie und -grenze
Randbebauung:
Anzahl Stellplatz: Fertiggarage / Doppelgarage 6x7
Geschossigkeit: UG+EG
Dachform: Satteldach
Anforderungen der Bauherren
Stilrichtung, Dachform, Gebäudetyp: Satteldach
Keller, Geschosse: UG+EG
Anzahl der Personen, Alter: 2 Erwachsene / 1 Kleinkind
Raumbedarf im EG, OG: ca. 140qm
Büro: Kinderzimmer / Büro / Gästezimmer in einem
Schlafgäste pro Jahr: 3
Kamin: nein
Terrasse: Ja
Garage, Carport: Doppelgarage
Nutzgarten, Treibhaus: nein
Hausentwurf
Von wem stammt die Planung: Planer eines Bauunternehmens
Was gefällt besonders? Warum? gezeichnet größtenteils nach unseren Wünschen
Was gefällt nicht? Warum? Essbereich zu schmal zw. Küchen und Wohnzimmer (die linke Küchenzeile muss so lange werden (von links nach rechts - erhöhter Geschirrspüler, Ofen und Mikrowelle übereinander, Tür in die Speise, Side by Side Kühlschrank, Hochschrank). Rechte Seite überlegen wir ggf. etwas zu kürzen um mehr Platz im Essbereich zu bekommen.
Preisschätzung lt Architekt/Planer: 400.000€
Persönliches Preislimit fürs Haus, inkl Ausstattung: 410.000€
favorisierte Heiztechnik: Luft-Wasser-Wärmepumpe mit Fußbodenheizung
Wenn Ihr verzichten müsst, auf welche Details/Ausbauten
-könnt Ihr verzichten: offen
-könnt Ihr nicht verzichten: offen
Warum ist der Entwurf so geworden, wie er jetzt ist?
Wir haben sehr lange selbst gezeichnet, verändert, angepasst. Das ist das Ergebnis aus Zusammenarbeit zw. Planer und unseren Wünschen
Entsprechende/Welche Wünsche wurden vom Architekten umgesetzt? alle
Infos:
Es wird ein Einfamilienhaus in Massivbauweise, KFW55, mit Photovoltaikanlage, Fußbodenheizung, Luft-Wasser-Wärmepumpe, Satteldach mit 22°. Kinderplanung ist abgeschlossen, ergo 2 Erwachsene und 1 Kleinkind. Das Haus wird von Straße aus kommend auf abschüssigem Hanggrundstück mit 10% Gefälle gebaut. Die Bereiche im UG welche von der Erde komplett verdeckt sind in WU Beton, der Rest gemauert. Die Südseite geht nach vorne zur Straße hin, daher hier auch die Hauptterrasse. Der Durchgang zwischen Küche und Speise verschwindet hinter einer versteckten Tür in der Wandzeile der Küche. Vom Windfang in die Speise kommt man entweder durch eine Schiebetüre oder normalen Tür, öffnend zur Speise hin. Eine Hebeanlage für das untere Bad wird nicht benötigt da wir ein Gefälle von Bad zum Kanal von 2,8% haben werden. Der Kanalanschluss auf unserem Geländer liegt auf einer Tiefe von 3,39meter. Das Haus wird zu dem etwas höher über Straßenoberkante gebaut. Eine Rückstauklappe ist natürlich geplant. Aus dem unteren Bad kommt man nach hinten durch eine weitere Tür in den hinteren Garten (Nord/Ost). Die Doppelgarage (Fertiggarage) bekommt zum Gefälle hin statt einer Tieferfundamentierung eine quere Nutzgarage gestellt mit seitlicher Tür von 3x7 Meter so dass man dies als Lagerraum / Keller / Gartenzubehör nutzen kann. Die Terrasse wird nicht ganz so weit ums Eck gehen wie in der Planung, damit das Grundstück dort schneller abfallen kann.
Nach so langem planen, überlegen, ändern, wird man auch mal blind und übersieht das ein oder andere. Daher sind wir für Kritik, Tipps, Tricks und Hinweise sehr dankbar
Feuer frei & ganz lieben Dank schon im Voraus.
Mmh. Interessant. Ich frag mal darauf los:
UG:
Der Hauswirtschaftsraum kommt mir riesig vor. Über 17m² (wenn ich mich nicht vergucke) für Technik ist ne Ansage. Ich glaub, da würde ich ne große Ecke abbeißen und dafür die Ankleide separieren.
EG:
Die Schräge in der Speisekammer ist blöd zu möblieren und für den Eingangsbereich ist das auch nicht besonders hübsch gelöst. Überleg doch mal, Eingangsbereich und Gäste-WC die Plätze wechseln zu lassen und die Speis etwas zu verkleinern.
Beim Allraum fehlt mi irgendwie die Gemütlichkeit und der Pfiff. Kann jetzt auf Schnips nicht sagen, woran es liegt.
Habt Ihr Euch bewußt gegen die Gartenanbindung und für den Sonnenplatz an der Straße entschieden? Ist die Straße stark befahren? So an der Straße sitzen, wär ja nicht meins.
UG:
Der Hauswirtschaftsraum kommt mir riesig vor. Über 17m² (wenn ich mich nicht vergucke) für Technik ist ne Ansage. Ich glaub, da würde ich ne große Ecke abbeißen und dafür die Ankleide separieren.
EG:
Die Schräge in der Speisekammer ist blöd zu möblieren und für den Eingangsbereich ist das auch nicht besonders hübsch gelöst. Überleg doch mal, Eingangsbereich und Gäste-WC die Plätze wechseln zu lassen und die Speis etwas zu verkleinern.
Beim Allraum fehlt mi irgendwie die Gemütlichkeit und der Pfiff. Kann jetzt auf Schnips nicht sagen, woran es liegt.
Habt Ihr Euch bewußt gegen die Gartenanbindung und für den Sonnenplatz an der Straße entschieden? Ist die Straße stark befahren? So an der Straße sitzen, wär ja nicht meins.
Welches ist denn Dein Grundstück? Kann keines mit 717 qm finden. Finde aber die Platzierung der Terrasse direkt an der Straße sehr befremdlich. Da habt ihr hinten so einen schönen großen Garten, um durchs Bad (!) dort hinzukommen. Statt "hinter" dem Haus die Morgensonne, im Hochsommer auch die Abendsonne und ein halb-schattiges Plätzchen in der Mittagshitze zu genießen, "kocht" ihr vorne an der Straße auf der Südterrasse.
Ich würde ja den Allraum ins UG Richtung Garten legen und Schlafen nach oben Richtung Garten. Kann man wenigstens die Fenster aufmachen ohne dass was reinkrabbelt oder wer reinspaziert.
Den Grundriss selbst finde ich auch noch nicht optimal. Beim Reinkommen läufst Du gegen eine Wand, um dann an der schrägen Wand vorbei ins WZ zu gelangen. Dort ist dann alles viel zu eng, wie Du selbst richtig erkannt hast. Schlafzimmer nach Süden, weil es da so schön warm wird? Bad dafür zum ruhigen Garten? Ich finde das alles nicht durchdacht. Am Grundriss selbst zu verbessern macht erst Sinn, wenn Du erklärst, warum Du die Raumverteilung genau so haben willst. Ich bin gespannt
Ich würde ja den Allraum ins UG Richtung Garten legen und Schlafen nach oben Richtung Garten. Kann man wenigstens die Fenster aufmachen ohne dass was reinkrabbelt oder wer reinspaziert.
Den Grundriss selbst finde ich auch noch nicht optimal. Beim Reinkommen läufst Du gegen eine Wand, um dann an der schrägen Wand vorbei ins WZ zu gelangen. Dort ist dann alles viel zu eng, wie Du selbst richtig erkannt hast. Schlafzimmer nach Süden, weil es da so schön warm wird? Bad dafür zum ruhigen Garten? Ich finde das alles nicht durchdacht. Am Grundriss selbst zu verbessern macht erst Sinn, wenn Du erklärst, warum Du die Raumverteilung genau so haben willst. Ich bin gespannt
S
Sternchen3121.04.20 20:03kaho674 schrieb:
Mmh. Interessant. Ich frag mal darauf los:
Danke für deine Überlegungen Ja der Hauswirtschaftsraum ist "riesig". Wir haben ja keinen Kellerraum im Haus. Das bedeutet das in den Hauswirtschaftsraum Raum die Luft-Wasser-Wärmepumpe, der Photovoltaik Speicher, die Waschmaschine, Trockner, Arbeitsplatte über Waschmaschine und Trockner und mehrere Regale sowie ein größerer Schrank geplant ist für die Sachen die sonst einem Keller landen. Daher wurde der Raum bewusst größer gemacht.
Ja die Schräge in der Speisekammer stört uns auch, wir wussten nur nicht wie wir das sonst besser lösen könnten um noch etwas ehr Raum für die Speise zu bekommen. In die Speise soll alles was in die Speise gehört, hinzu kommt ein Trennsystem für gelben Sack, Papier, Pfandgläser usw., Staubsauger, Wischer, Wasserkästen usw. Daher hatten wir versucht so viel Platz wie möglich zu gewinnen.
Da es uns wichtig ist den Winfang auch als Schmutzraum zu nutzen wo wirklich Schuhe usw. bleiben wollten wir vermeiden in den Windfang zu müssen um auf das Gäste-WC zu kommen. Wir hatten das Gäste-WC auch zuerst da wo der Windfang ist und den Windfang oben, allerdings kommt man dann auch nicht mehr vom Windfang in die Speise. Wir wollten hier kurze Wege haben. Wenn man fertig ist zu weggehen und hat was zu trinken vergessen, macht man die Tür auf und holt noch schnell was aus der Speise statt durchs Haus in die Küche zu müssen, das gleiche mim Einkauf z.B.
Bin aber gerade am überlegen die große Arbeitsplatte in der Küche als Arbeitsinsel in die Küche zu stellen, einen Schrank von der langen Schrankwand wegzunehmen und dann könnte die Speise von oben um 80cm gekürzt werden.
Ich warte noch auf die Änderung bezüglich Hauslage. Die Garage kommt weiter ins Grundstück rein, das Haus rutscht auch noch mal 4 Meter ins Grundstück rein, so dass es erst 10meter ab Straße beginnt. Somit ist nach vorne mehr Platz für Terrasse und Rasen. Hinten raus ist auch eine kleine Terrasse geplant, ebenso der Kletterturm und noch weitere Sachen von unserem Sohn. Also hinten wird es nicht nur Rasen bleiben Die Straße ist nicht stark befahren sondern, ist auch keine Durchgangsstraße sondern führt nur zu den weiteren 10 Häusern im Neubaugebiet (18 Häuser) die meisten können aber noch durch eine weitere Zufahrtsstraße angefahren werden. Dürfte nicht all zu viel Verkehr werden.
Ich stell gleich noch Bilder vom Grundstück ein damit ihr euch das besser vorstellen könnt.
S
Sternchen3121.04.20 20:29Würfel* schrieb:
Welches ist denn Dein Grundstück? ……..Hallo, ich hole mal aus und erkläre
Unser Grundstück ist Parzelle 2, steht mit 720qm im Plan, es sind aber 717qm.
Das Haus wird noch versetzt, das ist auf dem aktuellen Plan leider noch nicht ersichtlich. Die Doppelgarage wird 7 Meter rein ab Straße beginnen, das Haus 10meter ins Grundstück rein. Wir wollen somit eben Platz schaffen für die Südterrasse und Rasen. Es ist im hinteren Gartenbereich auch eine Terrasse geplant, ebenso der Spiel- und Kletterturm von unserem Sohn, auch eine Grillstelle.
Warum die Tür im Bad? Wir haben es so geplant weil wir es besser fanden das unser Sohn z.B. wenn er vom Spielen schön sandig und dreckig ist, direkt ins Bad kommt, Klamotten aus und duschen etc. Wir würden es nicht so schön finden wenn er erst mal durch unser Schlafzimmer oder durchs KZ rennen muss. Auch kann man da dann mal mit den Schuhen rein, was beim Schlafzimmer oder KZ so nicht möglich wäre. Auch wollten wir die Möglichkeit haben, wenn wir mit Freunden / Gästen im hinteren Garten sitzen, das diese mal die Toilette im Bad nutzen können, ohne durch unsere Privaträume gehen zu müssen, oder rauf ins Gästebad laufen müssen. Drum die Überlegung die Tür ins Bad.
Warum Allraum nicht im UG? Haben wir lange überlegt, aber wir wollten nicht im EG ins Haus, alle Einkäufe runter ins UG tragen, ebenso alles wieder hoch. Egal ob man das jetzt außerhalb vom Haus über die Treppe ins UG tragen muss oder im Haus. Ebenso wäre der Weg, wenn jemand an der Tür ist, Gäste kommen etc. deutlich länger wenn der Allraum im UG liegt wie im EG. Man müsste deutlich öfters die Treppen laufen. Wenn oben jemand schläft etc. "die Privaträume" nutzt, aber Gäste hier sind, oder kommen, gehen diese immer übers EG ins UG. Wir haben die Wege auch fürs höhere Alter so kurz wie möglich zu halten.
Auch war unsere Überlegung wenn unser Sohn größer ist, könnte man das UG und das EG etwas "separieren". Man könnte unser Schlafzimmer im OG ins Gästezimmer verlagern, Er hätte unten sein reich. Unser jetzt geplantes Schlafzimmer, als sein Schlafzimmer nehmen und das jetzige geplante Kinderzimmer dann als Wohnraum etc. Er hätte zur Not auch einen indirekten getrennten Eingang durchs Bad im UG. Hier müsste man die Tür dann nur irgendwie ändern.
Schlafzimmer gen Süden: Wir haben es deshalb so angeordnet, anordnen müssen, weil wir das Bad z.B. nicht an die Stelle das Schlafzimmer setzen können, der Weg wäre zu weit im zum Kanal zu kommen, ergo wäre nicht genug Gefälle da, somit bräuchten wir eine Hebeanlage. Auch ist es so dass das Kinderzimmer nicht mehr wirklich im Süden liegt, da ist die Sonne in der Regel ab 14 Uhr weg. Bei unserem Schlafzimmer würde das Nachbarhaus rechts zu unserer Seite für Schatten im UG sorgen, denn der Nachbar baut ohne Keller auf Bodenplatte EG+I. Daher sind wir davon ausgegangen das die Zimmer auch im Hochsommer durch die Lage im UG und der Position nicht so heiß werden.
Windfang / Gäste-WC / Speise und der Rest im EG
Wir wollen den Windfang als "Schmutzraum" nutzen, Schuhe, Jacken, Rucksäcke und Co. Es ist uns wichtig den Raum vom "Allraum / Wohnraum" zu trennen. Auch wollten wir nicht in den Windfang müssen um aufs Gäste-WC zu kommen. Auch wollten wir aufgrund kurzer Wege einen direkten Zugang vom Windfang in die Speise um z.B. Einkäufe wie Wasserkästen etc. direkt über den Windfang in der Speise abzustellen. In der Speise soll auch Papier, gelber Sack, Pfand etc. gesammelt werden. Das kann man dann auf kurzem Wege durch den Windfang aus der Speise nehmen, ohne damit groß durchs raus zu müssen. Auch wenn man schon angezogen ist und man merkt, trinken etc. vergessen kann man sich schnell aus der Speise bedienen. Drum so die Anordnung. Keine Ahnung ob das falsch aufgebaut ist.
Ich überlege gerade die große Arbeitsplatte in der Küche, die als Trennung zw. Küche und Essbereich dienen sollte weg zu nehmen und als kleinere Arbeitsinsel in die Mitte der Küche zu stellen. Somit wäre der Essbereich luftiger. Auch könnte man den linken Schrank an der langen Küchenzeile (direkt bei der Terrassentür) weg nehmen, die anderen nachrücken und oben dann die Speise um die 80cm kürzen. Dann wäre das nicht mehr so verwinkelt.
S
Sternchen3121.04.20 20:53Ähnliche Themen