ᐅ Bungalow 135qm: Grundriss + Fenster
Erstellt am: 22.06.19 20:33
R
Reluctance22.06.19 20:33Hallo zusammen,
Bebauungsplan/Einschränkungen
Größe des Grundstücks: 635qm
Grundflächenzahl: 0,4
Geschossflächenzahl: 0,3
Anzahl Stellplatz: 2
Dachform: 35°Dachneigung - 45°, Walmdach oder Satteldach
Abstand zur vorderen Grundstücksgrenze (straßenseitig): Max. 3m (das Haus muss also da stehen, wo es steht)
Anforderungen der Bauherren
Stilrichtung, Dachform, Gebäudetyp: Bungalow, Walmdach, 35°
Keller, Geschosse: kein Keller, 1 Geschoss, ggf. später Dachbodenausbau
Anzahl der Personen, Alter: 2 Personen (40 Jahre), Kinder voraussichtlich keine mehr, notfalls ist ein Raum abtrennbar
Raumbedarf: Wir benötigen ein Schlafzimmer, Badezimmer, Hauswirtschaftsraum, Wohnbereich inkl. Küche und Hobbyzimmer (Zocker- und Bastelzimmer). Ankleide und Gäste-WC haben wir gestrichen, auch wenn es nett wäre, aber andere Dinge hatten höhere Priorität.
Schlafgäste pro Jahr: nicht so häufig, kriegen wir auch so unter
Bauweise: offen und modern inkl. offene Küche
Kamin: nein
Hausentwurf
Von wem stammt die Planung:
- Planer eines Bauunternehmens hat unsere Zeichnungen umgesetzt
Was gefällt besonders? Warum?
- großer Wohnbereich, großes Schlafzimmer
Was gefällt nicht? Warum?
- eigentlich gefällt uns alles
Persönliches Preislimit fürs Haus, inkl Ausstattung: 260.000
favorisierte Heiztechnik: Luftwärmepumpe
Warum ist der Entwurf so geworden, wie er jetzt ist? ZB
Wir haben damals auf Papier unseren Entwurf gezeichnet, den der Planer umgesetzt hat. Weitere Überlegungen, Abstimmungen mit dem Planer haben dann am Ende zu dem Ergebnis geführt.
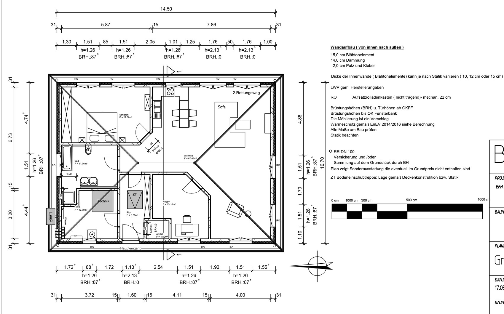
Wir wollten vor allen Dingen einen großen Wohnbereich mit offener Küche und Bücherecke haben. Aktuell (in unser jetzigen Wohnung) haben wir im Gegensatz zum Bungalow-Grundriss noch ein weiteres Zimmer mit meinen Büchern (an die 1.000) und schreibtisch etc. Allerdings halte ich mich NIE darin auf, da ich alles im Wohnzimmer mache. Aus dem Grund haben wir vorerst die Anzahl der Zimmer reduziert und den Wohnbereich und auch das Schlafzimmer vergrößert (hier auf Ankleide verzichtet, um noch mehr Platz zu gewinnen). Die Bücherecke (im Westen des Wohnbereichs liegend) ist allerdings so platziert, dass man diese notfalls noch als Zimmer abtrennen könnte vom Rest des Wohnzimmers.
Beim Schlafzimmer haben wir darauf geachtet, dass es im Osten liegt und wir am Morgen Licht bekommen. Auf ein Gäste-WC haben wir verzichtet und stattdessen einen kleinen Abstellraum für Kleinkram (Hundekram (Futter, Leinen & Co.), Staubsauger usw.) und den Hauswirtschaftsraum etwas größer als nur die klassischen 8qm eingeplant.
Aktuell sind wir noch bei folgenden Dingen unsicher:
- Badaufteilung: Würde die Dusche gerne etwas zurücksetzen (siehe aktueller Grundriss), um das Bad etwas offener/größer zu bekommen. Irgendwie wirkt das alles aber noch nicht so ganz ideal.
- Fensterverteilung: Macht das für euch Sinn? Bekommen wir genug Licht im Wohnbereich? Die bodentiefen Fenster zur Terrasse sind im Osten - da kommt nur am Morgen die Sonne rein. Reichen die Südfenster aus?
Was ist die wichtigste/grundlegende Frage zum Grundriss in 130 Zeichen zusammengefasst?
Gibt es irgendwas, was wir übersehen, vergessen, nicht bedacht haben? Ist aus eurer Sicht hier irgendwas extrem ungünstig? Gibt es bezüglich der Fenster noch Verbesserungen? Wie kann man das Bad sinnvoller aufteilen?
Btw: Ich habe vor einiger Zeit hier schon mal einen Thread zu einem Grundriss eines 1,5Geschossers auf dem selben Grundstück geführt. Damals kam am Ende raus, dass wir doch einen Bungalow bauen können - und das tun wir jetzt. Daher ein neuer Thread...
Viele Grüße und vielen Dank schon mal vorab.


Bebauungsplan/Einschränkungen
Größe des Grundstücks: 635qm
Grundflächenzahl: 0,4
Geschossflächenzahl: 0,3
Anzahl Stellplatz: 2
Dachform: 35°Dachneigung - 45°, Walmdach oder Satteldach
Abstand zur vorderen Grundstücksgrenze (straßenseitig): Max. 3m (das Haus muss also da stehen, wo es steht)
Anforderungen der Bauherren
Stilrichtung, Dachform, Gebäudetyp: Bungalow, Walmdach, 35°
Keller, Geschosse: kein Keller, 1 Geschoss, ggf. später Dachbodenausbau
Anzahl der Personen, Alter: 2 Personen (40 Jahre), Kinder voraussichtlich keine mehr, notfalls ist ein Raum abtrennbar
Raumbedarf: Wir benötigen ein Schlafzimmer, Badezimmer, Hauswirtschaftsraum, Wohnbereich inkl. Küche und Hobbyzimmer (Zocker- und Bastelzimmer). Ankleide und Gäste-WC haben wir gestrichen, auch wenn es nett wäre, aber andere Dinge hatten höhere Priorität.
Schlafgäste pro Jahr: nicht so häufig, kriegen wir auch so unter
Bauweise: offen und modern inkl. offene Küche
Kamin: nein
Hausentwurf
Von wem stammt die Planung:
- Planer eines Bauunternehmens hat unsere Zeichnungen umgesetzt
Was gefällt besonders? Warum?
- großer Wohnbereich, großes Schlafzimmer
Was gefällt nicht? Warum?
- eigentlich gefällt uns alles
Persönliches Preislimit fürs Haus, inkl Ausstattung: 260.000
favorisierte Heiztechnik: Luftwärmepumpe
Warum ist der Entwurf so geworden, wie er jetzt ist? ZB
Wir haben damals auf Papier unseren Entwurf gezeichnet, den der Planer umgesetzt hat. Weitere Überlegungen, Abstimmungen mit dem Planer haben dann am Ende zu dem Ergebnis geführt.
Wir wollten vor allen Dingen einen großen Wohnbereich mit offener Küche und Bücherecke haben. Aktuell (in unser jetzigen Wohnung) haben wir im Gegensatz zum Bungalow-Grundriss noch ein weiteres Zimmer mit meinen Büchern (an die 1.000) und schreibtisch etc. Allerdings halte ich mich NIE darin auf, da ich alles im Wohnzimmer mache. Aus dem Grund haben wir vorerst die Anzahl der Zimmer reduziert und den Wohnbereich und auch das Schlafzimmer vergrößert (hier auf Ankleide verzichtet, um noch mehr Platz zu gewinnen). Die Bücherecke (im Westen des Wohnbereichs liegend) ist allerdings so platziert, dass man diese notfalls noch als Zimmer abtrennen könnte vom Rest des Wohnzimmers.
Beim Schlafzimmer haben wir darauf geachtet, dass es im Osten liegt und wir am Morgen Licht bekommen. Auf ein Gäste-WC haben wir verzichtet und stattdessen einen kleinen Abstellraum für Kleinkram (Hundekram (Futter, Leinen & Co.), Staubsauger usw.) und den Hauswirtschaftsraum etwas größer als nur die klassischen 8qm eingeplant.
Aktuell sind wir noch bei folgenden Dingen unsicher:
- Badaufteilung: Würde die Dusche gerne etwas zurücksetzen (siehe aktueller Grundriss), um das Bad etwas offener/größer zu bekommen. Irgendwie wirkt das alles aber noch nicht so ganz ideal.
- Fensterverteilung: Macht das für euch Sinn? Bekommen wir genug Licht im Wohnbereich? Die bodentiefen Fenster zur Terrasse sind im Osten - da kommt nur am Morgen die Sonne rein. Reichen die Südfenster aus?
Was ist die wichtigste/grundlegende Frage zum Grundriss in 130 Zeichen zusammengefasst?
Gibt es irgendwas, was wir übersehen, vergessen, nicht bedacht haben? Ist aus eurer Sicht hier irgendwas extrem ungünstig? Gibt es bezüglich der Fenster noch Verbesserungen? Wie kann man das Bad sinnvoller aufteilen?
Btw: Ich habe vor einiger Zeit hier schon mal einen Thread zu einem Grundriss eines 1,5Geschossers auf dem selben Grundstück geführt. Damals kam am Ende raus, dass wir doch einen Bungalow bauen können - und das tun wir jetzt. Daher ein neuer Thread...
Viele Grüße und vielen Dank schon mal vorab.
R
Reluctance22.06.19 20:46Ihr habt Euch wirklich gute Gedanken hinsichtlich Gäste-WC, Gäste, Ankleide und co gemacht, um großzügige Räume zu bekommen.
Finde ich gut!
Für mich persönlich fehlen große Fenster zum Garten bzw zum Außenbereich. Für mich gehört zur ersten Ebene, dass der Bezug zum Garten nicht nur durch eine Tür vorhanden ist.
Zur Ausarbeitung:
Da meiner Meinung nach schräge Wände nur in Ausnahmefällen sein sollten, und auch der Küchenbereich nicht die gerechte Präsenzfläche bekommt, würde ich erst mal das Schlafzimmer begradigen. Auch, um dort Ggf noch einen Schrank hinter die Tür zu bekommen. schränke bei Berufstätigen am besten an der Tür, dann kann der hintere noch schlafen und der andere muss sich nicht am Bett vorbeischleichen. Außerdem: Schrank an der Außenwand ist zu vermeiden.
Dann würde ich die Einheit Diele/Büro tauschen, damit die Nebenräume von dem Flurzipfel abgehen und bei Besuch von einem Partner der andere noch Freiheiten im Haus hat. Außerdem kommt man von der Diele genau dort an, wo man soll. Den AB würde ich dann innenliegend machen mit kurzem Weg von der Küche aus.
Garderobenschrank darauf achten, dass der mind. 60 Tiefe hat.
Bad gehört richtig möbliert - wer diese Objekte da wahllos eingefügt hat, der gehört mM nach gekündigt. Der hat kein Interesse, dass der Bauherr sich später in seinem Haus wohlfühlt. Gleiches gilt für die Küche: das ist die Größe einer Ferienwohnungsküche.
Habt ihr keine Gäste, die man mal an einem Esstisch bewirtet?
Von außen... mich fängt das Haus nicht. Es wirkt bieder. Auch das Dach ist sehr hoch. Das muss wohl sein von der DN her... Ich hätte mir da wohl noch ne Treppe mit Arbeitsplatz auf einer Galerie gegönnt, ansonsten ist der Raum irgendwie zwar teuer, aber unnütz.
Bodenluke würde ich vom Allraum aus machen, dann kann man mal die Treppe einen halben Tag stehen lassen, ohne dass der Eingang blockiert wird.
Satteldach ist moderner, aber wenn Ihr es so wollt, dann ist es so.
Finde ich gut!
Für mich persönlich fehlen große Fenster zum Garten bzw zum Außenbereich. Für mich gehört zur ersten Ebene, dass der Bezug zum Garten nicht nur durch eine Tür vorhanden ist.
Zur Ausarbeitung:
Da meiner Meinung nach schräge Wände nur in Ausnahmefällen sein sollten, und auch der Küchenbereich nicht die gerechte Präsenzfläche bekommt, würde ich erst mal das Schlafzimmer begradigen. Auch, um dort Ggf noch einen Schrank hinter die Tür zu bekommen. schränke bei Berufstätigen am besten an der Tür, dann kann der hintere noch schlafen und der andere muss sich nicht am Bett vorbeischleichen. Außerdem: Schrank an der Außenwand ist zu vermeiden.
Dann würde ich die Einheit Diele/Büro tauschen, damit die Nebenräume von dem Flurzipfel abgehen und bei Besuch von einem Partner der andere noch Freiheiten im Haus hat. Außerdem kommt man von der Diele genau dort an, wo man soll. Den AB würde ich dann innenliegend machen mit kurzem Weg von der Küche aus.
Garderobenschrank darauf achten, dass der mind. 60 Tiefe hat.
Bad gehört richtig möbliert - wer diese Objekte da wahllos eingefügt hat, der gehört mM nach gekündigt. Der hat kein Interesse, dass der Bauherr sich später in seinem Haus wohlfühlt. Gleiches gilt für die Küche: das ist die Größe einer Ferienwohnungsküche.
Habt ihr keine Gäste, die man mal an einem Esstisch bewirtet?
Von außen... mich fängt das Haus nicht. Es wirkt bieder. Auch das Dach ist sehr hoch. Das muss wohl sein von der DN her... Ich hätte mir da wohl noch ne Treppe mit Arbeitsplatz auf einer Galerie gegönnt, ansonsten ist der Raum irgendwie zwar teuer, aber unnütz.
Bodenluke würde ich vom Allraum aus machen, dann kann man mal die Treppe einen halben Tag stehen lassen, ohne dass der Eingang blockiert wird.
Satteldach ist moderner, aber wenn Ihr es so wollt, dann ist es so.
Ich finde den Grundriss noch stark unglücklich geraten: der Kleiderschrank gehörte eher an die Wand zur Küche hin, wobei der Eckeingang des Schlafzimmers stört. Ich würde auch eher den Flur bis zum Schlafzimmer durchziehen. Das Arbeitszimmer vom Allraum abgehend wie ein Meisterbüro von einer Halle erscheint mir auch nicht als weiser Wurf. Im Prinzip ist das ganze Haus ein Loft, mit einem Eingang für den Hauswirtschaftsraum-WC-Trakt. Ein Grundriss für siamesische Zwillinge - ein Paar mit vereinzelt nichtparallelen Tagesablaufteilen oder gar einigen nichtgemeinsamen Freunden kann sich hier kaum aus dem Weg gehen, bis hin zu gemeinsamen Kranktagen. Ein Lob gibt es von mir für die Disziplin bei der überschaubaren Anzahl der Fensterformate - sie etwas weniger bieder zu verteilen, sollte mit den vereinten Kräften des Forums möglich sein. Auch bei der wenig geschickten Lukenplatzierung stimme ich zu, aber das Dach an sich ist schon o.k. so - am Beispiel von @Nordlys´ Haus sieht man ja, daß es in Wirklichkeit weniger wuchtig wirkt.
https://www.instagram.com/11antgmxde/
https://www.linkedin.com/company/bauen-jetzt/
https://www.instagram.com/11antgmxde/
https://www.linkedin.com/company/bauen-jetzt/
R
Reluctance23.06.19 10:07ypg schrieb:
Für mich persönlich fehlen große Fenster zum Garten bzw zum Außenbereich. Für mich gehört zur ersten Ebene, dass der Bezug zum Garten nicht nur durch eine Tür vorhanden ist.Wo würdest du denn noch größere Fenster einbauen? Die Wand zum Garten/zur Terrasse hat ja bereits die zwei bodentiefen Fenster. Wäre nur noch die Fernsehwand mit den zwei Fenstern... auf der Seite ist zwar nicht viel Garten, aber vielleicht machen hier auch zwei bodentiefe 1m breite Fenster Sinn?
Wir haben aktuell ja überall die Standardfenster drin (die Beratung ist jetzt nicht so berauschend bei dem Planer des GU). Was wäre denn so eine empfehlenswerte Fenstergröße für die Leseecke? Ich würde da ja gern eine Sitzbank mit Hinbauen... Würde da sogar ein Über-Eck-Fenster Sinn machen (oder gilt das als Fensterband? Ist in der Front nicht zulässig)?
Hier mal die Vorgaben für die Fenster laut Satzung - betrifft in erster Linie die Straßenseite:
- Fenster und Türen sind als stehendes Format auszuführen. Fenster in Drempeln und Kellergeschossen dürfen auch liegende und quadratische Formate aufweisen.
- Straßenseitige Fensteröffnungen sind 1 qm zu gliedern. Beim Einbau von einflügeligen Fenstern sind Pfosten und Kämpfer als glasteilende Elemente auszubilden.
- Die straßenseitige Anordnung von Fensterbändern ist nicht zulässig. Fensteröffnungen sind durch Pfeiler von mindestens 0,24m Breite voneinander zu trennen.
- Glasbausteine sind in den Straßenfassaden unzulässig.
- Die Stürze von Fensteröffnungen eines Gebäudes müssen innerhalb eines Geschosses auf gleicher Höhe liegen. Die Summe der Öffnungsflächen der Fassade muss kleiner sein als die Summe der geschlossenen Flächen.
- Fensterläden sind nur aus Holz herzustellen. Ihre Anbindung ist auch auf Laufschienen zulässig.
- Hauseingangstüren sind nur aus Holz herzustellen. Verglaste Flächen von Hauseingangstüren dürfen maximal 0,50qm betragen.
ypg schrieb:
Dann würde ich die Einheit Diele/Büro tauschen, damit die Nebenräume von dem Flurzipfel abgehen und bei Besuch von einem Partner der andere noch Freiheiten im Haus hat. Außerdem kommt man von der Diele genau dort an, wo man soll. Den AB würde ich dann innenliegend machen mit kurzem Weg von der Küche aus.Sowas haben wir uns auch schon überlegt, aber ich habe leider keine Idee, wie ich dann in den Hauswirtschaftsraum komme ohne zusätzliche Flurfläche schaffen zu müssen.ypg schrieb:
Garderobenschrank darauf achten, dass der mind. 60 Tiefe hat.Danke für den Hinweis, werde ich ändern lassen.ypg schrieb:
Bad gehört richtig möbliert - wer diese Objekte da wahllos eingefügt hat, der gehört mM nach gekündigt. Der hat kein Interesse, dass der Bauherr sich später in seinem Haus wohlfühlt. Gleiches gilt für die Küche: das ist die Größe einer Ferienwohnungsküche.
Habt ihr keine Gäste, die man mal an einem Esstisch bewirtet?Dass das Bad so zusammengewürfelt ist, ist halt von uns im ersten Schritt mal so gezeichnet worden. Der Planer hat unsere Sachen im Grunde nur übernommen. Hier muss ich mich wahrscheinlich noch mal intensiver mit Bad-Grundrissen beschäftigen...Für die Küche gilt dasselbe - unsere Vorgabe war, 60cm breite Küchenzeile, mindestens 1,20m Platz zw. Küchenzeile und Tresen. Das hat er nun also genauso umgesetzt Die Insel/der Tresen ist natürlich witzig und nicht ernst zu nehmen. Den nehmen wir wahrscheinlich auch raus und werden da einfach eine L-Küche einbauen (3m und 2,50m - ist das zu wenig?).
Die Überlegung aktuell ist, einen runden Esstisch dort reinzustellen (kennt ihr die Serie Friends und die Wohnung von Monica? So in der Art...). Alternativ hatte ich schon überlegt, einfach an die Wand zum Hobbyzimmer einen Esstisch zu stellen.
ypg schrieb:
Von außen... mich fängt das Haus nicht. Es wirkt bieder. Auch das Dach ist sehr hoch. Das muss wohl sein von der DN her... Ja, das können wir leider nicht ändern.ypg schrieb:
Ich hätte mir da wohl noch ne Treppe mit Arbeitsplatz auf einer Galerie gegönnt, ansonsten ist der Raum irgendwie zwar teuer, aber unnütz.Hab ich auch schon mit dem Planer besprochen - so als Zukunftsmusik. Ich glaube für den jetzigen Zeitpunkt sind mir das zu viele/hohe ungeplante Kosten.11ant schrieb:
Das Arbeitszimmer vom Allraum abgehend wie ein Meisterbüro von einer Halle erscheint mir auch nicht als weiser Wurf. Warum? Da arbeitet übrigens niemand drin - da spielt einer Computer und Playstation... und bastelt vielleicht noch irgendwelche Modellautos... 11ant schrieb:
Im Prinzip ist das ganze Haus ein Loft, Genau, finde ich super Das Ziel war, möglichst wenig Flur-/Durchgangsfläche und möglichst viel Wohnbereich. Dass ich dabei auf 67qm Wohnbereich gekommen bin, macht mich schon etwas glücklich 11ant schrieb:
Auch bei der wenig geschickten Lukenplatzierung stimme ich zuDa stimme ich zu - finde ich auch nicht optimal. Ich bin nicht sicher, ob das aus Statik-Gründen vielleicht so gemacht wurde. Ich weiß auch nicht, wo genau im Wohnbereich ich sie einbauen könnte. Darunter könnte man ja dann keine Möbel stellen...
Reluctance schrieb:
Wo würdest du denn noch größere Fenster einbauen?Lach... überall. Für mich beginnt Bungalow dort, wo ich mit (fast) jeden Raum den Garten erreiche.Reluctance schrieb:
Die Wand zum Garten/zur Terrasse hat ja bereits die zwei bodentiefen Fenster.Du meinst die 1,76er Elemente? Für mich sind sie zu schmal. 2 Meter wären toll. Auch ich will jetzt Euer Haus nicht verändert. Das ist Quatsch.Aber im SW die gleiche Anordnung würde nach meinem Empfinden schon Sinn machen. Allerdings sollte man für die Fensterplanung auch den Garten mit heranziehen.
In diesem Fall mach eine Tür von der Küche Sinn. Dann aber wäre der Küchenplatz an sich viel zu klein und zurückgedrängt. Ist sie ja jetzt durch die verkürzte Wand des Schlafzimmer.
Bei der Fensterplanung sei noch zu erwähnen, dass das einzelne Fenster vom Bad, diese mitzugeben Lage jetzt auch nicht harmonisch aussieht. Der goldene Schnitt ist jetzt nichts zentrales oder symmetrisch.
Mir ist allerdings auch noch aufgefallen, dass im Schlafzimmer nicht nur der Schrank falsch steht, auch macht sich ein Bett netter, wenn man darauf schaut. Dann würde man allerdings auch das Fenster in den Norden ziehen müssen.
Reluctance schrieb:
aber vielleicht machen hier auch zwei bodentiefe 1m breite Fenster Sinn?Das wären Türen...Reluctance schrieb:
Sowas haben wir uns auch schon überlegt, aber ich habe leider keine Idee, wie ich dann in den Hauswirtschaftsraum komme ohne zusätzliche Flurfläche schaffen zu müssen.Das ist auch meine Erkenntnis, als ich die Skizze gemacht habe.
Reluctance schrieb:
Für die Küche gilt dasselbe - unsere Vorgabe war, 60cm breite Küchenzeile, mindestens 1,20m Platz zw. Küchenzeile und Tresen. Das hat er nun also genauso umgesetzt DiMan sollte nicht zu viele Vorgaben machen, denn dann passiert es, dass der Architekt gar nicht mehr nachdenkt.
Reluctance schrieb:
Die Überlegung aktuell ist, einen runden Esstisch dort reinzustellen (kennt ihr die Serie Friends und die Wohnung von Monica? So in der Art...). Alternativ hatte ich schon überlegt, einfach an die Wand zum Hobbyzimmer einen Esstisch zu stellen.Serie ist unbekannt, aber runden Tisch hätte ich auch zentral angeordnet.Reluctance schrieb:
Hab ich auch schon mit dem Planer besprochen - so als Zukunftsmusik. Ich glaube für den jetzigen Zeitpunkt sind mir das zu viele/hohe ungeplante Kosten.Zu ändern für später ist es bei dem Dach auch nicht. Es hätte Vorteile, es gleich beim Bau zu machen, wenn man dann etwas die Grundfläche hätte verkleinern können.Vom Denkansatz ist alles sehr gut. Aber ich finde, dass man sich hier als zwei Menschen, die auch mal individuell etwas machen wollen, zu sehr einschränken. Besucher stehen fast im Schlafzimmer, müssen auch präsent dort vorbei, um aufs Klo zu gehen. Hat er mal Besuch, könnte sie keinen Wellnessabend mit Maske, Buch und/oder Wanne zelebrieren. Entweder er sitzt mit seinen Kumpels am Esstisch, dann kurvt sie vom Schlafzimmer zum Bad bzw ist in der Bücherecke präsent dabei. Verzieht er sich in das Zockerzimmer, kommt der Kumpel beim Bier holen genau an den Oasen vorbei, wo sie sich aufhalten würde.
Ich spiel das mal mit meiner Doppelkopfrunde und Mann durch: ich hab meine Frauen am runden Tisch. Mann kommt nach Haus, begrüßt, schenkt noch mal den Wein nach und verzieht sich mit seinem Bier ins Schlafzimmer oder Zockerzimmer. WZ geht gar nicht, weil wir ja ungestört sein wollen. Und jetzt läuft er uns jedes Mal, wenn er pieseln muss, in die Sichtzone. Egal, von wo er kommt.
Und das mein @11ant auch mit der präsenten Lage des Zockerzimmers: sie ist von drei Hausbereichen einsehbar, was eben dann Alltagssituationen nicht förderlich ist. Dazu kommt natürlich auch mit einer schrägen Wand die „Zurschaustellung“ des Bereiches, in diesem Haus zum einen das Schlafzimmer, man fällt nach der Diele dort eher ein, bevor man den Allraum betritt. Oder eben vom Allraum ein „Schaut her, hier bin ich, tritt ein“.
Ich würde der Küche mal genug Raum mit Anbindung zum Garten geben.
Dann grundsätzlich das Haus in Ruhe- und Lebenszone gliedern. An der Offenheit würde ich beihalten.
Ähnliche Themen