Hallo liebe Häuslbauer!
Auf Grund der immer weiter steigenden Grundstücks- bzw. Immobilienpreisen haben wir uns entschlossen, das bestehende Doppelhaus der Eltern und Großeltern um- und auszubauen.
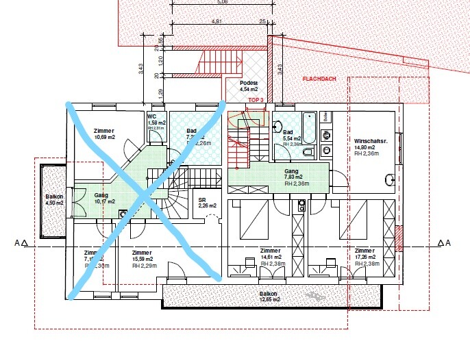
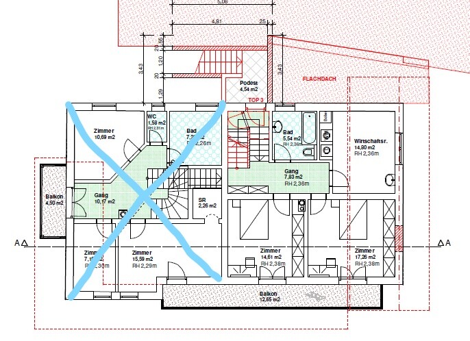
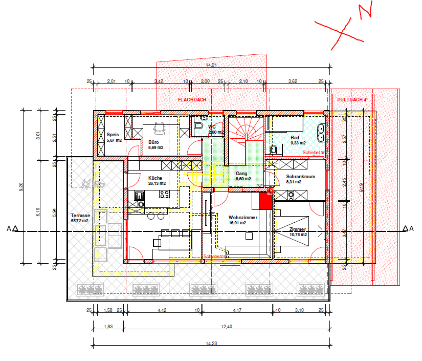
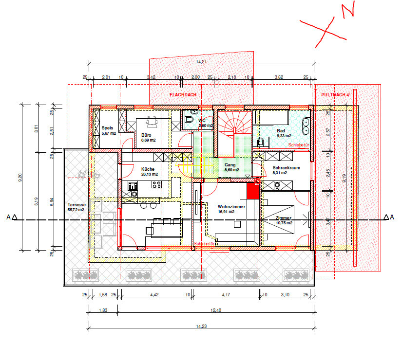
Uns steht dabei der erste Stock der rechten Doppelhaushälfte zur Verfügung, sowie das komplette Dachgeschoss über beide Doppelhaushäften (insgesamt 157qm+55qm Dachterrasse). Zusätzlich wird eine Garage mit zwei Stellplätzen sowie 20qm Stauraum geschaffen, die Heizung befindet sich für alle drei Parteien im Keller, in unserem Bereich wird somit nur ein Warmwasserboiler benötigt.
Der Grundriss von außen bzw. die Größe unseres Vorhabens sind also bereits festgelegt, die Raumaufteilung sowie Fenster und Türen können aber noch verändert werden.
Der Eingangsbereich wird anders gebaut, als auf dem Plan zu sehen: Es kommt eine Trennwand in die Mitte der bestehenden Treppe ins EG und es wird vom Tischler Stauraum sowohl für uns als auch für die Wohnung der Großeltern geschaffen, da wir keinen Durchgang zu ihrer Wohnung benötigen/möchten (Treppe wegreißen wäre zu großer Aufwand). Die Haustüre befindet sich im übrigen auf dem Podest der bestehenden Treppe (Halbstock).
Zudem muss in der Küche sowieso im Schrankraum beachtet werden, das zwei Kamine von den unteren Geschossen durchgehen. Diese können nicht entfernt werden und müssen integriert werden.
Bebauungsplan/Einschränkungen
Größe des Grundstücks: unbedeutend in unserem Fall
Anzahl Stellplatz: 6 überdachte Stellplätze
Geschossigkeit: 1. Stock + Dachgeschoss
Dachform: Satteldach
Ausrichtung: Terrasse im Südwesten
Anforderungen der Bauherren
Keller, Geschosse: 1. OG, Dachgeschoss, Heizung im Keller, Doppelgarage mit Stauraum
Anzahl der Personen, Alter: 2 Erwachsene, 2 (geplante) Kinder
Raumbedarf: Koch- und Essbereich, Wohnzimmer getrennt, Bad, WC, 2 Kinderzimmer, Schlafzimmer, Büro, Hauswirtschaftsraum
Büro: Familiennutzung oder Homeoffice? Homeoffice
Schlafgäste pro Jahr: nicht relevant
offene oder geschlossene Architektur: geschlossen
offene Küche, Kochinsel: wenn möglich
Anzahl Essplätze: 8 (häufig Gäste)
Kamin: wenn möglich
Balkon, Dachterrasse: 55qm
weitere Wünsche/Besonderheiten/Tagesablauf, gern auch Begründungen, warum dieses oder das nicht sein soll: offener Wohn-/Essbereich ist nicht gewünscht, da wir beide oft Besuch haben (Mädlsrunde oder Männerrunde) und der andere in Ruhe sich z.B. im Wohnzimmer aufhalten möchte
Hausentwurf
Von wem stammt die Planung: Architekt
favorisierte Heiztechnik: Pelltes (Altbestand hat keine Bodenheizung nur Heizkörper)
Wenn Ihr verzichten müsst, auf welche Details/Ausbauten
-könnt Ihr verzichten: begehbarer Kleiderschrank
-könnt Ihr nicht verzichten: große Dachterrasse, Wohnzimmer abgetrennt, separates Klo in der Nähe von Küche, Speis
Was sagt ihr zu dem Grundriss? Leider ist man bei einem Umbau nie so frei wie bei einem Neubau in der Planung. Vor allem der Eingangsbereich macht uns nicht 100% zufrieden (zu eng, man muss 2 Stockwerke hinauf wenn man in den Wohnbereich möchte), da wir uns aber selbst bauen einfach nicht mehr leisten können auf Grund von Grundstückspreisen über 1000€ p.qm müssen wir hier wohl in den sauren Apfel beissen.
Danke im Voraus!
Liebe Grüße
Julia


Auf Grund der immer weiter steigenden Grundstücks- bzw. Immobilienpreisen haben wir uns entschlossen, das bestehende Doppelhaus der Eltern und Großeltern um- und auszubauen.
Uns steht dabei der erste Stock der rechten Doppelhaushälfte zur Verfügung, sowie das komplette Dachgeschoss über beide Doppelhaushäften (insgesamt 157qm+55qm Dachterrasse). Zusätzlich wird eine Garage mit zwei Stellplätzen sowie 20qm Stauraum geschaffen, die Heizung befindet sich für alle drei Parteien im Keller, in unserem Bereich wird somit nur ein Warmwasserboiler benötigt.
Der Grundriss von außen bzw. die Größe unseres Vorhabens sind also bereits festgelegt, die Raumaufteilung sowie Fenster und Türen können aber noch verändert werden.
Der Eingangsbereich wird anders gebaut, als auf dem Plan zu sehen: Es kommt eine Trennwand in die Mitte der bestehenden Treppe ins EG und es wird vom Tischler Stauraum sowohl für uns als auch für die Wohnung der Großeltern geschaffen, da wir keinen Durchgang zu ihrer Wohnung benötigen/möchten (Treppe wegreißen wäre zu großer Aufwand). Die Haustüre befindet sich im übrigen auf dem Podest der bestehenden Treppe (Halbstock).
Zudem muss in der Küche sowieso im Schrankraum beachtet werden, das zwei Kamine von den unteren Geschossen durchgehen. Diese können nicht entfernt werden und müssen integriert werden.
Bebauungsplan/Einschränkungen
Größe des Grundstücks: unbedeutend in unserem Fall
Anzahl Stellplatz: 6 überdachte Stellplätze
Geschossigkeit: 1. Stock + Dachgeschoss
Dachform: Satteldach
Ausrichtung: Terrasse im Südwesten
Anforderungen der Bauherren
Keller, Geschosse: 1. OG, Dachgeschoss, Heizung im Keller, Doppelgarage mit Stauraum
Anzahl der Personen, Alter: 2 Erwachsene, 2 (geplante) Kinder
Raumbedarf: Koch- und Essbereich, Wohnzimmer getrennt, Bad, WC, 2 Kinderzimmer, Schlafzimmer, Büro, Hauswirtschaftsraum
Büro: Familiennutzung oder Homeoffice? Homeoffice
Schlafgäste pro Jahr: nicht relevant
offene oder geschlossene Architektur: geschlossen
offene Küche, Kochinsel: wenn möglich
Anzahl Essplätze: 8 (häufig Gäste)
Kamin: wenn möglich
Balkon, Dachterrasse: 55qm
weitere Wünsche/Besonderheiten/Tagesablauf, gern auch Begründungen, warum dieses oder das nicht sein soll: offener Wohn-/Essbereich ist nicht gewünscht, da wir beide oft Besuch haben (Mädlsrunde oder Männerrunde) und der andere in Ruhe sich z.B. im Wohnzimmer aufhalten möchte
Hausentwurf
Von wem stammt die Planung: Architekt
favorisierte Heiztechnik: Pelltes (Altbestand hat keine Bodenheizung nur Heizkörper)
Wenn Ihr verzichten müsst, auf welche Details/Ausbauten
-könnt Ihr verzichten: begehbarer Kleiderschrank
-könnt Ihr nicht verzichten: große Dachterrasse, Wohnzimmer abgetrennt, separates Klo in der Nähe von Küche, Speis
Was sagt ihr zu dem Grundriss? Leider ist man bei einem Umbau nie so frei wie bei einem Neubau in der Planung. Vor allem der Eingangsbereich macht uns nicht 100% zufrieden (zu eng, man muss 2 Stockwerke hinauf wenn man in den Wohnbereich möchte), da wir uns aber selbst bauen einfach nicht mehr leisten können auf Grund von Grundstückspreisen über 1000€ p.qm müssen wir hier wohl in den sauren Apfel beissen.
Danke im Voraus!
Liebe Grüße
Julia
gutentag schrieb:
Verwirrender geht es nicht? Ich blicke da nicht durch. Wo ist die Garage wo die riesige Dachterrasse? Deine Nordausrichtung ist sehr erhellend??
Alles in einem Plan hilft nur jemanden, der das Projekt kennt.Sorry leider haben wir nur diesen Plan, sind viele Linien auf Grund des Altbestandes aber ich denke die Raumaufteilung ist zu erkennen.
Garage ist nicht sichtbar, da dies nur den 1. Stock und das Dachgeschoss abbildet. Die Garage steht schon und ist somit nicht mehr änderbar (war nur als Zusatzinfo).
Von einer "riesigen" Dachterrasse habe ich nie gesprochen, aber ich denke 55qm sind groß genug ;-)
Ähnliche Themen