Grundrissplanung Einfamilienhaus (Stadtvilla 140qm²) am Hang mit Doppelgarage

4,70 Stern(e) 3 Votes
Zuletzt aktualisiert 19.11.2025
Sie befinden sich auf der Seite 17 der Diskussion zum Thema: Grundrissplanung Einfamilienhaus (Stadtvilla 140qm²) am Hang mit Doppelgarage
>> Zum 1. Beitrag <<

11ant

11ant

Wenn ich recht verstehe, werden hier zwei Vollgeschosse gewünscht, wobei das Eingangsgeschoss nicht zählen soll, da "im Mittel" nicht so weit aus dem Erdreich ragend. Das mag möglich sein, wenn das Gefälle (im Baufenster) entsprechend stark ist - dann allerdings mit der Konsequenz einer vollständig eingegrabenen Bergseite (also mit eher nur Luft- als Lichtschächten, praktisch nicht für Aufenthaltsräume geeignet).

Das ist eine Aufgabe für Hardcore-Mathefreaks, und nur mit genauen Zahlen der Höhen.

Da würde ich eher wohlwollend prüfen, ob eine Dachschräge wirklich solches Teufelszeug ist
 
Y

ypg

Ach meinste? Ich dachte, er wollte genau sowas.
Naja... hier steht's:
Anforderungen der Bauherren
  • Stilrichtung, Dachform, Gebäudetyp: Stadtvilla, Walmdach
Da würde ich eher wohlwollend prüfen, ob eine Dachschräge wirklich solches Teufelszeug ist
Ja, ist mir auch unverständlich, dass man sich nicht mit einem Satteldachhaus mit Kniestock arrangieren kann.
 
11ant

11ant

Ja, ist mir auch unverständlich, dass man sich nicht mit einem Satteldachhaus mit Kniestock arrangieren kann.
Oder Pultdach, wozu ein Gefälle ja regelrecht reizen kann.

Das Problem ist heutzutage, die Leute nehmen nicht ein Grundstück mit seiner Geländeform als Geschenk an und stellen da etwas schönes darauf; sondern sie haben eine Hausform-Vorstellung im Kopf und bürden die dann ihrem Grundstück quasi als Hypothek auf.
 
Y

ypg

Ich habe es überlesen, da ich nur mit Handy zugange war:

Die Legende des B-Planes erlaubt einzig nur Satteldächer.

Und da möchte ich dem Franky noch mal raten:
1. Grundstück anschauen, 2. Bebauungsplan lesen 3. überlegen, ob man mit dem Bebauungsplan leben kann. Wenn ja, dann kalkulieren (ggf mit Bodengrundgutachten und/oder Architekt), wie viel Erdarbeiten nötig sind 4. Grundstück kaufen.

Danach gilt: nicht das einplanen oder favorisieren, was nicht ist oder darf.

Diese Diskussion ist mehr oder weniger für die Katz.
Und ohne Katjas Entwurf schlecht zu reden: es wird sich für ein Hanggrundstück auch noch einen anderen Entwurf finden, der passt.

Ich lese gerade: Grundstück ist schon gekauft...
Insofern überdenkt noch mal Eure Anforderungen an Euer Traumhaus und stellt dann mal einen Schnitt inklusive Foto und Lageplan vom Grundstück mit ein.
Wenn man ein Grundstück schon zwei Monate besitzt, dann hat man doch eine selbstgemalte Zeichnung mit Maßen vom Grundstück und schiebt Rechtecke hin und her.
Also her damit, und dann geht es weiter
 
kaho674

kaho674

Ich habe es überlesen, da ich nur mit Handy zugange war:

Die Legende des B-Planes erlaubt einzig nur Satteldächer.
Wo hast'n die gefunden? Ich bin da zu blöd, das zu erkennen.

Vielleicht ja so:

Ein zweistöckiges Haus mit dunklem Satteldach, Dachfenstern und Holztüren auf grünem Gras.

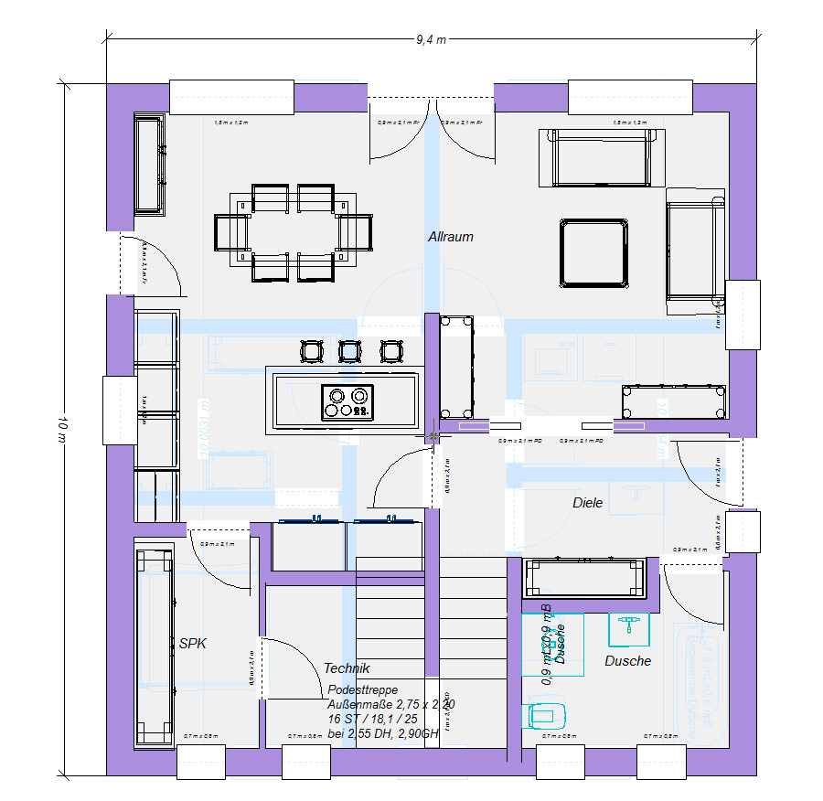
Grundriss eines Hauses: Küche mit Insel, Allraum (Wohn-/Essbereich), Diele, Dusche, Technik, Treppe.

Grundriss eines Hauses mit Flur, Bad, HWR, SZ, Ankleide, K1, K2.


Gewisse Ähnlichkeit zum Ausgang ist sicher zu erkennen. 1m Kniestock angenommen. Auf Bodenplatte - im Norden (planunten) leicht in den Hang, im Süden angeschüttet. Ob das geht, weiß ich natürlich nicht.
 
Zuletzt aktualisiert 19.11.2025
Im Forum Grundrissplanung / Grundstücksplanung gibt es 2536 Themen mit insgesamt 87981 Beiträgen


Ähnliche Themen zu Grundrissplanung Einfamilienhaus (Stadtvilla 140qm²) am Hang mit Doppelgarage
Nr.ErgebnisBeiträge
1Fragen Bebauungsplan (Vollgeschosse, Kniestock) 11
2Neubaugebiet - Grundstück mit Gefälle 19
3Einfamilienhaus 11,35x9,65 Grundrissplanung und platzierung auf dem Grundstück 29
4Bauen mit einem Kniestock von 50cm? - Seite 329
5Grundstück / Bebauungsplan / Stützmauern / Abgrabungen - Seite 217
6Grundflächenzahl/Geschossflächenzahl bei Grundstück ohne Bebauungsplan: Wie kalkulieren? Erfahrungen? 18
7Grundstück 4500 m² (Gärtnerei) - Erstellung Bebauungsplan in Eigenregie 16
8Position Garage auf Grundstück, Vorgabe im Bebauungsplan 22
9Grundriss-Entwurf: Einfamilienhaus mit Keller; 560qm Grundstück - Seite 365
10Nettes Grundstück, aber Bebauungsplan zu einschränkend? 21
11Erlaubte Gebäudehöhe (Kniestock) laut Bebauungsplan? 10
12Unwirtschaftlicher Bebauungsplan 31
13Bebauungsplan - 1,5 geschossige Bebauung? 16
14Abweichung vom Bebauungsplan in Neubaugebiet möglich - Seite 16118
15Haus mit Bodenplatte bei Gefälle 52
16Grundstück die Zweite - Bitte um Beurteilung - Seite 544
17Bauplan sieht vor Kniestock unzulässig 16
18Grundrissoptimierung Einfamilienhaus mit Keller auf kleinem Grundstück - Seite 3178
19Kniestock erhöhen - Traufhöhe überschreiten? - Seite 322
20Geringe Firsthöhe ergibt niedrigen Kniestock - Seite 355

Oben