Hausbau - Ratgeber
Bauherrenhilfe
- Bauherrenhilfe vor Vertragsabschluss
-- Warum einen unabhängigen Baubetreuer?
-- Vertragsgrundlagen
-- Bausumme
-- Zahlungsplan zur Kostenkontrolle
-- Pflichten des Bauherren vor Vertragsabschluss
-- Unterlagen beim Hausbau vor Vertragsabschluss
- Bauherrenhilfe nach Vertragsabschluss
-- Bauantrag bei Behörden
-- Bau-Genehmigungsverfahren bei Baubehörden
-- Bauspezifische Versicherungen
-- Bauzeitenplan
-- Baubeginn - die Letzten Pflichten der Bauherrschaft
- Bauherrenhilfe während der Bauzeit
- Gewährleistungsansprüche
- Bauabnahme
Baufinanzierung
- Baufinanzierung - Allgemeine Fragen
- Kreditarten
- Kredit-Konditionen
- Bausparen
- Staatliche Förderungen
- Verkehrswert
- Haushaltsrechnung und Bonität
Hausbau Planung
- Haustypen
- Hausbau Vorbereitungsarbeiten
- Das Baugrundstück
- Baugrund beim Hausbau
- Baurecht
- Gebäudeschutz
- Erdarbeiten und Wasserhaltung
- Stützmauern
- Einfriedung
- Untergeschoss
- Kanalisation
- Tragende Elemente
- Nichttragende Innenwände
- Fundation / Fundament
- Deckenkonstruktionen
- Dächer
- Kaminanlagen
- Treppen Rampen Leitern
- Dachbeläge und Spengler
- Fenster
- Sonnen und Wetterschutz
- Aussenputze
- Einbauten, Küchen, Türen
- Bodenbeläge und Unterlagsböden
- Parkett
- Gips, Wand, Decke
Haustechnik und Energie
- Heiztechnik
- Lüftung und Klimatechnik
- Sanitärtechnik
- Elektrotechnik
- Erneuerbare Energie
Whirlpools / Jacuzzi
Hausbau Magazin
- Baufinanzierung trotz Krise?
- Das Blockhaus
- Moderne Dämmstoffe im Vergleich
- Erker Vor- und Nachteile
- Glasflächen beim Hausbau
- Günstig ein Haus Bauen
- Mediterraner Hausbaustil
- Mehrgenerationenhaus
- Moderne Architektur
- Gartengestaltung leicht gemacht
- Traditioneller Ziegelbau
- Villa als höchster Traum
- Im Eigenheim Ruhestand geniessen
- Altbau sanieren
- Kauf einer Holzgarage
- Immobilienmakler
- Arbeitshandschuhe für den Winter
- Zuhause verschönern
- Outdoor-Plissees
- Schlafzimmer planen
- Terrassenüberdachung
- Wohngebäudeversicherung
- Zaunarten und Eigenschaften
- Hauseingang gestalten
- Der perfekte Grundriss
- Sparsamer heizen im Altbau
- Einfamilienhaus smart finanzieren
- Planung einer PV-Anlage
- Neues Haus
- Immobilienfinanzierung
- Installation einer Photovoltaikanlage
- Asbest erkennen und entfernen
- Gartenpflege im Frühling – worauf achten
- Sauna im Fokus - Wellness zuhause
- Erfolgreich vermieten
- Die perfekte Winterbekleidung
- Das Niedrigenergiehaus
- Der April und seine Stürme
- Architektonische Vielfalt
- Ökologisch und nachhaltig bauen
- Das perfekte Schlafzimmer
- Nachhaltige Energieversorgung
- Zukunftsorientiert bauen
- Nachhaltigkeit beim Hausbau
- Tiny Houses
- Wärmepumpen als nachhaltige Heizvariante
- Maßgeschneiderten Kleiderschrank
- Der richtige Baukredit
- Ratgeber für erfolgreichen Hausbau
- Haus als Altersvorsorge
Do-it-yourself Anleitungen
- Verlegeanleitung für Bodenbeläge und Parkett
- Bodenbeläge und Parkett reinigen und pflegen
- Malerarbeiten am Haus
- Garten Tipps
- Umzug und Reinigung

ᐅ Grundrissplanung Einfamilienhaus Massivholzbauweise 140qm in Niedersachsen

Erstellt am: 02.01.23 15:30
-
-LotteS-
-
-LotteS-
02.01.23 15:30
Moin liebes Hausbau-Forum!

Nachfolgend einige Infos - nach bestem Wissen und Gewissen - zu unserem Hausbauprojekt...

Bebauungsplan/Einschränkungen

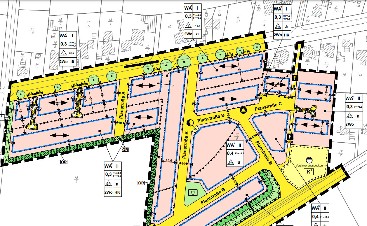
Größe des Grundstücks 576 qm - Flurstück 17/28 (siehe Liegenschaftskarte)
Hang nein - Grundstück hat nur wenige cm Höhenunterschied
Grundflächenzahl 0,3 = 172,8
Geschossflächenzahl nicht definiert
Baufenster, Baulinie und -grenze 24x24 Meter Grundstück = N-O-S-W 16x18x16x18 Baufenster
Randbebauung nein, Ausnahmen ggf. siehe nds. Bauverordnung
Anzahl Stellplatz nicht vorgeschrieben
Geschossigkeit eingeschossig
Dachform Sattel/Walm/Krüppelwalm 35-50 Grad Dachneigung
Stilrichtung klassisches Einfamilienhaus
Ausrichtung Firstrichtung vorgegeben = Firstlinie in West-Ost Richtung
Maximale Höhen/Begrenzungen TH 4,0 FH 8,5 Meter
weitere Vorgaben keine Ölheizung, 50% der Süddachfläche mit solarpflicht, keine Bebauung zwischen Haus und Strasse zugelassen (= kein Parkplatz ö.ä. im Vorgarten)

Das Grundstück ist gekauft und die Erschließungsarbeiten im Neubaugebiet bereits abgeschlossen (wir liegen sogar an der vorasphaltierten Strasse).

Anforderungen der Bauherren

Stilrichtung, Dachform, Gebäudetyp Holzhaus aus massiven Blockbohlen innen, Einblasdämmung und Aussenverschalung
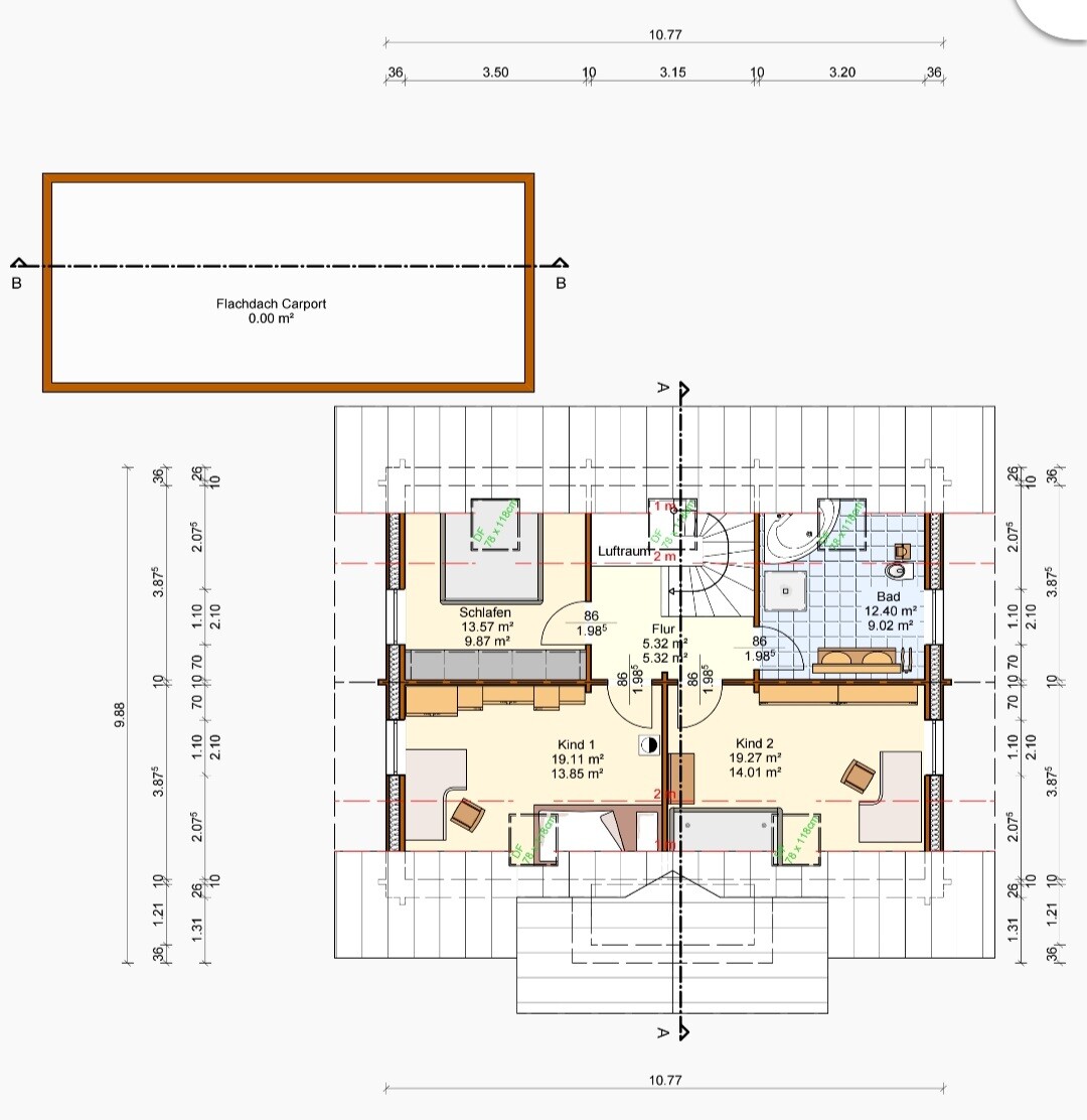
Keller, Geschosse kein Keller - nur EG + OG
Anzahl der Personen, Alter drei im Alter von 36, 29 und fünfeinhalb Jahren
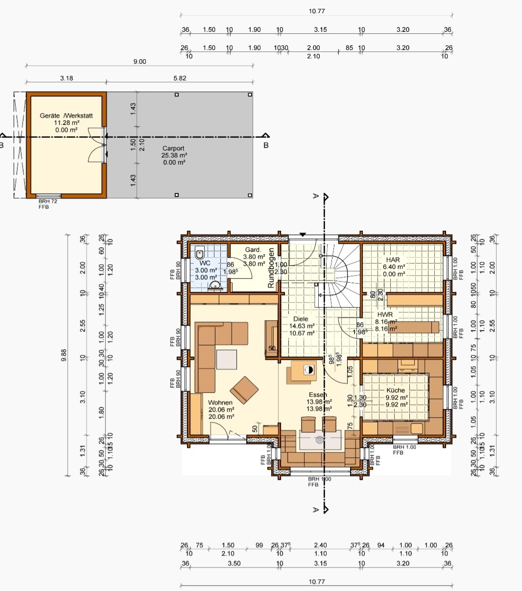
Raumbedarf im EG, OG Standard Einfamilienhaus mit 3 Schlafzimmern + Bad oben, unten offener Wohnbereich, Gäste-WC und grosser HAR/Hauswirtschaftsraum
Büro: Familiennutzung oder Homeoffice? Ein Zimmer aktuell als Buero/Gast nutzbar (Backup für Nachwuchs-Eventualitäten), wir haben derzeit beide keine Jobs mit Homeoffice-Option
offene oder geschlossene Architektur Wohn/Ess/Koch gerne offen
konservativ oder moderne Bauweise konservativ
offene Küche, Kochinsel offene Küche ja, Kochinsel aktuell nicht geplant
Anzahl Essplätze im Alltag 3, dürfte aber in der Essecke für genügend Leute ausreichen
Kamin geplant ist ein Grundofen
Musik/Stereowand nein
Balkon, Dachterrasse nein
Garage, Carport Carport mit Werkraum
Nutzgarten, Treibhaus nein
weitere Wünsche/Besonderheiten/Tagesablauf, gern auch Begründungen, warum dieses oder das nicht sein soll

Hausentwurf

Von wem stammt die Planung: Plan nach Grundsätzen von uns, dann mit dem angestellten Architekten des Herstellers optimiert
Was gefällt besonders? Warum? Die herausgezogene Essecke mit umlaufender Bank gefällt uns sehr gut, generell sind unsere Vorstellungen von Raumgrößen gut umgesetzt - ob das alles so sinnvoll ist, wie wir uns das ausmalen und vorstellen, würden wir hier gerne erfragen.
Was gefällt nicht? Warum? Die Position des Schornsteines könnte im Kinderzimmer störend sein? Oder ist das im Alltag zu vernachlässigen? Wir sind mit der Küche sowie dem Bad oben noch nicht zufrieden und sind gerade auf der Suche nach einer guten Loesung fuer die Moeblierung bzw Einrichtung dafuer
Preisschätzung lt Architekt/Planer: Da wir nicht mit einem GU arbeiten, sondern nach dem "Rohbau" selbst vergeben und viel in Eigenleistung machen, haben wir noch nicht alle Zahlen. Die aufbauenden Gewerke lassen wir uns derzeit durchrechnen.
Persönliches Preislimit fürs Haus, inkl. Ausstattung: 400.000 bis einzugsfertig, alles "draussen" außen vor gelassen, Grundstück ist bezahlt
favorisierte Heiztechnik: Wärmepumpe mit Fußbodenheizung sowie Photovoltaik mit ggf. Speicher

Wenn Ihr verzichten müsst, auf welche Details/Ausbauten

-könnt Ihr verzichten: Wir haben versucht, unsere Ansprüche dem Budget schon weitgehend anzupassen - sieht jemand noch Einsparpotential?
-könnt Ihr nicht verzichten: Als aller letztes würden wir, wenns sonst gar nicht ausgeht, die Essecke rausplanen und das EG neu planen - ausserdem ist der Grundofen bei uns gesetzt (wir lieben diese Gemütlichkeit einfach total)

Warum ist der Entwurf so geworden, wie er jetzt ist?

Standardentwurf vom Planer? Der Hersteller bietet keine Häuser von der Stange an, da ist alles individuell geplant
Entsprechende/Welche Wünsche wurden vom Architekten umgesetzt? Der aktuelle Plan ist nach unseren Wünschen schon ganz gut umgesetzt. Jetzt fehlt noch das Feintuning, bei dem wir auf eure Einschätzungen, Ideen und Erfahrungen hoffen.
Ein Gemisch aus vielen Beispielen aus div. Magazinen... Inspirationen haben wir uns natürlich aus allen möglichen Quellen geholt (gute und schlechte…) 😀
Was macht ihn in Euren Augen besonders gut oder schlecht? Für uns fühlt es sich bisher jedenfalls gut an - unsere möbel passen alle rein und die Dinge, die uns in unserem Mietshaus aktuell stören, sind im Entwurf alle abgestellt

Was ist die wichtigste/grundlegende Frage zum Grundriss in 130 Zeichen zusammengefasst?

- Funktioniert der Grundriss so, oder gibt es bestimmte Anordnungen, die Mist sind?
- Ist die Position und Anzahl der Fenster ausreichend?
- Benötigen wir im OG in den Kinderzimmern zwei Dachflächenfenster oder reicht jeweils eines?
- Haben wir irgendwas wichtiges vergessen/übersehen/nicht bedacht?
- Können wir grundsätzlich (ohne Detailplanung) eine Küche (umlaufend als U) im vorhandenen Raum sinnvoll planen, oder muessen wir im Vorfeld die Wände unten nochmal umplanen?
- Sind die Türen so gesetzt, dass es in Breite/Wandabstand/Anschlagsseite passt?
- Ist der HAR (nicht möblierter Raum hinter dem Hauswirtschaftsraum an der Nord/Ost Seite des EG) von den Dimensionen her ausreichend?
- Welcher Kniestock ist erfahrungsgemäss im OG sinnvoll? Aktuell stehen 40cm, die würden wir in jedem Fall aufstocken, da wir sonst spätestens im Badezimmer im OG große Probleme bekommen (allerdings wollen wir in unserem Bad auch keinen Tango tanzen, das darf gerne "so gross wie eben noetig" sein - wir wuerden vermutlich die Wanne lieber in die Nord-Ost Ecke des Raumes setzen - wuerde das dann so passen?)
- Wir würden noch einen Abwurfschacht vom Bad OG in den Hauswirtschaftsraum planen - hat da jemand eine Idee für eine gute Stelle?


Eine Anmerkung noch zu unserem generellen Konzept:
Wir würden vom Hersteller das Haus inkl. Dämmung, Verschalung und Dachaufbau kaufen. Der Aufbau erfolgt dann nach dem Prinzip der Richtmeistermontage (Die Firma stellt zwei erfahrene Leute, dazu kommen 4-5 Bauhelfer von uns - volle Garantie und Einsparungen im Bereich 15.000-20.000 Euro, ca drei bis vier Wochen harte Arbeit) Zusaetzlich sind im "Basispaket" des Herstellers Fenster und Haustuer mit drin, da diese aufgrund der Setzung des Hauses speziell eingebaut werden muessen.
Die Gewerke Bodenplatte, Dacheindeckung und Sanitaer wuerden wir vergeben wollen. Elektro (in Absprache mit dem oertlichen Elektromeister), Innenausbau (Zimmertueren, Estrich, Fußbodenheizung, Fußbodenbelag) und Kleinkram kann der Mann machen (gelernter Elektriker, sehr interessiert an fast allem, handwerklich begabt und erfahren mit Holz). Ich bin beruflich im Buero eines Baustoffhandels taetig, kann hier also auf gute Konditionen, Zwischenlagerkapazitaeten sowie gewachsene Kontakte in der Branche zurueck greifen. Ebenfalls haben wir tolle Freunde und eine grosse Familie, die alle Bock auf unser Projekt haben und uns gerne unterstuetzen wollen. Wir wissen, dass es sehr viel Arbeit fuer uns wird - Zeit, Nerven und das Budget stark beansprucht werden - aber wir wollen es dennoch gerne wagen.

Und nun freuen wir uns auf die Anregungen, kritischen Bemerkungen und alles, was uns dabei helfen kann, im Verlauf möglichst wenig Fehler zu machen

Ganz herzlichen Dank schonmal vorab!

Detaillierter Lageplan eines Baugebiets mit Planstraßen, Parzellen und Grünflächen.


Lageplan mit nummerierten Parzellen; roter Kreis markiert Flurstück 17/28 an einer Straße.


Grundriss eines Wohnhauses mit Wohnzimmer, Küche, Essen, Diele, Garderobe, HWR und Anbau Carport


Grundriss einer Wohnetage mit Flachdach-Carport; Schlafzimmer, zwei Kinderzimmer, Flur, Bad, Treppe.
1
11ant
02.01.23 17:23
Die aus Sicht der Kinderzimmer "ungenutzte" Erkerkonstruktion erscheint mir nicht als "der Weisheit letzter Schluss" - wenn schon diese Firstrichtung, hätte ich zumindest oben einen "Kapitänsgiebel" genutzt (und nicht symmetrisch, sondern nur dem Kinderzimmer zugeschlagen, das Reservekinderzimmer bekommt dafür zwei Dachflächenfenster). Ehrlich gesagt finde ich in der Gesamtkonstellation zu mutig, auch noch einen Individualentwurf zu bauen. Wenn der Anbieter keine Typenhäuser hat, orientiert man sich notfalls an einem fremden Typenhausentwurf (der sich jedoch bewährt hat, also ohne Engen erwiesen funktioniert), z.B. am berühmten Flair 113. Wasser- vor allem "Ent"-sorgung und Elektro muß hier höchst penibel geplant sein, die "Standard" Strippenzieher und Kesselflicker sind gewohnt, zu schlitzen und mit dem Hilti Pogo zu tanzen, was im ich sachma "Blockhaus" ja wohl beides ausfällt. Bzgl. der Kniestockhöhe lese ich im Bebauungsplan wenigst Spielraum. Das besagte Flair hat m.W. einen durchschnittlichen (90er / 100er / 110er ?) Kniestock; falls es budgetmäßig ein "zu großes" Vorbild wäre, ließe sich vielleicht auch ein Raumwunder 90 verwenden. Ich finde hier zwar vor allem die Eßerker-Idee sympathisch, würde aber an das "Blockhaus" ein Fragezeichen malen und eher ein "klassisches" Holzrahmentafel-Ausbauhaus (oder ein Porenbeton-Bausatzhaus) anpeilen.
https://www.instagram.com/11antgmxde/
https://www.linkedin.com/company/bauen-jetzt/
I
i_b_n_a_n
02.01.23 18:32
vielleicht hilt unsere Skizze, Traufe bei 4,5, First bei 9m. Aso jeweils 50cm höher als eure wirklich unkomfortablen Werten.
50cm abziehen von unserer Kniestockhöhe ergäben also 67cm

Beim Blockbohlenhausbau habe ich bereits tatkräftig mitgeholfen, es gibt davon 2 in der Familie. Die ansprochene erforderliche höchste Penibilität der Elektroplanung hätte ich sonst auch angesprochen. Nicht nur bei Fenster und Türen gelten dann besondere Einbauregeln (mit Rutschleisten).

Ich sehe die Planung auch als mutig an, mEA kann diese aber mit einem gutem, den Bauherr|Innen wohl gesonnenem Planer auch in angegebener Höhe klappen. Aber das riesige Flachdachcarport sowie der Grundofen könnte dem Budget zum Opfer fallen, denn Photovoltaik mit Batterie gibts nicht umsonst

Querschnitt eines Hauses mit Dachstuhl, Wänden und Deckenbalken
-
-LotteS-
02.01.23 19:03
Vielen Dank, @11ant fuer Deinen Beitrag! 🙂

11ant schrieb:
Die aus Sicht der Kinderzimmer "ungenutzte" Erkerkonstruktion erscheint mir nicht als "der Weisheit letzter Schluss" - wenn schon diese Firstrichtung, hätte ich zumindest oben einen "Kapitänsgiebel" genutzt (und nicht symmetrisch, sondern nur dem Kinderzimmer zugeschlagen, das Reservekinderzimmer bekommt dafür zwei Dachflächenfenster).

Ich habe Dich so verstanden: Du meinst also, die Symmetrie des Hauses komplett zu vergessen, die Essecke statt nur als eingeschossigen "Anbau" weiter nach Westen (= mittig im Kinderzimmer?) zu verschieben, um davon einen über beide Etagen laufenden Giebel dort im Hauptkinderzimmer "herauskommend" zu planen? Wie könnte man dann die Terrassensituation lösen? Zwischen Küche und Esszimmer, und dann einmal um den Giebel rumlaufen? Sonst hätte ich ja eine Süd-Ost Terrasse zur Strasse hin. Ich mag zwar Symmetrie - aber wenn der Grundriss dann besser funktioniert, wäre ich dem offen eingestellt. Die Firstrichtung lässt sich leider nicht ändern. Die Grundrisse sind genordet, da auch die Einfahrt an der nördlichen Grundstücksgrenze verlaufen muss gem. Bebauungsplan für unser spezifisches Grundstück (hab ich im Startpost nicht dran gedacht). Das Haus wird also maximal möglich im Nord Osten des Baufensters liegen - oder siehst Du das anders?

Wir haben die Essecke zu Beginn als Kapitänsgiebel in beide Zimmer mündend geplant, das sah total furchtbar aus (aufgrund der Konstruktion kaum nutzbar in den Kinderzimmern und total unproportional riesig... Und natürlich auch teuer). Hier nur ein Zimmer anzusprechen finde ich echt interessant. Hast Du sowas schonmal gesehen, sodass man sich die Außenansicht besser vorstellen kann?

Vielleicht lieber das östliche Kinderzimmer dafür nehmen, um die Essecke dann an eine offener gestaltete Küche anbinden zu können, und dem Anbau dann eher einen "L-Charakter" zu verleihen? Dann hätte man eine bessere Ausrichtung für eine Terrasse.

Oder würde das das Hauptkinderzimmer zu sehr entwerten?
11ant schrieb:
Ehrlich gesagt finde ich in der Gesamtkonstellation zu mutig, auch noch einen Individualentwurf zu bauen. Wenn der Anbieter keine Typenhäuser hat, orientiert man sich notfalls an einem fremden Typenhausentwurf (der sich jedoch bewährt hat, also ohne Engen erwiesen funktioniert), z.B. am berühmten Flair 113.

Habe mir das Flair 113 angesehen - da müssten wir schon einiges umstellen, damit es passt für uns (zB grosser HAR/Hauswirtschaftsraum, Ausrichtung und Raumanordnungen verschieben), somit wäre die erwiesene Funktionalität ja auch wieder relativ hinfällig - oder? Hast Du in Deinem reichen Portfolio vielleicht noch einen anderen Standardentwurf?

Siehst Du an unserem Grundriss an sich strukturelle Probleme? Jetzt mal abgesehen von unserer Essecke? (Die uebrigens in "live" super toll wirkt. Auf der Eckbank zu sitzen, nach oben die Dachkonstruktion zu sehen, im Osten, Süden und Westen Licht zu haben - quasi als "Wintergarten - Essecken - Anbau"
11ant schrieb:
Wasser- vor allem "Ent"-sorgung und Elektro muß hier höchst penibel geplant sein, die "Standard" Strippenzieher und Kesselflicker sind gewohnt, zu schlitzen und mit dem Hilti Pogo zu tanzen, was im ich sachma "Blockhaus" ja wohl beides ausfällt. Bzgl. der Kniestockhöhe lese ich im Bebauungsplan

Ja da müssen wir alles vorab genau planen. Die Elektroleitungs"kanäle" werden direkt im Fertigungsprozess eingefräst, sodass man auch Reserveleitungskanäle einplanen kann. Gleiches läuft mit der Verrohrung. Wir hatten geplant, die gesamten Skizzen hierfür entsprechend mit dem Elektromeister und dem Heizung/Sanitärmeister vorhet abzustimmen, bevor wir unsere finalen Pläne freigeben.

Vielleicht hätte @i_b_n_a_n da einen Hinweis? Du hast doch auch so gebaut, oder? Zumindest der Heizungsbauer/Sanitärmensch hat total Bock, das mit uns zu planen. Ist für ihn ein cooles Projekt, bei dem er uns auch zB im Bereich Fußbodenheizung legen und Material bestellen viel Freiraum lassen würde. Die Elektroplanung macht der Mann soweit selbst, da würde dann nur das Feintuning mit dem Meister gemacht werden. Neben der Elektroausbildung hat er auch ein E-Technik Studium absolviert und ist da aktuell noch sehr bewandert bei "Verkabelungen". Als Hobby möchte er gerne auch überall KNX vorsehen und selber installieren.

Zum Thema Kniestock: Da bin ich überfragt, welche Parameter wir da ändern müssen bzgl Dachneigung und Diskrepanz mit der Flächenberechnung wegen "anderthalbgeschössig" - die Dachneigung ist keinesfalls fix. Aktuell steht 45 Grad, von 35 bis 50 ist alles möglich.
11ant schrieb:
Ich finde hier zwar vor allem die Eßerker-Idee sympathisch, würde aber an das "Blockhaus" ein Fragezeichen malen und eher ein "klassisches" Holzrahmentafel-Ausbauhaus (oder ein Porenbeton-Bausatzhaus) anpeilen.

Okay, vielen Dank für Dein Feedback an der Stelle! Wir haben im Sommer zunächst ein massives Steinhaus geplant - mit völlig ausufernden Kosten und der Ungewissheit, dass wir von dieser Bauweise gar keine Ahnung haben. Daher erscheint uns das Holzhaus (wenngleich es penibel geplant sein muss) tatsächlich als sichere Variante, da unser Haus binnen vier Wochen komplett dicht ist, und wir die anschliessenden Arbeiten gut einschätzen könnten... Abgesehen davon ist das Raumgefühl unserer Ansicht nach absolut unschlagbar. In diese Bauweise haben wir uns ehrlichetweise verliebt. Vor Allem auch, weil unser Hersteller diffusionsoffen ohne Folientechnik arbeitet und der Bausatz KfW40 entspricht.

Hierbei ist vielleicht noch der Wandaufbau relevant: Innen 100mm Blockbohle, 200mm Einblas-Zellulose-Dämmung, 55mm Blockbohle als Aussenverschalung. Optisch eher Richtung Schwedenhaus, also keine ganzen Baumstämme.

Habe unten nochmal den aktuellen Schnitt und eine Außenansicht beigefügt!

Seitenansicht eines Hauses mit Satteldach, Fenstern und Treppe.


Großes Holzhaus mit grauem Satteldach, Nebengebäude, Terrasse und Garten.


Holzhaus mit steilem Dach, Dachfensterreihen, weiß gerahmte Fenster, Carport-Pergola und Garten.
X
xMisterDx
02.01.23 19:14
Wäre bei der Größe eher das Flair 134, das kostet ab 275.000 EUR in einer mittelpreisigen Region wie Hannover. Könnte also klappen, wenn man viel selbst macht und halbwegs günstige Handwerker findet.
-
-LotteS-
02.01.23 19:16
Da ist er ja schon, habe Deine Antwort erst gelesen, als ich die Antwort an den 11ant fertig hatte. 🙂
i_b_n_a_n schrieb:

vielleicht hilt unsere Skizze, Traufe bei 4,5, First bei 9m. Aso jeweils 50cm höher als eure wirklich unkomfortablen Werten.
50cm abziehen von unserer Kniestockhöhe ergäben also 67cm

Vielen Dank für Deine Skizze... 67cm ist natürlich auch echt wenig. Aktuell sind 40cm im Plan, das kommt natürlich nicht in Frage. Kann man mit der Dachneigung da mehr spielen, oder zerstört das das Raumgefühl? Könnte man auch mit 80cm auskommen? Wie ist da Deine Erfahrung mit dieser Bauweise?
i_b_n_a_n schrieb:

Beim Blockbohlenhausbau habe ich bereits tatkräftig mitgeholfen, es gibt davon 2 in der Familie. Die ansprochene erforderliche höchste Penibilität der Elektroplanung hätte ich sonst auch angesprochen. Nicht nur bei Fenster und Türen gelten dann besondere Einbauregeln (mit Rutschleisten).

Ja das stimmt, die Sanitäranlagen müssen vor eine Konstruktion gesetzt werden - im Detail müssen wir uns das nochmal anschauen. Die Beispielhäuser haben da einen sehr guten Eindruck vermittelt, was man hier anders machen muss, als gewöhnlich.
i_b_n_a_n schrieb:

Ich sehe die Planung auch als mutig an, mEA kann diese aber mit einem gutem, den Bauherr|Innen wohl gesonnenem Planer auch in angegebener Höhe klappen. Aber das riesige Flachdachcarport sowie der Grundofen könnte dem Budget zum Opfer fallen, denn Photovoltaik mit Batterie gibts nicht umsonst

Das Carport ist gedanklich schon gestrichen, vom Hersteller werden wir das nicht nehmen. Vielleicht später mit bewusstem Kontrast aus dem Baumarkt - aber wir haben uns das ganze dennoch einmal mitplanen bzw mitkalkulieren lassen. Als Platzhalter isses nett 😀

Speicher wär cool. Ob wir einen nachrüsten werden wir am Ende sehen - das sind beides "Pufferpositionen".

Grundofen ist als Selbstbausatz geplant. Der Onkel hat davon schonmal einen selber gebaut und ist Maurermeister und Bauingenieur. Der Schornsteinfeger findet die Idee cool und legt uns da keine Steine in den Weg - auch trotz Marke Eigenbau!
kinderzimmeresseckeküchegrundstückdachflächenfensterkniestockhöhedachneigunghauswirtschaftsraumbauweisegrundofen